青岛垚鑫智能科技有限公司
宣传

位置:中冶有色 >

有色技术频道 >

> 电冶金技术

分类:
全部
矿山技术
冶金技术
材料制备及加工技术
环境保护技术
分析检测技术
 
全部
火法冶金技术
湿法冶金技术
电冶金技术
真空冶金技术
地区:
全部
北京
天津
上海
重庆
河北
山西
辽宁
吉林
黑龙江
江苏
浙江
安徽
福建
江西
山东
河南
湖北
湖南
广东
海南
四川
贵州
云南
陕西
甘肃
青海
内蒙
广西
西藏
宁夏
新疆
其他
其他
展开
 
全部
南京
无锡
徐州
常州
苏州
南通
连云港
淮安
盐城
扬州
镇江
泰州
宿迁

江苏苏州有色金属电冶金技术理论与应用

免费发布技术信息>>
高效粉末冶金烧结装置

本实用新型公开了一种高效粉末冶金烧结装置,其包括底座,其特征在于:底座上方通过支架水平连接有一支座,底座和支座之间形成一隔层,支座上部横设置有一圆筒形烧结炉体,烧结炉体的外侧面设置有一层热容层,热容层的顶部一端设置有一进油管,热容层的底部一端设置有一出油管,烧结炉体的左侧面设置有一预加热炉,预加热炉内的两侧面对应导轨的高度分别设置有一滑轨,两滑轨之间设置有移动板,预加热炉的左侧面设置有一入料口,入料口上设置有一入料盖,预加热炉的顶部两端分别设置有一开口,预加热炉内设置有一“U”形导油管,导油管的两端分别通过开口延伸出预加热炉的外部,进油管连接导油管的左端。

标签:
电冶金技术
江苏 - 苏州 来源:中冶有色网 2023-03-18
冶金用双效冷却辊轴组件

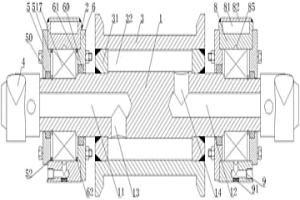
本实用新型公开了一种冶金用双效冷却辊轴组件,包括:辊子及轴承座,在辊子上套装有支撑辊,在支撑辊与辊子之间设置有水冷槽,在辊子上设置有第一、第二水冷孔,在辊子的侧壁上开设有第一、第二流水孔,在辊子上连接有两个旋转接头;所述轴承座包括:相互连接的前挡板和后挡板,在相连的前挡板与后挡板之间安装有能够与辊子相连的轴承,在前挡板和后挡板之间密封焊接有环形座,在环形座的上半部上开设有水冷环槽,在水冷环槽上设置有密封板,在密封板上设置有进水口和出水口,在环形座的内侧壁上开设有润滑槽,在环形座上开设有与润滑槽相连的注油孔。本实用新型大大提高了冷却效果,延长了轴承、辊子、支撑辊的使用寿命。

标签:
电冶金技术
江苏 - 苏州 来源:中冶有色网 2023-03-18
高耐磨高强韧性粉末冶金齿圈

本实用新型公开了一种高耐磨高强韧性粉末冶金齿圈,其内侧具有轮齿(4),在轮齿(4)的底部,齿圈设置有齿圈端面(1),齿圈端面(1)上设置有轴套(3),轴套(3)凸出齿圈端面(1)的背面,轮齿(4)包括齿部及齿根,齿部采用感应淬火处理,轮齿(4)与齿圈端面(1)之间具有连接面(7),连接面(7)为斜面;齿圈端面(1)的正面上设置有环状凹槽(8),凹槽(8)的槽口具有倒角,倒角为50‑60°,凹槽(8)与轮齿(4)之间距离为3‑5mm;本实用新型的轮齿采用局部感应淬火,提高齿部的硬度,提高耐磨性;同时保持安装位置的烧结状态,使之具有足够的韧性和尺寸精度。

标签:
电冶金技术
江苏 - 苏州 来源:中冶有色网 2023-03-18
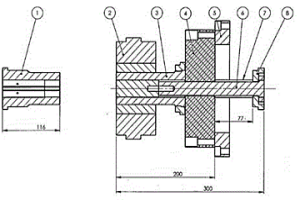
粉末冶金汽车水泵法兰
粉末冶金汽车水泵法兰 1154     
 0

本实用新型公开了粉末冶金汽车水泵法兰,包括盘形主体,所述盘形主体外围均匀设置有多个安装耳,所述安装耳上设置有安装螺孔;在盘形主体正面,所述盘形主体中心具有连接端,所述连接端、盘形主体的中心通孔贯通,所述连接端的两侧具有安装缺口;在盘形主体背面,所述盘形主体上具有标记槽;在盘形主体背面,所述安装耳的高度高于盘形主体;本实用新型结构设计合理,盘形主体正面连接端设计配合安装耳,大大提高连接稳定性;在盘形主体背面,安装耳的高度高于盘形主体,防止固定位置发生滑动,稳固性强;安装耳的高度高于盘形主体,盘形主体背面形成密封贴合面,不仅大大提高其密封性能,还能有效防止灰尘或腐蚀性液体进入。

标签:
电冶金技术
江苏 - 苏州 来源:中冶有色网 2023-03-18
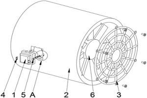
冶金工业用新型烟风机
冶金工业用新型烟风机 1004     
 0

本实用新型公开了一种冶金工业用新型烟风机,具体涉及烟风机技术领域,包括风管,风管的一侧通过螺钉固定连接有防护网,风管内部的一侧设置有抽气叶轮,风管内部的另一侧设置有电机安装架,电机安装架的内部安装有电机,电机的一侧与抽气叶轮相连接,电机安装架的外部固定连接有多个翼板,电机安装架的一侧通过螺钉固定连接有封板,封板的正面固定连接有布线管,布线管的正面活动套接有布线套管,布线套管的正面固定连接有线路控制壳,风管一侧的正面开设有收纳槽,线路控制壳活动连接在收纳槽的内部,本实用新型通过借助收纳槽,使线路控制壳收于风管的内部,可以减少孔槽的加工量,降低孔槽的精准度,大大减轻了工作量。

标签:
电冶金技术
江苏 - 苏州 来源:中冶有色网 2023-03-18
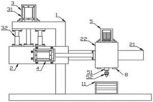
生产冶金机械备件的钻床

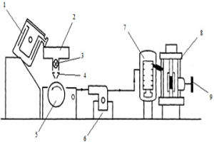
本实用新型公开了一种生产冶金机械备件的钻床,其技术方案是:包括机架,所述机架中间套接升降板,所述升降板上端通过直角架固定安装升降装置,所述升降板前端通过螺栓固定安装第二气缸,所述升降板右端焊接滑动轴杆,所述滑动轴杆外壁通过卡接装置卡接活动板,所述活动板上端通过螺栓固定安装电机,所述活动板下端卡接面阵相机,所述活动板下端卡接环形灯,所述活动板后端焊接所述卡接装置,所述面阵相机电性连接视觉控制器,所述环形灯电性连接光源控制器,本实用新型的有益效果是:具有智能型机械式钻孔的效果,不仅提高了工作效率和钻孔的精准度,而且也提高了安全性。

标签:
电冶金技术
江苏 - 苏州 来源:中冶有色网 2023-03-18
粉末冶金推杆式烧结炉用脱蜡装置

本实用新型涉及烧结炉装置技术领域,具体涉及一种粉末冶金推杆式烧结炉用脱蜡装置,包括烧结炉装置主体,所述烧结炉装置主体的内部固定连接有连通管,且连通管远离烧结炉装置主体的一端固定在传动箱的内部,所述传动箱的内部固定安装有冷却器组件,所述传动箱的内部固定安装有限位块,所述传动箱的内部固定安装有收集箱,且收集箱的外部固定安装有连接板。本实用新型通过设置有冷却器组件固定安装在传动箱的内部,使得连通管将烧结炉装置主体与传动箱的内部进行连通起来后,能够将烧结炉装置主体内部的气态蜡流通在传动箱的内部进行脱蜡工作,使得冷却器组件的作用能够将气态蜡凝结成固定蜡,然后流落到收集箱的内部进行收集工作。

标签:
电冶金技术
江苏 - 苏州 来源:中冶有色网 2023-03-18
粉末冶金清洗干燥涂油自动线

粉末冶金清洗干燥涂油自动线,包括机架,其特征在于,所述机架上顺次安装有清洗装置、烘干装置和涂油装置;所述清洗装置包括超生清洗槽,所述超生清洗槽的进料端和出料端分别安装有进料台和吹干风机,所述吹干风机与漩涡风机连接,超生振盒安装在超生清洗槽内,所述超生清洗槽的出料端安装有吸雾风机;本实用新型的有益效果:本实用新型设备经多次试验工艺、研发、设计,对规格微小,类似于米粒状态的产品清洗,干燥效果显著提高50%,比起行业内的设备及原系列设备,突出了清洁度、干燥度,使用户产品得到提高,适合推广使用。

标签:
电冶金技术
江苏 - 苏州 来源:中冶有色网 2023-03-18
粉末冶金齿轮自动精密整型机械手

本发明公开了一种粉末冶金齿轮自动精密整型机械手,该机械手应用机器人技术,设计一种3自由度的串联机械臂,其由一个回转副、两个直线导轨移动副组成,齿轮物料由震动输送机连续送至机械手抓取位置,机械手抓取齿轮并快速定位和定向,通过回转运动送至下冲模上方,然后通过垂直方向的直线运动把齿轮压入下冲模口部,抓取部位采用V形结构和齿条结构设计,V形结构确定齿轮中心位置,齿条结构确定齿轮的齿向,机械手的结构保证了可以调节与模具中心的距离,以及通过微调齿条相对V形槽左右位置调节抓取齿轮的指向,本发明完全替代了人工操作工序,极大减低了工伤事故发生的风险,提高了生产效率,降低了人工成本。

标签:
电冶金技术
江苏 - 苏州 来源:中冶有色网 2023-03-18
粉末冶金压制模具循环式冷却机构

本实用新型涉及一种粉末冶金压制模具循环式冷却机构,所述压制模具包括成型中模,成型中部包括中模架和中模芯,中模架内位于所述中模芯的外侧设有集热腔室,所述冷却机构包括:设置于所述集热腔室且与所述中模芯相贴合的导热模组,所述导热模组包括:导热套、以及螺旋导热鳍片;第一冷却模组,第一冷却模组包括:螺旋冷凝管、进水管、出水管、循环水泵、以及冷却水箱;第二冷却模组,中模架上设有若干散热孔,第二冷却模组包括若干散热风扇。压制过程中产生的热量由导热套和螺旋导热鳍片快速引导至集热腔室内,同时循环水泵工作,通过螺纹冷凝管将导热套、螺旋导热鳍片快速排出,并由散热风扇将集热腔室内聚集的热量快速散出,实现高效散热。

标签:
电冶金技术
江苏 - 苏州 来源:中冶有色网 2023-03-18
薄壁粉末冶金轴套压制模具

本实用新型公开了薄壁粉末冶金轴套压制模具,包括上固定模具与下固定模具,所述上固定模具内部贯穿设置有入料孔,所述入料孔内部贯穿设置有上模冲,所述上模冲一端设置有第一液压缸,所述第一液压缸一端设置有液压装置,所述上固定模具与下固定模具之间设置有薄壁轴套,所述薄壁轴套内部设置有轴外壁,所述薄壁轴套内部设置有轴内壁,所述轴外壁与轴内壁之间设置有珠芯,利用薄壁轴套内部设置的轴内壁,通过轴内壁与轴外壁之间设置的珠芯,能够使轴内壁与轴外壁相对滑动,通过这种简单的模具组合使用,能够便捷的加工出金属粉末压坯,有效地避免薄壁轴套压制时压坯由于金属粉装填不均和拱桥孔洞所产生的质量缺陷,降低了弹性后效。

标签:
电冶金技术
江苏 - 苏州 来源:中冶有色网 2023-03-18
减速齿轮箱用粉末冶金行星架的整体压入工装

本实用新型公开了一种减速齿轮箱用粉末冶金行星架的整体压入工装,其包括基座,所述基座上设置有传动轴孔和若干弹簧销孔,所述传动轴孔内用于放置传动轴,所述弹簧销孔内安装有弹簧销,在所述基座上方设置有上压头,所述上压头与基座之间设置有中心杆和若干限位块,所述中心杆与传动轴孔对应,所述限位块位于弹簧销孔上方,所述限位块具有销孔,所述销孔与弹簧销孔对应,所述销孔用于安装圆柱销;本实用新型结构简单,制造方便,能有效对装配进行定位,并实现了销钉的活动定位和压入回缩,从而整体一次性装配,装配效率高,装配精度得到保证。

标签:
电冶金技术
江苏 - 苏州 来源:中冶有色网 2023-03-18
带孔底座零件的粉末冶金用成型模具

本实用新型公开了一种成品率高的带孔底座零件的粉末冶金用成型模具,包括中模座、上冲、用于成型工件中间通孔的芯棒,中模座中可拆卸地设有用于成型工件外侧面的中模芯,芯棒上活动套设有用于成型工件下底面的下二冲;下二冲上活动套设有用于成型工件上部台阶下表面及工件下段侧面的下一冲,下一冲上设有两个用于成型工件上方孔的成型块,成型块全周设有5°的拔模角,成型块底部与下一冲间设有过渡圆角;上冲中部设有供芯棒上端穿入的中部通孔,上冲上设有两个与下一冲上成型块相配合的定位通孔,上冲底端设有与待成型工件上端面相配合的凸起部。

标签:
电冶金技术
江苏 - 苏州 来源:中冶有色网 2023-03-18
粉末冶金电动工具零件强度实验装置

本实用新型公开了一种粉末冶金电动工具零件强度实验装置,包括:治具基座,所述治具基座中间设有底座治具,所述底座治具内部设有导套,底座治具内部在导套的上部设有产品限位;所述导套内设有配设的导柱,所述导柱顶部设有扭转测头,所述扭转测头侧部设有扭转工作块,所述扭转测头顶部设有多用连接口;本实用新型模拟了用户端对材料的实际工况需求,替代了涡流探伤和磁粉探伤,提升了检验效率降低了检验成本,更近一步的保证了产品的使用安全性。

标签:
电冶金技术
江苏 - 苏州 来源:中冶有色网 2023-03-18
湿法冶金提取贵金属的两性离子交换树脂制备方法

本发明揭示了湿法冶金提取贵金属的两性离子交换树脂制备方法,包括以下步骤:制备聚合物微球,微球加入胺化剂作用,得到胺化微球;胺化微球引入弱酸基团,得到两性离子交换树脂。本发明实现了得到高选择性,高交换量,易解析的树脂。

标签:
电冶金技术
江苏 - 苏州 来源:中冶有色网 2023-03-18
水冷式陶瓷粉末冶金模具

本实用新型公开了模具领域的一种水冷式陶瓷粉末冶金模具,包括上模具,上模具下端安装有下模具,上模具和下模具内部均设置有限位槽,限位槽内部安装有循环液管道,下模具外侧下端安装有安装座,安装座内部安装有多个限位螺母,上模具上端四角均设置有镂空洞,通过上模具和下模具内部均设置限位槽,限位槽内部安装循环液管道,使模具可实现水冷散热,提高模具的散热速度,有效提高模具的功能性;通过下模具外侧下端安装有安装座,安装座内部安装有多个限位螺母,通过多个限位螺母的安装,可将模具固定,使模具在使用时可有效限位,避免冲头下压时模具安装不稳固导致模具损坏,有利于对模具的维护,提高模具的实用性。

标签:
电冶金技术
江苏 - 苏州 来源:中冶有色网 2023-03-18
粉末冶金注射成型模具
粉末冶金注射成型模具 1131     
 0

本实用新型揭示了一种粉末冶金注射成型模具,包括:定模组件,包括定模板,定模板上设置有一体成型的用于冲压成定模仁;动模组件,包括第二动模仁板以及收容于第二动模板中的第一动模仁板,第一动模仁板与第二动模仁板上分别设有与定模仁对应的齿形凹槽与圆形凹槽,动模仁与套设于其外侧的顶针延伸至上述凹槽中,与定模仁紧密配合形成产品形腔。本实用新型采用通过互为同心圆的定模与动模组件来实现精定位,保证齿形与内孔的同轴度,在定模仁内设施三点式进胶口,来控制注射成型过程的圆度失圆变形量,同时顶针设计既可以用于形成产品形腔也可用作顶出推管将产品顶出,实现了简单部件的多功能应用,简化了设计。

标签:
电冶金技术
江苏 - 苏州 来源:中冶有色网 2023-03-18
粉末冶金高性能可变量机油泵转子及其生产工艺

本发明公开了一种粉末冶金高性能可变量机油泵转子及其生产工艺,该机油泵转子由以下质量百分比的原料制备而成:C为0.63%‑0.76%、Cu为1.78%‑2.23%、Mo为1.32%‑1.65%,余量为Fe。采用本发明所述生产工艺生产的可变量机油泵转子,耐磨性和疲劳强度具有较大的提高;槽宽公差能保证0.03的精度,避免后续对转子槽的精磨,大大节约了制造成本。因此,采用本发明所述生产工艺制备的机油泵转子具有较高的性能。

标签:
电冶金技术
江苏 - 苏州 来源:中冶有色网 2023-03-18
耐磨耐腐蚀镍基复合材料及其粉末冶金制备方法

本发明公开了一种耐磨耐腐蚀镍基复合材料及其粉末冶金制备方法,按以下原料重量份数配比制成:铜粉15-30份、铁粉12-25份、氧化锌13-32份、氧化铝8-21份、碳化硅2-8份、二氧化硅1-7份、镍粉35-65份。上述各组分经混合、烧结、冷却即可获得一种耐磨耐腐蚀镍基复合材料。

标签:
电冶金技术
江苏 - 苏州 来源:中冶有色网 2023-03-18
新型锥度补粉的粉末冶金成形模具

本发明是一种新型锥度补粉的粉末冶金成形模具,包括芯棒,所述芯棒工作端面与成型上冲工作端面相对配合,芯棒工作侧面配合套接有成型下冲,成型下冲外侧配合套接有成型中模,成型下冲的后端面依次压接有成型压垫和转接垫,成型压垫、转接垫通过成型边芯棒与芯棒窄轴段配合套接,芯棒末端轴肩处卡接有芯棒压盖,其中,在所述芯棒工作端面或者成型中模上半部分设置有3°~5°的锥度。采用本发明技术方案,可以有效的预防压坯在压制成形时各部分密度的不均匀性,同时并明显降低的压坯在成形过程中出现裂纹的质量风险。

标签:
电冶金技术
江苏 - 苏州 来源:中冶有色网 2023-03-18
金属粉末冶金制品烧结炉的输送装置

本实用新型公开了一种金属粉末冶金制品烧结炉的输送装置,属于金属粉末加工设备技术领域,包括贯穿烧结炉本体的传动链条,所述烧结炉本体的两侧均设置有支撑轴,所述支撑轴用于装配驱动所述传动链条的限位辊筒,所述限位辊筒的两侧均固定连接有限位盘,所述限位辊筒外表面的前后两端均固定套接有传动齿环。本实用新型能够在保障网状承载带稳定输送的同时,为其提供足够的支撑力和支撑平面,从而使得承载带顶部的表面在传送时,使其保持极高的平整度,避免金属制品在传送的过程中出现倾斜或倾覆的问题,也能够将烧结炉本体内部的火焰均匀分布到承载带内壁的底部,并提高各处火焰的集中度,从而提高金属制品的热处理的效果和效率。

标签:
电冶金技术
江苏 - 苏州 来源:中冶有色网 2023-03-18
冶金粉末用犁体结构混料装置

本实用新型涉及一种冶金粉末用犁体结构混料装置,包括:左、右两个轴架,以及通过两侧面圆心处连接在轴架转轴上的扁圆罐,扁圆罐周向的内壁设有若干个顺次排布的弧面隆体,弧面隆体表面设有若干个犁体,弧面隆体分为弧面平滑过渡的第一隆体和第二隆体,第一隆体曲率半径大于第二隆体曲率半径,犁体排布在所述第一隆体上。在扁圆罐内依次设有弧面隆体,在扁圆罐沿轴旋转时,粉末会在重力和惯性共同作用下朝向弧面隆体撞击,板结或者结块的粉末会被打散,同时粉末也能得到充分的混合;弧面隆体设有的两个曲率半径不同的部分,能将粉末进行多次的分层搅拌混合;柔性半环和钉柱也能对粉末进行花散混合,混合从内个微小的局部进行,混合较为彻底。

标签:
电冶金技术
江苏 - 苏州 来源:中冶有色网 2023-03-18
冶金用水冷辊
冶金用水冷辊 768     
 0

本实用新型公开了一种冶金用水冷辊,包括:辊子,在辊子上套装有支撑辊,在支撑辊与辊子之间设置有水冷槽,在辊子中开设有相连通的连接孔和水冷孔,在位于水冷槽内的辊子的侧壁上开设有两个通孔,两个通孔均与水冷孔相连通,在连接孔中设置有转接头,在转接头中开设有与连接孔相连通的出水槽,水冷管穿过转接头后伸入到水冷孔中,在水冷管与水冷孔之间设置有密封环,且密封环位于两个通孔之间,水冷管的左侧端与双通路旋转接头的进水口相连,双通路旋转接头的出水口与转接头中的出水槽相连通。本实用新型的优点在于:能够提高辊子的使用寿命,还能提高冷却效果。

标签:
电冶金技术
江苏 - 苏州 来源:中冶有色网 2023-03-18
铁基粉末冶金机械零件车削装置

本实用新型公开了一种铁基粉末冶金机械零件车削装置,包括车床导轨,车床导轨的顶部活动安装有车床拖板,车床拖板的前后两侧均活动安装有清理盒,清理盒的内壁固定安装有固定柱,固定柱的表面活动安装有活动套柱,活动套柱的左右两侧均一体形成有第一斜齿轮,活动套柱的表面固定套装有从动齿轮。上述方案中,通过在车床拖板的前后安装清理盒,在移动车床拖板的同时转动转动清理刷,可以使得转动清理刷提前对车床导轨的顶面进行清理,避免金属废屑附着在车床导轨的顶部影响车床拖板的使用;并通过设置的调节螺栓可以控制清理盒的上下移动,及时使刷毛紧贴车床导轨的顶面,避免转动清理刷的刷毛磨损严重失去清理效果。

标签:
电冶金技术
江苏 - 苏州 来源:中冶有色网 2023-03-18
纳米级粉末冶金双棘爪汽车门锁机构

本实用新型公开了一种纳米级粉末冶金双棘爪汽车门锁机构,包括与固定锁柱相卡合的主棘爪,以及与主棘爪联动的辅助棘爪,所述主棘爪包括锁紧棘爪,所述锁紧棘爪的中心固定连接有第一棘爪转轴,所述第一棘爪转轴的外壁套接有第一扭簧,所述辅助棘爪包括限位棘爪主体,所述限位棘爪主体的中心固定连接有第二棘爪转轴,所述第二棘爪转轴的外壁套接有第二扭簧,所述限位棘爪主体的中心开设有定位孔;所述辅助棘爪的后端设置有锁紧机构。本实用新型通过设计简单的主棘爪、辅助棘爪以及锁紧机构,既能实现汽车车门的正常锁紧固定,同时其简单的结构设计也便于日常的保养维护,在发生故障的情况下,也可以快速进行维修,检修方便快捷。

标签:
电冶金技术
江苏 - 苏州 来源:中冶有色网 2023-03-18
镍铁基减摩粉末冶金复合材料及其制备方法

本发明公开了一种镍铁基减摩粉末冶金复合材料及其制备方法,成分及各成分质量百分含量为:铜1.0%~2.5%,镍3.8%~6.2%,钛0.28%~1.65%,铬1.0%~2.7%,锌0.68%~2.65%,润滑剂0.5%~2.6%,石墨1.2%~2.4%,硬脂酸盐?1.5%~2.9%,余量为铁。所述润滑剂为石蜡或者硅油。所述硬脂酸盐为硬脂酸钡或者硬脂酸锌。通过金属成分的组合,添加润滑剂,有效提高复合材料的耐磨性能以及烧结-淬火后的力学性能,特别适用于制作轴承、支承衬套等对摩擦性能要求高的部件,可以延长使用寿命,降低成本;制备方法简单,适合大规模工业生产。

标签:
电冶金技术
江苏 - 苏州 来源:中冶有色网 2023-03-18
压制烧结进气座圈用粉末冶金材料

本发明提供了一种压制烧结进气座圈用粉末冶金材料,包括质量组分C:0.8~1.3%、Cr:1.5~3.0%、Mo:1.0~3.0%、Co:3.0~6.5%、Ni:0.5~2.0%、MnS:0.8~1.5%、P:0.05~0.3%、V:0.2~0.5%、脂肪酸二酰胺:0.3~2.0%、余量为Fe和不可避免的杂质。脂肪酸二酰胺替代硬脂酸锌作为润滑剂可以有效避免烧结过程中炉膛结垢的问题,同时脂肪酸二酰胺完成挥发有利于高温烧结合金化。材料中添加防偏析剂和易切削剂,保证成品不会产生偏析的情况,有利于切削,保证切削面的尺寸精度和表面粗糙度。

标签:
电冶金技术
江苏 - 苏州 来源:中冶有色网 2023-03-18
内齿轮粉末冶金用成型模具

本发明公开了一种成型细致、成品使用性能佳的内齿轮粉末冶金用成型模具,包括中模座、用于成型工件上表面的上冲、下冲、穿设在下冲中部轴向通孔中的芯棒,中模座中设有中模芯,中模芯内上段上周向均布有若干成型工件外周间隔块的外成型槽口,中模芯内中段为圆形光滑内壁,上冲中活动穿设有上二冲,上二冲下部设有一圈用于成型工件内部齿牙的成型槽,下冲轴向通孔的上部孔壁设有若干与成型槽相配合的导向成型块,导向成型块的顶部为呈倾斜状以成型工件齿牙端部斜面,中模芯下段内壁上周向布置有若干定位槽,下冲上部外侧设有若干卡入定位槽的定位凸块;芯棒上段外侧周向设有若干卡入下冲内壁上导向成型块之间间隙中的预定型块。

标签:
电冶金技术
江苏 - 苏州 来源:中冶有色网 2023-03-18
粉末冶金系统
粉末冶金系统 917     
 0

本申请公开了一种粉末冶金系统,包括熔炼炉、熔体中转容器、辊轮急冷系统、粉碎装置、除气装置和固结装置,所述熔体中转容器位于所述辊轮急冷系统的正上方,所述熔体中转容器的下方设有面向所述辊轮急冷系统的开口,该开口处设有阀门和喷嘴,通过所述熔炼炉获得的合金熔体依次经过所述熔体中转容器、辊轮急冷系统、粉碎装置、除气装置和固结装置获得成品。本发明采用平流薄带方法,提高了冷却的均匀性,熔池稳定,受的扰动小,薄带尺寸变化小,形状规则。用该方法制备的薄带显微结构非常小,合金性能非常的稳定和优异。

标签:
电冶金技术
江苏 - 苏州 来源:中冶有色网 2023-03-18
粉末冶金行星齿轮的加工工艺

本发明提供一种粉末冶金行星齿轮的加工工艺,包括以下步骤:按照以下质量份配料:铁,铜,稀土合金,石墨,石蜡,硫化亚锰;稀土合金中含钐,铕,钆,将所有配料搅拌均匀;压制;预热;烧结:将齿轮毛坯和金属网盒置于1020‑1150℃下进行烧结;热处理:将烧结好的行星齿轮进行淬火,温度为830‑845℃,然后在550‑580℃下进行高温回火处理,最后在155‑167℃进行低温回火处理;渗碳:在渗碳炉中进行渗碳处理,790‑830℃渗碳2‑3小时;浸油;精修。本发明制得的行星齿轮在烧结后经过热处理也不会出现变形,制得的行星齿轮的精度高,可以批量生产;行星齿轮高密度高强度,适应于各种高强度场合安装。

标签:
电冶金技术
江苏 - 苏州 来源:中冶有色网 2023-03-18
上一页 26 27 28 29 30 ... 43 下一页
共43页    到第

中冶有色为您提供最新的江苏苏州有色金属电冶金技术理论与应用信息,涵盖发明专利、权利要求、说明书、技术领域、背景技术、实用新型内容及具体实施方式等有色技术内容。打造最具专业性的有色金属技术理论与应用平台!

全国热门有色金属设备推荐
展开更多 +
全国热门有色金属技术推荐
展开更多 +

 

江西省隆恩特环保设备有限公司
宣传

报名参会
更多+

报告下载

有色专家
更多+

矿冶科技集团有限公司
所长/研究员级高工
江西理工大学
教授
矿冶科技集团有限公司工程公司
副总经理
赣州江钨钨合金有限公司
工程师
中冶沈勘秦皇岛工程技术有限公司
原矿山院院长/教授级高工
赤泥综合利用研究报告2025
推广

热门技术
更多+

推荐企业
更多+

福建省金龙稀土股份有限公司
宣传

发布

在线客服

公众号

电话

顶部
咨询电话:
010-88793500-807