青岛垚鑫智能科技有限公司
宣传

位置:中冶有色 >

有色技术频道 >

分类:
全部
矿山技术
冶金技术
材料制备及加工技术
环境保护技术
分析检测技术
地区:
全部
北京
天津
上海
重庆
河北
山西
辽宁
吉林
黑龙江
江苏
浙江
安徽
福建
江西
山东
河南
湖北
湖南
广东
海南
四川
贵州
云南
陕西
甘肃
青海
内蒙
广西
西藏
宁夏
新疆
其他
其他
展开
 
全部

有色金属技术理论与应用

免费发布技术信息>>
二级反渗透纯水机废水合理利用结构系统

本实用新型公开了一种二级反渗透纯水机废水合理利用结构系统,包括原水箱、第一水泵、RO渗透机、废水箱、第二水泵、水冷设备、纯水箱以及第三水泵,所述原水箱通过第一水泵与RO渗透机的进水口连接,所述RO渗透机的纯水出水口通向纯水箱,所述RO渗透机的浓水出水口通向废水箱,所述废水箱的出水口通过第二水泵与水冷设备连接,所述纯水箱设有出水管和回水管,所述回水管通过第三水泵与原水箱连通,与现有技术相比,本实用新型的有益效果是该种新能源汽车智能转向助力泵,设计科学合理,既节省了水资源,其节省了水资源成本高达三分之二,同时也满足工艺用水的要求,更可用于更广泛用途,一举多得。

标签:
废水处理
广东 - 广州 来源:中冶有色网 2023-03-19
废水换热循环利用系统

本实用新型公开了一种废水换热循环利用系统,包括罩体,所述罩体的外壁固接有橡胶垫,所述顶板的顶部右侧连通有竖管,所述竖管的外壁上方开设有螺纹,所述顶板的顶部左侧固接有把手,所述顶板的顶部左端固接有第一圆环,所述第一圆环的外壁活动连接有铁链,所述铁链的末端活动连接有第二圆环。该废水换热循环利用系统,废水内部的热量也不会通过细管流失,该废水换热循环利用系统最大限度的避免了在输送废水时,废水中热量的流失,并且该废水换热循环利用系统设计结构简单,便于与外界装置相连,提高传统废水换热循环利用系统的废水热利用效率,所以该废水换热循环利用系统完全可以满足人们的使用需要,适于推广使用。

标签:
废水处理
天津 - 天津 来源:中冶有色网 2023-03-19
镀镍废水处理设备
镀镍废水处理设备 877     
 0

本实用新型公开了镀镍废水处理设备,属于镀镍设备技术领域;所述的引流装置与吸附处理管道的一端连接;所述的吸附处理管道内设有吸附凸台与检测装置一;所述的吸附处理管道的另一端与废水收集池连接;所述的废水收集池内设有过滤板和检测装置二;所述的废水收集池与废水处理池通过连接输送管连接;所述的废水处理池上设有化学试剂入口;且所述的废水处理池的内壁设有吸附内层。它结构设计合理,操作方便,灵活性好,废水处理的效果好,多道过滤设备,将废水处理工艺简化了,根据实时状况进行处理,有利于提高废水处理的效率。

标签:
废水处理
江苏 - 常州 来源:中冶有色网 2023-03-19
基于树脂吸附的重金属废水处理装置及其使用方法

本发明涉及废水处理领域,尤其涉及一种基于树脂吸附的重金属废水处理装置及其使用方法,包括有支腿、第一外框、进水嘴、树脂颗粒添加框、滑盖等;两个支腿上共同安装有第一外框,第一外框顶部固定安装有进水嘴,树脂颗粒添加框固定安装于第一外框顶部,树脂颗粒添加框上滑动式连接有滑盖。通过螺杆的作用,使螺母在直线运动的同时转动,并使第二外框转动,使得搅拌扇叶对废水及树脂颗粒进行搅拌,使废水与树脂颗粒均匀混合,进而树脂颗粒能够充分将废水中的重金属吸附,达到充分去除废水中的重金属的目的。

标签:
废水处理
广东 - 深圳 来源:中冶有色网 2023-03-19
养猪场粪污废水微波综合处置系统及处理方法

本发明公开了一种养猪场粪污废水微波综合处置系统及处理方法,养猪场粪污废水微波综合处置系统,包括布袋式板框压滤机、第一管路、缓冲罐、第二管路、阵列式微波过滤装置、第三管路、微波废气高温热解装置、第四管路和净水储池;布袋式板框压滤机、第一管路、缓冲罐、第二管路、阵列式微波过滤装置、第四管路和净水储池依次连通;阵列式微波过滤装置、第三管路和微波废气高温热解装置依次连通。本发明养猪场粪污废水微波综合处置系统,水处理量大,效率高,效果好,无有害气体排放,占地面积小;整个系统可在一间厂房内完成,不受天气气候变化影响,无需室外开挖巨大的曝气池,成本低,系统运行稳定,抗风险能力强,适用于养猪场粪污废水等的处理。

标签:
废水处理
江苏 - 南京 来源:中冶有色网 2023-03-19
处理放射性废水的表面氧化的二硫化锡纳米片包裹碲纳米线的制备方法

本发明公开了一种处理放射性废水的表面氧化的二硫化锡纳米片包裹碲纳米线的制备方法,在搅拌下将TeO2缓慢添加到N2H4·H2O中,搅拌溶解,然后将十二烷基硫酸钠溶液滴入,搅拌,离心;将离心后的产物分散于水中,得到Te纳米线溶液;将十二烷基苯磺酸钠、SnCl4·5H2O和L‑半胱氨酸加入乙二醇和蒸馏水的混合溶剂中,搅拌,然后加入Te纳米线溶液,搅拌得到反应液;将反应液移入聚四氟乙烯高压反应釜中,加热反应,待反应体系冷却至室温,离心收集沉淀,用蒸馏水和无水乙醇洗涤,并在真空烘箱中干燥,得到表面氧化的二硫化锡纳米片包裹碲纳米线。本发明制备的表面氧化的二硫化锡纳米片包裹碲纳米线能够较好处理含铀废水,其对六价铀具有较高的光催化还原能力。

标签:
废水处理
四川 - 绵阳 来源:中冶有色网 2023-03-19
镉废水处理及固化镉渣的方法

本申请涉及危险废物处理技术领域,具体公开了一种镉废水处理及固化镉渣的方法。该方法包括如下步骤:废水除镉:在废水中加入除镉沉淀剂,固液分离,得到滤液和滤渣;滤液用吸附材料吸附处理,随后进入污水处理系统,处理后排放或回用;固化镉渣:将滤渣与吸附滤液后的吸附材料干燥,粉碎,得到混合颗粒;将混合颗粒、水泥、外加剂和水混合均匀,压制成型,得到固化体;防水处理:对固化体进行防水处理,即可得到填埋块。采用本申请的方法,废水处理后的滤液可直接排放或回用,而滤渣和吸附后的吸附材料被制成填埋块,直接用于安全填埋,整个处理过程中不会产生二次污染,有利于保护环境。

标签:
废水处理
北京 - 北京 来源:中冶有色网 2023-03-19
高盐废水载气萃取蒸发的反应系统

本发明涉及一种高盐废水载气萃取蒸发的反应系统,包括依次串联的载气塔、萃取处理池、油水分离器和成品水池,所述载气塔的顶部通过萃取管道连接萃取处理池的底部,萃取处理池的顶部通过溢流口连接油水分离器,油水分离器通过底部的排水口连通成品水池,所述成品水池通过回流管道连接载气塔底部的废水箱;所述载气塔内部由上至下设有喷淋管、若干个反击板和载气管道进口,分别用于喷淋、击碎和雾化高盐废水;所述萃取处理池底部设有气泡发生器,中部设有斜管填料,用于将进入萃取处理池的汽化高盐废水冷凝萃取。

标签:
废水处理
河南 - 郑州 来源:中冶有色网 2023-03-19
环境保护用印染废水回收装置

本发明公开的一种环境保护用印染废水回收装置,涉及印染技术领域,包括支撑机构,以及与支撑机构连接的电解机构、循环机构、推送机构,电解机构包括固定安装在水箱上的电解筒,阳极电解棒滑动设置在电解圆盘和电解筒之间的环形导轨中,电解圆盘上固定安装有阴极电解棒,对废水进行电解,循环机构对不合格废水循环,推送机构包括转动安装在推送滑杆上的第一齿轮、第二齿轮、第三齿轮、第四齿轮,第四齿轮与第五齿轮相互啮合,实现杂质清理,本发明通过循环机构和推送机构的联动设置解决了现有技术中无法对电解过程实时检测循环电解,电解不充分的问题,避免了废水中看不见的有害物质流出,污染环境。

标签:
废水处理
江苏 - 南通 来源:中冶有色网 2023-03-19
利用二次乏汽的节能氨氮废水处理方法及装置

本发明公开了一种利用二次乏汽的节能氨氮废水处理方法及装置,它包括以下步骤:A、含氨废水送入脱氨塔顶部,新鲜蒸汽经过蒸汽热泵从塔釜进脱氨塔,脱氨的废水符合处理要求后排出界外;B、从脱氨塔塔顶排出的一部分含氨蒸汽进入硫铵吸收塔中,塔顶放热产生出的二次乏汽在蒸汽热泵与新蒸汽混合后进入脱氨塔底部作为脱氨塔的加热能源,硫铵吸收塔的循环液浓度达到产品浓度要求时,送至界区外;C、从脱氨塔塔顶排出的另一部分含氨蒸汽在氨水综合反应器中与循环液发生传质与传热,转变为合格氨水送至界区外。本发明不仅实现废水氨氮含量达标排放,资源化回收利用,而且高效利用系统热量,使蒸汽单耗在汽提精馏脱氨基础上再降低。

标签:
废水处理
广东 - 深圳 来源:中冶有色网 2023-03-19
循环利用氯化法酸性废水的方法及应用

本发明提供了一种循环利用氯化法酸性废水的方法及应用,涉及钛白粉技术领域。具体而言,主要包括如下步骤:(1)将酸性废水和还原钛铁矿混合,充分反应后固液分离并分别得到第一滤渣和第一滤液;(2)将所述第一滤渣和所述酸性废水混合并进行酸浸反应,固液分离并分别得到第二滤渣和第二滤液;(3)所述第二滤液回流至所述酸性废水中循环利用;洗涤、干燥所述第二滤渣并得到人造金红石。所述方法制备出了质量合格的氯化法原料人造金红石,而第二滤液实现了金属离子的富集,可进入打浆罐中循环利用,具有较高的环境效益和经济效益。

标签:
废水处理
河南 - 焦作 来源:中冶有色网 2023-03-19
水热联合生物法降解高氯酸铵废水的装置及方法

本发明公开了一种水热联合生物法降解高氯酸铵废水的装置及方法,所述装置包括:Fe(0)水热一级降解单元,用于将Fe(0)和高氯酸铵废水混合,调节反应体系pH为酸性条件,进行高氯酸铵的一级还原降解;水热液冷却单元,用于对一级降解后的高氯酸铵水热液进行冷却;生物法二级降解单元,用于采用生物法对冷却后的高氯酸铵水热液进行二次降解,处理达标后排放;其中,以餐厨垃圾和垃圾渗滤液水解发酵阶段上清液作为电子供体、碳源和微量元素的来源,接种泥来自于高氯酸铵还原菌驯化阶段。本发明可显著提高高浓度高氯酸铵废水的去除效果,同时在生物法去除高氯酸铵废水过程的经济合理性和工艺可操作性方面有显著改进。

标签:
废水处理
陕西 - 西安 来源:中冶有色网 2023-03-19
高效处理水产养殖废水的方法及装置

本发明属于养殖废水处理技术领域,具体涉及一种高效处理水产养殖废水的方法及装置。本发明提出的一种高效、经济、环保处理水产养殖废水的方法及装置,将微藻引入SBR反应器:通过缺氧/好氧设置,对水产养殖废水中的抗生素以及COD、氮磷等营养物质达到有效去除和回收;本发明相对于普通的SBR反应器,在保证了对于常规有机物和营养物质去除效率的同时,提高了对抗生素的去除效果;微藻光合作用产生的氧气提供了好氧条件所需要的曝气量,运行节能;同时混合污泥具有良好的沉降性能有利于微藻的收获,通过对这些生物质的回收达到对污水中的营养物质的利用。

标签:
废水处理
上海 - 上海 来源:中冶有色网 2023-03-19
同步脱氮除磷吸附剂在氨氮及磷酸盐废水处理中的应用

本发明公开了一种同步脱氮除磷吸附剂在氨氮及磷酸盐废水处理中的应用,属于废水处理领域。本发明的同步脱氮除磷吸附剂涉及生活污水和富营养化水体的原位处理,包括菱镁石粉的煅烧产物和沸石粉,其制作步骤为:(1)菱镁石矿破碎过筛,高温煅烧,得煅烧产物;将沸石经破碎研磨,过100目筛后,得沸石粉;(2)煅烧产物和沸石粉混合后水热法合成,然后冷却,离心过滤得合成产物即为同步脱氮除磷吸附剂。本发明能够应用于含氨氮及磷酸盐废水,比如生活污水、化工废水、富营养化河道水体的原位处理。

标签:
废水处理
江西 - 景德镇 来源:中冶有色网 2023-03-19
棕榈油废水处理装置及其方法

本发明提供一种棕榈油压榨含油废水的处理方法,将棕榈油压榨含油废水通过格栅、调节池及纱网布袋过滤进行预处理,出水输送至膜处理单元,利用膜的物理分离作用,回收废水中残存的乳化状态和悬浮状态的油份;将膜处理后的产水输送至集水池加碱调节pH值,出水进入生化处理单元,通过微生物的降解作用,将水中大多数有机物除去;生化处理后的出水输送至深度处理单元,利用混凝进一步提升水质,混凝出水最终经由过滤工艺处理之后达标排放;本发明采用无机陶瓷膜处理技术耦合生化处理工艺,将膜处理技术的高效、稳定性与生化处理技术的经济性有机结合起来,在保证系统处理效果的前提下,运行成本较低,同时对废水中的有用组分实现了资源的综合利用。

标签:
废水处理
江苏 - 南京 来源:中冶有色网 2023-03-19
一步式投药荧光废水处理系统

本发明涉及废水处理技术领域,公开了一步式投药荧光废水处理系统,包括荧光废水调节池、混合反应罐、加药机、纸带过滤机、缓冲罐、氧化罐、臭氧发生器、石英砂过滤器和活性碳过滤器。荧光废水调节池通过提升泵与混合反应罐相连接,加药机与混合反应罐相连接,混合反应罐与纸带过滤机相连接,纸带过滤机与缓冲罐相连接,缓冲罐通过高压泵连接于氧化罐,氧化罐与臭氧发生器和石英砂过滤器相连接,石英砂过滤器与活性碳过滤器相连接。该系统具有工艺简单、自动化程度高、处理效果好等优点。

标签:
废水处理
江苏 - 扬州 来源:中冶有色网 2023-03-19
能将洗车废水循环再利用的洗车水供水装置

一种能将洗车废水循环再利用的洗车水供水装置,包括废水收集池,除泥砂部、中水罐、清水罐、洗车供水管、处理部以及电器控制部,废水收集池与除泥砂部的进水口相连通,除泥砂部的出水口与处理部的上部入口相连通,处理部的上部出口与中水罐的内腔相连通,中水罐中的中水与洗车供水管相连通,位于处理部下部的固料出口与洗车供水管相连通,在处理部中设置有输送机构,清水罐经阀门与洗车供水管相连接,电器控制部通过线路与输送机构、阀门以及洗车供水管的开闭阀相连接。其优点在于:汽车清洗效果好;废水以及固体清洗料能回收、处理、再利用,实用性强,节约资源,降低清洗车辆的清洗成本。

标签:
废水处理
浙江 - 宁波 来源:中冶有色网 2023-03-19
双相氧化剂体系催化氧化处理有机废水的方法

本发明属于高级氧化技术处理废水技术领域,更具体地,涉及一种双相氧化剂体系催化氧化处理有机废水的方法。以有机废水为处理对象,以液相氧化剂过硫酸盐溶液和气相氧化剂臭氧构成双相氧化剂体系,通过负载型四元水滑石结构催化剂实现氧化剂的高效活化和污染物的降解;由于负载型四元水滑石结构催化剂对于该双相氧化剂的良好催化性能,使得本发明可以减少实际废水处理工序,并达到很高的有机物去除效果。

标签:
废水处理
湖北 - 武汉 来源:中冶有色网 2023-03-19
燃机电厂废水零排放处理装置及处理工艺

本发明提供一种燃机电厂废水零排放处理装置及处理工艺,适应燃机电厂废水水量较大、水质相对较好、废水无法消纳的特点,其系统简单,成本相对较低,处理效果较好,能够使燃机电厂完全达到零排放。燃机电厂废水依次经过澄清池、调节水池、自清洗过滤器、浸没式超滤装置、活性炭过滤器、一号保安过滤器、第一级反渗透装置处理;第一级反渗透装置的浓水与电厂锅炉补给水系统中的反渗透浓水混合后依次经过反应池、浓缩池、管式微滤处理装、第二级反渗透装置处理;第二级反渗透装置的浓水与电厂锅炉补给水系统中的反渗透浓水混合后送入SWRO反渗透装置;SWRO反渗透装置的浓水送入机械蒸汽再压缩蒸发结晶系统进行蒸发结晶,最终实现零排放。

标签:
废水处理
浙江 - 杭州 来源:中冶有色网 2023-03-19
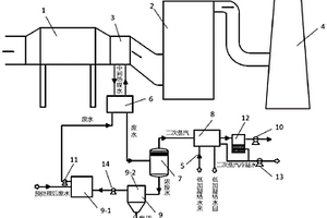
低温烟气加热废水浓缩系统

本发明提供一种低温烟气加热废水浓缩系统,闪蒸罐利用梯度真空实现了多级闪蒸,增大了脱硫废水的浓缩效果;同时多级闪蒸形成的不同温度的蒸汽分别进入连通的分壳程与第二换热介质进行梯级换热,提高了换热效果;第二换热器为管壳式结构且采用多个分壳程可以在提高蒸汽的冷凝效果的同时,减少第二换热器结构和管程连接的复杂性,降低系统设备投资费用和施工周期;烟气余热提高废水温度后参与废水闪蒸,烟气余热随蒸汽带出继而被第二换热介质回收,最终回至低加系统。在几乎未损失所回收热量的情况下,拓展了热量用途,实现了热能梯级利用,解决了常规路线利用消耗高品质热能的弊端,并降低了机组能耗。

标签:
废水处理
北京 - 北京 来源:中冶有色网 2023-03-19
互花米草与微生物联合修复含油废水的方法

本发明涉及一种互花米草与微生物联合修复含油废水的方法,在石油污染的土壤中种植互花米草,然后在土壤中接入微生物,所述微生物名称:JQ716236,保藏编号CGMCC?No.11525,保藏日期2015年10月21日,分类命名为:弧菌属Vibrio?sp.保藏单位:中国微生物菌种保藏管理委员会普通微生物中心,地址:北京市朝阳区北辰西路1号院3号。本发明通过本实验环节,证实了互花米草人工湿地系统中植物、土著菌、研究区域筛选的石油烃降解优势菌、降解时间、湿地长度各因素对含油废水中总石油烃(TPH)的去除效果。

标签:
废水处理
天津 - 天津 来源:中冶有色网 2023-03-19
冷轧电镀锡废水处理工艺

本发明公开了一种冷轧电镀锡废水处理工艺,该工艺包括如下步骤:1)将冷轧电镀锡废水输送排放至调节池中,搅拌曝气并控制调节池内pH值;2)将废水由调节池输送至铁碳微电解反应器,经曝气和布水布气后进入铁碳复合体填料层进行微电解反应;3)再将废水输送至氧化反应池,加入硫酸亚铁和双氧水,控制氧化反应池的pH值,确保出水COD小于200mg/L;4)再经中和、絮凝和沉淀处理后,出水COD≤50mg/L,SS≤30mg/L。本发明处理工艺通过对微电解、催化氧化和混凝沉淀各阶段COD的降解效果进行分段控制,避免了铁碳填料的频繁更换和强氧化环境下生物处理法容易出现细菌中毒现象,减少了生化处理设施投入和运行成本,提高了系统运行稳定性。

标签:
废水处理
湖北 - 武汉 来源:中冶有色网 2023-03-19
线路板废水的资源化处理回收的方法

本发明涉及一种线路板废水的资源化处理回收的方法,包括以下步骤:(1)破络除铜:调节线路板废水pH=2~4,再投入装有铁碳填料的破络除铜反应器中,曝气反应,调节反应器出水pH=8~9,加入絮凝剂,搅拌混凝反应,固液分离;(2)破氰除镍:调节步骤(1)得到的上清液pH=2~4,再投入装有铁碳填料的破氰除镍反应器中,曝气反应,调节反应器出水pH=8~9,加入絮凝剂,搅拌混凝反应,固液分离;(3)滤料生物滤池处理:将步骤(2)得到的上清液加入到装有脱氮除磷滤料的滤料生化处理系统中,脱氮除磷,即得到最终出水。与现有技术相比,本发明流程简单,紧凑、稳定高效,运行成本低,适用于重金属浓度较高的废水特别是线路板废水处理,具有较高推广应用价值等。

标签:
废水处理
上海 - 上海 来源:中冶有色网 2023-03-19
煤矿废水处理装置
煤矿废水处理装置 1086     
 0

本发明涉及一种煤矿废水处理装置,具体涉及一种煤矿废水处理装置,所要解决的技术问题是提供了一种结构简单、合理,容易操作,过滤效果好、运行成本低的煤矿废水处理装置,所采用的技术方案为第二罐体上部设置有第二进水管,第二罐体的底部设置有第二出水管,第二罐体内部上下分别设置有上多孔板和下多孔板,上多孔板和下多孔板之间设置有滤芯,所述第二罐体的下部还设置有排污口,所述排污口位于下多孔板的上方;本发明广泛用于煤矿废水的处理。

标签:
废水处理
山西 - 临汾 来源:中冶有色网 2023-03-19
含镍废水中镍的回收以及水体回用工艺

本发明涉及环保、化工技术领域,具体是指一种含镍废水中镍的回收以及水体回用工艺,其特征在于本工艺采用加药系统自动化控制,它包括以下步骤:废水预处理;利用管式微滤膜的浓缩能力,浓缩废水中的镍的浓度,充分回收镍;利用反渗透的淡化能力将经过管式微滤膜处理后的淡水进行脱盐处理,使最终的产水达到中水回用的标准。本发明的优点在于:体现了一体化的思路,回收金属镍,为企业降低成本费用,水体回用,降低废水排放量,同时节省用水量,节约成本,杜绝二次污染,体现循环经济思想,有效实现资源的低消耗、废物的再循环与再利用,具有较好的产业化前景。

标签:
废水处理
广东 - 深圳 来源:中冶有色网 2023-03-19
从高浸渣中综合回收金锌和废水循环再利用的方法

本发明公开了一种从高浸渣中综合回收金锌和废水循环再利用的方法,它包括高浸渣预处理、一次粗选、两次精选、三次扫选、一次中矿再选和制备碱式硫酸锌九个工艺步骤。该工艺是针对高浸渣的矿物特性而选择的最佳工艺路线。对于预处理后的高浸渣矿浆,通过一次粗选、两次精选、三次扫选、一次中矿再选提高了金回收率,科学合理选择药剂组合加入点和用量,保证各种药剂的作用时间,减小药剂量,进一步提高了金回收率和品位。废矿水制备碱式硫酸锌步骤净化了选矿废水的同时回收了硫酸锌,废水返回浮选调浆循环使用,废水可以循环使用,有利于环境保护,提高了资源利用率。

标签:
废水处理
内蒙 - 赤峰 来源:中冶有色网 2023-03-19
磁场强化铁粉提高废水厌氧处理COD去除效率的方法

一种磁场强化铁粉提高废水厌氧处理COD去除效率的方法:厌氧反应器中部设置有零价铁填充层,在厌氧反应器周围施加磁场;向厌氧反应器中废水加入杭锦2#土负载零价铁,使废水在厌氧条件下反应。本发明中磁场的加载可抑制反应过程中铁粉钝化膜的产生,减少零价铁投加量,所提供的电子促进厌氧反应体系中微生物对于COD的降解,提高废水厌氧处理COD的去除效果,缩短反应时间,提高系统的耐冲击负荷能力。

标签:
废水处理
北京 - 北京 来源:中冶有色网 2023-03-19
去除废水中总铬的复合药剂及其应用方法

本发明公开了一种去除废水中总铬的复合药剂及其应用方法,属于环境保护中废水处理领域。本发明复合药剂是由无机矿物质、无机盐、多羧基有机化合物和季铵盐复配而成,按质量百分比计,其中无机矿物质50%~60%,无机盐5%~10%,多羧基有机化合物10%~15%,季铵盐15%~35%。将上述比例制配而成的复合药剂加入到总铬浓度在10~200mg/L的废水中,加入的复合药剂与废水的质量比为1:200~1:1000,pH值为4.5~6.5,搅拌1~2小时,再进行气浮处理,浮渣用刮渣机刮除,出水即可达到国家排放标准。本发明具有原料来源广泛,价格低廉,药剂投加量相对较小,运行费用低,处理过程无二次污染,无沉淀物产生,除铬效率高,去除率可以达到99.9%以上等特点。

标签:
废水处理
江苏 - 常州 来源:中冶有色网 2023-03-19
用马铃薯茎叶的废水除臭方法

本发明属于利用农产品废弃物的马铃薯茎叶进行废水除臭方法。将马铃薯茎叶作为除臭剂对恶臭废水进行除臭,得到很理想的除臭效果,特别适用于制药工厂,化学工厂等在生产过程中产生的恶臭废水处理。由于使用的是农产品副产物,不仅使被废弃的马铃薯茎叶得到有效再利用,用马铃薯茎叶进行废水除臭还具有无害,没有二次污染,成本低廉,原料易得,操作简单,效果好,后处理容易,不需要大量投资的优点,是对环境友好型的除臭方法。

标签:
废水处理
黑龙江 - 哈尔滨 来源:中冶有色网 2023-03-19
合成氨有机废水的处理方法

一种合成氨有机废水的处理方法属于废水处理技术领域。本发明提供了 一种占地面积小、操作简单、反应条件易控制的一种合成氨有机废水的处理 方法。本发明包括如下步骤:(1)生产废水进入调节池,加入FeSO4,去除 CN-;(2)出水由水泵提升至一沉池;(3)出水进入缺氧池,NO3-N被还 原成N2,进入空气,污水则进入生物接触氧化池,BOD大部分被降解,NH4+-N 则转化为NO3--N,有机物被分解为CO2和H2O;(4)由生物接触氧化池出水 大部分回流,剩余部分则进入二沉池,二沉池出水可直接达标排放;(5) 沉淀池污泥进入污泥浓缩池,浓缩污泥由泥浆泵提升至干化场干化脱水。

标签:
废水处理
辽宁 - 沈阳 来源:中冶有色网 2023-03-19
上一页 9970 9971 9972 9973 9974 ... 10000 ... 20000 ... 30000 ... 32465 下一页
共32465页    到第

中冶有色为您提供最新的有色金属技术理论与应用信息,包括矿山技术、冶金技术、材料制备及加工技术、环境保护技术和分析检测技术等有色技术信息。打造最具专业性的有色金属技术理论与应用平台!

全国热门有色金属设备推荐
展开更多 +
全国热门有色金属技术推荐
展开更多 +

 

江西省隆恩特环保设备有限公司
宣传

报名参会
更多+

2025年10月15日 ~ 17日
2025年10月17日 ~ 19日
2025年10月31日 ~ 11月02日
2025年11月07日 ~ 09日

报告下载

有色专家
更多+

矿冶科技集团江苏北矿金属循环利用科技有限公司
书记 / 总经理
广西大学
处长/教授
武汉理工大学
外籍院士/教授
长沙矿冶研究院
总经理
矿冶科技集团有限公司工程公司
副总经理
赤泥综合利用研究报告2025
推广

热门技术
更多+

推荐企业
更多+

福建省金龙稀土股份有限公司
宣传

发布

在线客服

公众号

电话

顶部
咨询电话:
010-88793500-807