青岛垚鑫智能科技有限公司
宣传

位置:中冶有色 >

有色技术频道 >

> 固/危废处置技术

分类:
全部
矿山技术
冶金技术
材料制备及加工技术
环境保护技术
分析检测技术
 
全部
废水处理技术
大气治理技术
固/危废处置技术
土壤修复技术
地区:
全部
北京
天津
上海
重庆
河北
山西
辽宁
吉林
黑龙江
江苏
浙江
安徽
福建
江西
山东
河南
湖北
湖南
广东
海南
四川
贵州
云南
陕西
甘肃
青海
内蒙
广西
西藏
宁夏
新疆
其他
其他
展开
 
全部
长沙
株洲
湘潭
衡阳
邵阳
岳阳
常德
张家界
益阳
娄底
郴州
永州
怀化
湘西土家族苗族自治州

湖南长沙有色金属固/危废处置技术理论与应用

免费发布技术信息>>
新型生活垃圾环保处理装置

本实用新型公开了一种新型生活垃圾环保处理装置,包括处理壳,处理壳的底端四角均连接设有万向滚动轮,处理壳顶端的中部连接设有进口,进口顶端连接设有顶盖,处理壳内设有处理室,处理室顶端与进口连通设有进料通道,进料通道内设有粉碎机构,处理壳外侧连接设有废气处理筒,废气处理筒的进气端贯穿处理室侧壁设置,处理室内底部连接设有固液分离板,处理壳侧壁位于固液分离板上方设有固体出口,处理壳侧壁底部位于固液分离板下方与处理室连通设有液体出口。本实用新型与现有技术相比的优点在于:提供一种方便使用,具有废气处理,减少异味,可以进行固液分离的一种新型生活垃圾环保处理装置。

标签:
固废
湖南 - 长沙 来源:中冶有色网 2023-03-19
立式焙烧炉
立式焙烧炉 1122     
 0

立式焙烧炉,包括炉本体,其包括由中间隔墙分隔而成的左炉体和右炉体;左炉体由上往下包括蒸发室、热分解室,其上部设有进料口和低温蒸汽出口,其下部设有高温蒸汽入口和固定炉箅子;右炉体包括由倾斜隔板分隔而成的烟气室和炉膛;所述中间隔墙包括上隔墙和下隔墙,上隔墙与倾斜隔板之间为上部隔墙开口;下隔墙与倾斜隔板之间为下部隔墙开口;烟气室通过上部隔墙开口与左炉体相连,烟气室的上部设置烟气出口;炉膛通过下部隔墙开口与左炉体相连,炉膛右侧设有燃料入口,炉膛底部设置出渣机构和冷空气入口。本实用新型适用于废弃锂离子电池、稀土抛光粉废料等固体废弃物处置及特种水泥熟料的煅烧,构造简单,运行可靠,热效率高,适应范围广。

标签:
固废
湖南 - 长沙 来源:中冶有色网 2023-03-19
污水自动化处理系统
污水自动化处理系统 904     
 0

本发明公布了一种污水自动化处理系统,它包括设置在河流两岸的第一固废物处理平台和第二固废物处理平台,第一固废物处理平台与第二固废物处理平台之间分别搭建有一级固废物拦截平台和二级固废物拦截平台,一级固废物拦截平台与二级固废物拦截平台的顶部分别设置有第一轨道和第二轨道,第一轨道和第二轨道上分别安装有第一滑块和第二滑块,第一滑块和第二滑块上分别设置有一级固废物清理机构和二级固废物清理机构,第一滑块和第二滑块与电动机构连接。本发明的目的是提供一种污水自动化处理系统,能够将固废物进行拦截,同时将拦截后的固废物进行清理,解决了河流中“脏、乱、差”等问题,保护了水资源。

标签:
固废
湖南 - 长沙 来源:中冶有色网 2023-03-19
新型人工合成燃料
新型人工合成燃料 847     
 0

新型人工合成燃料一种以金属和非金属为主要成分,并利用工矿废渣、城市垃圾木屑、甘蔗渣、稻糠、煤灰、煤矸石、褐煤、劣质煤等燃料加入适量的水和粘合剂,制成的新型人工合成固体燃料,是一种解决当前能源紧张、用煤困难和城市环境污染、变劣质为优质、废物综合利用、变废为宝的新型燃料。具有成本低廉、制作简单、经济效益高、污染少、耐火强、温度高等优点。

标签:
固废
湖南 - 长沙 来源:中冶有色网 2023-03-19
餐厨垃圾处理方法及设备

本发明公开了一种餐厨垃圾处理方法及设备,包括相互连接的上料模块、发酵模块、加热模块、油水分离模块、筛选模块、造粒模块、废弃物处理模块,上料模块的输出端与发酵模块的输入端相连接,加热模块布置在发酵模块四周,控制发酵模块内的温度,发酵模块的其中一个输出端与油水分离模块的输入端相连接,发酵模块的另外一个输出端与筛选模块相连接,由筛选模块对发酵模块处理完的固体物料进行筛选,筛选模块的输出端与造粒模块的输入端相连接,发酵模块、自动筛选模块和油水分离模块的废弃物输出端与废弃物处理模块的输入端相连接。本发明实现了对餐厨垃圾的集成化处理和精准发酵,避免了分离油液的污染及转运,降低了餐厨垃圾处理的运营成本。

标签:
固废
湖南 - 长沙 来源:中冶有色网 2023-03-19
同时氧化和沉淀三价砷合成稳定臭葱石的方法

本发明涉及一种同时氧化和沉淀三价砷合成稳定臭葱石的方法。本发明采用水热的方式,加入硫酸亚铁作为沉砷剂,通入一定压力的氧气,在氧气与亚铁的协同氧化作用下,将酸性废水中的三价砷氧化为五价,并与同时氧化的铁离子沉淀形成稳定的臭葱石,其毒性浸出结果符合GB5085.3‑2007(固体废物鉴别标准‑浸出毒性鉴别)规定,可直接堆存。本发明可用于直接处理三价砷浓度较高的酸性废液,不需要添加其他强氧化剂,工艺成本低,流程简短,沉砷效率高,合成的固砷矿物稳定性高。

标签:
固废
湖南 - 长沙 来源:中冶有色网 2023-03-19
全自动流水线式硝酸钾回收工艺

本发明公开了一种全自动流水线式硝酸钾回收工艺,废料为玻璃强化后废弃硝酸钾,将废料粉碎后加入水中并加热溶解,溶解后冷却结晶,对结晶物进行水洗离心,对离心后的固体物进行干燥除湿即为成品硝酸钾。本发明是一种产能大、回收率高、回收产品质量好的全自动流水线式硝酸钾回收工艺。

标签:
固废
湖南 - 长沙 来源:中冶有色网 2023-03-19
铝硅合金棒的生产方法
铝硅合金棒的生产方法 1089     
 0

本发明属于中间合金制造技术领域,公开了一种铝硅合金棒的生产方法,包括以下步骤:S1,配料及装炉,S2,熔炼,S3、铸造,S4、锯切。选用熔炼铝灰生产的再生锭、废料和工业硅作为原料,硅含量按10‑12.5%控制;装炉顺序为:先用再生锭和废料铺底,再加工业硅,再点火升温,升温至固体料熔化,工业硅红透为准,再搅拌。本发明的有益效果、优点:1、能充分利用现有圆铸锭熔炼设备和铸造系统,不需增加设备投入。2、工艺简单,生产效率高,与传统铝硅合金生产方法相比生产效率提高近27‑30倍。3、能充分利用再生铝锭和型材废料,节约能源。4、本发明生产的铝硅合金棒成分稳定、组织均匀,用其配料铸造的圆铸锭、铸轧卷等产品质量得到明显提升。

标签:
固废
湖南 - 长沙 来源:中冶有色网 2023-03-19
植物次生代谢产物在生物质厌氧发酵中的应用

本发明属于生物质资源化利用领域,具体是提供一种植物次生代谢产物在生物质厌氧发酵中的新用途。通过向生物质厌氧发酵原料中加入植物次生代谢产物,促进微生物的活动,从而提高生物质资源厌氧发酵产甲烷的含量。本发明主要应用于秸秆等农林废弃物、芒草等能源作物、畜禽废弃物、餐厨垃圾或其它固体废弃物等生物质厌氧发酵生产沼气领域,通过向厌氧发酵体系中加入少量的植物次生代谢产物可以促进厌氧发酵的启动,提高甲烷的产率。

标签:
固废
湖南 - 长沙 来源:中冶有色网 2023-03-19
污水前置旋流分离设备
污水前置旋流分离设备 1001     
 0

本发明涉及一种污水前置旋流分离设备,包括降解器本体和设于降解器本体内的数个分离机,降解器本体包括第一降解区和第二降解区,所述第一降解区内设有过滤滚筒、第一排水区和分离机,所述第二降解区内设有压渣机脱水筛网、第二排水区和分离机,所述过滤滚筒通过下渣装置与压渣机脱水筛网连通;污水经进水口流入过滤滚筒内进行初步降解,初步降解后的第一道滤渣依次流向下渣装置和压渣机脱水筛网,初步降解后的第一道滤水经分离机一次过滤分离,再经第一排水区的下水口流向第二排水区,通过分离机二次过滤分离后再经第二排水区的出水口流出。本发明不仅可深度处理废水,且能将沸水和废渣进行干湿分离,并且可双重振动抖落膜网固体废物。

标签:
固废
湖南 - 长沙 来源:中冶有色网 2023-03-19
硫化砷渣水热稳定固化处理方法

本发明提供了一种硫化砷渣水热稳定固化处理新方法,本发明方法首先通过调节硫化砷渣的液固比、pH、氧化还原电位,然后进入高温高压水热反应釜进行固化反应,通过控制反应温度、反应压力、搅拌速率、反应时间、降温速率、冷却方式、实现硫化砷渣的水热稳定固化。本发明处理工艺简单,成本低,经济效益和环境效益明显。以冶炼、电镀、肥料(磷肥生产)、化工等行业酸性含砷废水硫化处理产生的硫化砷渣为对象,通过水热稳定固化处理后,砷浸出毒性(硫酸硝酸法,浸出方法参见HJT 299‑2007)浓度可降低至1mg/L以下,抗压强度可达到10兆帕以上,符合固体废物鉴别标准—浸出毒性鉴别(GB5085.3‐2007)的规定,可达到危险废物填埋污染控制标准(GB18598‑2001)。

标签:
固废
湖南 - 长沙 来源:中冶有色网 2023-03-19
基于种养结合的畜禽养殖场污染生态治理系统及方法

本发明涉及一种基于种养结合的畜禽养殖场污染生态治理系统,包括源头分离节水型栏舍、污染治理工厂、饲料工厂以及配套种植土地;污染治理工厂和饲料工厂由专业的团队对畜禽粪污进行专业化处置;污染治理工厂由固体高温好氧发酵系统、液体中温厌氧发酵系统、裂解与扩繁系统、加热及热量平衡系统、废气处理系统和检测控制系统组成;检测控制系统的各传感器设置在上述各系统内,对各关键参数进行设置、检测和控制。本发明对规模化养猪场养殖过程中产生的粪便、尿液等废弃物及废气进行综合处理,实现资源化利用,对农村环境保护、畜牧业良性发展,以及实施能源可持续发展战略都有着重要意义。

标签:
固废
湖南 - 长沙 来源:中冶有色网 2023-03-19
锂离子电池放电装置及其控制方法、控制器

本申请公开了一种锂离子电池放电装置及其控制方法、控制器。该装置包括电池放置组件和电能回收组件;其中:电池放置组件,用于放置待放电的锂离子电池;电能回收组件,与电池放置组件连接,用于通过消耗电池放置组件中放置的待放电的锂离子电池的电能,实现待放电的锂离子电池的放电。如此,由电能回收组件直接对电池放置组件中放置的锂离子电池进行电能消耗,实现待放电的锂离子电池的放电,提高了后续破碎过程的安全性,与相关技术的方案相比,通过直接电能消耗的方式,实现了锂电池残余电量的再次利用,没有额外的废水、固体废料等废弃物的产生,清洁环保,对电池没有腐蚀,非常安全,不需要向电网放电,无需复杂的电路结构,结构非常简单。

标签:
固废
湖南 - 长沙 来源:中冶有色网 2023-03-19
从大麻花叶中提取抗氧化成分的方法和应用

本发明涉及植物提取技术领域,公开了一种从大麻花叶中提取抗氧化成分的方法和应用。本发明所述方法将将中性纤维素酶加入到大麻花叶或提取CBD后的大麻花叶废渣中进行酶解,然后向酶解后的固体中加入乙醇进行醇提,所得的醇提液为抗氧化提取物。本发明选用特定的中性纤维素酶对大麻花叶或其提取CBD后的废渣进行处理,使包裹在大麻花叶和大麻花叶废渣内部的抗氧化活性物质暴露出来,再结合醇提方式从而提高了活性物质的转化率;相比其他纤维素酶和木聚糖酶酶解方式以及单纯醇提方式,本发明方法能够获得更高抗氧化活性的抗氧化提取物,可最大程度上的利用大麻花叶资源。

标签:
固废
湖南 - 长沙 来源:中冶有色网 2023-03-19
降低面源污染的循环净化装置

本实用新型公开了一种降低面源污染的循环净化装置,包括:第一箱体、分隔机构、第一过滤网、固体废料收集仓、传动机构、驱动机构,第一箱体设有第一腔体和第二腔体以及连通第二腔体的第一出水口,第一腔体的两端分别设有第一端盖和第二端盖,第一端盖和第二端盖均连接在第一箱体上,第一端盖上设有第一进水口,第二端盖上设有第二出水口;分隔机构分隔第一腔体为多个过滤区域,其两端分别转动安装于第一端盖和第二端盖上,第一进水口和第二出水口同时连通其中一个过滤区域;第一过滤网设置在第二出水口上;固体废料收集仓设置在第二腔体内;驱动机构、传动机构、分隔机构依次传动连接。本实用新型通过过滤污水中的杂质,达到拦截面源污染的效果。

标签:
固废
湖南 - 长沙 来源:中冶有色网 2023-03-19
利用微生物从大麻花叶中提取抗氧化成分的方法和应用

本发明涉及植物提取技术领域,公开了一种利用微生物从大麻花叶中提取抗氧化成分的方法和应用。本发明所述方法将茯苓和/或灵芝制备种子液,将种子液中的菌体接种至大麻花叶或提取CBD后的大麻花叶废渣中进行培养,然后向培养后的固体中加入乙醇进行醇提,所得的醇提液为抗氧化提取物。本发明选用在食品和化妆品目录中的茯苓和灵芝两种微生物菌对大麻花叶或其提取CBD后的废渣进行处理,使包裹在大麻花叶和大麻花叶废渣内部的抗氧化活性物质暴露出来,再结合醇提方式从而提高了活性物质的转化率;相比根霉、米曲霉的处理方式以及单纯醇提方式,本发明方法能够获得更高抗氧化活性的抗氧化提取物,可最大程度上的利用大麻花叶资源。

标签:
固废
湖南 - 长沙 来源:中冶有色网 2023-03-19
高温好氧发酵系统
高温好氧发酵系统 891     
 0

本实用新型提供一种高温好氧发酵系统。所述高温好氧发酵系统包括基座、及设于所述基座上的混料机、发酵设备和皮带输送机,所述混料机包括为桶状结构的桶体和用于搅拌桶体内物料的搅拌机构,所述桶体的顶部设有进料口,下端侧壁设有出料口;所述发酵设备为水平设置并能旋转的封闭式筒状结构,其一侧上端设有入料口,另一侧下端设有卸料口,所述卸料口上设有能打开或关闭的第一闸门组件;所述皮带输送机以向上运行的方式连接所述混料机的出料口和发酵设备的入料口。本实用新型能够有效控制进入发酵设备及自发酵设备输出的物料量,实现序批式处理有机固体废弃物,适用于小型养殖种植户,达到有机固体废物随到随处理的效果。

标签:
固废
湖南 - 长沙 来源:中冶有色网 2023-03-19
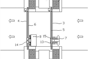
厨房垃圾用环保固液分离装置

本实用新型公开了一种厨房垃圾用环保固液分离装置,包括处理箱与收集箱,收集箱的内部开有发酵腔与积水腔,处理箱的一侧固定连接有落料箱,处理箱的内部开有粉碎腔,收集箱的内部设有固液分离装置,固液分离装置包括传输管,滤水孔与第一蜗杆,本实用新型通过转动第一蜗杆使固体垃圾向左移动,且垃圾中的废水会从滤水孔流出,最终固体垃圾被收集到发酵腔的内部,废水被收集到积水腔的内部,使固液分离的效率更高,继而使该装置具有较高的实用性。

标签:
固废
湖南 - 长沙 来源:中冶有色网 2023-03-19
螺带洗泥器
螺带洗泥器 1045     
 0

螺带洗泥器,包括减速电机、轴承装置、壳体、螺带轴、螺带、中间轴承、洗水盘管,减速电机通过轴承装置连接螺带轴,螺带焊接在螺带轴上;壳体内顶部设置洗水盘管;减速电机设置在壳体的一侧,洗水进口和快速进水口设置在壳体的另一侧;在壳体外侧分别设置悬浮物出口、视镜和液位计接口;在壳体的最低处设置排污口。本实用新型集固液均匀混合、搅拌于一体,能解决固液混合不均匀,固体废弃物中的易溶无机盐洗涤不彻底等问题,具有长时间连续稳定运行等特点,并可控制固体废弃物干基中的氯化钠含量小于1%。

标签:
固废
湖南 - 长沙 来源:中冶有色网 2023-03-19
多效蒸馏水机残液排放装置

本实用新型公开了一种多效蒸馏水机残液排放装置,包括蒸馏罐、进水管和出废水阀,所述蒸馏罐的下部侧面连接有原液输送管,且蒸馏罐的中部焊接有水位观察窗,所述原液输送管的另一端连接有三通连接管,且三通连接管的上端连接有回水管,所述进水管连接于冷凝装置上部的一侧,且进水管的中部安装有进水阀,所述出废水管的下端连接有固体过滤装置,且固体过滤装置的下端连接有活性碳过滤层,所述活性碳过滤层的下端连接有残液收集罐。该多效蒸馏水机残液排放装置设置有蒸馏残液的处理装置,对蒸馏的汽水进行了再次的过滤,使得蒸馏出的水更加的纯净,蒸馏后的残液也进行了再次的处理,处理后再进行收集以备二次使用。

标签:
固废
湖南 - 长沙 来源:中冶有色网 2023-03-19
环保处理设备
环保处理设备 1057     
 0

本实用新型公开了一种环保处理设备。本实用新型中,包括箱体,所述箱体的底部焊接有底座和支撑腿,所述箱体的顶部开设有进料口,所述箱体的内部中部焊接有安装板,所述伸缩底座的左侧末端固定安装有连接杆,且安装板的内部通过开设的安装槽固定安装有电动推杆,所述箱体的左侧内部固定安装有粉碎轮,所述箱体的底部通过导管固定连接有抽水机,所述抽水机的左侧末端固定安装有处理室,所述处理室的内部上方焊接有隔板。安装板内部的漏液孔可以对废弃物中的固体和液体进行分离,从而防止废弃物中的液体和固体混合,散发出难闻的气味,震动电机可以控制反应速率,避免反应过快带来的安全隐患,从而提高了该装置的安全性。

标签:
固废
湖南 - 长沙 来源:中冶有色网 2023-03-19
高速公路收费站的智能污水处理装置

本实用提供一种高速公路收费站的智能污水处理装置,属于污水处理技术领域,集中壳,设置于集中壳内壁的分离筒与分离壳,分离筒通过联轴器转动,分离组件,分离组件设置于集中壳的内壁处,收集组件,收集组件固定设置于集中壳的外壁底部边缘处,密封组件,密封组件设置于集中壳的内壁边角处。通过分离组件和收集组件,可以实现对污水中含有的固体杂物进行收集和集中处理,在处理的过程中,避免了污水暴露在外界环境中,通过废水和废气导致进一步的污染,提高了实际的净化效率,本方案中,通过密封组件,可以实现对集中壳进行稳定的密封,避免在净化的过程中产生污水或者固体垃圾的泄露,提高了工作的稳定性,进一步优化净化环境。

标签:
固废
湖南 - 长沙 来源:中冶有色网 2023-03-19
红土镍矿的烧结方法
红土镍矿的烧结方法 1120     
 0

本发明公开了一种基于中低温冷却热风的红土镍矿烧结的方法,包括以下步骤:将红土镍矿、返矿粉、燃料和生石灰混合得到混合料;调节混合料水分为16 wt%~18 wt%,混合制粒得到烧结料;将烧结料进行点火、烧结得到热烧结矿;烧结过程中将温度低于300℃的热风通入烧结机料面烟罩中;将冷风与热烧结矿进行热交换得到热风和冷烧结矿;冷烧结矿经破碎筛分得到成品烧结矿。本发明将低于300℃的中低温热风返回烧结机,改善烧结矿成矿条件,提高红土镍矿烧结矿强度;同时,达到对烧结矿冷却热废气的有效利用,降低固体燃耗,减少CO2排放。

标签:
固废
湖南 - 长沙 来源:中冶有色网 2023-03-19
黄瓜无土栽培基质及其制备方法

本发明提供了一种黄瓜无土栽培基质及其制备方法,包括如下重量份的原料:生物炭10~20份、发酵生物质30~60份、矿物质10~20份、鱼骨粉5~15份、贝壳粉5~15份、凹凸棒土0~10份。本发明所提供的黄瓜无土栽培基质利用生物发酵技术处理固体废弃物替代不可再生的草炭,不但降低了基质成本,而且基质中不含病原微生物、寄生虫卵与杂草种子等,固体废弃物降解为可被植物吸收利用的氨基酸、小分子肽类等小分子化合物。基质各种原料相互配合,提供黄瓜所需各种营养元素,增强黄瓜光合效率,提高黄瓜叶绿素含量,增强黄瓜对各种病虫害的抵抗力。川楝树秸秆、大蒜秸秆,具有一定的抗病驱虫效果,能够降低农药的使用,减少对环境污染。

标签:
固废
湖南 - 长沙 来源:中冶有色网 2023-03-19
分离纯化Cr6+还原的Ochrobactrum sp.菌的方法

本发明公开了一种分离纯化Cr6+还原的Ochrobactrum sp.菌的方法,解决了目前微生物处理碱性含Cr6+废水时微生物难以分离培养的问题。将采集的碱性含Cr6+废弃土壤样品用有机LB培养基富集培养一代,将其传代后用发明人改良的选择性液体培养基Cr-G传代培养;再用单层平板和改良的固体培养基划线培养。本发明能实现碱性环境中还原Cr6+的Ochrobactrum sp.细菌的分离纯化,采用单层的固体培养基以及优化的培养条件,培养成分简单,菌落形成率较高。

标签:
固废
湖南 - 长沙 来源:中冶有色网 2023-03-19
高振实密度磷酸铁的制备方法

本发明公开了一种高振实密度磷酸铁的制备方法,其包括以下步骤:1)通过液相沉淀法合成固体磷酸亚铁;2)将固体磷酸亚铁制成磷酸亚铁浆料;3)将磷酸及过氧化氢混合溶液滴加至磷酸亚铁浆料中进行反应,即得大颗粒、形貌近球形、高振实密度的磷酸铁前驱体材料;该方法操作简单,药剂耗量低,且产生的废水量少,氨氮浓度高,通过蒸发凝缩处理即可,避免了高浓度氨氮废水处理的问题。

标签:
固废
湖南 - 长沙 来源:中冶有色网 2023-03-19
从赤泥预处理得到的富钪渣中提取钪的方法

本发明涉及一种从赤泥预处理得到的富钪渣中提取钪的方法,属于有色冶金技术领域。通过对铝土矿生产氧化铝过程中产生的固体废弃物赤泥进行除铁、脱硅、除铝等预处理,得到了一种含钪高、杂质少的富钪渣。本发明通过酸浸‑萃取的方法提取该富钪渣中的钪。以磷酸为浸出剂,可有效实现钪的浸出及其与有害杂质的分离,再对含钪酸浸滤液进行溶剂萃取,采用有机膦酸萃取剂P204,并选用磷酸作为萃取过程的酸介质,可实现钪的有效提取及与有害杂质的进一步分离,为后续钪的精提及纯化过程创造有利条件。本发明工艺简单、钪回收率高、杂质引入少、无乳化现象,便于大规模的工业化生产应用。

标签:
固废
湖南 - 长沙 来源:中冶有色网 2023-03-19
搅拌机清洗控制装置及搅拌站

本实用新型公开了一种搅拌机清洗控制装置及搅拌站。该搅拌机清洗控制装置包括:第一控制单元,用于控制计量系统向搅拌机投放集料和水;第二控制单元,用于控制所述搅拌机处于运转状态;第三控制单元,用于在预定时间T后,控制所述计量系统向所述搅拌机投放粉料。与现有技术相比,本实用新型能够在生产混凝土(或砂浆)的过程中实现搅拌机内部沾料的清洗,既无需搅拌机停机处理,也无需人工介入具体清洗工作以及配备高压清洗设备,因而不但能有效提升搅拌机在生命周期中的使用效率和价值,而且清洗及时、几乎不会产生额外的清洗成本;另外,本实用新型的方案在清洗过程中,不会产生“三废”,即废气(灰尘)、废水和固体废弃物,更为节能环保。

标签:
固废
湖南 - 长沙 来源:中冶有色网 2023-03-19
提高硫酸烧渣品位的一种方法

提高硫酸烧渣品位的一种方法,是将硫铁矿、硫磺、磁黄铁矿、含硫磁铁矿相互混合后在沸腾炉中焙烧制备硫酸得到高品位硫酸烧渣。本发明硫铁矿、硫磺、磁黄铁矿、含硫磁铁矿相互混合后在沸腾炉中焙烧制备硫酸,得到铁质量百分含量≥55%的硫酸烧渣。本发明使矿山开采产生的尾矿磁黄铁矿、含硫磁铁矿、提高品位后硫酸烧渣得到综合利用,并有效的减少了尾矿及固体废弃物,具有显著的环境与经济效益。

标签:
固废
湖南 - 长沙 来源:中冶有色网 2023-03-19
稻壳零排放分解炉
稻壳零排放分解炉 1041     
 0

本发明公开了一种稻壳零排放分解炉,其特征在于它包括物料输送系统、催化剂喷洒系统、分解系统、分离系统,所述的物料输送系统位于催化剂喷洒系统上方,催化剂喷洒系统位于分解系统上方,分解系统位于分离系统上方。通过本发明创造能够得到分解物为可燃气、生物质提取液、固体稻壳炭。可燃气可用于发电;稻壳气化发电项目无废气、废水排放,无环境污染,具有节约能源、保护环境;固体稻壳炭可用于制备碳基复合粉,新型炭基复合肥可以增加土壤孔隙,保水保肥、提高肥料利用率30%,可以缓解土壤板结;吸附土壤中重金属,降低粮食作物中重金属含量40%,提高粮食品质,增加产量14%;对农业循环经济和可持续发展、保护国家粮食安全意义重大。

标签:
固废
湖南 - 长沙 来源:中冶有色网 2023-03-19
上一页 32 33 34 35 36 ... 53 下一页
共53页    到第

中冶有色为您提供最新的湖南长沙有色金属固/危废处置技术理论与应用信息,涵盖发明专利、权利要求、说明书、技术领域、背景技术、实用新型内容及具体实施方式等有色技术内容。打造最具专业性的有色金属技术理论与应用平台!

全国热门有色金属设备推荐
展开更多 +
全国热门有色金属技术推荐
展开更多 +

 

江西省隆恩特环保设备有限公司
宣传

报名参会
更多+

报告下载

有色专家
更多+

江西铜业集团有限公司
党委书记、董事长
任灵宝金源矿业股份有限公司
技术发展部经理
中国矿业大学(北京)
教授
北京科技大学
副院长/教授
北京工业大学、中国工程院
中国工程院 院士
赤泥综合利用研究报告2025
推广

热门技术
更多+

推荐企业
更多+

福建省金龙稀土股份有限公司
宣传

发布

在线客服

公众号

电话

顶部
咨询电话:
010-88793500-807