青岛垚鑫智能科技有限公司
宣传

位置:中冶有色 >

有色技术频道 >

分类:
全部
矿山技术
冶金技术
材料制备及加工技术
环境保护技术
分析检测技术
地区:
全部
北京
天津
上海
重庆
河北
山西
辽宁
吉林
黑龙江
江苏
浙江
安徽
福建
江西
山东
河南
湖北
湖南
广东
海南
四川
贵州
云南
陕西
甘肃
青海
内蒙
广西
西藏
宁夏
新疆
其他
其他
展开
 
全部

有色金属技术理论与应用

免费发布技术信息>>
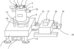
利用碱渣废水提取五水硫代硫酸钠的装置

本实用新型提出一种利用碱渣废水提取五水硫代硫酸钠的装置,包括依序连接的:碱渣废水输送管、进料泵、过滤器、冷析换热器、冷析结晶器、离心机和出料仓,冷析换热器上连接有制冷机,离心机上部设置有清洗液输送管、下部设置有外排液输送管。本实用新型采用冷析分离技术对碱渣废水进行处理,最终提取到五水硫代硫酸钠,碱渣废水中硫脱除效率可达90%,在废水处理的同时实现资源再利用,而且投资少、占地面积小、运行成本低,值得广泛应用于石化炼化企业的碱渣废水的预处理。

标签:
废水处理
天津 - 天津 来源:中冶有色网 2023-03-19
酚氰废水处理系统
酚氰废水处理系统 1179     
 0

本实用新型属于废水处理技术领域,具体涉及一种酚氰废水处理系统。本实用新型所提供的酚氰废水处理系统,用于通过吸附剂处理酚氰废水,包括依次连接的混合装置、吸附池和固液分离装置;吸附池内纵向设置有第一隔板和第二隔板,用于在吸附池内至少围成第一吸附槽、第二吸附槽和第三吸附槽;混合装置连通第一吸附槽,固液分离装置连通第三吸附槽;第一隔板的底部开设有供固液混合物从第一吸附槽流至第二吸附槽的第一通孔,第一通孔开设有若干;第二隔板的底部开设有供固液混合物从第二吸附槽流至第三吸附槽的第二通孔,第二通孔开设有若干。本实用新型所提供的酚氰废水处理系统结构简便,容易组装,操作简单,适用于大规模如吨级以上的废水处理。

标签:
废水处理
湖南 - 娄底 来源:中冶有色网 2023-03-19
一体式车间清洗废水在线处理及回用设备

本实用新型公开了一种一体式车间清洗废水在线处理及回用设备,包括输入管道与连接管网,所述输入管道的右端设置有连接管网,所述输入管道与连接管网通过密封法兰固定连接,所述连接管网的右端设置有机械格栅,本实用新型一种一体式车间清洗废水在线处理及回用设备中通过机械格栅用于拦截清洗废水中的固体颗粒物质,隔油沉淀单元用于去除车间清洗废水中的非可溶性油性物质,调节集水单元用于集水以及调节废水的pH值,砂滤‑碳滤单元和RO处理系统用于对废水进行进一步的深度处理,污泥储存单元用于储存物化和生化过程中产生的污泥,设备控制单元实现pH自动调节和鼓风曝气功能,加药单元实现药剂的定量投加功能。

标签:
废水处理
广东 - 珠海 来源:中冶有色网 2023-03-19
带有过滤功能的淀粉废水处理装置

本实用新型公开了废水处理技术领域的一种带有过滤功能的淀粉废水处理装置,所述过滤箱的顶部右侧插接有进液管,所述分液管的底部安装有过滤管,所述沉淀箱的内腔左右两侧分别设置有第一挡板和第二挡板,所述曝气箱的顶部通过铰链安装有过滤盖板,所述曝气箱的顶部一侧设置有气泵,所述进气管贯穿过滤盖板延伸至曝气箱的内腔底部,所述进气管的底端与设置在曝气箱内腔底部的分流盘的外壁连接,该装置结构简单,通过过滤管和两组挡板对淀粉废水进行有效的过滤沉淀,最后通过曝气操作,空气在废液中形成的小气泡与废水充分接触,快速向废水中增氧,便于统一清理,杜绝淀粉生产中所产生的废水对环境的影响,减小企业成本。

标签:
废水处理
河北 - 邢台 来源:中冶有色网 2023-03-19
废水沉淀系统
废水沉淀系统 1031     
 0

本实用新型涉及一种废水沉淀系统,包括废水混合物输送管以及间隔设于该废水混合物输送管下方的主池体,其特征在于:包括设于主池体坐、右两侧且用于收集沉淀物的泥沙回收池、设于主池体前、后两侧且用于收集液体的废液回收池、设于主池体与废水混合物输送管之间切用于筛分废水的往复筛分装置以及设于主池体与各废液回收池之间且连通两者的二次筛分装置;本实用新型的有益效果:对废水的筛分效率及筛分效果高。

标签:
废水处理
浙江 - 衢州 来源:中冶有色网 2023-03-19
废水处理用加料装置
废水处理用加料装置 801     
 0

本实用新型公开了一种废水处理用加料装置,涉及废水处理技术领域,一种废水处理用加料装置,包括搅拌筒,所述搅拌筒的上方设置有电机所述电机的一侧固定连接有加料口,所述加料口的顶部固定连接有密封阀,所述电机远离加料口的一侧设置有试剂投放口,所述试剂投放口的顶部固定连接有密封卡环,所述密封卡环的底部固定连接有试剂管,所述电机的下方设置有锁紧环,所述搅拌筒的底部固定连接有固定盘,所述固定盘的底部固定连接有支撑柱。该废水处理用加料装置,通过设置加料口和试剂投放口,在使用时,通过在加料口接入废水,在试剂管内加入反应试剂,通过废水和反应试剂进行反应,通过电机的转动带动搅拌杆从而带动搅拌叶片进行搅拌。

标签:
废水处理
浙江 - 杭州 来源:中冶有色网 2023-03-19
印染废水处理达到杂用水标准的处理系统

本实用新型公开了一种印染废水处理达到杂用水标准的处理系统,包括格栅池、调节池、初沉池、污泥池、生化处理系统、二沉池、氧化塔、管式陶瓷膜和清水池,以及全系统各处理单元为实现全智能化控制而设置的液位控制器、pH控制器、流量计和压力控制器。该印染废水处理达到杂用水标准的处理系统结合各项处理技术的优点,互补彼此的缺点,逐级对废水进行处理,使废水达到最优质的出水效果,水质稳定,各处理技术衔接紧凑,智能化程度高,操作简单,使用寿命长,经过该印染废水处理达到杂用水标准的处理系统氧化处理工艺的废水,其中的微生物均已消灭,出水可做杂用水使用,安全可靠,节约水源。

标签:
废水处理
浙江 - 杭州 来源:中冶有色网 2023-03-19
高氯高钙废水化学需氧量测定系统

本实用新型提供了一种高氯高钙废水化学需氧量测定系统,包括预处理装置以及与预处理装置相连的COD检测装置;预处理装置用于将高氯高钙废水中的氯离子含量降到第一阈值以内,以及将高氯高钙废水中的钙离子含量降到第二阈值以内;COD检测装置用于检测经过预处理装置后的高氯高钙废水的化学需氧量。该系统可以通过预先降低高氯高钙废水的氯离子和钙离子的含量,再对其化学需氧量进行检测,避免了氯离子和钙离子的含量过高对化学需氧量的检测结果产生影响,使得化学需氧量的检测结果更接近真实值,有利于对废水的污染程度进行合理评估。

标签:
废水处理
江西 - 南昌 来源:中冶有色网 2023-03-19
制药废水回收提炼再利用系统

一种制药废水回收提炼再利用系统,包括集水池,所述集水池的进口处连接废水,出口处通过泵依次串联连接一级精馏釜、离心机和一级釜液池,所述一级精馏釜的顶部还通过管路连接馏出液储池,所述馏出液储池的输出端通过泵连接综合废水处理系统;所述离心机的底部连接固体外运;所述一级精馏釜与离心机之间的管路安装一分管,所述分管连接二级精馏釜,所述二级精馏釜连接产品罐,所述二级精馏釜还通过离心泵连接釜液集中池,所述釜液集中池通过回路管与二级精馏釜连通。通过采用分类预处理,对废水中难生物降解的有机物和重金属进行分离、回收,不仅大大降低污染物在废水中的浓度,改善了废水的可生化性能,承受较高的冲击负荷。

标签:
废水处理
江苏 - 无锡 来源:中冶有色网 2023-03-19
用于印染废水处理的接触氧化池

本实用新型公开了一种用于印染废水处理的接触氧化池,包括池体、填料和曝气装置,所述池体上设置有进水口和出水口,还包括:池体上方的密封盖;废水水面上方的池体或者密封盖上的通气孔;用于控制曝气管气体流入量和通气孔气体流出量相同的控流装置;用于增加废水水面压强的加压装置;用于检测压强的检测机构,并发出检测信号;以及响应于检测信号,并控制加压装置启闭的控制机构。通过气泵将空气通入密闭的池体内,实现废水水面压强增大的目的,从而增加废水中的溶氧量,提供给好氧微生物更多的氧气,使得更多好氧微生物进行新陈代谢,提高废水处理的效率;并通过压力传感器和压力调节装置控制气泵上电机的转动从而控制池体内部压力的强度。

标签:
废水处理
浙江 - 杭州 来源:中冶有色网 2023-03-19
物化法加CASS法粘胶纤维废水处理系统

本实用新型涉及一种水环境保护领域,尤其是涉及粘胶行业工艺车间酸性、碱性废水混合后的一种物化法加CASS法粘胶纤维废水处理系统。其主要是解决现有技术所存在的粘胶行业酸性废水、碱性废水混合后的综合废水处理不彻底,对废水中的Zn2+、CODcr和色度去除不达标等的技术问题。本实用新型包括酸化解析吹脱池(1),其特征在于所述的酸化解析吹脱池(1)的底部设有曝气穿孔管(2),曝气穿孔管通过气管连接鼓风机总管(3),酸化解析吹脱池连通有中和反应池(4),中和反应池连接有加药罐,中和反应池通过管路依次连接有平流沉淀池(5)、CASS生化池(6),CASS生化池的出口处设有滗水器(7)。

标签:
废水处理
浙江 - 杭州 来源:中冶有色网 2023-03-19
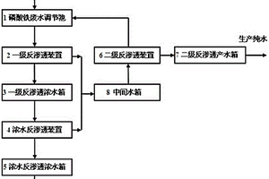
磷酸铁废水零排放处理装置

本实用新型是磷酸铁废水零排放处理装置,其结构包括磷酸铁废水调节池、一级反渗透装置、一级反渗透浓水箱、浓水反渗透装置、浓水反渗透浓水箱、二级反渗透装置、二级反渗透产水箱和中间水箱;其处理方法:(1)磷酸铁废水通过磷酸铁废水调节池、一级反渗透装置、一级反渗透浓水箱、中间水箱进行初步的浓缩与净化,分离出一级反渗透产水与一级反渗透浓水;(2)通过浓水反渗透装置、浓水反渗透浓水箱进行进一步的浓缩,回收浓水送去复合肥厂;(3)再通过二级反渗透装置、二级反渗透产水箱提纯处理,产生生产纯水回用于生产系统;二级反渗透的浓水返回磷酸铁废水调节池重新处理。优点:实现了对磷酸铁废水真正意义上的零排放处理。

标签:
废水处理
广东 - 深圳 来源:中冶有色网 2023-03-19
含铜废水回收处理系统

本实用新型提供一种含铜废水回收处理系统。一种含铜废水回收处理系统,包括双氧水储存装置,可储存双氧水;紫外辐照装置,与所述双氧水储存装置连通,可对收集的含铜废水及双氧水储存装置输送的双氧水的混合物进行紫外辐照处理制备预处理液;酸碱调节装置,与所述紫外辐照装置连通,可调节所述预处理液的pH值为7~10得到碱性废水;无机陶瓷膜过滤装置,与所述酸碱调节装置连通,可对所述碱性废水进行过滤得到浓液及可以进行排放的清液;酸化装置,与所述无机陶瓷膜过滤装置连通,可调节所述浓液的pH值为3~4得到含铜的回收液及收集装置,与酸化装置连通,可收集含铜的回收液。上述含铜废水回收处理系统可以降低污染物排放。

标签:
废水处理
广东 - 广州 来源:中冶有色网 2023-03-19
含内分泌干扰物酸洗废水的处理装置

本实用新型提供一种含内分泌干扰物酸洗废水的处理装置,中国海洋石油公司的酸洗废水成分主要是酸、金属离子以及有机物,内分泌干扰物是壬基酚聚氧乙烯醚,是一类表面活性物质,是用在海上油田涂覆过程中的一种常见有机物,会对生态造成一定的危害。通过对上述废水进行泡沫分离、芬顿氧化反应、絮凝沉淀、A2/O生化处理、CMF反应以及活性炭过滤,将废水中的有害物质进行去除,经过处理后的出水可达到《城镇污水处理厂污染物排放标准》的一级B类标准,再次用于管道的喷淋冷却。自动化程度高,能够灵活调节反应流程,能适应不同的进出水水质要求,本工艺不仅可以使COD达标排放,而且减少废水的处理费用,实现废水处理的高效性和经济性。

标签:
废水处理
天津 - 天津 来源:中冶有色网 2023-03-19
纤维素制乙醇的废水处理系统

本实用新型公开了一种纤维素制乙醇的废水处理系统,所述纤维素制乙醇的废水处理系统包括废水处理工艺方向依次连接的厌氧发酵反应装置、废水除磷反应装置、脱氮反应器和深度处理系统,其中,所述厌氧发酵反应装置包括厌氧发酵罐体、气提管和供气管,所述气提管设在所述厌氧反应室内,所述气提管的上端具有出气口且所述气提管的下端具有进气口;所述废水除磷反应装置包括除磷反应罐体、曝气装置和脱气沉淀分离器,所述除磷反应罐体内具有除磷反应室,所述除磷反应室具有进水口和除磷剂添加口,所述曝气装置设在所述除磷反应室内。根据本实用新型实施例的纤维素制乙醇的废水处理系统具有结构简单、成本低、COD和氮磷处理效果好等优点。

标签:
废水处理
上海 - 上海 来源:中冶有色网 2023-03-19
用于废水中悬浮固体的预处理装置

本实用新型涉及废水处理技术领域,具体涉及一种用于废水中悬浮固体的预处理装置,包括外壳、开关控制器和抽气机,其特征在于:所述外壳的上方设有进水口,所述外壳的中部设有第一搅碎辊轮,所述第一搅碎辊轮的下方设有第二搅碎辊轮,所述第二搅碎辊轮的下方设有过滤网,所述过滤网的下方设有振动板,所述外壳的底部设有纳米银层,所述外壳的外壁设有所述开关控制器,所述开关控制器的下方设有所述抽气机,所述抽气机的内侧设有气体过滤块所述外壳的外侧设有电机;本实用新型能高效地对废水进行固液分离,可以对废水中固体悬浮物进行充分的搅碎,可有效地消除搅碎过程中产生大量刺激性气味的气体。

标签:
废水处理
河北 - 邯郸 来源:中冶有色网 2023-03-19
移动式重金属废水处理装置

本实用新型公开了一种移动式重金属废水处理装置,包括移动组件、提升组件、支撑组件、转运组件和一体化废水处理组件;所述的移动组件上设置有提升组件;所述的支撑组件设置于所述的提升组件上,通过提升组件控制支撑组件升降;所述的支撑组件上设置有转运组件;所述的一体化废水处理组件设置于支撑组件上,通过转运组件转移。本实用新型便于转移至废水处理地点,而且能够对重金属离子进行富集回收,实现资源二次利用。

标签:
废水处理
江苏 - 南通 来源:中冶有色网 2023-03-19
基于气动脱硫单元的废水处理装置

本实用新型公开一种基于气动脱硫单元的废水处理装置,包括废液箱、气动掺混曝气过滤装置、沉淀箱、清水箱、进气口和出气口,废液箱、沉淀箱、清水箱自上而下依次同轴间隔设置,气动掺混曝气过滤装置同轴设置于沉淀箱内,废液箱包括进料口、出料口和加药口,加药口、进料口设置于废液箱的顶部,出料口设置于废液箱的底部,废液箱通过出料口与气动掺混曝气过滤装置的输入端相连接设置,气动掺混曝气过滤装置的输出端包括沉淀输出端和清水输出端,该沉淀输出端与沉淀箱相连接设置,清水输出端与清水箱相连接设置。本装置占地面积小,是一种新型废水处理一体化装置,废水处理工艺流程短,过滤效果好,结构简单,大大提高了废水处理曝气过滤效果。

标签:
废水处理
天津 - 天津 来源:中冶有色网 2023-03-19
不锈钢厂冲渣废水处理回收装置

本实用新型属于不锈钢废水处理技术领域,公开了一种不锈钢厂冲渣废水处理回收装置,外壳一侧上端设置有进水口,另一侧下端设置有出水口;所述外壳内部呈上粗下细的圆锥状,所述外壳内由上至下活动卡接有粗滤网和细滤网;所述外壳上侧设置有盖板,所述盖板与所述外壳之间设置有密封垫;所述盖板上侧中部设置有保护壳,所述保护壳内固定有电机,所述电机输出轴上设置有主轴,所述主轴贯穿所述盖板和粗滤网,所述主轴下端设置有多个搅拌叶。本实用新型结构合理,通过设置有粗、细两种滤网能够对不锈钢酸洗废水进行充分过滤,处理效果好;且通过电机和搅拌叶进行辅助搅拌,能够提高过滤效果,并且省去了人力,提高了废水处理速度,节省成本。

标签:
废水处理
广东 - 阳江 来源:中冶有色网 2023-03-19
自热活化过硫酸盐处理活性炭再生高温废水的装置

本实用新型公开了一种自热活化过硫酸盐处理活性炭再生高温废水的装置,属于废水处理技术领域。所述自热活化过硫酸盐处理活性炭再生高温废水的装置包括配药池、高温反应池和中和沉淀池,所述配药池与高温反应池之间连接有第一连接管,所述高温反应池与中和沉淀池之间连接有第二连接管;所述高温反应池外壁设有保温棉;所述中和沉淀池内设有滤网和滤头,所述滤头连接有出水管,所述出水管有两个出口,其中一个出口通向外界,另一个出口连接有回流管,所述回流管的一端与出水管连通,另一端与配药池连通。本实用新型实现了部分尾水的循环利用,节约水资源,降低处理成本,并且经济高效,结构简单,操作方便,可以有效去除高温废水中的有机污染物。

标签:
废水处理
江苏 - 无锡 来源:中冶有色网 2023-03-19
用于含油污泥处理的废水处理装置

本实用新型公开了一种用于含油污泥处理的废水处理装置,包括处理箱体、连接板,和限位机构,所述处理箱体通过固定架置于地面,所述处理箱体的前端铰链连接有箱门,所述连接板固定连接在电动伸缩杆的输出端,所述连接杆固定连接在所述处理箱体的内侧壁上,所述限位机构的单体对称设置在所述安装框的左右两端。该用于含油污泥处理的废水处理装置,能够使废水与乳化剂混合均匀,达到更好的乳化油污的效果,然后通过电动伸缩杆推动连接板在连接杆上进行滑动,增大处理箱体内部的压强,使得废水更快的通过活性炭滤网进行过滤,同时活性炭滤网通过限位机构在安装框的下端构成拆卸结构,便于对过滤出的杂质进行清理。

标签:
废水处理
黑龙江 - 哈尔滨 来源:中冶有色网 2023-03-19
颜料加工生产用的废水处理装置

本实用新型涉及废水处理技术领域,尤其涉及一种颜料加工生产用的废水处理装置。本实用新型要解决的技术问题是对废水内的渣滓进行分离和将杂质排出。为了解决上述技术问题,本实用新型提供了一种颜料加工生产用的废水处理装置,包括分拣箱、和集水箱和清理箱,所述清理箱的底部与分拣箱固定连接,所述清理箱内部的中部贯穿连接有螺纹杆,所述螺纹杆的顶部固定连接有活动块,所述活动块的顶部固定连接有过滤网板,所述分拣箱内部底部的一侧固定连接有伸缩杆,所述伸缩杆的顶部与过滤网板固定连接,所述分拣箱底部的两侧均连通有出水管,所述出水管的内部贯穿连接有旋转轴,所述旋转轴的外侧套接有涡轮,所述旋转轴的底部套接有旋转齿轮。

标签:
废水处理
浙江 - 温州 来源:中冶有色网 2023-03-19
施工用废水净化装置
施工用废水净化装置 1163     
 0

本实用新型公开了一种施工用废水净化装置,包括基板、过滤装置、水泵、进液管、反应室、定量加液装置、搅拌组件和出液管,所述过滤装置设于基板上,所述水泵连接于过滤装置,所述进液管连接于水泵,所述反应室设于基板上且连接于进液管远离水泵的一端,所述定量加液装置一端设于反应室上且另一端贯穿反应室设于反应室内,所述搅拌组件一端设于反应室外侧壁上且另一端贯穿反应室设于反应室内底壁上,所述出液管设于反应室远离进液管的外侧壁下部,本实用新型属工程施工技术领域,具体是指一种通过定量加液装置向反应室加入一定量的酸性液体,并通过搅拌装置来加速酸性溶液和废水的中和反应以达到废水排放标准的施工用废水净化装置。

标签:
废水处理
上海 - 上海 来源:中冶有色网 2023-03-19
废水处理用具有循环过滤结构的消毒设备

本发明公开了一种废水处理用具有循环过滤结构的消毒设备,涉及废水处理技术领域,包括机体、集水箱、多重过滤机构和消毒机构,所述机体的内部安装有消毒液箱,且消毒液箱的中部下方连接有接水管,所述接水管的中部设置有水阀,且接水管的下方安装有喷洒机构,所述集水箱位于消毒液箱的下方,且集水箱的左侧安装有进水机构,所述集水箱的一侧连接有连接管,且连接管的另一端设置有过滤箱,所述多重过滤机构安装于过滤箱的内部,所述过滤箱的右下方安装有水泵,且水泵的一侧连接有送水管,本发明的有益效果是:该装置通过对消毒机构的设置便于对废水进行循环流动消毒,紫外线灯的设置方便对循环水管内部废水进行照射杀菌。

标签:
废水处理
广东 - 东莞 来源:中冶有色网 2023-03-19
高效循环处理的废水处理装置

本实用新型公开了一种高效循环处理的废水处理装置,包括底座,底座顶端从左至右依次固定安装有沉淀池、第一处理筒、第二处理筒和第三处理筒,沉淀池的顶端固定安装有安装板,安装板的顶端固定安装有第一水泵,第一水泵的出水端固定连接有连通管,连通管的一端与第一处理筒顶端的一侧固定连接,第一处理筒的内部等距固定安装有多个过滤棉,第一处理筒一侧的底部固定安装有第二水泵,第二水泵的出水端与连通管的一端固定连接。本实用新型通过出液口内部安装的废水检测仪,便于对处理后的废水进行检查,达到标准打开电磁阀进行排放,未达标准打开第四水泵抽入至第一处理筒内部再次处理,有效的提高了废水处理的效果。

标签:
废水处理
江苏 - 盐城 来源:中冶有色网 2023-03-19
高效化工废水处理系统
高效化工废水处理系统 1061     
 0

本实用新型提供一种高效化工废水处理系统,包括搅拌箱,搅拌箱内设有转轴,转轴上设有螺旋推送叶,螺旋推送叶的推送面设有勾齿,搅拌箱内还设有液位计,搅拌箱外设有驱动转轴转动的驱动电机;搅拌箱的端部上方通过下料管连接至加药室,加药室的一侧连接有废水管,废水管内设有水流传感器,加药室的顶部连接有加药装置,搅拌箱的尾部下方设有出口,出口的下方顺接有沉淀池;沉淀池的内部设有斜管填料,沉淀池的底部设有泥位计,还设有排泥口,排泥口内设有第二电磁阀,排泥口的下方设有污泥池,沉淀池的侧面设有溢流口,溢流口与清水池顺接。本实用新型能够在节约资源的前提下对废水进行高效净化处理,并且结构设计简单,实用性强。

标签:
废水处理
河南 - 濮阳 来源:中冶有色网 2023-03-19
磷酸铁含氨氮废水全元素资源化处理的系统

本实用新型提供一种磷酸铁含氨氮废水全元素资源化处理的系统,包括废水储罐、第一反应装置、第一过滤装置、第二反应装置、第二过滤装置、第三反应装置、第三过滤装置、汽提脱氨装置、第四反应装置、第四过滤装置、第五反应装置、第五过滤装置、浓缩装置和pH调节装置;本实用新型废水先加氨水调节pH,把废水中多余的铁,原料带来的杂质锰、锌等杂质以碱性磷酸盐或氢氧化物的方式沉淀,避免这些杂质影响了硫酸钙的品质。

标签:
废水处理
浙江 - 杭州 来源:中冶有色网 2023-03-19
畜禽养殖废水深度处理装置

本公开揭示了一种畜禽养殖废水深度处理装置,包括:臭氧发生装置、臭氧处理池、上向流反硝化滤池、下向流反硝化滤池和反洗废水池;其中,所述臭氧发生装置的输出端至少包括第一支路,所述第一支路连接至所述臭氧处理池的第一输入端;所述臭氧处理池的第一输出端连接至所述上向流反硝化滤池的输入端;所述上向流反硝化滤池的第一输出端连接至所述下向流反硝化滤池的第一输入端,所述上向流反硝化滤池的第二输出端和所述下向流反硝化滤池的第一输出端共同连接至所述反洗废水池的输入端;所述下向流反硝化滤池还包括第二输出端,所述第二输出端用于排水。本公开能够较好的去除畜禽养殖废水中的难降解有机物,具有良好的脱氮效果,出水水质好且稳定。

标签:
废水处理
四川 - 成都 来源:中冶有色网 2023-03-19
废水处理气浮设备
废水处理气浮设备 804     
 0

本实用新型属于废水处理技术领域,具体公开了一种废水处理气浮设备,包括气浮池、吹气机构和用于清除水面浮渣的刮渣机构,气浮池的右侧设有进废水管,吹气机构包括气缸、活塞杆、连接板、第一连接管、若干个圆筒和驱动活塞杆向下移动的驱动单元,气缸内滑动设有活塞,活塞杆与活塞的顶端连接,连接板内部为空腔,气缸和连接板之间连通有第二连接管,圆筒设于气浮池内,每个圆筒与气浮池底端内侧之间连接有支撑杆,每个圆筒与连接板之间通过第一连接管连通,每个圆筒上均设有出气孔。与现有技术相比,本实用新型可以提高气浮处理废水的效率,同时本实用新型的结构简单、检修方便。

标签:
废水处理
新疆 - 乌鲁木齐 来源:中冶有色网 2023-03-19
废水净化用硅藻土净化装置

一种废水净化用硅藻土净化装置,包括机身,所述机身上端装置硅藻土加料装置,机身左侧上端装置进水管,机身右侧下端装置出水管,机身底端装置锥形集污斗,机身内部中端装置第一搅拌装置。本实用新型的一种废水净化用硅藻土净化装置,解决了现有技术中废水净化成本较高、净化效率较慢的不足,本实用新型采用硅藻土进行废水净化,净化工艺简单、净化设备体积小,易操作、净化成本低,并且净化效果好。

标签:
废水处理
黑龙江 - 哈尔滨 来源:中冶有色网 2023-03-19
上一页 10002 10003 10004 10005 10006 ... 20000 ... 30000 ... 32465 下一页
共32465页    到第

中冶有色为您提供最新的有色金属技术理论与应用信息,包括矿山技术、冶金技术、材料制备及加工技术、环境保护技术和分析检测技术等有色技术信息。打造最具专业性的有色金属技术理论与应用平台!

全国热门有色金属设备推荐
展开更多 +
全国热门有色金属技术推荐
展开更多 +

 

江西省隆恩特环保设备有限公司
宣传

报名参会
更多+

2025年10月15日 ~ 17日
2025年10月17日 ~ 19日
2025年10月31日 ~ 11月02日
2025年11月07日 ~ 09日

报告下载

有色专家
更多+

中国科学院赣江创新研究院
院长
西北稀有金属材料研究院宁夏有限公司
党委书记 / 董事长
有研科技集团有限公司
首席科学家
矿冶科技集团有限公司
党委书记 / 董事长
北京科技大学
教授
赤泥综合利用研究报告2025
推广

热门技术
更多+

推荐企业
更多+

福建省金龙稀土股份有限公司
宣传

发布

在线客服

公众号

电话

顶部
咨询电话:
010-88793500-807