青岛垚鑫智能科技有限公司
宣传

位置:中冶有色 >

有色技术频道 >

> 固/危废处置技术

分类:
全部
矿山技术
冶金技术
材料制备及加工技术
环境保护技术
分析检测技术
 
全部
废水处理技术
大气治理技术
固/危废处置技术
土壤修复技术
地区:
全部
北京
天津
上海
重庆
河北
山西
辽宁
吉林
黑龙江
江苏
浙江
安徽
福建
江西
山东
河南
湖北
湖南
广东
海南
四川
贵州
云南
陕西
甘肃
青海
内蒙
广西
西藏
宁夏
新疆
其他
其他
展开
 
全部
南京
无锡
徐州
常州
苏州
南通
连云港
淮安
盐城
扬州
镇江
泰州
宿迁

江苏苏州有色金属固/危废处置技术理论与应用

免费发布技术信息>>
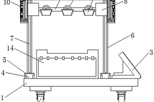
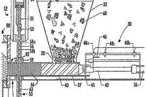
固体废物压滤装置
固体废物压滤装置 1213     
 0

本实用新型涉及一种固体废物压滤装置,包括支架(1)、压滤板(2)、动力系统、以及收集料筒;其中,支架(1)包括侧框(102),侧框(102)的一端设置有固定压板(103),侧框(102)的另一端设置有动力系统,动力系统连接滑动设置在侧框(102)上的移动压板(104),侧框(102)上位于固定压板(103)和移动压板(104)之间设置有多个压滤板(2);支架(1)中间两侧均设置有中间支撑柱,中间支撑柱底部连接有分流板(105);支架(1)下部位于分流板(105)两侧设置有第一收集料筒(5)和第二收集料筒(6)。本装置集料桶设置了过滤板,过滤板设置了一定的倾斜度,同时设置了侧框,能够将细小颗粒物进行收集。

标签:
固废
江苏 - 苏州 来源:中冶有色网 2023-03-19
用流化床热裂解可燃固体废弃物制燃气的装置及方法

本发明公开了一种用流化床热裂解可燃固体废弃物制燃气的装置与方法,装置由流化热裂解反应制气炉、灰渣分离器、送灰器、碱金属钾钠冷凝器组成。方法为:轻质物料和重质物料在流化热裂解反应制气炉的轻质物料加入口和重质物料加入口分别加入,用燃气纯氧烧嘴高温燃烧气和过热蒸汽纯氧混合气喷嘴产生的高温使轻质物料和重质物料在炉内完成热裂解气化反应;碱金属钾钠凝固器内高温燃气在冷激气的作用下,高温气体中的碱金属钾、钠冷凝并与气相中的未分离净的粉尘粘结在一起形成固态,易于分离,以保护设备免受碱金属钾钠在其上粘结凝固时造成的损害。本发明生产的燃气热值高,灰渣热灼减率低,生产过程中无二次污染。

标签:
固废
江苏 - 苏州 来源:中冶有色网 2023-03-19
新型压缩固体废物的装置

本实用新型公开了一种新型压缩固体废物的装置,是由底座,压缩工作台,压块,支架,驱动活塞,连杆和扇叶组成,所述的支架设置在底座上,底座的上端设置有压缩工作台,压缩工作台的两侧设置有压块,压块有两个,一个压块固定连接在支架上,另一个压块通过导轨活动连接在支架上,驱动活塞固定连接连杆,连杆连接扇叶,驱动活塞与压块之间设置有缓冲区。

标签:
固废
江苏 - 苏州 来源:中冶有色网 2023-03-19
工业固体废弃物处理用运输装置

本实用新型适用于运输设备领域,提供了一种工业固体废弃物处理用运输装置,包括:用于推动设备整体移动的推车;设置于所述推车顶部的送料仓;安装于所述推车顶部,且位于所述送料仓一侧的电机。本实用新型通过设置清洁机构,拉动定位销,之后便可拉拽套杆,通过套杆的移动来使第三锥齿轮与第四锥齿轮接触,之后松开定位销,此时定位销便会在伸缩弹簧的作用下扣入另一个定位孔内,以此来对套杆进行固定,之后启动电机,通过电机的运作来带动第四锥齿轮进行转动,通过第三锥齿轮、套杆带动转杆进行转动,转杆在进行转动时便会通过第二锥齿轮带动第一锥齿轮进行转动,以此来使清洁杆进行转动,从而为放置仓的清洁提供了便利。

标签:
固废
江苏 - 苏州 来源:中冶有色网 2023-03-19
道路改造固体废弃物铣刨设备

本实用新型公开了一种道路改造固体废弃物铣刨设备,包括主体、支撑架和移动组,主体的一侧安装有动力组,套筒固定于支撑架的顶端,伸缩杆均固定于推杆底端的两侧,支撑架的一侧活动连接有铣刨辊,且铣刨辊的一侧与动力组固定连接,支撑架的底端设置有移动组,移动组的外部设置有耐磨结构,移动组顶端的两侧均固定有防护结构。本实用新型通过设置有调节结构可便于将推杆的高度进行调节,在进行使用前根据使用者需要的高度对推杆进行调节,将螺栓向套筒外部拧松,此时螺栓与固定槽之间解除卡合,接着将伸缩杆向套筒顶端抽动进行调节,调节完成后将螺栓向套筒内部拧紧可使螺栓与固定槽之间卡合,完成调节,实现了便于将推杆的高度进行调节。

标签:
固废
江苏 - 苏州 来源:中冶有色网 2023-03-19
基于细菌的固体废弃物焚烧炉渣无害化强化处理方法

本发明提供了一种基于细菌的固体废弃物焚烧炉渣无害化强化处理方法。本发明处理方法为:将原始炉渣移入细菌与钙源的混合液1中,所述原始炉渣在混合液的液面以下,抽真空并超声处理,之后浸泡,固液分离得到预处理炉渣和混合液2;用尿素溶液喷洒所述预处理炉渣的表面,并将环氧树脂喷涂在所得炉渣的表面得到炉渣1;将所得炉渣1放入石灰与淀粉的混合物中并翻滚,使得炉渣1和混合物充分混合得到炉渣2;将所得炉渣2取出,并在所述炉渣2的表面喷洒所述混合液2得到炉渣3;将炉渣3表面覆盖土工布,养护5‑14天,即完成炉渣的无害化处理。本发明处理方法可有效的对炉渣材料表面裂缝进行修复,完成晶体间胶结,并大幅降低其吸水率,从而提升其强度。

标签:
固废
江苏 - 苏州 来源:中冶有色网 2023-03-19
工业固体废弃物破碎分类回收机构

本实用新型适用于破碎分类回收领域,提供了一种工业固体废弃物破碎分类回收机构,包括:主体;连接在所述主体顶端内部的破碎辊;设置在所述主体内部且位于所述破碎辊下方的输送带;设置在所述输送带一侧外壁的驱动电机;设置于所述主体的一端外壁的回收机构,用于对可回收的铁等物料进行回收。本实用新型通过设置收集机构,驱动电机工作时,将带动转动杆、第一直齿轮、第二直齿轮直到,由于第一直齿轮的外壁直径远小于第二直齿轮的外壁直径,所以第二直齿轮将缓慢转动,第二直齿轮转动将给予齿条推力,使齿条带动收集箱缓慢移动,使收集箱内部的物料逐渐移出主体的外壁,对破碎的物料进行持续的分类回收处理。

标签:
固废
江苏 - 苏州 来源:中冶有色网 2023-03-19
固体废弃物焚烧飞灰预处理系统钟型进料仓

本实用新型公开了一种固体废弃物焚烧飞灰预处理系统钟型进料仓,包括存料斗、圆罩、进料斗、连接管、法兰、升降气缸、横条、竖条、上钟、连杆、下钟和连接片。本实用新型结构合理,存料斗底部与搅拌机的进料口连接,仓体进行进料时,下钟可进行存料斗的封堵,上钟与进料斗分离,停止封堵,通过进料斗可进行上料,上料过程中,物料不直接落入搅拌机中,物料在下钟与仓体之间进行聚集以及堆积,飞灰不会被搅拌机内部的气体激出,实现飞灰和残渣的暂时存放,起到中转的作用;进行放料时,上钟进行进料斗的封堵,下钟与存料斗分离,物料可从存料斗底部流出,为搅拌机上料,放料过程,与外界处于封闭状态,从而防止飞灰外泄。

标签:
固废
江苏 - 苏州 来源:中冶有色网 2023-03-19
用流化床热裂解可燃固体废弃物制燃气的装置

本实用新型公开了一种用流化床热裂解可燃固体废弃物制燃气的装置,由流化热裂解反应制气炉、灰渣分离器、送灰器、碱金属钾钠冷凝器组成,所述流化热裂解反应炉的上部出口用管道与灰渣分离器进口连接;灰渣分离器的灰渣出口管与送灰器相连,用送灰器灰渣输送管使送灰器与炉灰渣沸腾流化反应段相连;灰渣分离器燃气出口用管道与钾钠碱金属冷凝器进口连接;钾钠碱金属冷凝器还设有冷激气进口管和燃气出口管;所述流化热裂解反应制气炉为分段流化热裂解反应制气炉或流化床热裂解反应制气炉。本实用新型生产的燃气热值高,灰渣热灼减率低,生产过程中无二次污染。

标签:
固废
江苏 - 苏州 来源:中冶有色网 2023-03-19
固体废弃物中甲醛浓度的测定方法

本发明涉及提供的固体废弃物中甲醛浓度的测定方法,分别依据质量浓度为5ug/L‑100ug/L的甲醛衍生物标准溶液绘制低浓度标准工作曲线,根据质量浓度为0.5mg/L‑10mg/L的甲醛衍生物标准溶液绘制高浓度标准工作曲线,并且绘制出的低浓度标准工作曲线和高浓度标准工作曲线的线性良好,检出的限、精密度和准确度均符合方法要求,有利于开展多范围的样品测试;降低了衍生化试剂2,4‑二硝基苯肼溶液(DNPH)的浓度为0.6mg/mL,2,4‑二硝基苯肼溶液(DNPH)属于中等毒性的危险品,降低了DNPH试剂的使用量,降低实验成本和减少污染;提高衍生化反应温度到60℃,反应温度的提高,使反应速率得到了提高,并且使衍生化反应更完全,并且不会对衍生化过程产生影响。

标签:
固废
江苏 - 苏州 来源:中冶有色网 2023-03-19
便于清理滤网上附着固体颗粒的废气过滤机构

一种便于清理滤网上附着固体颗粒的废气过滤机构,本实用新型涉及废气处理设备技术领域,通风管道的内侧壁上固定设置有安装板,安装板的左侧壁上对称固定设置有滑槽,安装架的前后侧边滑动设置在前后两滑槽内,安装架内嵌设固定有滤网,安装板的下侧边上活动插设有定位销,且定位销活动抵设在安装架的下侧边上;其在通风管道的下方设置有检修口,将安装滤网的安装架通过滑槽设置在安装板上,并通过定位销限位固定在安装板上,在需要清理滤网时,拔出定位销,即可从检修口将安装架取出,便于清洗滤网。

标签:
固废
江苏 - 苏州 来源:中冶有色网 2023-03-19
用于固体废料析出装置的储液箱

本实用新型公开了一种用于固体废料析出装置的储液箱,所述储液箱包括顶面、底面和侧壁,其特征在于:该储液箱下部容纳空间在水平面上的横截面积由上至下逐渐减小;所述储液箱具有一个入口和一个出口,所述出口设在储液箱底部。该储液箱不易残留固体杂质。

标签:
固废
江苏 - 苏州 来源:中冶有色网 2023-03-19
具有防火功能的固体废物破碎机系统

本发明公开了一种具有防火功能的固体废物破碎机系统,包括破碎机、储料坑、以及连通于所述破碎机和储料坑之间的溜槽,所述破碎机的上方设置有进料斗,该进料斗靠近破碎机的一端设置有火焰检测装置和第一灭火装置,所述溜槽的下部靠近储料坑的位置上设置有第二灭火装置,所述第一灭火装置和第二灭火装置连接于所述火焰检测装置。本发明的破碎机系统可以从破碎机的上下两头同时灭火,将火势集中在较小范围内进行扑灭操作,避免火势蔓延到储料坑内造成重大损失,是破碎系统能够正常运行的有效保障之一。

标签:
固废
江苏 - 苏州 来源:中冶有色网 2023-03-19
用于有机固体废弃物处理的蝇蛆幼虫养殖系统

本实用新型公开了用于有机固体废弃物处理的蝇蛆幼虫养殖系统,包括若干条平行布置的养殖输送线,相邻两条养殖输送线之间设有至少一平行移载机构,平行移载机构设置在养殖输送线长度方向的端部;养殖输送线上设有若干个滚桶养殖器,养殖输送线宽度方向至少一侧设有用于推动滚桶养殖器沿养殖输送线长度方向滚动的驱动系统;养殖输送线宽度方向的两侧分别设置通风系统,滚桶养殖器滚动一段距离后,滚桶养殖器两端的通风口分别与通风系统对接,平行移载机构将滚桶养殖器移载至另一条养殖输送线;还包括PLC控制装置,驱动系统、平行移载机构分别与PLC控制装置电连接。本实用新型提供的养殖系统,具有高效的有机固体废物处理效率和蝇蛆幼虫养殖效率。

标签:
固废
江苏 - 苏州 来源:中冶有色网 2023-03-19
工业固体废弃物打包处理用运转装置

本实用新型适用于工业固体废弃物处理技术领域,提供了一种工业固体废弃物打包处理用运转装置,包括:底座;固定连接在所述底座顶端的液压缸;固定连接于所述液压缸输出端、一侧设有敞口的回收箱;分别设于所述回收箱敞口处相对两侧的两组固定座。本实用新型通过设置联动机构,当回收箱向上移动的同时通过支撑杆拉动滑动座在底座顶端进行滑动的同时,拉动齿条向一端移动,从而驱动直齿轮带动伸缩杆进行转动,伸缩杆进行转动带动第二锥齿轮旋转,从而驱动第一锥齿轮带动转轴旋转,通过转轴旋转带动箱门进行转动,从而将箱门打开,通过以上多组零件的配合实现了回收箱向上移动的同时将箱门打开的功能,无需工作人员手动操作。

标签:
固废
江苏 - 苏州 来源:中冶有色网 2023-03-19
用于有机固体废弃物处理的蝇蛆幼虫养殖系统及方法

本发明公开了用于有机固体废弃物处理的蝇蛆幼虫养殖系统,包括若干条平行布置的养殖输送线,相邻两条养殖输送线之间设有至少一平行移载机构,平行移载机构设置在养殖输送线长度方向的端部;养殖输送线上设有若干个滚桶养殖器,养殖输送线宽度方向至少一侧设有用于推动滚桶养殖器沿养殖输送线长度方向滚动的驱动系统;养殖输送线宽度方向的两侧分别设置通风系统,滚桶养殖器滚动一段距离后,滚桶养殖器两端的通风口分别与通风系统对接,平行移载机构将滚桶养殖器移载至另一条养殖输送线;还包括PLC控制装置,驱动系统、平行移载机构分别与PLC控制装置电连接。本发明提供的养殖系统及方法,具有高效的有机固体废物处理效率和蝇蛆幼虫养殖效率。

标签:
固废
江苏 - 苏州 来源:中冶有色网 2023-03-19
固体污染源废气中挥发性有机物的测定方法

本发明涉及一种固体污染源废气中挥发性有机物的测定方法,包括:S1、配置标准溶液:用甲醇稀释22种VOCs混标及35种VOCs混标两种标准储备液,配制成浓度分别为2、5、10、20、30、50、100μg/mL的标准溶液,并用乙腈单独稀释混匀;S2、标准曲线绘制;S3、废气样品取样;S4、挥发性有机物含量测定。通过两种标准储备液进行测试,能够实现50余种挥发性有机物的检测,相比于现有的检测方法极大的增加了VOCs分析目标物的种类,且操作简便,灵敏度高,准确性好,能够满足固定污染源废气中VOCs的快速检测,为了解环境状况、控制环境质量提供有效的参考。

标签:
固废
江苏 - 苏州 来源:中冶有色网 2023-03-19
固体废物采样器
固体废物采样器 990     
 0

本实用新型涉及一种固体废物采样器,包括外管和插设在所述外管内的内管,所述外管的侧壁上设置有第一刻度和至少一组第一通孔,所述外管的一端螺纹连接有第一加长管,所述第一加长管上设置有第二刻度,所述内管的侧壁上设置有至少一组第二通孔,所述内管的另一端螺纹连接有第二加长管,所述外管的另一端或内管的另一端封闭。本实用新型的采样长度能够快速切换,适用不同深度的固体废物的采样,采样范围广,通过第一刻度和第二刻度及时了解采样深度,不需要重新测量,采样量足够,采样操作简单,省时省力,采样效率高。

标签:
固废
江苏 - 苏州 来源:中冶有色网 2023-03-19
环保性收集固体废弃物的设备及处理方法

本发明公开了一种环保性收集固体废弃物的设备及处理方法,包括固定架、壳体、壳体中心处的进料口和壳体顶部两侧的气体管道,气体管道与抽气装置连接,固定架与壳体固定连接,壳体从上至下依次设有加热室、破碎室、挤压室、过滤层及收集室,本发明结构简单、还可对产生废气及废液进行收集减少污染。

标签:
固废
江苏 - 苏州 来源:中冶有色网 2023-03-19
连续式化工固体废弃物无氧炭化炉

本发明公开了一种连续式化工固体废弃物无氧炭化炉,包括:固定框架、进料装置、带混合气体出口的夹套式双层炉体、出料装置、带燃烧器喷嘴、第三进气口及第四进气口的燃烧室、带第三出气口及第五进气口的混合室和夹套管道,夹套管道的内管一端与炉体的第一出气口相连通,另一端依次与第一旋风除尘器和第一风机相连接,在夹套管道的外管上设置有第二出气口和带第二风机的第二进气口;混合气体出口依次通过第一管路、第三风机与第三进气口相连通,第二出气口通过第二管路与第四进气口相连接,第三出气口通过第三管路与第一进气口相连通,第五进气口与第四风机相连接。该炭化炉连续生产性强,生产稳定,能耗低、炭化过程中无废气排放。

标签:
固废
江苏 - 苏州 来源:中冶有色网 2023-03-19
水泥窑炉固体废弃物综合利用设备

本实用新型公开了一种水泥窑炉固体废弃物综合利用设备,包括支撑筒和位于支撑筒内的搅拌破碎结构,搅拌破碎结构通过L形支架与支撑筒固定连接;搅拌破碎结构包括电机、十字形固定柱和转动架,十字形固定柱的上端穿过大锥齿轮与电机的输出轴连接,十字形固定柱的左端和右端分别连接有小锥齿轮,小锥齿轮与大锥齿轮相互啮合;转动架内安装有至少2根螺杆、2个与螺杆螺纹连接的移动块、导向杆以及2个与导向杆套接的滑块,移动块与滑块固定连接,2个滑块分别通过连接杆连接有方板,2个方板的相对一侧分别设有破碎齿,十字形固定柱的下端与导向杆的中部固定连接。本实用新型方便对固体废弃物进行破碎。

标签:
固废
江苏 - 苏州 来源:中冶有色网 2023-03-19
固体废弃物的负压分离装置

本发明公开了一种能将纸张和塑料薄膜从固体废弃物中分离出的负压分离装置,包括:依次设置的振动给料机、皮带输送机和负压滚筒分离机构,负压滚筒分离机构包括:由带有若干通孔的筒身和其两端的端盖构成的外滚筒,其内设置有中空的芯轴和由腔体内侧壁与带有若干通风孔的圆弧形的腔体外侧壁封合形成的空腔,芯轴一端封闭支承在一端端盖内壁上的轴承座中,芯轴的另一端开口并从另一端端盖上的轴承座中伸出后与风机连接,空腔与芯轴通过风道连通,外滚筒在旋转驱动装置的驱动下能绕芯轴转动、并能将固体废弃物不断向外输出;风机使位于空腔外的筒身上形成负压,纸张和塑料薄膜被吸附在空腔外的筒身上、并在该部分筒身转离空腔后脱落。

标签:
固废
江苏 - 苏州 来源:中冶有色网 2023-03-19
固体废物处理的过滤装置

本实用新型公开了一种固体废物处理的过滤装置,包括底板,所述底板的上端固定有四个垫板,所述垫板的上端固定有支撑杆,四个支撑杆的上端共同固定有粉碎箱,所述粉碎箱内设有粉碎腔,所述粉碎箱的一侧固定有两个第二驱动电机,两个第二驱动电机的输出轴均贯穿粉碎箱的侧壁并延伸至粉碎腔内,所述第二驱动电机的输出轴末端固定有第二固定杆,所述第二固定杆的一端固定有第二转动辊,所述第二转动辊的一端固定有第二转动杆。本实用新型实现了对固体废物进行粗粉碎和细粉碎的功能,解决了直接扔到环境中造成严重污染的问题,同时也解决了更换过滤网非常麻烦的问题,操作简单,方便使用。

标签:
固废
江苏 - 苏州 来源:中冶有色网 2023-03-19
固体废弃物破碎装置
固体废弃物破碎装置 981     
 0

本实用新型提供的固体废弃物破碎装置,包括机箱(1),该机箱(1)内平行设置有可相对转动的第一主轴(2)和第二主轴(3),该第一主轴(2)上平行设置有至少两个破碎刀盘(4),该第二主轴(2)上平行设置有至少两个破碎刀盘(4),上述两主轴上的破碎刀盘(4)作相嵌交错啮合,该第一主轴(2)和第二主轴(3)的一端分别设置有刀盘间距调节螺母(5),并且同一主轴上的破碎刀盘(4)之间设置有刀夹圈(7)。本实用新型提供的固体废弃物破碎装置,通过相嵌交错啮合设置的破碎刀盘以及可调节的刀盘间距,实现同时破碎弹性的、塑性的、脆性的、刚性的、柔性的、软性的、硬性的或其混合物,并且结构简单,破碎效率高。

标签:
固废
江苏 - 苏州 来源:中冶有色网 2023-03-19
固体废物低成本高效率厌氧产沼方法

本发明公开了一种固体废物低成本高效率厌氧产沼方法,所述固体废物主要是指生活垃圾。本发明的要点是:采用大容量容器对生活垃圾进行长时间密封储存,其优越性有:1.原生垃圾不分选、不粉碎,入容器密封储存后处于静态自然厌氧腐熟,故可大幅度降低运营成本;2.有足够长的腐熟周期可以确保垃圾彻底熟化;3.大容量垃圾再加上足够长的腐熟周期可以消耗大量外引污水,取得以污治污效果;4.因容器为密封构造,容器内污染物与外界环境完全隔绝,故可以实现环境效益零污染;5.由于储存垃圾的容器巨大,故每天由垃圾和污水产生的沼气量非常可观,经济效益好;6.彻底腐熟垃圾非常有利于后续综合处理工艺,如:机械分选、制作有机肥、制砖、焚烧等。

标签:
固废
江苏 - 苏州 来源:中冶有色网 2023-03-19
固体废物连续自动压缩注入装置

本实用新型公开了一种固体废物连续自动压缩注入装置,包括料斗、第一液压缸、压缩推头、压缩腔、第一连杆和进给闭合组件。料斗连接压缩腔,第一液压缸通过第一连杆连接压缩推头,压缩推头设在压缩腔内。第一开关、第二开关和第三开关设置在第一连杆上的接触结构上方。进给闭合组件包括第二液压缸、第二连杆、固定配件和滑动闭合结构,第二液压缸通过第二连杆与滑动闭合结构连接,固定配件将滑动闭合结构固定在压缩腔上。滑动闭合结构包括升降门板、第一端板、第二端板、U型接合结构、固定配件,升降门板的顶端通过U型接合结构连接第二连杆,第一端板与第二端板设置在压缩腔外。本实用新型自动化连续压缩固体废物,符合大型处理厂处理要求。

标签:
固废
江苏 - 苏州 来源:中冶有色网 2023-03-19
用于废水处理的固体加药装置

本实用新型公开了一种用于废水处理的固体加药装置,包括废水池,所述废水池的上端贯穿设有导药管,所述导药管的外侧延伸设有多个加药管口,所述加药管口的上下两端均固接有搅拌杆,所述废水池的上端安装有电机,所述电机通过传动机构驱动导药管转动,所述导药管的顶端安装有加药装置主体。本实用新型加药过程实现了定时定量的自动化控制,感应迅速准确,大大提高了加药过程的便利性,并且加药的同时搅拌杆对药物与废水进行搅拌,使得混合充分,提高了反应速度,提高了废水的处理效率。

标签:
固废
江苏 - 苏州 来源:中冶有色网 2023-03-19
废气大颗粒固体杂质分离过滤装置

本实用新型涉及一种废气大颗粒固体杂质分离过滤装置,一种废气大颗粒固体杂质分离过滤装置,包括除尘水箱,除尘水箱外端安装有导入管和导出管,导出管位于导入管左侧,除尘水箱内壁转动连接有滤板,滤板外端开凿有方孔,方孔内壁卡接有滤网,滤板外端开凿有活动槽,活动槽位于方孔的斜上方,活动槽的左右内壁均开凿有方形槽,两个方形槽内滑动连接有滑动柱,滑动柱外端转动连接有转动接头,转动接头远离滤板的一端固定连接有平移杆,除尘水箱左端开凿有与平移杆相匹配的插孔,平移杆外端固定连接有接触圆盘,可以使得过滤的大颗粒固体跟随水一起排斥,降低了工作人员对水箱的清洗难度。

标签:
固废
江苏 - 苏州 来源:中冶有色网 2023-03-19
环境监测用固体废物采样器

本实用新型公开了一种环境监测用固体废物采样器,包括支撑板,所述支撑板内转动安装有旋转座,所述旋转座贯穿所述支撑板,所述旋转座的底端固定安装有取样筒,所述取样筒上套装有螺旋刀具;本实用新型一种环境监测用固体废物采样器,通过支撑机构将取样筒固定在地面上,再开启驱动机构,驱动机构驱动旋转座旋转,从而带动取样筒旋转,取样筒旋转时带动螺旋刀具旋转,螺旋刀具旋转时逐渐带动取样筒插入土壤内,达到一定深度后,控制驱动机构反转,并向上拉动支撑板,使取样筒向上移动,然后将取样筒放平,通过推料机构将取样筒内的土壤样品推出即可,通过该采样方式取出的样品为一个整体,能够清晰的观察出各个深度的土壤情况。

标签:
固废
江苏 - 苏州 来源:中冶有色网 2023-03-19
固体废弃物中重金属的采样装置

本实用新型公开了固体废弃物中重金属的采样装置,包括采样支撑板,所述采样支撑板的底部固定安装有带刹万向轮,所述采样支撑板上端边侧的中间位置固定安装有控制面板,所述采样支撑板的上端固定安装有平行滑块,所述平行滑块的外部活动安装有滑动支撑块,所述平行滑块之间固定安装有采样收集箱,所述滑动支撑块的上端固定安装有采样支撑架,所述转动定位柱的前端固定安装有电动伸缩杆,所述电动伸缩杆的前端固定安装有采样金属切割铲。该固体废弃物中重金属的采样装置,通过设置控制面板和高强度的切割铲,使该装置可以适应各种强度的固体废弃物中重金属的采样工作,并将整体操作简单化,方便控制,扩大了整体的适用范围。

标签:
固废
江苏 - 苏州 来源:中冶有色网 2023-03-19
上一页 76 77 78 79 80 ... 81 下一页
共81页    到第

中冶有色为您提供最新的江苏苏州有色金属固/危废处置技术理论与应用信息,涵盖发明专利、权利要求、说明书、技术领域、背景技术、实用新型内容及具体实施方式等有色技术内容。打造最具专业性的有色金属技术理论与应用平台!

全国热门有色金属设备推荐
展开更多 +
全国热门有色金属技术推荐
展开更多 +

 

江西省隆恩特环保设备有限公司
宣传

报名参会
更多+

报告下载

有色专家
更多+

中国矿业大学
教授
东北大学
院长/教授
矿冶科技集团有限公司
中国工程院院士
矿冶科技集团
中国工程院院士
中国工程院 / 中南大学
中国工程院 院士
赤泥综合利用研究报告2025
推广

热门技术
更多+

推荐企业
更多+

福建省金龙稀土股份有限公司
宣传

发布

在线客服

公众号

电话

顶部
咨询电话:
010-88793500-807