青岛垚鑫智能科技有限公司
宣传

位置:中冶有色 >

有色技术频道 >

> 固/危废处置技术

分类:
全部
矿山技术
冶金技术
材料制备及加工技术
环境保护技术
分析检测技术
 
全部
废水处理技术
大气治理技术
固/危废处置技术
土壤修复技术
地区:
全部
北京
天津
上海
重庆
河北
山西
辽宁
吉林
黑龙江
江苏
浙江
安徽
福建
江西
山东
河南
湖北
湖南
广东
海南
四川
贵州
云南
陕西
甘肃
青海
内蒙
广西
西藏
宁夏
新疆
其他
其他
展开
 
全部
南京
无锡
徐州
常州
苏州
南通
连云港
淮安
盐城
扬州
镇江
泰州
宿迁

江苏苏州有色金属固/危废处置技术理论与应用

免费发布技术信息>>
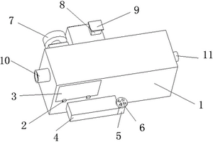
废液自动除渣系统
废液自动除渣系统 1142     
 0

本实用新型公开了一种废液自动除渣系统,包括板块压泥机、除尘塔,所述除尘塔的顶端设置有废气出口,废气出口外连接有排气管,排气管的左端连接防爆风机,所述除尘塔的下部设置有废液沉淀分离槽,废液沉淀分离槽底部设置有污水管,污水管的右端连接排泥泵,排泥泵通过管道连接板块压泥机。本实用新型的废液自动除渣系统对废气除尘后废液进入废液沉淀分离槽内,废液沉淀分离槽对废液进行固液分离,清水重复利用,污泥以及固体通过污水管、排泥泵进入板块压泥机中,将污泥挤压出去,并将清水再次利用清水回流管导入废液沉淀分离槽内再次利用,实现除渣的同时也做到了水资源的重复利用,节约资源。

标签:
固废
江苏 - 苏州 来源:中冶有色网 2023-03-19
显影液废水收集装置
显影液废水收集装置 913     
 0

本实用新型公开了一种显影液废水收集装置,包括外壳,所述外壳顶端上平面设置进液口,所述进液口下设置溶液腔,所述溶液腔下设置出液口,所述出液口设置电磁阀,所述装置一侧设置换桶机构,所述换桶机构设置三个废液桶托盘,所述废液桶托盘上设置废液桶,当装置正常使用时,装置其中一个废液桶托盘中心与出液口中心在同一直线上。通过换桶机构对废液桶进行更换,在只需要短暂停止的情况下进行废液桶的更换,将显影液生产中产出的废水收集至废液桶中,方便第三方机构进行回收处理,并且设置过滤结构进行初步的固体过滤。

标签:
固废
江苏 - 苏州 来源:中冶有色网 2023-03-19
高钾盐废水用萃取分盐耦合蒸发系统

本实用新型具体涉及一种高钾盐废水用萃取分盐耦合蒸发系统。本高钾盐废水用萃取分盐耦合蒸发系统包括:除氟机构,对高钾盐废水进行除氟处理;除浊机构,对除氟处理后的高钾盐废水进行除浊处理;蒸发机构,对除浊处理后的高钾盐废水进行蒸发结晶处理;生化机构,对蒸发结晶处理后的高钾盐废水进行生化处理。本实用新型的高钾盐废水用萃取分盐耦合蒸发系统,对高钾盐废水依次除氟、除浊后,再经蒸发机构蒸发结晶,获得固体杂盐,而后再通过生化机构对蒸发结晶处理后的高钾盐废水进行生化处理,从源头降低了排入水环境的盐,实现盐减排及资源化。

标签:
固废
江苏 - 苏州 来源:中冶有色网 2023-03-19
废旧锂离子电池回收负极制备锂离子筛复合材料的方法

本发明涉及废旧锂离子电池回收负极制备锂离子筛复合材料的方法,属于废旧锂离子电池负极的回收再利用领域。锂离子筛复合材料的制备方法,步骤为:将废旧锂离子电池破碎、筛分,得混合回收粉料,再加到硫酸和双氧水中,浸出、过滤,得滤渣;将滤渣水洗,干燥,配成5~50g/L的浆液,再加入锰盐、氧化剂和辅剂,混匀,再加入氢氧化锂溶液,得到褐色浆液;将褐色浆液水热反应后得褐色固体;将褐色固体洗涤,干燥,在含氧气氛下,300~600℃焙烧0.5~4h后得锂盐吸附剂前驱体;将褐色锂盐吸附剂前驱体酸洗脱锂,得到锂离子筛复合材料。本发明的锂离子筛复合材料,具有良好的过滤性能和提锂效率,且易过滤回收,锰溶解率低。

标签:
固废
江苏 - 苏州 来源:中冶有色网 2023-03-19
白酒废水处理和资源回收的系统

本实用新型公开一种白酒废水处理及资源回收系统,可以包括顺序相连的配水池、厌氧塔、A2/O生化池和除磷池,废水进入厌氧塔中,厌氧塔内的厌氧菌与废水中的有机物发生反应,产生沼气,沼气进入沼气收集装置中进行回收,经厌氧塔处理的废水流入A2/O生化池中,通过曝气控制厌氧、缺氧、好氧三种不同的环境条件和不同种类微生物菌群的有机配合,去除有机物、脱氮除磷,从A2/O生化池流出的废水进入除磷池中,加药装置向除磷池中投加氯化铵药剂和氢氧化镁药剂,形成鸟粪石,实现磷元素的回收,鸟粪石进入鸟粪石收集装置回收利用,在白酒废水经处理后达标排放的前提下,将处理后得到的固体废物回收利用。

标签:
固废
江苏 - 苏州 来源:中冶有色网 2023-03-19
带固液废料分离功能的环保型微生物反应装置及使用方法

本发明公开了带固液废料分离功能的环保型微生物反应装置及使用方法,属于微生物反应设备领域。带固液废料分离功能的环保型微生物反应装置,包括反应罐,所述反应罐上设有进料管和排料管,还包括:第一转轴,转动连接在所述反应罐内;其中,所述第一转轴上滑动连接有挡板,所述挡板上设有阻拦网;驱动电机,用于驱动所述第一转轴转动;电极板,固定连接在第一转轴的下端;气罐,位于所述反应罐上,内部装有含有负氧离子的气体;气仓,设置在所述反应罐侧壁;本发明,通过挡板、阻拦网的设置便于进行固液分离,升降机构便于对挡板上的固体进行收集,气罐、抽排气机构和固体废料收集机构的设置便于收集反应液中的物体颗粒。

标签:
固废
江苏 - 苏州 来源:中冶有色网 2023-03-19
采用分质纯化处理含氟废水的方法

本发明属于水处理技术领域,具体涉及一种采用分质纯化处理含氟废水的方法,本发明采用废水回用、分质提纯的思路对水洗酸洗法进行优化,达到以废治废的目的,还可降低HF等的高成本投入;做到F‑的富集,对新产生的含氯废水、含氟废水考虑以不外排的方式循环回用,提纯过程中通过控制HCl的投加量、pH、反应时间、温度、搅拌速率,综合考虑工业生产的可操作性和经济效益,使含氟污泥纯度达到制HF级的90%以上;由于没有外加原料,在不提高工程投入的条件下,不仅降低了废水水质中F‑的处理负荷,而且提高了污泥的CaF2纯度,实现了固体废物的资源化利用。

标签:
固废
江苏 - 苏州 来源:中冶有色网 2023-03-19
用于废水处理的多气压高效排屑设备

本实用新型公开了一种用于废水处理的多气压高效排屑设备,包括有废水收集箱,其特征在于:所述废水收集箱的上端导通连接有高压气体注入组件,所述废水收集箱的下端导通连接有中压气体注入组件,所述废水收集箱的一侧设置有集污箱,所述集污箱上设置有收料组件,所述高压气体注入组件的出气口与集污箱的收料组件处于共水平面。采用相互独立的高压气体注入组件与中压气体注入组件,可以在废水收集箱体形成扰动,令废屑残渣不会沉积,能够翻腾至表面,被顺利吹入,实现有效的收集。提高固体残渣,尤其是塑料废屑在废水中的去除效率,提高废水净化效率。设有独立的单向阀,避免出现废水回流,保护中压气体注入组件。

标签:
固废
江苏 - 苏州 来源:中冶有色网 2023-03-19
用于化学废水的新型混凝处理方法

本发明公开了一种用于化学废水的新型混凝处理方法,包括以下步骤:(1)调节废水的pH值,(2)加热,(3)向废水中加入混凝剂,(4)反应完成后将固体和絮状物从废水中分离,(5)向废水中加入碱性物质使其pH值大于9,(6)将废水煮沸5-10分钟。通过上述方式,本发明用于化学废水的新型混凝处理方法具有管理简便、流程简单、用途广泛、效果明显、针对性强、效率提高等优点,在用于化学废水的新型混凝处理方法的普及上有着广泛的市场前景。

标签:
固废
江苏 - 苏州 来源:中冶有色网 2023-03-19
应用于烟道废气的电子束辐照处理装置

本实用新型公开了一种应用于烟道废气的电子束辐照处理装置,包括辐照反应器,其内部固定有辐照反应腔,辐照反应腔的底部一侧成型有废气导入管道,废气导入管道与废气缓置腔连通相接;辐照反应腔的底部设置有电子束发生器。本实用新型能够利用高速电子束对导入的烟道废气进行轰击,烟道废气中的水蒸气和氧气会被电离生成强氧化基团,强氧化基团与硫氧化物和氮氧化物生成硫酸和硝酸气体,最后与氨气生成硫酸铵和硝酸铵固体,达到同时脱硫脱硝的目的,且制得有经济效益的农用肥料;本申请的电子束辐照处理装置净化效率高、净化效果好且能够将烟道废气充分发挥正向作用,既能保护环境,又能提高对自然资源的利用率,且提高了经济效益。

标签:
固废
江苏 - 苏州 来源:中冶有色网 2023-03-19
基于电镀废水处理用PH调节搅拌设备

本实用新型属于电镀废水处理技术领域,尤其是一种基于电镀废水处理用PH调节搅拌设备,针对了对电镀废水进行PH值调节时,搅拌均匀性较差和废水中的固体物质易粘附在搅拌釜的内侧壁上,造成反应不够充分的问题,现提出如下方案,其包括搅拌釜,连接环的内侧面上固定有环形搅拌机构,搅拌釜的顶端设置有位于进药口正下方的匀料机构;本实用新型通过匀料机构对液体混合药剂进行快速充分地细化,使得液体混合药剂在废水中更易化开与废水接触,增加药剂和废水充分混合的效率,设置为三个呈环形分布的环形搅拌机构将搅拌釜内的边缘处和中间位置的废水同时进行充分搅拌,避免只有搅拌釜内中间位置的废水得到搅拌的情况,加快对废水PH值调和的效率。

标签:
固废
江苏 - 苏州 来源:中冶有色网 2023-03-19
废酸中回收对氨基苯磺酸的方法

本发明公开了一种废酸中回收对氨基苯磺酸的方法,它包括以下步骤:(a)将废酸溶液置于‑5~0℃进行冷冻结晶,取下层浑浊液;所述浑浊液包括以下质量含量的组分:H2SO425~50%;对乙酰氨基苯磺酸或/和对乙酰氨基苯磺酰氯5~20%;H2O 30~55%;(b)将所述浑浊液回流以进行水解,得水解液;(c)对所述水解液进行过滤得稀酸溶液和对氨基苯磺酸固体即可。通过依次对特定工艺的废酸进行冷冻结晶、过滤、水解处理得高纯度的对氨基苯磺酸固体,可直接外面获得收益;而稀酸溶液经精馏后可套用或出售;变废为宝,减少了污染物的外排。

标签:
固废
江苏 - 苏州 来源:中冶有色网 2023-03-19
结合超滤膜和电催化法的含油废水处理工艺

本发明公开了结合超滤膜和电催化法的含油废水处理工艺,包括以下步骤:1)将含乳化液废水进行预处理;2)将废水输入超滤膜系统,进行错流过滤,浓缩其中的油脂成分、悬浮固体和其它大分子物质,使废液的体积大大减小;3)将超滤膜系统的出水输入电催化反应箱,调Ph值,加活性炭,进行电催化氧化反应;4)将电催化反应箱的出水分为两部分,上部清液回流至循环储液罐,底部浑浊液回流至超滤膜系统;使废水在超滤膜系统、电催化反应箱和循环储液罐中不停地循环;5)上述过程循环一定时间后,将循环储液罐的出水输入絮凝沉淀池,调Ph值,加药,絮凝沉淀完成后,出水输送至后续处理系统。

标签:
固废
江苏 - 苏州 来源:中冶有色网 2023-03-19
胶黏剂生产用废渣过滤装置

本实用新型公开了一种胶黏剂生产用废渣过滤装置,包括用于排出废液与粉碎废渣的箱体装置,所述箱体装置中间上下设置有两个用于连续交替分离废液与固体废渣的装置,所述箱体装置底部设置有用于移送粉碎后废渣的出料装置;所述分离装置包括支架,所述支架内侧对称转动设置有两个旋转架,所述旋转架前面设置有第二电机,所述第二电机与所述支架螺栓连接。本实用新型所述的一种胶黏剂生产用废渣过滤装置,通过双过滤交替运行的设置,过滤不停顿,缩短了作业时间;通过振动滤网的设计,既提高了过滤效果,又使废渣脱离滤网速度更快;通过碾碎过滤后废渣的设计,便于后续焚烧作业。

标签:
固废
江苏 - 苏州 来源:中冶有色网 2023-03-19
用于冶炼车间废气处理的净化设备

本实用新型公开了一种用于冶炼车间废气处理的净化设备,包括一级处理室、二级处理室和检测器,所述一级处理室左端中部设置有进气口,一级处理室内底部倾斜设置有过滤板,一级处理室顶端左部设置有水泵,水泵左端安装有分接头,分接头包括第一连接口、第二连接口和第三连接口,第一连接口上端连接有通水管,通水管左端设置有开关。本实用新型使用时,将废气从进气口通入一级处理室内,打开水泵和开关,外部水源通过通水管和水泵进入分水器,通过分水器下的喷头,水被喷出,废气接触到水,废气中的固体颗粒物被水吸收,初步处理的废气通过第二导气管进入吸收液内,针对不同废气注入不同的吸收液,吸收液将气体中的气体污染物吸收,有利于废气的充分净化。

标签:
固废
江苏 - 苏州 来源:中冶有色网 2023-03-19
用于印染废水深度处理的内循环系统

本实用新型提供一种用于印染废水深度处理的内循环系统,包括反应器主体以及沉降斗,所述沉降斗的侧壁与进水管路相连,所述进水管路上设有双氧水泵,所述反应器主体被筒体划分为升流区、降流区、沉降区和回流区,所述升流区和所述降流区形成废水双侧内循环,由于底部进水的作用驱使流体夹带固体催化剂在所述升流区和所述降流区之间循环流动,所述反应器主体的底部与沉降斗之间形成回流区,回流管路的废水回流集聚于回流区。本实用新型结构简单,进行废水处理高效,提高了废水的处理的效率。

标签:
固废
江苏 - 苏州 来源:中冶有色网 2023-03-19
高温废气处理设备
高温废气处理设备 1164     
 0

本实用新型属于废气处理技术领域,尤其为一种高温废气处理设备,包括主体,所述主体的侧面连接有合页,所述合页的侧面连接有活动门,所述主体的侧面连接有水箱,所述水箱的侧面连接有出水口,所述出水口的顶部连接有阀门,所述水箱的另一侧连接有第一动力泵,所述水箱的顶部连接有入水口,所述入水口的顶部连接有盖板,所述主体的正面连接有进气口,所述进气口的内壁连接有第一防护罩,所述主体的表面设置有固定板。通过第一动力泵、水箱、交换口、输送管可以实现水流的循环,既节约用水还能够加快水的冷却,通过喷头将水变成水雾并喷向废气,水雾一方面可以带走废气中的固体颗粒,另一方面还能够对废气进行降温。

标签:
固废
江苏 - 苏州 来源:中冶有色网 2023-03-19
有机化工废水预处理设备

本实用新型涉及环保设备技术领域,且公开了有机化工废水预处理设备,包括处理箱,处理箱的上内侧壁右端固定连接有隔板,隔板的右侧壁下端与处理箱的右内侧壁上端之间共同固定连接有过滤网,处理箱的右侧壁上端开设有出料口,且出料口位于过滤网的上方设置,处理箱的右外侧壁固定连接有与出料口位置相对应的废料箱,废料箱的右外侧壁下端固定连接工作盒,工作盒的右侧壁上端固定连接有进风管,且进风管的内部固定设有风机。本实用新型可以将废弃物上沾染的废水进行去除,避免后续处理固体废弃物时沾染的废水流出影响周围的环境,同时可以防止处理的废气造成空气污染,使用方便简单。

标签:
固废
江苏 - 苏州 来源:中冶有色网 2023-03-19
具有净化过滤功能的废液吸取装置

本实用新型公开了一种具有净化过滤功能的废液吸取装置,包括真空泵,所述真空泵的上端固定连接有第一把手,所述真空泵的左端固定连接有连接块,所述收集杯的内部位于过滤筛的上端设置有浮球阀。该具有净化过滤功能的废液吸取装置,将废液吸取装置内部增加可以去除味道的活性炭,防止有的废液含有刺激性的气味,使得操作人员感到不适,过滤筛可以将废液中含有的部分固体杂质进行过滤,防止泄露或是残留对外界环境造成污染,将过滤后的废液直接通过出水管排出,有阀门控制出水管的开关,可以随时将废液进行排出,避免频繁对收集杯进行拆卸,快速有效的将过滤后的废液排出,大大提高了工作效率,省时省力,大大提高了实用性。

标签:
固废
江苏 - 苏州 来源:中冶有色网 2023-03-19
高效工业废酸水处理设备

本实用新型公开了一种高效工业废酸水处理设备,包括进水口、一号泵体、二号泵体,进水口右端设置有过滤箱,过滤箱底部设置有电机,电机顶部固定安装有搅拌轴,搅拌轴一侧设置有一号管道,通过设计过滤箱内的过滤网可以过滤废酸水中的一些小颗粒物和一些其它的固体杂质,经过过滤箱中过滤网过滤的杂物进行后期的处理,而搅拌轴两侧的一号管道和二号管道可以进行大功率的进行废酸的处理。一号泵体连接着的一号管道和二号管道进行工作,而通过一号管道和二号管道输出的废酸运输到一号蒸发箱和二号蒸发箱同时处理进行大功率进行处理,二号蒸发箱处理的废酸通过二号结晶器进行后续处理,进行高效的处理废酸水。

标签:
固废
江苏 - 苏州 来源:中冶有色网 2023-03-19
高效的废水回收处理设备

本实用新型涉及废水处理技术领域,且公开了一种高效的废水回收处理设备,包括第一处理箱,所述第一处理箱的一侧设置有进水管道,所述第一处理箱的内部设置有过滤板,所述过滤板的一侧设置有活性炭板,所述活性炭板的一侧设置有短纤维板,所述第一处理箱的一侧设置有输水管道,所述输水管道的一侧设置有第二处理箱,所述第一处理箱与第二处理箱通过输水管道固定连接,所述第二处理箱的内部设置有电机。该高效的废水回收处理设备,能够将废水中的固体杂质进行有效的吸附和过滤,增加该废水回收处理设备的效率,减少人们的工作时间,增加人们的工作效率,减轻人们后期处理的负担。

标签:
固废
江苏 - 苏州 来源:中冶有色网 2023-03-19
金刚线切割硅片废切割浆液中硅料的回收方法

本发明涉及一种金刚线切割硅片废切割浆液中硅料的回收方法。其包括如下步骤:对金刚线切割硅片废切割浆液进行固液分离,并保留液体,得到硅粉悬浮液;对硅粉悬浮液进行浓缩处理,得到浓缩后的硅粉悬浮液;对浓缩后的硅粉悬浮液进行固液分离,并保留固体,得到硅砂;对硅砂进行压制,得到硅压制体硅压制体;以及将压制体硅压制体与硅铸锭工艺中温度大于1400℃的硅包混合,进行冶炼之后得到工业硅。上述金刚线切割硅片废切割浆液中硅料的回收方法中,以金刚线切割硅片废切割浆液中的硅料作为原料,通过一系列处理过程得到工业硅,实现了废切割浆液中硅料的资源化利用,避免了资源的浪费。

标签:
固废
江苏 - 苏州 来源:中冶有色网 2023-03-19
净化效果好的工业废气处理装置

本实用新型公开了一种净化效果好的工业废气处理装置,包括处理箱,所述处理箱左端面上方连接有废气进口,所述处理箱左端面下方连接有废气出口,所述处理箱右端面下方设置安装有喷淋装置,结构简单,构造清晰易懂,废气通过金属网板进行过滤,去除固体杂质,通过活性炭吸附板进行过滤,去除微粒和气味,随后通过静电吸附板去除微粒,通过喷淋装置除去有害物质和可溶性杂质和微粒,其中过滤板均为可拆装结构,便于维护清理和更换,操作简单,处理效果好,值得推广。

标签:
固废
江苏 - 苏州 来源:中冶有色网 2023-03-19
用于环境治理的环保型废气处理辅助装置

本实用新型涉及废气处理设备附属装置的技术领域,特别是涉及一种用于环境治理的环保型废气处理辅助装置,其可以通过自动清理扩口器的过滤板上的大块固体杂物来降低大块固定杂物及时被清理的难度,因而减小了大块固定杂物对扩口器的进风量的影响,即减小了扩口器的工作状态对废气处理设备的废气处理效率的影响;包括扩口器、过滤板和风机组件,扩口器的内部设置有流动腔;还包括固定板、带动板、刷板、定位板、定位轴承、往复丝杠、从动轮、皮带、主动轮和电机,电机的输出端与主动轮键连接,定位板的底端与固定板的顶端后侧连接,定位板的前端中上部区域设置有定位槽,定位轴承与定位槽固定卡装,往复丝杠设置有往复丝杆和往复滑块。

标签:
固废
江苏 - 苏州 来源:中冶有色网 2023-03-19
废水处理系统及方法
废水处理系统及方法 899     
 0

本发明揭示了一种废水处理系统及方法,系统包括依次相连通的厌氧氨化处理单元、MBR处理单元,以及脱氨处理单元;所述厌氧氨化处理单元用于将含有DMF和/或DMAC的废水转化为含氨氮废水,并去废水中的有机物;所述MBR处理单元用于去除含氨氮废水中的固体悬浮物和污泥;所述脱氨处理单元用于去除含氨氮废水中的氨氮。本发明所述的废水处理系统及方法,针对含DMF和/或DMAC的废水具有处理效率高、设备运行稳定、占地面积小的优点,且无副污染物的产生。

标签:
固废
江苏 - 苏州 来源:中冶有色网 2023-03-19
多功能废料存储装置
多功能废料存储装置 712     
 0

本实用新型公开了一种多功能废料存储装置,包括安装座、废料仓和废料滑道,所述废料仓和废料滑道可二者择一切换设置在所述安装座上;所述安装座包括安装面板、设置在所述安装面板上的管道座、插设在所述管道座内的废料抛弃管道、固接在所述安装面板底部的废料仓座以及由所述废料仓座的底板向下设置的滑道座。本实用新型的多功能废料存储装置用于实现TIP头、反应杯等固体试验耗材的收集和存储,本实用新型通过设置具备废料仓适配区和废料滑道适配区的安装座,使装置具有两种存储模式:废料仓和废料滑道,能提高装置的适应性。

标签:
固废
江苏 - 苏州 来源:中冶有色网 2023-03-19
便于环保加工用的废物固液分离设备

本实用新型公开了一种便于环保加工用的废物固液分离设备,包括箱体,箱体的底端固定安装有底座,箱体内部的底端固定安装有沉淀池,沉淀池的一侧连通有出水管,箱体的一侧可拆卸安装有固体消毒室,固体消毒室顶端的一侧开设有出气管,固体消毒室顶端的另一侧可拆卸安装有消毒剂箱,箱体内部的顶端开设有入料口,箱体的顶端可拆卸安装有入料室,入料室的顶端可拆卸安装有顶盖,入料室的一侧可拆卸安装有电机,箱体内部顶端的两侧固定安装有支撑柱。上述方案中,固液分离设备利用电机带动第一切割转刀和第二切割转刀之间的相互转动,从而达到了快速将废水中的垃圾切割呈小块,防止垃圾会将设备内部堵塞的问题,从而增强了装置的实用性。

标签:
固废
江苏 - 苏州 来源:中冶有色网 2023-03-19
带固液废弃物分类收集装置的生物安全柜

本实用新型公开了一种带固液废弃物分类收集装置的生物安全柜,包括柜体,柜体包括上柜体、中柜体和下柜体,上柜体内腔中部固定有风机处理装置;中柜体内腔从左至右依次安装有温湿度检测仪、新风排风管、中央处理器、新风送风管、多功能多路控制开关以及触屏操作显示屏;下柜体内腔的左右侧壁上滑动连接有移动窗,下柜体的右侧壁上固定有倒置的消毒液瓶,消毒液瓶下端瓶口上设有消毒液瓶瓶口开关阀,所述消毒液瓶瓶口开关阀连接输液导管,输液导管的一端伸入下柜体内腔,下柜体内腔底部设有实验工作操作台,实验工作操作台的右侧设有固体废弃物输出管和液体废弃物输出管。本实用新型能实现固液废弃物分离,方便废弃物处理,降低污染概率。

标签:
固废
江苏 - 苏州 来源:中冶有色网 2023-03-19
用于树脂聚合物加工的废气处理设备

本实用新型公开了一种用于树脂聚合物加工的废气处理设备,包括废气处理仓,所述废气处理仓的一侧开设有一号进气口,所述废气处理仓的上端固定连接一号废气导气管,所述一号废气导气管的一端固定连接有废气净化反应仓,所述废气净化反应仓的外侧开设有反应仓观察镜。本实用新型所述的一种用于树脂聚合物加工的废气处理设备,设有可拆卸废气排放除杂仓与铰链机构移动观察台,通过增加可拆卸废气排放除杂仓,可以过滤通过净化反应炉后排出废气中的固体颗粒残渣,能够减少排出的净化废气更环保,通过增加铰链机构移动观察台,便于观察净化反应仓内各个阶段的反应情况,便于及时调整反应程度,带来更好的使用前景。

标签:
固废
江苏 - 苏州 来源:中冶有色网 2023-03-19
用于涂布机的废气处理装置

本实用新型公开了一种用于涂布机的废气处理装置,包括安装外壳、过滤箱、吸收箱和换热管,所述安装外壳的内侧安装有隔板,所述安装外壳的右侧设置有换热外壳,所述增压泵的上端连接有出气管,所述隔板的下侧设置有过滤箱,所述过滤箱的内侧安装有过滤网,所述过滤箱的右侧安装有气体导管,所述吸收箱的后侧设置有防溢管,所述吸收箱的上侧安装有引导管,所述换热管的内侧安装有吸收块,且换热管的上侧安装有热气出口。该用于涂布机的废气处理装置,能够对废气中的固体颗粒进行集中收集清理,避免气中的固体颗粒容易随气体飘散而影响烘干中的物料,且能够对废气中的热量进行吸收换热,增加利用率,减少浪费。

标签:
固废
江苏 - 苏州 来源:中冶有色网 2023-03-19
上一页 66 67 68 69 70 ... 81 下一页
共81页    到第

中冶有色为您提供最新的江苏苏州有色金属固/危废处置技术理论与应用信息,涵盖发明专利、权利要求、说明书、技术领域、背景技术、实用新型内容及具体实施方式等有色技术内容。打造最具专业性的有色金属技术理论与应用平台!

全国热门有色金属设备推荐
展开更多 +
全国热门有色金属技术推荐
展开更多 +

 

江西省隆恩特环保设备有限公司
宣传

报名参会
更多+

报告下载

有色专家
更多+

有研科技集团有限公司
首席科学家
中冶沈勘秦皇岛工程技术有限公司
原矿山院院长/教授级高工
赣州有色冶金研究所有限公司
副主任/高级工程师
重庆理工大学
教授
重庆大学
副院长/教授
赤泥综合利用研究报告2025
推广

热门技术
更多+

推荐企业
更多+

福建省金龙稀土股份有限公司
宣传

发布

在线客服

公众号

电话

顶部
咨询电话:
010-88793500-807