青岛垚鑫智能科技有限公司
宣传

位置:中冶有色 >

有色技术频道 >

> 固/危废处置技术

分类:
全部
矿山技术
冶金技术
材料制备及加工技术
环境保护技术
分析检测技术
 
全部
废水处理技术
大气治理技术
固/危废处置技术
土壤修复技术
地区:
全部
北京
天津
上海
重庆
河北
山西
辽宁
吉林
黑龙江
江苏
浙江
安徽
福建
江西
山东
河南
湖北
湖南
广东
海南
四川
贵州
云南
陕西
甘肃
青海
内蒙
广西
西藏
宁夏
新疆
其他
其他
展开
 
全部
南京
无锡
徐州
常州
苏州
南通
连云港
淮安
盐城
扬州
镇江
泰州
宿迁

江苏南京有色金属固/危废处置技术理论与应用

免费发布技术信息>>
建筑材料固体废弃物资源化处理工艺

本发明涉及一种建筑材料固体废弃物资源化处理工艺,具体包括以下步骤:1)初步粉碎;2)筛选;3)再次粉碎;4)称量;5)制胚;6)烧制陶瓷。本发明优点在于:可以实现建筑固体废弃物和其他领域的固体废弃物的大规模、批量化、快速处理处置,并实现彻底无害化、有毒有害物质永久固化,工艺简单,工艺可操作性好,可靠性高,设备投入少、生产周期短,生产效率高,工艺技术节能环保,可用于陶瓷蓄热体、废水和废气处理的过滤材料及建筑的节能保温材料。

标签:
固废
江苏 - 南京 来源:中冶有色网 2023-03-19
固体废弃物土工袋
固体废弃物土工袋 877     
 0

一种不含化学污染的工程建设废弃物、工业废料、矿区尾砂等石、渣、土的固体废弃物土工袋。将破碎可用的固体废弃物装入土工袋内,缠绕绑扎绳索,结合成固体废弃物土工袋;利用土工袋受压变形产生的张力,约束着固体废弃物土体及消耗震动能量,纵横排列连续叠层,提高了固体废弃物土工袋的整体强度及减震性能。固体废弃物土工袋应用于地基工程,节约资源,节省资金,减震防灾,防止冻融,绿色环保,效益显著。

标签:
固废
江苏 - 南京 来源:中冶有色网 2023-03-19
用于处理下水道混合固体废弃物的高效破碎机

本发明属于废弃物粉碎应用技术领域,具体公开了用于处理下水道混合固体废弃物的高效破碎机,由敞开式壳体、摆线针轮减速机、破碎组件组成。本发明的用于处理下水道混合固体废弃物的高效破碎机的有益效果在于:适应范围广,可安装在下水道泵前,对固体破碎,可安装在拦污栅后,对从水中捞上的漂浮物破碎,可安装在焚烧炉前,将垃圾破碎至不运输的尺寸,可安装在污水处理管道中,对混入污泥中的固体物破碎,可对回收的空罐、电池、塑料品等进行破碎;在水中进行破碎处理,既能保护水处理设备,又可避免臭气外泄,保护环境,具有自清洗功能,安装及维护保养便捷。

标签:
固废
江苏 - 南京 来源:中冶有色网 2023-03-19
固体废物进料及热解预处理装置

本实用新型提供了一种固体废物进料及热解预处理装置,包括进料系统和热解预处理系统,其中进料系统包括:进料斗、一级闸板、二级闸板、一级闸刀、助推器,热解预处理系统包括:热解筒体、控温仪、电加热炉、氮气储罐。本实用新型通过双级闸板进行密封,采用一级闸刀解决了固体废物进料过程中缠绕助推器的难题,将固体废物进行热解预处理显著改善物料的能量密度和疏水性能,该装置在固体废物资源化利用过程中应用具有广泛的应用前景。

标签:
固废
江苏 - 南京 来源:中冶有色网 2023-03-19
催化剂生产废水中含铜锌铝的固体悬浮物的回收处理方法

本发明属于环保与水处理领域,涉及一种催化剂生产废水中含铜锌铝的固体悬浮物的回收处理方法。采用一级液体过滤器和二级陶瓷膜超滤相结合的回收处理方法,催化剂生产废水进入一级液体过滤器中回收,回收后的悬浮物以浓浆形式回到生产系统,清液进入二级陶瓷膜超滤的处理系统,回收后浓浆重新回到废水高位缓冲罐,清水中固体悬浮物的浓度由原来1000~5000mg/L降到5mg/L以下,可以直接达标排放。处理过程没有改变物料本身性能,回收的物料直接回到生产系统,提高产品收率,降低生产成本。适用于中低压合成甲醇催化剂,联醇催化剂,一氧化碳低温变换催化剂,丙醛、丁醛和辛烯醛加氢催化剂,环己醇脱氢催化剂生产过程的工艺排水。

标签:
固废
江苏 - 南京 来源:中冶有色网 2023-03-19
电厂固体废弃物处理装置

本实用新型公开了一种电厂固体废弃物处理装置,包括拉模机、吹风机、袋子、上模板和下模板,吹风机设置在拉模机的出口处,吹风机的出风口正对袋子的入口,袋子设置在上模板和下模板之间。本实用新型的电厂固体废弃物处理装置能够对固体废弃物进行有效处理,通过拉模机将固体废弃物粉碎,然后利用吹风机将粉末均匀的吹至袋子中,然后利用上模板和下模板的组合将袋子与袋子中的固体废弃物粉末压实在一起,可以更有效地将固体废弃物进行处理,解决现有技术中固体废弃物难以处理的缺陷。

标签:
固废
江苏 - 南京 来源:中冶有色网 2023-03-19
操作便捷的固体废弃物处理焚烧装置

本实用新型公开了一种操作便捷的固体废弃物处理焚烧装置,涉及环保设备技术领域,包括设备主体和输送组件,设备主体的两侧分别安装有输送组件,输送组件包括输送电机和输送管,输送组件的上端设置有输送电机,输送电机的底部连接有输送管,设备主体包括粉碎箱和焚烧炉,粉碎箱包括箱体、粉碎机构和过滤机构,通过粉碎机构结构,方便对体积较大的固体废弃物进行碾碎处理,通过过滤机构结构,可以将未完全碾碎的块状固体废弃物过滤出来,通过输送组件结构,可以将过滤出来的块状固体废弃物输送至碾碎轴的上端,同时,还可以对块状固体废弃物进行二次碾碎处理,方便设备主体对固体废弃物进行碎片化处理,从而提升焚烧炉对固体废弃物的充分燃烧率。

标签:
固废
江苏 - 南京 来源:中冶有色网 2023-03-19
固体废物分拣箱
固体废物分拣箱 1158     
 0

本实用新型涉及一种固体废物分拣箱,属于废物处理技术领域。该分拣箱的箱体上部具有视窗,箱体一侧的进料口装有伸入箱体内前部的平带输送装置,箱体内后部安置至少对应二个分拣工位的可翻倾分拣罐,分拣罐的罐口具有可启闭的罐盖;箱体的前侧具有分别对应各分拣工位的手套操作口;平带输送装置的内端具有漏孔板,平带输送装置和漏孔板的下方具有低端安装废液收集罐的引流板。本实用新型具有多种分拣功能,可将固体废物按类别不同,在不同的分拣工位进行分拣,结构紧凑,占用空间小,布局合理,且始终保持分拣箱内部处于微负压环境,防止有害物质溢出,分拣的同时还可使潮湿废物残留废液得到收集。

标签:
固废
江苏 - 南京 来源:中冶有色网 2023-03-19
有机固体废弃物燃料化提质装置

本实用新型公开了一种有机固体废弃物燃料化提质装置,包括提质机构和燃烧机构,提质机构包括提质炉和提质料仓,提质炉内安装有螺旋排料器,用于将提质炉内的固体传输至固体出口,提质料仓与所述固体出口相连;燃烧机构包括燃烧炉、第二送风机、燃料仓和气体燃烧器,燃烧炉空气入口与第二送风机出口相连,燃烧炉的燃烧入口与燃料仓出口相连,气体燃烧器出口与燃烧炉的气体燃料入口相连,通过调控固体废弃物有序氧化的方式,无需外界能源输入,达到提升废弃物燃料品质的目的,同时在提质炉内通过多孔布风,固体废弃物浮动状态下快速升温,在数分钟短时间内实现有机固体废弃物提质,结构简单、操作方便,可直接与后续燃料热转化系统无缝连接。

标签:
固废
江苏 - 南京 来源:中冶有色网 2023-03-19
利用中药固体废弃物进行二次发酵制备乙醇的方法及其应用

本发明涉及一种利用中药固体废弃物进行二次发酵制备乙醇的方法。其特征在于:将药食兼用的真菌接种于中药固体废弃物基质上,真菌在基质上生长、发酵完全后,得到中药固体废弃物固体一次发酵菌质。再将中药固体废弃物固体发酵菌质按照一定比例加入糯米和水,煮熟后用酒曲进行二次发酵,得到含发酵菌质成分乙醇水溶液,该乙醇溶液既可以从中提取乙醇,亦可直接加工成药酒或保健酒,同时,二次发酵后的酒糟经加工后,可作为饲料添加剂加入到牲畜饲料中,即可得到口感更佳、牲畜更为接受的饲料。

标签:
固废
江苏 - 南京 来源:中冶有色网 2023-03-19
固体废弃物的识别方法、装置、电子设备及存储介质

本申请提供一种固体废弃物的识别方法、装置、电子设备及存储介质,方法包括:获取目标区域的无人机遥感影像;提取无人机遥感影像的目标指数;基于目标指数,合成凸显固体废弃物图斑的合成影像;利用合成影像,对预设的面向对象模型进行训练,直至面向对象模型达到预设收敛条件,得到固体废弃物识别模型;基于固体废弃物识别模型,识别合成影像的固体废弃物图斑,得到目标区域的固体废弃物识别结果。本实施例通过面向对象模型对合成影像进行去噪,不仅利用地物本身的光谱信息,而且充分利用地物的空间信息,对初步识别的合成影像再次进行区分,以去除噪声干扰,提高识别精度。

标签:
固废
江苏 - 南京 来源:中冶有色网 2023-03-19
可循环固体有机酸催化水解废弃PET塑料的方法

本发明公开了一种可循环固体有机酸催化水解废弃PET塑料的方法,属于社会源固体废物处置与资源化技术领域,包括以下步骤:步骤一、将搅拌子、废弃PET再生料、对甲基苯磺酸、去离子水,在加热搅拌的条件下进行酸催化水解,待反应结束后,加入去离子水,冷却至室温,得到混合液;步骤二、将混合液,用砂芯漏斗过滤,得到滤液;将沉淀物用去离子水洗涤数次、抽干、干燥,回收得到对苯二甲酸粉末;步骤三、将步骤二中获得的滤液,通过浓缩、重结晶析得到对甲基苯磺酸;步骤四、将步骤三中已析出对甲基苯磺酸的残留液,通过精馏分离得到乙二醇和去离子水。本发明以对甲基苯磺酸为酸催化剂,催化水解废弃PET塑料,实现了废弃塑料的降解。

标签:
固废
江苏 - 南京 来源:中冶有色网 2023-03-19
利用含KCl废盐制备硫酸型固体酸催化剂的方法

本发明属于酸型固体酸催化剂领域,涉及一种利用含KCl废盐制备硫酸型固体酸催化剂的方法。现有SO42‑/MnOm型固体酸催化剂寿命短,易失活。为了解决以上问题,本发明提供了一种利用含KCl废盐制备硫酸型固体酸催化剂的方法,包括以下步骤:第一步:制备K2Ti2O5晶须,第二步:将K2Ti2O5晶须置于硫酸溶液中煮沸,过滤,洗涤,干燥;第三步:将第二步所得的样品与硫酸溶液水热处理,过滤,洗涤,干燥后制得SO42‑/TiO2型固体酸催化剂。解决SO42‑/TiO2型固体酸寿命短和易失活的问题。本发明既得到高附加值的固体酸催化剂,又可将废盐中有机物通过高温去除,如进一步分离还可制得工业盐。

标签:
固废
江苏 - 南京 来源:中冶有色网 2023-03-19
用于处理工业废水中固体杂质的过滤装置

本实用新型涉及一种用于处理工业废水中固体杂质的过滤装置。该过滤装置包括箱体、水泵、水箱、第一隔板、第二隔板和过滤层,箱体的下部设有进水口,上部设有出水口,第一隔板、第二隔板和过滤层依次从下而上固定连接在箱体的侧壁上,且箱体的进水口位于第一隔板的下方,箱体的出水口位于过滤层上方;水箱的出水口通过水泵与箱体的进水口连接;所述的第一隔板厚度为2厘米,第一隔板中设有第一通孔,第一通孔的孔径为1—1.5毫米;第二隔板厚度为1厘米,第二隔板中设有第二通孔,第二通孔的孔径为0.5—0.8毫米;过滤层厚度为0.8厘米,过滤层由陶粒组成。废水先经过第一隔板,废水中含有的粒径大于第一通孔孔径的颗粒被拦截。废水继续向上流动,经过第二隔板。废水中含有的粒径大于第二通孔孔径的颗粒被第二隔板拦截。废水继续向上流动。废水中含有的微小杂质被过滤层过滤。经过第一隔板、第二隔板和过滤层三次过滤的废水,基本去除了废水中含有的固体杂质,过滤效果佳。

标签:
固废
江苏 - 南京 来源:中冶有色网 2023-03-19
处理高有机物浓度高固体含量废水的厌氧反应器

一种处理高有机物浓度高固体含量废水的厌氧反应器是一种适用于禽畜养殖场废水、污水处理厂剩余污泥等含有高有机物浓度、高固体含量废水厌氧消化处理的厌氧反应器,该反应器主体(1)为两个同心圆柱体,中间圆柱体为高固体反应区(5),外环为折流反应区(25),高固体反应区(5)与折流反应区(25)共用部分池壁即高固体反应区池壁(4),高固体反应区(5)为圆柱体,下部设有进水管(2)及配水系统(3),水流以上升流的形式流动;高固体反应区(5)底部设有圆锥体形状的污泥沉淀区(6)及间歇排泥管(7);高固体反应区(5)上部四周边缘设有挡渣板(8)及集水槽(9),上部中央为集气室(10),顶部设密封盖(11)并设有集气管(12)。

标签:
固废
江苏 - 南京 来源:中冶有色网 2023-03-19
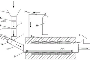
固体废物中二噁英的自催化裂解工艺

本发明属于危废处理领域,特别是固体废物的处理领域,更为具体的说是固体废物中二噁英的自催化裂解工艺。通过第一连续升温带和第二连续升温带的设置,将固体废物在40‑400℃的温度下完成预处理,为后续裂解创造条件,并且在400‑750℃的温度下实现二噁英裂解,获得不含有二噁英的固体废渣。整个过程中固体废物流动性好,无半板结,二噁英裂解完全,裂解温度低,无二次形成过程,所形成的废气可以回用到热风生成过程中,避免二次污染的产生。整个处理过程设计巧妙,创新性显著。

标签:
固废
江苏 - 南京 来源:中冶有色网 2023-03-19
固体废弃物处理用上料装置

本实用新型涉及固体废弃物处理装置技术领域,且公开了一种固体废弃物处理用上料装置,包括底座,所述底座的顶部固定连接有电机,所述电机的输出轴通过联轴器固定连接有转轴,所述转轴的外壁固定连接有第一齿轮,所述第一齿轮的一侧固定连接有连接杆,所述第一齿轮的外壁活动连接有传送带,所述连接杆的外壁固定连接有第二齿轮。该固体废弃物处理用上料装置,能够通过倾倒的方式将固体废弃物投放入垃圾处理装置的内部,且可以容纳各种形态的固体垃圾,达到上料更快的目的,避免一般使用螺旋输送装置或者传送装置进行上料,垃圾容易卡在装置内部影响上料速度,导致后续垃圾处理效率降低的问题,从而提高了垃圾处理的效率。

标签:
固废
江苏 - 南京 来源:中冶有色网 2023-03-19
固体废弃物热解烟气的处理方法

本发明涉及一种固体废弃物热解烟气的处理方法,所述处理方法包括如下步骤:(1)破碎处理固体废弃物,得到破碎料;(2)热解处理步骤(1)所得破碎料,得到热解产品与热解烟气;(3)净化处理步骤(2)所得热解烟气,得到粉尘颗粒与净化气体;(4)混合补充气体与步骤(3)所得净化气体,加热升温后作为热解气直接回用于步骤(2)所述热解处理;步骤(2)所述热解处理时,热解气循环流动。本发明通过在热解处理时使热解气循环流动,通过强化对流传热,使破碎料的温度分布更加均匀;且循环流动能够带走固体废弃物中质量轻、密度小的物料,便于在净化时对粉尘颗粒进行回收,从而实现提高固体废弃物热解效率的同时,满足热解气减排的效果。

标签:
固废
江苏 - 南京 来源:中冶有色网 2023-03-19
固体废物中有机物脱附装置及其脱附方法

本发明涉及脱附设备技术领域,且公开了一种固体废物中有机物脱附装置及其脱附方法,包括箱体,所述箱体内表面的底面固定连接有支撑杆,所述支撑杆的顶面固定连接有支撑架,所述支撑架的顶面设有放置筒,所述箱体的正面和背面均设有转轴,所述转轴内端的外表面螺纹套接有安装套,所述放置筒的端面固定连接有固定套。该固体废物中有机物脱附装置及其脱附方法,通过在箱体的两侧套接转轴,并在转轴内端的外表面螺纹套接安装套,使得圆筒形的放置筒侧面连接固定套与安装套套接,并利用安装套夹紧固定放置筒,通过将固体废料置于放置筒中,并利用电机带动放置筒旋转,实现固体废物的稳定搅动,保证固体废物充分与脱附水接触,提高脱附效果。

标签:
固废
江苏 - 南京 来源:中冶有色网 2023-03-19
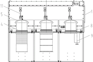
固体废弃物机械搅拌机

本实用新型涉及一种固体废弃物机械搅拌机,属于搅拌机械领域。固体废弃物机械搅拌机的搅拌罐的顶部设有进料管,搅拌罐的底部设有出料管;搅拌罐布置在支撑杆上,支撑杆布置在底板上;搅拌装置布置在搅拌罐内,搅拌罐的侧壁设有气体过滤装置,气体过滤装置收集处理搅拌罐内的废气;搅拌罐的底端为向外凸起的圆弧结构。本实用新型提供的固体废弃物机械搅拌机,能够充分搅拌固定废弃物,提高搅拌过程效率,搅拌过程产生气味,通过引风机将搅拌罐内部气体吸入到进气管内部,再由连接管进入到气体过滤箱的内部,进行过滤处理,由而排气管排出,防止有毒气体排出,造成人身体健康安全,防止有害气体对环境造成污染。

标签:
固废
江苏 - 南京 来源:中冶有色网 2023-03-19
便于清理滤网上附着固体颗粒的有机废气过滤机构

本实用新型公开了一种便于清理滤网上附着固体颗粒的有机废气过滤机构,包括有机废气过滤机构本体,所述有机废气过滤机构本体的左侧内壁固定有进气管,所述有机废气过滤机构本体的右侧内壁固定有排气管,所述电机的输出轴通过联轴器连接有滚动轴。该便于清理滤网上附着固体颗粒的有机废气过滤机构,设置有传动装置、传动齿轮、清理滚筒和滑槽,当使用者需要对清理滤网上附着固体颗粒进行清理时,通过设置的传动装置、传动齿轮、清理滚筒和滑槽,将过滤网内部固定颗粒清理清理至过滤网的内壁,从而进而提高了活动杆外壁设置的清理滚筒对过滤网外壁固体颗粒的清洁效率,节约了使用者对过滤网外壁固体颗粒的清洁所花费的时间。

标签:
固废
江苏 - 南京 来源:中冶有色网 2023-03-19
钢铁冶炼固体废弃物再利用处理系统及处理方法

本发明涉及一种钢铁冶炼固体废弃物再利用处理系统及处理方法,包括安装架、粉碎套件和清理套件,安装架内部从上到下依次设置有粉碎套件和清理套件,本发明可以解决现有的钢铁冶炼固体废弃物在进行回收时常存在以下问题:a:现有的铁冶炼固体废弃物在进行中性浸出时需要将铁冶炼固体废弃物放置在中性溶液中进行浸泡,常因铁冶炼固体废弃物体积较大导致浸出效率过低的情况发生;b:现有的铁冶炼固体废弃物在进行浸出处理时,常会有大量的淤泥沉淀附着在内壁上,人工清理起来具有较大的难度,清理效率较低。

标签:
固废
江苏 - 南京 来源:中冶有色网 2023-03-19
用固体废物制备的多孔材料

本发明属于环境保护领域内的一种用固体废物制备的多孔材料,按重量计,其配方为固体废物母料50~97%,成型剂1~20%,发泡剂1~15%,助熔剂1~15%。本发明克服了现有固体废物制备的多孔材料需要消耗粘土,多孔材料性质难以控制,烧成时间较长,能耗高,对工艺控制要求苛刻的缺陷,提供的用固体废物制备的多孔材料用途广泛,颗粒尺寸和形状可调,体积密度、孔隙大小、孔隙的闭孔率都可在大范围内调整,不需要消耗粘土,烧结时间短。

标签:
固废
江苏 - 南京 来源:中冶有色网 2023-03-19
可燃固体废弃物气化制取富烃可燃气的方法

本发明的一种可燃固体废弃物气化制取富烃可燃气的方法可用于制备富烃的高品质可燃气,系统由流化床气化反应器、旋风熔融炉、水蒸汽重整反应器、过热器、省煤器、烃类合成反应器、热管换热器、布袋除尘器、气体洗涤塔、脱水塔、引风机、压缩装置、储气罐和空分装置等组成。本发明是一种专门针对可燃固体废弃物能源化高效清洁利用的热转换技术,能制取富含烃类气体的可燃气,并能有效降低燃气中焦油、碳颗粒含量,回收可燃固体废弃物中的金属资源,实现二噁英等污染物的近零排放。系统最大限度地降低了制气成本,实现了资源的有效回收利用,整体热效率高,环境污染小,经济性强且安全可靠。

标签:
固废
江苏 - 南京 来源:中冶有色网 2023-03-19
固体废弃物两段式制备甲烷气的方法

本发明公开了一种固体废弃物两段式制备甲烷气的方法,包括:步骤10)在一级甲烷化区域中,将水蒸气从底部通入,将固体废弃物和改性钙基矿石催化剂从侧边通入,在水蒸气的作用下,固体废弃物和改性钙基矿石催化剂混合向上,并和水蒸气发生直接甲烷化反应,获得粗制甲烷气;步骤20)将粗制甲烷气从一级甲烷化区域顶部排出后,进入到二级甲烷化区域,氢气均匀进入二级甲烷化区域,并对粗制甲烷气氢碳比进行预调制;利用催化甲烷化催化剂对甲烷气进行催化甲烷化反应,催化甲烷化催化剂在氢气和粗制甲烷气的流化作用下,获得高品质甲烷气。该方法可以实现燃料利用率高、甲烷品质高、催化成本低的效果。

标签:
固废
江苏 - 南京 来源:中冶有色网 2023-03-19
全自动固体废弃物压榨装置

本实用新型属于固体废弃物技术领域,涉及一种全自动固体废弃物压榨装置,包括箱体,所述箱体表面穿设有进料斗,所述箱体内壁固定连接有第一正反电机,所述第一正反电机的输出轴固定连接有第一螺纹柱。其有益效果是,该全自动固体废弃物压榨装置,通过设置第一正反电机,当人们需要对固体废物进行压榨时,人们只需要通过控制开关控制第一正反电机运作,从而可以带动第一螺纹柱进行转动,在第一螺纹柱和第一螺纹管的相互作用下,从而可以带动限位板进行移动,进而可以对固体废物进行压榨,在第一正反电机的作用下,从而人们在对固体废物进行压榨时更加快捷,进而提高了人们的工作效率。

标签:
固废
江苏 - 南京 来源:中冶有色网 2023-03-19
固体废弃物表面原位生长纳米颗粒的制备方法

本发明公开一种固体废弃物表面原位生长纳米颗粒的制备方法,包括如下步骤:(1)配制可碳化盐溶液,向其中加入未经处理或处理后的固体废弃物,并加入表面活性剂、乳化剂或晶型调节剂,预先搅拌均匀;(2)将步骤(1)所得溶液置于碳化反应装置中,通入CO2气体、搅拌反应,当溶液pH值降低至7~8时停止反应;(3)反应后产物经洗涤、分离固液相、干燥所得固体,得到最终产物。该方法采用微泡沫碳化法一步制备过程,将纳米材料制备和CO2的矿物固封技术通过同一过程实现,能够在固体废弃物表面原位生长出不同纳米颗粒,可广泛应用于建筑材料生产和固体废弃物利用和处理;而且,制备过程工艺简便、绿色环保、成本低廉,副产物可回收再利用。

标签:
固废
江苏 - 南京 来源:中冶有色网 2023-03-19
固体废弃物破碎回收装置

本发明涉及一种回收装置,尤其涉及一种固体废弃物破碎回收装置。提供一种能够自动进行破碎回收处理、工作效率高、安全性能高的固体废弃物破碎回收装置。一种固体废弃物破碎回收装置,包括有:支架;储料框,安装在支架上;下料斗,安装在储料框上;压碎装置,安装在支架上,通过转动的方式进行压碎;挡料装置,安装在支架上,通过转动的方式进行挡料。本发明通过压碎装置能够将固体废弃物压碎,通过挡料装置能够分批对固体废弃物进行破碎回收,通过推出装置能够对破碎好的固体废弃物推出,方便人们进行收集,通过自动推动装置能够自动将压碎的固体废弃物推出,节省了大量人力,提高了人们的工作效率。

标签:
固废
江苏 - 南京 来源:中冶有色网 2023-03-19
固体废物焚烧过程中重金属及超细颗粒物的捕集方法

本发明涉及一种固体废物焚烧过程中重金属及超细颗粒物的捕集方法,包括如下步骤:(1)将沸石粉碎成沸石粉末;(2)将沸石粉末与渗滤液混合后一起喷入固体废物焚烧炉内;(3)沸石粉末将固体废物焚烧炉内的重金属及超细颗粒物吸附,然后随烟气进入袋式除尘器,被袋式除尘器捕集。本发明先将沸石粉末高效吸附渗滤液中的重金属离子,然后沸石粉末和渗滤液一起进入固体废物焚烧炉内,沸石粉末表面的重金属离子与沸石粉末反应生成共晶物,发生共晶融化,降低沸石表面反应势能,进一步促进沸石粉末与烟气中的金属蒸汽反应,同时融化的表面也促进沸石粉末对超细颗粒物的粘附,从而提高了沸石的综合性能,最后完成吸附的沸石粉末被布袋除尘器捕集。

标签:
固废
江苏 - 南京 来源:中冶有色网 2023-03-19
利用固体废物固化土制备的环保砖及其制备方法

本申请公开了一种利用固体废物固化土制备的环保砖及其制备方法,包括固体废弃物固化土、骨料、粉煤灰、胶凝材料、外加剂和水,按配比,经搅拌、压制、养护制得。制备步骤为将固体废弃物干化、破碎、筛分,按照配比加入固化剂固化;将固体废弃物固化土、骨料、粉煤灰、水泥、外加剂和水按配比配料搅拌;将搅拌好的混合物倒入模具中,并用压力机压制成型。本发明的环保砖制作方便、强度高、吸水率低、价格低廉,大量使用固体废弃物,符合国家环保节能政策。

标签:
固废
江苏 - 南京 来源:中冶有色网 2023-03-19
上一页 93 94 95 96 97 ... 98 下一页
共98页    到第

中冶有色为您提供最新的江苏南京有色金属固/危废处置技术理论与应用信息,涵盖发明专利、权利要求、说明书、技术领域、背景技术、实用新型内容及具体实施方式等有色技术内容。打造最具专业性的有色金属技术理论与应用平台!

全国热门有色金属设备推荐
展开更多 +
全国热门有色金属技术推荐
展开更多 +

 

江西省隆恩特环保设备有限公司
宣传

报名参会
更多+

报告下载

有色专家
更多+

矿冶科技集团有限公司
所长/研究员级高工
任灵宝金源矿业股份有限公司
技术发展部经理
石家庄铁道大学
团委书记/副教授
南京理工大学、中国科学院
院士
郑州大学
副校长
赤泥综合利用研究报告2025
推广

热门技术
更多+

推荐企业
更多+

福建省金龙稀土股份有限公司
宣传

发布

在线客服

公众号

电话

顶部
咨询电话:
010-88793500-807