青岛垚鑫智能科技有限公司
宣传

位置:中冶有色 >

有色技术频道 >

> 废水处理技术

分类:
全部
矿山技术
冶金技术
材料制备及加工技术
环境保护技术
分析检测技术
 
全部
废水处理技术
大气治理技术
固/危废处置技术
土壤修复技术
地区:
全部
北京
天津
上海
重庆
河北
山西
辽宁
吉林
黑龙江
江苏
浙江
安徽
福建
江西
山东
河南
湖北
湖南
广东
海南
四川
贵州
云南
陕西
甘肃
青海
内蒙
广西
西藏
宁夏
新疆
其他
其他
展开
 
全部
南京
无锡
徐州
常州
苏州
南通
连云港
淮安
盐城
扬州
镇江
泰州
宿迁

江苏苏州有色金属废水处理技术理论与应用

免费发布技术信息>>
生物脱氮反应器
生物脱氮反应器 849     
 0

本实用新型揭示了一种生物脱氮反应器,包括壳体,壳体的上下设有顶板和底板,在壳体内部设有两个隔板,每个隔板上设有通孔,隔板将壳体内部从下至上依次分成厌氧区,好氧区和出水区,好氧区内部设有一个上下具有开口的套筒,套筒内部形成缺氧区,好氧区内部设有搅拌装置;在厌氧区底部设有进水口,废水进入时,水流逆势上流通过厌氧区,缺氧区和好氧区,并在搅拌装置的搅拌下缓慢的内部流动,使反应器内部生物填料在水流推力下在反应区内循环交错的流动,从而加速实现氨化,硝化和反硝化的过程。

标签:
废水处理
江苏 - 苏州 来源:中冶有色网 2023-03-19
动力电池电芯极柱的激光清洗光路系统

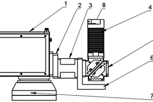
本实用新型公开了一种动力电池电芯极柱的激光清洗光路系统,包括水平依次相连的振镜、振镜转接板和45°反光模块,振镜的下方固定安装有F‑theta平场镜头,45°反光模块上固定安装有激光器QCS固定块,激光器QCS固定块上固定安装有激光器,激光器发出的激光能经45°反光模块反射到振镜中,再由F‑theta平场镜头聚焦至正下方。使用该激光清洗光路系统在清洗极柱过程中,利用激光的脉冲能量去除极柱表面的电解液和表面铝氧化层,整个清洗过程中和极柱无物理接触,不会发生碰撞损伤,不产生废水废液,提高清洗质量的同时也大幅度提高了清洗的效率。

标签:
废水处理
江苏 - 苏州 来源:中冶有色网 2023-03-19
废酸处理设备
废酸处理设备 1041     
 0

本实用新型涉及一种废酸处理设备,包括有废酸输入管道,特点是:在废酸输入管道上连接有气固分离装置,气固分离装置上设有热风输入端、气体输出端。同时,在气固分离装置内设有雾化装置,雾化装置与废酸输入管道相连;气固分离装置底部设有固体沉淀装置。气体输出端上设有冷却组件,冷却组件包括有主水冷组件与副水冷组件,主水冷组件与副水冷组件通过导管相连。并且,主水冷组件的吸收端设有低浓度氟化氢收集装置,副水冷组件吸收端设有无水氢氟酸收集装置与废气废水收集装置。由此,采用特定设备内进行喷雾干燥,结合气固分离,提高气体吸收回头使用的程度,符合目前最需要的环保需求。

标签:
废水处理
江苏 - 苏州 来源:中冶有色网 2023-03-19
五金加工用自清洁工作台

本实用新型公开了一种五金加工用自清洁工作台,属于机械加工设备技术领域。其中,一种五金加工用自清洁工作台包括支撑柱,所述支撑柱上面设置有操作台,所述操作台上面设置有立柱,所述立柱上面设置有顶板,所述顶板下面设置有风扇,所述顶板下面设置有伸缩柱,所述伸缩柱下面设置有连接臂,所述连接臂连接着电动机,所述电动机下面设置有转动轴,所述转动轴连接着第一毛刷;设计了可调节的喷水器,方便冲洗操作台的各个部分,设计了可替换的第一毛刷和第二毛刷,方便对操作台进行清洁打扫,也方便在不清洁时替换成加工所需要的零部件对工件进行加工,设计了旋转连接的回收箱,方便对清洗过程中的废料废水进行回收倾倒。

标签:
废水处理
江苏 - 苏州 来源:中冶有色网 2023-03-19
可逆冷轧机
可逆冷轧机 881     
 0

本实用新型公开了一种可逆冷轧机,包括开卷机和装置本体,所述开卷机的顶部一端设置有钢板,且钢板的一端贯穿设置有夹送辊组件,所述钢板的一端贯穿连接有对中矫直辊组件。该可逆冷轧机,设置了可逆向冷轧的工序,可以多次反复轧制,且通过导向槽使各个辊转动对本身进行冷却,实现对钢板多次冷轧轧制的工序,达到控制钢板冷轧轧制的精准度,且轧制效率提高,该装置设置了冷却清洗喷淋装置和温度传感警报器可以对压轧的钢板的温度进行感应,提示喷淋系统进行水冷却,提高对钢板轧制的轧制质量,同时利用循环净化过滤装置将冷却废水进化循环利用达到有效节省钢板轧制成本的作用。

标签:
废水处理
江苏 - 苏州 来源:中冶有色网 2023-03-19
自适应初步清洗装置
自适应初步清洗装置 1072     
 0

本实用新型公开了一种自适应初步清洗装置,包括手洗部和设置在手洗部一侧的喷淋部,所述手洗部包括水池,水池上设置有水洗龙头,所述喷淋部包括传送带,所述传送带两侧通过支腿支撑,所述传送带下方设置有液体收集导向槽,所述液体收集导向槽两侧均设置有若干L型挂件,所述L型挂件底部勾设液体收集导向槽底部,所述L型挂件上部通过压紧块锁固在传送带侧边,所述传送带上方设置有纯水喷淋箱,所述纯水喷淋箱沿传送带输送方向上的两侧设置有塑料帘,所述传送带位于纯水喷淋箱两端还设置有护栏。本实用新型结构简单,设计合理,能够有效清洗表面,并且废水回收利用,提高生产效率。

标签:
废水处理
江苏 - 苏州 来源:中冶有色网 2023-03-19
角度可调的自动倾倒装置

本实用新型属于实验室废水处理技术领域,尤其为一种角度可调的自动倾倒装置,包括输送箱,所述输送箱包括外箱和位于外箱内侧的内箱;还包括底座,底座的顶面固定有两个对称分布的侧板,在两个所述侧板内侧安装有可翻转的翻转底板;在所述翻转底板的顶面固定有两个对称分布的支撑板,所述输送箱可翻转地安装在两个所述支撑板的内侧;在所述底座顶面还固定有定位支撑组件;在所述翻转底板的顶面还固定有背板;本实用新型的实验室废液输送装置,输送箱带有两级翻转功能,实现大角度翻转和调节,方便废液的上下料;输送箱包括嵌入式安装的外箱和内箱,内箱易于拆卸清洗,解决了现有装置不方便对输送箱进行清洗的问题,易于输送不同种类的废液。

标签:
废水处理
江苏 - 苏州 来源:中冶有色网 2023-03-19
便于清洗的气动式石油阀门闸板

本实用新型公开了一种便于清洗的气动式石油阀门闸板,该便于清洗的气动式石油阀门闸板,包括本体、设置在本体内部的螺纹槽、设置在螺纹槽内侧面的螺纹杆以及设置在螺纹杆底部的密封盘,所述本体的外表面开设有注水槽,所述本体的内侧面设置有导液槽,所述本体的内侧面开设有活动腔,所述活动腔的内侧面设置有喷淋头;通过注水槽以及喷淋头之间的相互配合,可以在需要清洁时向阀门的内部喷洒清洁剂对润滑油进行分解清洁并喷洒清洁水对内部分解后的润滑油进行冲洗,且通过排废槽可以方便对清洗过程中的废水进行排出,从而可以方便对阀门的内部进行清洗处理,避免了阀门内部清洁时需要对其进行拆卸清洁导致其清洁过程较为麻烦的情况发生。

标签:
废水处理
江苏 - 苏州 来源:中冶有色网 2023-03-19
好氧颗粒污泥培养装置

本实用新型公开了一种好氧颗粒污泥培养装置,包括支撑架、培养桶、桶盖、传动组件和清洁组件,所述培养桶连接设于支撑架上,所述桶盖设于培养桶顶部,所述传动组件连接设于桶盖上,所述清洁组件设于培养桶内,所述传动组件包括连接盘、支撑板、旋转电机、主动齿轮盘、从动齿轮盘和丝杠,所述清洁组件包括水箱、进水管、传动板、电动伸缩杆和连接板。本实用新型涉及废水生物处理技术领域,具体是提供了一种实用性高,使用简单,可大批量进行培养,便于清洗和消毒,提高好氧颗粒污泥的培养环境,进一步使好氧颗粒污泥培养质量提高的一种好氧颗粒污泥培养装置。

标签:
废水处理
江苏 - 苏州 来源:中冶有色网 2023-03-19
高级氧化装置
高级氧化装置 820     
 0

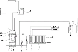
本实用新型揭示了一种高级氧化装置,包括氧化反应器、臭氧发生器、尾气破坏器及芬顿反应器,所述氧化反应器通过不同的管路分别与臭氧发生器连接、尾气破坏器及芬顿反应器连接,还包括第一药品罐及第二药品罐,所述第一药品罐通过另一管路与氧化反应器连接。本实用新型解决高浓度废水生化性差,蒸发费用高且易挥发等问题,尤其对于高盐分高COD具有非常好的应用和推广前景。

标签:
废水处理
江苏 - 苏州 来源:中冶有色网 2023-03-19
新型循环水池
新型循环水池 738     
 0

本实用新型公开了一种新型循环水池,包括:水池,水池的底壁从左往右向下倾斜,在水池的右侧壁上设置有第一管道,在第一管道上连接有浊度分析仪,在位于第一抽水泵右侧的第一管道上分别连接有第二管道和第三管道,第二管道与废水处理装置相连,第三管道与工作区域的冲洗设备相连;在水池的左侧壁上设置有循环管,在循环管上设置有第二抽水泵,循环管的进水口从水池的上方向下伸入到水池中,循环管的出水口从水池的下方伸入到水池中、并靠近水池的底壁,在循环管的出水口上连接有除淤管,除淤管横布在水池中,在除淤管的右侧壁上斜向下开设有若干出水孔。本实用新型的优点在于能够减少杀菌剂、除垢剂的使用量,从而保障冷却水的清洁度。

标签:
废水处理
江苏 - 苏州 来源:中冶有色网 2023-03-19
具备表面处理的汽车配件下料装置

本实用新型提供了一种具备表面处理的汽车配件下料装置,本实用新型涉及汽车配件下料装置技术领域,具备表面处理的汽车配件下料装置包括:下料装置主体,下料装置主体包括支杆、弹簧以及上支板,且上支板平行于下料装置主体上方,支杆设有两根,且两根支杆末端分别嵌入于下料装置主体上表面左右两侧,两根支杆上表面与上支板底面固定,且弹簧嵌入于支杆内侧中心,上支板下表面和下料装置主体上表面均焊接有横板,且横板表面开有至少五个凹槽,凹槽内嵌入有清洗组件,清洗组件包括清洗杆和刷毛,且清洗杆垂直焊接于清洗组件上表面;本实用新型的有益效果在于:下料的同时进行汽车配件表面处理/及时排出产生的废渣和废水。

标签:
废水处理
江苏 - 苏州 来源:中冶有色网 2023-03-19
湿式宽幅砂带拉丝机
湿式宽幅砂带拉丝机 873     
 0

本实用新型公开了一种湿式宽幅砂带拉丝机,包括设备下机架、机架外壳、工件喷淋水回收过滤机构和挤水风干机构,其特征在于还包括设于设备下机架上的输送平台、位于输送平台上方的拉丝单元组、用于固定和控制拉丝单元组升降的升降机构;所述拉丝单元组包括砂带、用于缠绕和固定砂带的接触辊、用于张紧砂带的张紧辊、用于驱动接触辊和砂带旋转的砂带驱动电机;所述升降机构包括升降机架、升降减速电机和一组以上的升降机单元组;本实用新型采用输送平台固定、砂带拉丝机构高度可调式以适应需要流水线式对接时所需要用到的拉丝机,且能将废水过滤机构放入设备下机架内部,节约空间又能够对喷淋水回收利用。

标签:
废水处理
江苏 - 苏州 来源:中冶有色网 2023-03-19
废气处理池
废气处理池 983     
 0

本实用新型公开了一种废气处理池,包括:水池、过滤网以及消毒室,水池位于废气处理池的底部,水池的侧壁设置有进气管道,水池的顶部设置有冷凝管道;冷凝管道的远离水池一侧设置有若干过滤网;若干过滤网的远离冷凝管道一侧设置有消毒室,消毒室的内壁设置有若干消毒灯;本实用新型采用多重过滤和消毒的设计,可以对废水进行彻底的过滤、消毒、除臭等操作,使废气更加干净,不会破坏环境;采用水洗法,可以有效除臭,洗去废气中的杂质;采用过滤层的设计,可以将废气中的杂质进行更进一步的充分的过滤,使废气更加干净,采用消毒室的结构设计,对废气进行充分消毒,使其排入大气后对大气无害。

标签:
废水处理
江苏 - 苏州 来源:中冶有色网 2023-03-19
新型连续间歇式污泥耗氧呼吸速率测定装置

本实用新型公开了一种新型连续间歇式污泥耗氧呼吸速率测定装置,包括控制器、曝气池和反应池,曝气池和反应池均设置在控制器的一侧,曝气池朝向反应池的一侧固定连接有第一固定管,且曝气池侧面靠近第一固定管的一侧固定连接有第一连通管,反应池朝向曝气池的一侧固定连接有第二固定管,本实用新型涉及废水处理技术领域。该新型连续间歇式污泥耗氧呼吸速率测定装置,可以将曝气充氧过程与非曝气反应过程分成两个独立的过程,在曝气池,污泥与污水的混合液被曝气充氧到4mg/L以上,经循环泵输送至非曝气反应池,当反应池内DO1的读数降至2mg/L时,记录DO1随时间的变化,据此计算OUR值,可以在线检测,并且实时反馈,测量误差小。

标签:
废水处理
江苏 - 苏州 来源:中冶有色网 2023-03-19
河道面源污染物治理系统

本实用新型公开了一种河道面源污染物治理系统,包括沿河道的一侧或两侧而建的集水通道和清理通道,所述集水通道设有若干用于收集雨水的下水道板和若干收集生活用水或下水道排水的排水管,所述集水通道的下部设有筛网,所述集水通道的底部设有若干用于与所述清理通道连通的连通口,所述清理通道内设有碎石层、粉煤灰层和沸石滤料层,所述清理通道的上部设有若干连通于所述河道的流道口。本实用新型的治理系统,通过集水通道收集雨水和生活废水,集水通道的下部设有过滤大颗粒垃圾的筛网,之后依次经过清理通道内的碎石层、粉煤灰层和沸石滤料层,除去水中的氮、磷、铅以及六价铬,最后经由流道口流至河道。

标签:
废水处理
江苏 - 苏州 来源:中冶有色网 2023-03-19
低排放污水处理系统
低排放污水处理系统 1150     
 0

本实用新型揭示了低排放污水处理系统,包括至少一预处理装置,所述预处理装置连接碳滤罐,所述碳滤罐连接5μm过滤器,所述5μm过滤器连接第一RO装置,所述第一RO装置连接第二RO装置,所述第二RO装置连接蒸发器。本方案设计精巧,结构简单,通过混凝、固液分离后去除较大颗粒的污染物,接着通过多级过滤去除小颗粒的污染物以及通过经过反渗透处理,大幅度的减少进入蒸发器中的液体量,从而能够节约能源、提高处理效率,极大了减少了废水、废渣的排放量。

标签:
废水处理
江苏 - 苏州 来源:中冶有色网 2023-03-19
用于酚醛树脂生产中高纯氮气脱酚的反应釜系统

本实用新型涉及一种用于酚醛树脂生产中高纯氮气脱酚的反应釜系统,包括相连通的反应釜、冷凝器和废水收集罐,反应釜内还设有与反应釜外部相连通的氮气导管,氮气导管包括用于高纯氮气导入的导入管和用于高纯氮气导出的导出管,导入管和导出管可拆卸式连接,导出管上分布有若干气体喷嘴,若干气体喷嘴在导出管的延伸方向上等距离成列排布;本实用新型提供了一种结构简单、使用方便的用于酚醛树脂生产中高纯氮气脱酚的反应釜系统。

标签:
废水处理
江苏 - 苏州 来源:中冶有色网 2023-03-19
小型多功能离子交换装置

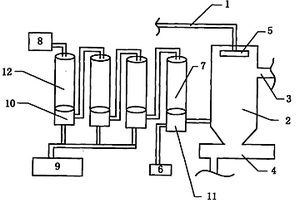
一种小型多功能离子交换装置,属于废水处理技术领域。该小型多功能的离子交换装置包括吸附柱污水进水端用于与污水系统连通,吸附出水端用于与吸/脱附箱连通;精滤器连接在吸附柱污水进水端与污水系统之间,用于污水过滤;吸/脱附箱通过管路与吸附泵、脱附泵分别相连并通过阀门控制管路通断,吸/脱附箱与吸附泵连通时用于吸附污水,吸/脱附箱与脱附泵连通时用于脱附再生;换热器管层与脱附泵相连,换热器壳层用于通入蒸汽或热水进行热脱附。本实用新型可通过一套装置灵活处理不同水质污水。

标签:
废水处理
江苏 - 苏州 来源:中冶有色网 2023-03-19
环保水洗槽设备
环保水洗槽设备 1192     
 0

本实用新型涉及一种环保水洗槽设备,包括底座,所述底座底部设有固定支腿,所述底座顶部设有清洗槽,所述清洗槽包括清洗腔及蓄水腔,所述底座内腔设有超声波发生器,所述清洗腔的内表面设有超声波换能器,所述清洗腔靠近所述蓄水腔的侧壁下半部分设有若干透水孔,所述清洗腔靠近所述蓄水腔的侧壁上半部分为密封板,所述蓄水腔靠近所述清洗腔的侧壁下半部分为密封板,所述蓄水腔靠近所述清洗腔的侧壁上半部分设有过滤板,所述清洗槽的顶部设有固定板,所述固定板上方设有顶板,所述顶板下方设有电动伸缩杆,所述电动伸缩杆一侧设有驱动电机。本实用新型能够循环使用清洁用水,减少了废水的产生,达到了节约水资源利于环保的目的。

标签:
废水处理
江苏 - 苏州 来源:中冶有色网 2023-03-19
贴片型IRM高屏蔽结构
贴片型IRM高屏蔽结构 813     
 0

本实用新型属于红外信号接收技术领域,具体涉及一种贴片型IRM高屏蔽结构,包括PCB板,PCB板上贯穿有若干个导通孔,各导通孔中均塞有铜柱;PCB板的正面上设有PD晶片,且反面上设有IC芯片;各铜柱的一端均通过焊线连接至PD晶片上,各铜柱的另一端均通过焊线连接至IC芯片上;PCB板的两面上均固化有封装胶,PD晶片和IC芯片内置于PCB板两侧的封装胶内。本实用新型的有益效果是:节省了内屏蔽罩或外屏蔽罩的物料及工艺成本;制作工艺简单化,相对于插件类产品和贴片类支架式产品减少了数道工序,减少了具有废水废气污染的高成本的电镀锡制程;相对于贴片类PCB产品减少了外屏蔽罩的组装难度和人工费用。

标签:
废水处理
江苏 - 苏州 来源:中冶有色网 2023-03-19
可对面部喷雾补水的美容促渗仪

本实用新型公开了一种可对面部喷雾补水的美容促渗仪,包括促渗仪本体、支撑底座、连接软管、移动板和连接喷头,所述促渗仪本体内部安装有贴合层,且贴合层安装在仪器外壳上,并且仪器外壳与加热装置相互连接,所述支撑底座安装在仪器外壳下端,且仪器外壳右下端安装有废水管,并且仪器外壳上安装有导水管,所述导水管上安装有小型水泵,且小型水泵与仪器外壳相互连接。该可对面部喷雾补水的美容促渗仪,通过仪器外壳内设置的凹槽,将纯净水注入仪器外壳内,而后通过加热装置对纯净水进行加热,从而便于后续进行面部补水,通过动板的移动,使限位垫与出水管紧密贴合,实现对出水管进行固定,从而便于进行补水,即使装置的使用范围更广。

标签:
废水处理
江苏 - 苏州 来源:中冶有色网 2023-03-19
齿轮生产用齿槽定距切割装置

本实用新型公开了一种齿轮生产用齿槽定距切割装置,包括箱体和螺纹杆,所述箱体的正面设置有开口,所述箱体的内部固定安装有底板,所述底板的底部固定安装有电机,所述电机的输出端固定安装有下压板,所述下压板的顶部开设有活动槽,所述活动槽的内部固定安装有第二固定块,所述活动槽内壁的两侧之间固定安装有两根滑杆,两根所述滑杆均穿插在第二固定块的内部,两根所述滑杆上均活动安装有两个滑块,所述滑块的个数为四个,且四个所述滑块两两为一组,两组所述滑块之间均固定安装有连接板,两块所述连接板的顶部均固定安装有推板,本实用新型通过设置一系列的结构使得本装置具有对齿轮中心孔定位并固定和废水过滤的特点。

标签:
废水处理
江苏 - 苏州 来源:中冶有色网 2023-03-19
搅拌润滑系统
搅拌润滑系统 1137     
 0

本实用新型公开了一种搅拌润滑系统,包括:搅拌机和热交换器,搅拌机和热交换器之间通过第一管道和第二管道形成回路,第一管道上安装有第一气动隔膜阀,第一管道通过第三管道与废水管连通,且第三管道上安装有第二气动隔膜阀,热交换器的盘管一端通过第四管道通入冷冻水,其另一端通过第五管道回收冷冻水,热交换器上部的进水端通过第六管道通入注射用水,第六管道上还设置有第七管道,通过第七管道通入气体。热交换器作为储存注射用水的容器与搅拌机相连,并且通过氮气加压,使注射用水与搅拌充分接触达到润滑作用,通入循环利用的冷冻水,降低润滑注射用水的温度,从而达到搅拌机降温的目的,润滑注射用水消耗量小,冷冻水降温效果较好。

标签:
废水处理
江苏 - 苏州 来源:中冶有色网 2023-03-19
用于碱性锌镍合金电镀的不溶性阳极装置

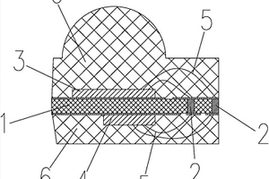
本实用新型是一种用于碱性锌镍合金电镀的不溶性阳极装置,其特征在于:该装置包括阳极体⑴和隔离系统(5);阳极体(1)是由低碳钢上镀镍制成;隔离系统(5)是由三部分组成,包括钛制网格架I(2),聚丙烯过滤膜(3)和钛制网格架Ⅱ(4),聚丙烯过滤膜(3)置于钛制网格架I(2)和钛制网格架Ⅱ(3)之间,且钛制网格架I(2)、钛制网格架Ⅱ(4)及阳极体(1)以导电方式连接。本实用新型的有益效果是:该装置可以减少络合剂在阳极表面的副反应以及副产物的产生,从而提高电流效率,降低络合剂的额外消耗,减少氰化物废水处理的成本,并且该装置可以比较经济廉价的获得。

标签:
废水处理
江苏 - 苏州 来源:中冶有色网 2023-03-19
垃圾处理干湿分离装置
垃圾处理干湿分离装置 1130     
 0

本实用新型公开了一种垃圾处理干湿分离装置,具体涉及垃圾处理技术领域,包括放置箱,所述放置箱内侧面固定设有竖板,所述竖板上设有分离装置本体,所述放置箱外表面固定设有放置盒,所述放置盒内侧面设有粉碎装置,所述分离装置本体包括气缸二,所述气缸二与竖板固定连接,所述气缸二输出轴固定设有U型板,所述U型板内侧面转动设有链轮,所述链轮与竖板转动连接,所述竖板外表面固定设有链条,所述链轮与链条啮合连接,提前打开一组排污管,把干湿混合的垃圾从进料口内倒入放置箱内,干湿混合的垃圾会落在滤板二上,液体废水会经过滤板二流入放置箱的底部,再经由其中一个排污管排出,固体垃圾会留在滤板二上,实现干湿混合垃圾的分离。

标签:
废水处理
江苏 - 苏州 来源:中冶有色网 2023-03-19
冷冻机用清洗涂装系统
冷冻机用清洗涂装系统 1171     
 0

本实用新型公开了一种冷冻机用清洗涂装系统,包括机体,所述机体内部设置有固定板,所述固定板的右端延伸至机体外部,所述固定板顶端设置有放置箱,所述机体内部顶端安装有若干均匀分布的喷淋头,所述喷淋头位于放置箱正上方,所述喷淋头的输入端连接有输入管,所述输入管远离喷淋头的一端延伸至机体外部,并连接在外界的水管上,所述固定板底端设置有废水循环装置,本实用新型结构简单,操作方便,具有良好的清洗效果,提高了工件的清洗效率,更加节省资源。

标签:
废水处理
江苏 - 苏州 来源:中冶有色网 2023-03-19
土壤异位淋洗系统
土壤异位淋洗系统 1201     
 0

本实用新型是一种土壤异位淋洗系统,该系统主要包括依次设置的土壤预处理单元、物理分离单元、增效洗脱单元、废水处理及回用单元、控制单元,该方法主要包括土壤预处理、土壤分离分级处理、直接洗脱或增效洗脱处理、最后进入污泥脱水系统,泥饼根据污染性质选择相应的处理处置方法。采用本实用新型技术方案,可以针对含重金属及半挥发性有机污染物、难挥发性有机污染物的土壤进行淋洗处理,并且单位面积淋洗成本低,处理周期短,运行维护和监测方便。

标签:
废水处理
江苏 - 苏州 来源:中冶有色网 2023-03-19
物联网智能自助售酒机
物联网智能自助售酒机 1117     
 0

本实用新型公开了自助售酒机领域的一种物联网智能自助售酒机,包括售酒机本体,所述售酒机本体的一侧外表面设有酒杯存放清洗机构,所述售酒机本体的后端外表面设有移动提拉机构,所述酒杯存放清洗机构包括箱体、水箱、开关、全方位摄像头、废水收集座、门板、锁扣与清洗头,所述水箱位于箱体的上端外表面,所述开关位于水箱的前端外表面,所述全方位摄像头位于箱体的上端一侧。此设置具有存放酒杯的功能,并且对用后的酒杯可以冲洗,提高了用户的体验感,也节约了一定的资源,响应了国家的号召理念;此设置移动较为简便,并且稳定性强,不容易晃动,避免了智能自助售酒机摔落台面的可能性,保证售酒机的完好性。

标签:
废水处理
江苏 - 苏州 来源:中冶有色网 2023-03-19
具有自清洁装置的3D打印设备

本实用新型属于打印机技术领域,尤其为一种具有自清洁装置的3D打印设备,包括机箱,所述机箱的顶端面内侧设有打印机,所述机箱的内侧固定连接有过滤网,所述过滤网的一侧固定连接有打印机座;可对控制器进行编程后使用,且当打印机停止工作一段时间后,可控制其它设备工作,实现了自清洁工作,且清洁前需在空档期取出产品,在清洁时,使用清洁刮刀可对凝结的材料进行刮除,配合毛刷辊进行清洁,提高了清洁的效率,进一步的,在清洁时,可利用喷头进行喷洒水,可降低清洁的难度,而清洁的产生的废屑废水,经过滤网过滤后,可由机箱一侧的排污管排放,综上,本实用新型,清洁时效率较高且方便,能有效避免清洁不干净影响到后续产品的质量。

标签:
废水处理
江苏 - 苏州 来源:中冶有色网 2023-03-19
上一页 20 21 22 23 24 ... 118 下一页
共118页    到第

中冶有色为您提供最新的江苏苏州有色金属废水处理技术理论与应用信息,涵盖发明专利、权利要求、说明书、技术领域、背景技术、实用新型内容及具体实施方式等有色技术内容。打造最具专业性的有色金属技术理论与应用平台!

全国热门有色金属设备推荐
展开更多 +
全国热门有色金属技术推荐
展开更多 +

 

江西省隆恩特环保设备有限公司
宣传

报名参会
更多+

报告下载

有色专家
更多+

矿冶科技集团有限公司
所长/研究员级高工
江西铜业集团有限公司
党委书记、董事长
洛阳有色矿业集团有限公司
生产技术部经理
赣州江钨钨合金有限公司
副总经理
任灵宝金源矿业股份有限公司
技术发展部经理
赤泥综合利用研究报告2025
推广

热门技术
更多+

推荐企业
更多+

福建省金龙稀土股份有限公司
宣传

发布

在线客服

公众号

电话

顶部
咨询电话:
010-88793500-807