青岛垚鑫智能科技有限公司
宣传

位置:中冶有色 >

有色技术频道 >

> 固/危废处置技术

分类:
全部
矿山技术
冶金技术
材料制备及加工技术
环境保护技术
分析检测技术
 
全部
废水处理技术
大气治理技术
固/危废处置技术
土壤修复技术
地区:
全部
北京
天津
上海
重庆
河北
山西
辽宁
吉林
黑龙江
江苏
浙江
安徽
福建
江西
山东
河南
湖北
湖南
广东
海南
四川
贵州
云南
陕西
甘肃
青海
内蒙
广西
西藏
宁夏
新疆
其他
其他
展开
 
全部
北京

北京有色金属固/危废处置技术理论与应用

免费发布技术信息>>
固体废物处置工艺的余热发电系统

本实用新型公开了一种固体废物处置工艺的余热发电系统,包括与饱和蒸汽包设备连通的主蒸汽系统,主蒸汽系统连通透平机,透平机通过传动机构传动连接发电机;所述透平机连通有冷凝系统,冷凝系统连通有抽真空系统;所述主蒸汽系统、透平机、冷凝系统和抽真空系统共同连接有PLC。本实用新型能在压力流量极大波动的工况下长期稳定运行,发电可靠,同时回收放散低品位饱和蒸汽的热能,与固体废物焚烧处理中的蒸汽锅炉形成了良好的配套。节省了电能和制水成本,具有明显的经济效益。

标签:
固废
北京 - 北京 来源:中冶有色网 2023-03-19
生活废弃物固体燃料添加剂及其应用

本发明是通过利用生活废弃物的分类、粉碎、干燥、定形过程的有机废弃物添加剂固体燃料制造方法。有机废弃物和腐殖酸混合物,黑铅粉和氧化铁混合物及氢氧化钙或氢氧化镁制备添加剂,使其提高固体燃料的成形性、燃烧性、安定性,有效去除恶臭。

标签:
固废
北京 - 北京 来源:中冶有色网 2023-03-19
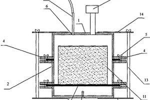
填埋场固体废物水力参数的直接测定方法及其专用设备

本发明公开了一种填埋场固体废物水力参数的直接测定方法及其专用设备。该设备它包括由连接结构连接,可拆分和组装的盖体、侧壁和底座三部分组成的箱体;在箱体的内腔中底座上部架设有一多孔陶土板,该多孔陶土板上设有用于装实验样品的环刀;所述箱体的顶部盖体上设有通气孔和压力监控装置;所述箱体底座上设有出水口。用本发明的装置测定填埋场固体废物的水力参数具有操作简单、快速,结果准确、可靠的优点,从而为研究垃圾堆的水分运移特性提供了一条新的途径,应用前景广阔。

标签:
固废
北京 - 北京 来源:中冶有色网 2023-03-19
农村固体废弃物联合好氧堆肥方法

一种农村固体废弃物联合好氧堆肥方法,其主要步骤如下:A)将秸秆切割为5-10cm,向秸秆堆垛上喷洒复合菌剂,喷洒量为菌剂体积/秸秆干重=4-5mL/kg,同时利用前一次堆肥步骤B产生的渗滤液将秸秆的含水率调节为50%-55%,自然通风发酵10-15天;B)将生活垃圾中分选出的可分解有机物与步骤A预发酵后的秸秆混合;混合后的起始含水率和C/N分别调节为50%-65%和22-35,进行第一次堆肥3-5天,该步骤产生的尾气导入步骤C的堆体中;将步骤B的堆肥与畜禽粪便进行混合,混合后的起始含水率调节为50-60%,进行第二次堆肥3-5天;D)将步骤C的堆肥进行第三次堆肥5-7天,并利用步骤C产生的渗滤液调节堆体含水率,使堆料含水率维持在45%-50%之间。

标签:
固废
北京 - 北京 来源:中冶有色网 2023-03-19
便携式固体废物通风干燥装置

一种便携式固体废物通风干燥装置,包括:一个样品通风箱,其箱体的三面为通风网格板,其中一面通风网格板可开启和关闭,每一面的通风网格板上方设有可伸缩的遮光板;样品通风箱内部分为多层样品盛放板;样品通风箱的底部安装有多向轮。本发明还公开了利用上述便携式固体废物通风干燥装置进行通风干燥的方法。本发明的装置成本低廉、重量较轻、便于携带、操作简便、节能环保。

标签:
固废
北京 - 北京 来源:中冶有色网 2023-03-19
适用于油区固体废物油类萃取的实验装置

本实用新型公开了一种适用于油区固体废物油类萃取的实验装置,其包括:超声波清洗机,所述超声波清洗机包括下部的超声波发生机构以及上部的超声工位;萃取固定机构,所述萃取固定机构安装在所述超声波清洗机的超声工位内。本实用新型结构简单、操作便捷且工艺设计合理,该装置利用现有常规的超声波清洗机,并通过增加萃取固定机构,从而将超声波技术应用于萃取工艺中,大大缩短了油区固体废物油类萃取的操作时间,同时也显著提高了萃取效率。

标签:
固废
北京 - 北京 来源:中冶有色网 2023-03-19
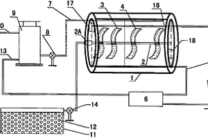
基于有机废弃物固体发酵产沼气的卧式厌氧反应器

本实用新型提供了属于有机废弃物厌氧处理技术领域的一种基于有机废弃物固体发酵产沼气的卧式厌氧反应器。卧式筒体上部设置进料口,出料口设置在卧式筒体下部,水平搅拌轴设置在卧式筒体中部,水平搅拌轴经搅拌轴连接装置与电机连接,水平搅拌轴上安装正向涡轮和同轴反向涡轮,或者水平搅拌轴上安装双头右旋螺旋绞龙和同轴双头左旋螺旋绞龙,循环水筒与卧式筒体相连,进料口上端设置平衡罐,平衡罐与集气筒相连。本实用新型适用于不同物性的有机废弃物,可实现发酵过程物料混合均一,热量分布均衡,具有有机物质降解充分,单位有效容积产气率高等特点,同时降低了搅拌能耗。

标签:
固废
北京 - 北京 来源:中冶有色网 2023-03-19
焚烧处理固体废弃物过程中二噁英控制装置

本实用新型公开了一种焚烧处理固体废弃物过程中二噁英控制装置,涉及环境保护技术领域,包括:超高温热解气化熔融炉、诱导炉、集尘器、风管;所述超高温热解气化熔融炉炉体入口处设有依次启闭的三道活门,炉体底部设置有用于储存和排出炉渣的诱导炉,所述超高温热解气化熔融炉炉体与所述集尘器通过烟气管道连通,所述集尘器与所述诱导炉之间通过风管连通。本实用新型有效地控制了焚烧处理固体废弃物的过程中二噁英的生成,可达到GB 18485‑2014《生活垃圾焚烧污染控制标准》规定的0.1ng/m3的排放标准。

标签:
固废
北京 - 北京 来源:中冶有色网 2023-03-19
小型风冷式固体废弃物焚烧装置

小型风冷式固体废弃物焚烧装置,涉及一种快装、小型焚烧炉的结构及焚烧处理技术。本实用新型在结构上采用复合床和风冷式结构,并设有气态有机物可燃质及细小颗粒的燃烬室。因此与现有技术相比,不仅克服了常规固定床不易排渣、难于连续运行及常规移动床结构复杂,安装维护难度大,工作于高温区的转动部件可靠性差等缺陷;更重要的是使带菌、有毒及富含人工合成有机物等固体废弃物在高温富氧条件下能充分燃烧和燃尽,使其不排放危害人体健康的成分,达到环保要求。

标签:
固废
北京 - 北京 来源:中冶有色网 2023-03-19
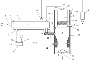
固体废物热解及油气催化重整系统

本发明提供了一种固体废物热解及油气催化重整系统,属于固体废物处理技术领域。本发明在外热式热解炉1的热解腔6内进行热解反应,所得热解油气进入催化重整反应器2中进行催化重整反应,所得燃气能够进行内燃发电、锅炉发电、生产高附加值产品等资源化利用;热解产生的热解炭进入燃烧区17进行燃烧,产生的热量能够用于支撑催化重整反应;燃烧产生的烟气为高温烟气,经除尘处理后,进入外热式热解炉1的换热腔7为热解反应提供热量;换热后的烟气进入换热器4与空气进行第二换热,所得热空气进入燃烧炉3,为热解炭的燃烧提供热空气。

标签:
固废
北京 - 北京 来源:中冶有色网 2023-03-19
相似模拟实验室用固体废弃物处理装置

本实用新型公开了一种相似模拟实验室用固体废弃物处理装置,包括底板、振动筛、连接套筒、破碎机和集成控制装置,所述底板底部安装滚轮,顶部焊接凹槽,凹槽与扶手架连接,所述振动筛包括底座、第一支柱、减震弹簧、振动筛箱体、振动电机、筛网、振动筛进料口、废渣出料口装置、砂土出料口,所述连接套筒连接振动筛进料口和破碎机出料口,所述破碎机包括第二支柱、横梁、破碎机出料口、破碎机箱体、工程塑料斜块、齿面辊、轴承、破碎电机、破碎机进料口装置,所述集成控制装置带有故障指示灯和按钮面板。本实用新型通过集成控制装置控制破碎机和振动筛,回收利用相似模拟实验产生的固体废弃物,减少对环境的污染。

标签:
固废
北京 - 北京 来源:中冶有色网 2023-03-19
固体废物焚烧烟气中二噁英的净化方法及设备

本发明公开了一种固体废物焚烧烟气中二噁英的净化方法和设备,所述方法包括下列步骤:1)去除粗颗粒;2)第一级布袋除尘器除尘;3)第二级布袋除尘器除尘。所述设备包括旋风除尘器,所述旋风除尘器下游连接第一级布袋除尘器,旋风除尘器和第一级布袋除尘器之间设置有改性活性炭喷射装置;第一级布袋除尘器下游连接第二级布袋除尘器,第一级布袋除尘器和第二级布袋除尘器之间设置有新鲜活性炭喷射装置,第二级布袋除尘器下游通过引风机连接烟囱。它工艺简单、运行费用较低,而且能满足烟气二噁英排放浓度低于0.1ng TEQ/Nm3的要求。

标签:
固废
北京 - 北京 来源:中冶有色网 2023-03-19
固体氯化锌快速活化废弃咖啡渣制备活性炭的方法

本发明提供了一种固体氯化锌快速活化废弃咖啡渣制备活性炭的方法。该方法以废弃咖啡渣为碳源,经固体氯化锌活化,制备出具有良好的吸附性能的活性炭。该方法活化剂为固体氯化锌,活化过程简单,活化时间短,是一种更高效、经济的制备方法,适合于工业化生产。

标签:
固废
北京 - 北京 来源:中冶有色网 2023-03-19
箱型低、中水平放射性固体废物混凝土高整体容器

本实用新型涉及一种箱型低、中水平放射性固体废物混凝土高整体容器,其结构包括纤维增强高性能混凝土材质的箱体和盖板,箱体内设有若干个桶位,在箱体内壁和盖板外缘的对应位置分别设有用于灌注密封材料的环形凹槽,在盖板的四周和中部分别开有若干个灌浆孔。本实用新型具有优良的力学性能、密封性能和耐久性能,在放射性废物管理过程中,可以用于贮存、运输和处置低、中水平放射性固体废物,并能保证这些废物安全处置300年-500年。

标签:
固废
北京 - 北京 来源:中冶有色网 2023-03-19
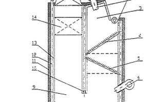
用于直接测定固体废物水力参数的设备

本实用新型的目的是提供一种可用于直接测定固体废物水力参数的设备。为解决上述技术问题,本实用新型采用以下技术方案:所述设备包括由连接结构连接,可拆分和组装的盖体(1)、侧壁(2)和底座(3)三部分组成的箱体;在箱体的内腔中底座上部架设有一多孔陶土板(9),该多孔陶土板上设有用于装实验样品的环刀(11);所述箱体的顶部盖体上设有通气孔(6)和压力监控装置(12);所述箱体底座上设有出水口(10)。本实用新型的设备测定固体废物的水力参数具有操作简单、快速,结果准确、可靠的优点,从而为研究垃圾堆的水份运移特性提供一条新的途径,应用前景广阔。

标签:
固废
北京 - 北京 来源:中冶有色网 2023-03-19
水泥窑协同处置固体废物的窑灰入窑系统

本实用新型公开了一种水泥窑协同处置固体废物的窑灰入窑系统,包括余热锅炉、增湿塔、布袋除尘器、输送设备、原料磨、入窑提升机和中间仓,余热锅炉、增湿塔的窑灰出口与原料磨的物料入口通过输送设备工序连接,布袋除尘器的窑灰出口与入窑提升机及中间仓的物料入口通过输送设备工序连接,中间仓的物料出口与分解炉的物料入口连通。局部改变水泥工艺,使水泥窑协同处置固体废物效率更高,有效减少污染物的排放,将水泥窑况影响降到最低。

标签:
固废
北京 - 北京 来源:中冶有色网 2023-03-19
处理浓缩家庭生物性废弃物的改进型升流式固体反应器

本发明属于环境微生物技术领域,具体涉及一种对利用真空排水技术收集的浓缩家庭生物性废弃物(浓缩黑水与厨余垃圾)进行资源化处理的高效厌氧反应器—改进型升流式固体反应器。在常规升流式固体反应器内设置沼气回流搅拌装置,通过间歇定时搅拌,既可实现固液完全混合,获得更高的传质效果;也可在反应器底部形成污泥床层以防止微生物的流失,达到较长的污泥停留时间;既有利于破除浮渣层,避免发生反应器结壳现象;还有利于气泡与污泥的分离,强化消化液的沉淀性能。本发明结构简单、方便易行、占地面积小,是处理浓缩家庭生物性有机废弃物的最适宜反应器之一。

标签:
固废
北京 - 北京 来源:中冶有色网 2023-03-19
农村固体废物好氧发酵一体化装置

一种农村固体废物好氧发酵一体化装置,包括:一肥发酵仓,仓体内轴线安装有一端为开口,另一端封闭的一中空螺旋传动杆,该螺旋传动杆上开设有出气孔,该螺旋传动杆上呈反方向地设有若干对开有出气孔的空心叶片,该空心叶片与螺旋传动杆上的出气孔相对应;堆肥发酵仓的底部设有垃圾渗滤液收集管道,该垃圾渗滤液收集管道连接至废水处理装置;堆肥发酵仓的顶部设有除臭管道,该除臭管道通过抽风机连接至冷凝塔;该冷凝塔通过臭气管道连接至生物滤池,该生物滤池通过一曝气机连接至螺旋传动杆的开口端;该冷凝塔通过蒸馏水管道连接废水处理装置;废水处理装置的出水管连接至堆肥发酵仓内。

标签:
固废
北京 - 北京 来源:中冶有色网 2023-03-19
固体有机废料一体化智能好氧发酵处理设备

本实用新型公开了一种固体有机废料一体化智能好氧发酵处理设备,包括并排且密闭设置的两个发酵区,在发酵区的一侧设置有密闭的主料、辅料、辅料堆存区、净化曝气区和智能控制中心,在主料与辅料、辅料堆存区之间设有辅料添加传送机,在主料与一次发酵区之间设有一次发酵物料进料传送机,在一次发酵区与二次发酵区之间设有一次发酵产物转移传送机,在二次发酵区内部与二次发酵区外部之间设有发酵物料出料传送机,在两发酵区内部分别设有发酵翻抛机,在净化曝气区内设置有与两发酵区连接的曝气设备以及发酵废气回收处理设备,在智能控制中心内设有分别与各传送机、发酵翻抛机、曝气设备和发酵废气回收处理设备连接的PLC控制器。

标签:
固废
北京 - 北京 来源:中冶有色网 2023-03-19
用于含油固体废物的除污系统

本实用新型提供了一种用于含油固体废物的除污系统。除污系统包括:除污装置,包括第一壳体,第一壳体具有第一进出口和第二进出口,除污装置用于对含油固体废物进行初步的油泥分离;超声波处理装置,与除污装置独立设置;第一循环支路,设置在第一进出口和超声波处理装置之间;第二循环支路,设置在第二进出口和超声波处理装置之间,其中,除污装置的第一壳体经第一循环支路和第二循环支路与超声波处理装置连通。本实用新型的技术方案有效地解决了现有技术中的超声波处理装置难以充分发挥除污功能的问题。

标签:
固废
北京 - 北京 来源:中冶有色网 2023-03-19
水泥窑协同处置固体废物的窑灰入窑系统和方法

本发明公开了一种水泥窑协同处置固体废物的窑灰入窑系统和方法,系统包括余热锅炉、增湿塔、布袋除尘器、输送设备、原料磨、入窑提升机和中间仓,余热锅炉、增湿塔的窑灰出口与原料磨的物料入口通过输送设备工序连接,布袋除尘器的窑灰出口与入窑提升机及中间仓的物料入口通过输送设备工序连接,中间仓的物料出口与分解炉的物料入口连通;方法包括:将余热锅炉产生的一部分窑灰和增湿塔产生的一部分窑灰送往原料磨;将布袋除尘器产生的一部分窑灰送往入窑提升机入窑,将布袋除尘器产生的另一部分窑灰送往中间仓备用。局部改变水泥工艺,使水泥窑协同处置固体废物效率更高,有效减少污染物的排放,将水泥窑况影响降到最低。

标签:
固废
北京 - 北京 来源:中冶有色网 2023-03-19
利用工业固体废弃物制备煤矿防火材料的方法

本发明针对现有的煤矿隔气防火材料生产成本高、工艺复杂、使用过程中容易开裂脱落等问题,提出一种利用大宗工业固体废弃物制备隔气防火材料的方法,具体包括前处理、配料、调制、匀浆、喷涂五个环节。其特征是:将工业固体废弃物为研磨达到一定粒度后,添加粘接剂、聚合物乳液、消泡剂等,调制得到了一种稳定性好、环保无毒、易施工的隔气防火材料浆体,然后利用喷涂机涂敷于裸露的煤层表面,达到良好的隔气防火效果。新材料呈流体状,生产简便、成本低廉、使用效果优良,可以替代露天煤矿开采过程中大量封土防火的方法,有效解决煤炭在开采和贮存中的自燃问题,具有十分广阔的应用前景。

标签:
固废
北京 - 北京 来源:中冶有色网 2023-03-19
固体废弃物资源化的方法

本发明公开了一种固体废弃物资源化的方法,涉及环境保护技术领域,包括:固体废弃物在超高温热解气化熔融炉炉体内充分燃烧,超高温热解气化熔融炉的焚烧过程属于还原反应,气相反应以鲍多尔德反应和水煤气变换反应为主导,焚烧产生的炉渣全部为液态炉渣,并产生大量的热蒸汽及CO和H2两种可燃气体,该发明将燃烧产生的液态炉渣通过专用成纤机制成纤维,运行过程中产生的大量的热蒸汽及两种可燃气体H2和CO可用于发电或供热。

标签:
固废
北京 - 北京 来源:中冶有色网 2023-03-19
资源化利用工业固体废弃物的低碳胶凝材料及其制备方法

本发明涉及一种资源化利用工业固体废弃物的低碳胶凝材料及其制备方法。所述资源化利用工业固体废弃物的低碳胶凝材料,通过向以固体废弃物矿渣和钢渣为原料加工制得的矿渣微粉、钢渣超微粉中,按照合适配比添加第一复合激发剂和第二复合激发剂混匀后制得。该低碳胶凝材料,具有低碳环保、成本低和力学强度高等优点,且其安定性较好,符合国家标准。

标签:
固废
北京 - 北京 来源:中冶有色网 2023-03-19
利用固体废弃物热解制备电石的系统

本实用新型涉及利用固体废弃物热解制备电石的系统,所述系统中,第一热解装置具有进料口、高温半焦出口、热解气出口;混合装置具有高温半焦入口、生石灰入口、煤粉入口、混合料出口,高温半焦入口与高温半焦出口连接,混合装置的外壁设置有中空伴热层,中空伴热层上设置有进气口和出气口,进气口与热解气出口连接,中空伴热层的下端设置有焦油出口;成型装置具有混合料入口、型球出口,混合料入口与混合料出口连接;第二热解装置具有型球入口、电石冶炼球团出口,型球入口与型球出口连接;电石冶炼装置具有电石冶炼球团入口、电石出口,电石冶炼球团入口与电石冶炼球团出口连接。本实用新型在处理固体废弃物的同时制备电石,能源和热效率较高。

标签:
固废
北京 - 北京 来源:中冶有色网 2023-03-19
固体催化剂催化双氧水处理有机废水的方法

本发明公开了一种固体催化剂催化双氧水处理有机废水的方法,其特征在于,包括如下步骤:将固体催化剂和待处理有机废水混合,调节pH至6.5~7,加入双氧水,设置反应温度为150~180℃,反应压力为1.2~1.5个大气压,搅拌10~15min结束;过滤,滤除固体渣,得到处理后的水。该方法耗时短,处理效果好。

标签:
固废
北京 - 北京 来源:中冶有色网 2023-03-19
基于燃煤废水处理的固体燃料燃烧器

本发明公开了一种基于燃煤废水处理的固体燃料燃烧器,包括一个主燃料室外壳,该主燃料室外壳具有一个主燃烧室,在该主燃烧室中燃烧使用燃煤发电处理后的废水污泥形成的固体燃料;此外还包括点火燃烧器、旋流火焰燃烧空气喷嘴、燃烧空气供给装置和燃烧气体排放口等。

标签:
固废
北京 - 北京 来源:中冶有色网 2023-03-19
固体废弃物热解气化合成气净化处理方法及装置

本发明涉及一种固体废弃物热解气化合成气净化处理方法及装置,属于污染物排放控制技术领域。本发明装置是将三相交流电弧等离子体炬应用于固体废弃物热解气化等处理过程产生的合成气进行净化处理,在该装置内待处理气体通过扩张降速、增加反应停留时间、增加待处理气体在反应室内与高温等离子体的充分混合,并且利用三相交流等离子体的圆周均布方式形成的一个均匀的高温区域和可控气氛,在高温等离子体的作用下将待处理气体中含有的焦油、二噁英类、以及其他大分子有机物等物质不经过燃烧直接分解成小分子链的碳氢化合物,从而在不燃烧掉合成气中可燃成分的情况下达到净化合成气的功能。

标签:
固废
北京 - 北京 来源:中冶有色网 2023-03-19
固体废物合成沸石分子筛的装置和方法

一种固体废物合成沸石分子筛的方法,其步骤为:1)将固体废物与碱的水溶液配成混合液;2)对混合液进行超导磁分离预处理;3)经过超导磁分离预处理的混合液进行陈化胶凝反应,陈化胶凝反应温度为60-80℃;4)经陈化胶凝反应处理的混合物进行微波辐射发生晶化作用,生成沸石分子筛;5)生成的沸石分子筛经洗涤、脱水、烘干,即得最终产品。本发明还公开了实现上述方法的装置。本发明采用超导磁分离预处理,使原料无毒、处理量大、分选范围广、运行能耗低、其分离效果好。采用微波加热原料进行晶化反应,大大缩短了晶化反应的时间;减少了碱的使用量,降低了后续碱液处理的难度;可大量连续生产沸石分子筛。

标签:
固废
北京 - 北京 来源:中冶有色网 2023-03-19
利用复合材料促进固体有机废弃物产沼气的方法

本发明公开了属于固体有机废弃物生物处理技术领域的一种利用复合材料促进固体有机废弃物产沼气的方法。该方法利用复合材料的吸附特性、离子溶出特性和生物活性去除抑制物,改善微生物生长环境,从而提高沼气产量,最大限度的回收利用废弃物中的生物能源。本发明中的复合材料资源丰富,加工容易,价格低廉,具有很广阔的应用前景。

标签:
固废
北京 - 北京 来源:中冶有色网 2023-03-19
上一页 212 213 214 215 216 ... 226 下一页
共226页    到第

中冶有色为您提供最新的北京有色金属固/危废处置技术理论与应用信息,涵盖发明专利、权利要求、说明书、技术领域、背景技术、实用新型内容及具体实施方式等有色技术内容。打造最具专业性的有色金属技术理论与应用平台!

全国热门有色金属设备推荐
展开更多 +
全国热门有色金属技术推荐
展开更多 +

 

江西省隆恩特环保设备有限公司
宣传

报名参会
更多+

报告下载

有色专家
更多+

中国矿业大学
教授
武汉科技大学
校学术委员会主任 / 教授
矿冶科技集团有限公司工程公司
副总经理
江西理工大学
副处长/教授
石家庄铁道大学
团委书记/副教授
赤泥综合利用研究报告2025
推广

热门技术
更多+

推荐企业
更多+

福建省金龙稀土股份有限公司
宣传

发布

在线客服

公众号

电话

顶部
咨询电话:
010-88793500-807