青岛垚鑫智能科技有限公司
宣传

位置:中冶有色 >

有色技术频道 >

> 固/危废处置技术

分类:
全部
矿山技术
冶金技术
材料制备及加工技术
环境保护技术
分析检测技术
 
全部
废水处理技术
大气治理技术
固/危废处置技术
土壤修复技术
地区:
全部
北京
天津
上海
重庆
河北
山西
辽宁
吉林
黑龙江
江苏
浙江
安徽
福建
江西
山东
河南
湖北
湖南
广东
海南
四川
贵州
云南
陕西
甘肃
青海
内蒙
广西
西藏
宁夏
新疆
其他
其他
展开
 
全部
北京

北京有色金属固/危废处置技术理论与应用

免费发布技术信息>>
固体废弃物资源化装置

本实用新型公开了一种固体废弃物资源化装置,涉及环境保护技术领域,包括:超高温热解气化熔融炉、诱导炉、成纤机;所述超高温热解气化熔融炉炉体入口处设有依次启闭的三道活门,炉体底部设置有用于储存和排出液态炉渣的诱导炉,所述诱导炉外接有成纤机,所述超高温热解气化熔融炉炉体通过烟气管道与集尘器连通,所述集尘器后设有用于发电的双循环发电系统或用于供热的燃烧炉和换热器一体化设备。该实用新型可将产生的液态炉渣通过成纤机制成纤维,运行过程中产生的大量的热蒸汽及两种可燃气体H2和CO可用于发电或供热。

标签:
固废
北京 - 北京 来源:中冶有色网 2023-03-19
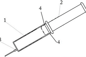
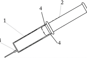
有机固体废物物料颗粒密度的测定装置

本实用新型公开了有机固体废物物料颗粒密度的测定装置,包括活塞筒、活塞和设置在所述活塞筒上的注射嘴;所述活塞筒和活塞设有相互配合的标记点;所述活塞筒包括内腔,所述内腔的开口利用所述活塞出入;所述注射嘴与所述内腔导通。本实用新型的测定装置类似于注射器,测定液能够完全封闭容积空间,有效解决物料颗粒漂浮液面的情况,实现堆肥调理剂等轻质物料颗粒密度的测定定容。

标签:
固废
北京 - 北京 来源:中冶有色网 2023-03-19
固体废物切段压缩处理装置及处理方法

本发明公开了一种固体废物切段压缩处理装置及处理方法,包括操作台、支架、切断装置、收集箱、支腿、收集抽屉、下料滑轨、穿孔、压缩装置,所述操作台上端前侧竖直安装有支架,且操作台上端后侧竖直安装有切断装置,所述操作台后端右侧放置有收集箱,且收集箱为空心梯形箱,所述收集箱下端四角各竖直固定有支腿,且收集箱右端下部水平滑动安装有收集抽屉,所述收集箱上端倾斜固定有下料滑轨,且下料滑轨上端开有多个穿孔,所述收集箱后端放置有压缩装置。本发明结构简单,通过转动手摇转轮可以快速的调节切割的间距,实现快速调节,同时切成多段,大大的提高了切割的效率,切割时的残渣落入手机抽屉内便于回收利用,以免造成浪费,影响环境。

标签:
固废
北京 - 北京 来源:中冶有色网 2023-03-19
危险固体废物等离子体无害化处理系统和方法

本发明公开了一种危险固体废物等离子体无害化处理系统和方法。本发明的等离子体气化熔融炉用于一级处理,得到熔融体渣和烟气,重整燃烧室用于进一步对烟气进行二级处理。本发明可有利地回收重金属等有毒有害物质,重金属浸出浓度远远低于毒性浸出标准,可作为建筑材料或者路基材料使用,并且无飞灰二次污染,同时有效地控制有害气体(例如,二噁英、臭气)的生成,并能够使得到的烟气中的有害成分降至更低。

标签:
固废
北京 - 北京 来源:中冶有色网 2023-03-19
固体废弃物热转化气相产物除焦的方法

本发明公开了一种固体废弃物热转化气相产物除焦的方法,主要包括增雾和分离两个步骤。其技术方案的要点是,采用文丘里管或喷嘴的形式喷入循环液,与夹杂着焦油的热解气充分接触,使焦油颗粒增大后在旋风分离器内将气液进行分离,防止焦油在后续管路和设备结焦。本发明避免了静电除焦易燃气体爆炸的危险,整个流程设备简单、运行成本低、能够实现连续高效运转。

标签:
固废
北京 - 北京 来源:中冶有色网 2023-03-19
建筑固体废弃物粉碎处理装置

本发明公开了一种建筑固体废弃物粉碎处理装置,包括主箱体,主箱体的顶端开设有进料口,主箱体的内部固定安装有颚式粉碎机,颚式粉碎机下端安装有孔状传送带,孔状传送带的两端固定安装有支撑杆,第一支撑板的上端固定安装有底座,底座的上端固定安装有第一电机,第一电机的从动轮与孔状传送带的从动轮之间转动连接有皮带,该装置通过安装的颚式粉碎机能够对脆性建筑垃圾进行粉碎,将建筑垃圾通过进料口放入到颚式粉碎机内进行第一次粉碎处理,当脆性建筑垃圾内含有软性建筑垃圾时,颚式粉碎机不能够对软性建筑垃圾进行粉碎,通过孔状传送带能够将软性建筑垃圾输送到粉碎槽内进行粉碎处理,当粉碎结束过后,能够方便后期的回收再利用。

标签:
固废
北京 - 北京 来源:中冶有色网 2023-03-19
固体废物破碎筛分撬装设备

本发明公开了一种固体废物破碎筛分撬装设备,其包括料斗、与所述料斗的出料口通过绞龙相连通的滚筒筛、与所述滚筒筛的细料出料口连通的第一传送带,和与所述滚筒筛的粗料出料口连通的第二传送带;其中,所述第一传送带的出料端与破碎机的下端储料仓相连通,所述第二传送带的出料端与所述破碎机的进料口相连通;在工作过程中,物料进入料斗,而后通过料斗下方的绞龙推入滚筒筛,在滚筒筛内的筛板作用下筛分为颗粒大小满足要求的细料和颗粒较大的粗料,细料在第一传送带的带动下直接进入破碎机的下端储料仓中,粗料在第二传送带的带动下进入破碎机,经破碎机的进一步破碎后形成较小颗粒物料,从而保证了物料的规格满足使用要求。

标签:
固废
北京 - 北京 来源:中冶有色网 2023-03-19
固体废弃物中的轻物质分离装置

本发明提供了一种固体废弃物中的轻物质分离装置,包括物料输送机,物料输送机包括输送架和输送带,物料输送机具有在输送带输送到位时供物料下落的落料端,输送架的与所述落料端相对应的端部固设有安装架,安装架上设有用于收集物料中的轻物质的收集斗和用于将从所述落料端下落的物料中的轻物质吹入收集斗中的风机。在该装置中,通过在物料下落过程中进行喷雾加湿处理,可以避免在分离的过程中粉尘类物质进入轻物质中或出现扬尘。

标签:
固废
北京 - 北京 来源:中冶有色网 2023-03-19
有机固体废物物料颗粒密度的测定方法和装置

本发明公开了有机固体废物物料颗粒密度的测定方法,采用注射器作为测定容器,该测定方法包括以下步骤:a、确定注射器重量W1;b、将测定液置入注射器,确定测定液和注射器的总重量W2;c、对待测物料进行预处理;d、将待测物料置入干燥的注射器,确定待测物料和注射器的总重量W3;加入测定液至预定容积,确定待测物料、注射器和测定液的总重量W4;e、计算待测物料颗粒密度。本发明的有效益效果在于采用注射器作为测定容器,测定液能够完全封闭容积空间,有效解决物料颗粒漂浮液面的情况,实现堆肥调理剂等轻质物料颗粒密度的测定。

标签:
固废
北京 - 北京 来源:中冶有色网 2023-03-19
用于固体有机废弃物的裂解装置

本实用新型公开了用于固体有机废弃物的裂解装置,包括:裂解炉,裂解炉包括:壳体,壳体水平设置且内部限定出裂解腔室,壳体的顶壁上设置有多个裂解油气出口,壳体的侧壁具有夹套,夹套具有热风进口和冷风出口,壳体的一端为进料端,另一端为出料端;旋转轴,旋转轴水平设置在裂解腔室内,旋转轴上沿长度方向固定设置有多个抄板,旋转轴旋转带动抄板做周向运动;密封进料器,密封进料器与壳体的进料端相连;出料部,出料部与壳体的出料端相连,出料部的底壁上设置有出料口。采用该裂解装置可以显著降低能耗,同时可以提高焦油质量和产率。

标签:
固废
北京 - 北京 来源:中冶有色网 2023-03-19
用于含氚固体废物处理系统的密封门

本实用新型涉及一种用于含氚固体废物处理系统的密封门,包括门体,门体的门框内设有能够上下运动的密封门闸板,在门体的上方设有用于容纳所述密封门闸板的密封罩,所述密封罩能够保证密封门闸板向上运动至密封罩后相对于外界的气密性。在所述门体的门框与密封门闸板的密封结合部位设有充气密封条。密封门闸板的壁面涂有铝‑氧化铝防氚渗透涂层,充气密封条的主体材质为渗碳硅橡胶,其中的碳化硅可有效防止氚渗透。该密封门可实现真正的远程控制开关和自动密封操作,可有效防止氚渗透和泄漏,特别适用于具有一定的放射性或对人体有害气体的场合,可有效的减少人员在现场停留的时间,对人员的防护具有非常显著的效果。

标签:
固废
北京 - 北京 来源:中冶有色网 2023-03-19
纤维分离固体废弃物干燥拌胶铺装系统

本实用新型公开了一种纤维分离固体废弃物干燥拌胶铺装系统,包括送料装置、干燥机构、计量输送装置、拌胶装置、气浮分散装置、铺装装置,所述送料装置包括进料口与送料管道,所述进料口与所述送料管道的上端连通,所述送料管道下料端连接计量输送装置的进料口,所述计量输送装置出料口连接拌胶装置搅拌腔进料口,所述拌胶装置的搅拌腔的出料口与所述气浮分散装置的上壁连通,所述铺装装置放置于所述气浮分散装置的正下方,所述干燥机构设置在所述送料管道上,本实用新型无需单独干燥装置,节省空间和成本,简化工艺流程,且干燥机构可达到更佳干燥效果,且干燥过程中对原材料进行打碎处理,减少原材料在后续拌胶过程中团聚、结块现象。

标签:
固废
北京 - 北京 来源:中冶有色网 2023-03-19
轻质污泥和固体废弃物烧结砖及其制备方法

本发明涉及一种轻质污泥和固体废弃物烧结砖及其制备方法,其原料包括沼气污泥、膨润土、垃圾中的矿物质物料以及生物质物料,各种原料相对重量比为:沼气污泥30-40重量份,膨润土60-80重量份,垃圾中的矿物质物料30-40重量份,生物质物料30-60重量份,经过备料、配料和搅拌、陈化、压制成型、烧结和冷却形成本发明的产品。本发明有效的利用了城市垃圾分类处理后形成的物料,在烧结过程中原料中的可燃物质自燃,有利于改善砖的内部结构,形成轻质砖,实现了这些物料的最终资源化利用,其强度相对较高,保温性能好,有助于节省物质资源和能源,减小对环境和资源的破坏。

标签:
固废
北京 - 北京 来源:中冶有色网 2023-03-19
多炉体生物质固体废物气化炉并联处理系统及方法

一种多炉体生物质固体废物气化炉并联处理系统及方法,该并联处理系统包括至少两个热解气化炉、一个热解气混匀装置和热解气燃烧室。其中,热解气混匀装置,用于收集所述热解气化炉中产生的气体并将其混匀;热解气燃烧室,采用所述热解气混匀装置中混匀的热解气作为燃料,给所述热解气化炉提供热解用热源。本发明的并联处理系统中多个热解气化炉是并联且相互独立的,可根据处理需要,选择热解气化炉并联工作的数量;各热解气化炉产生的热解气混合后,进入热解气燃烧室,实现不同炉体的热解气协同互补,可以缩小系统内热解气成分、燃烧热量的差异,保证各热解炉系统内温度的稳定性,提高尾气的达标效率。

标签:
固废
北京 - 北京 来源:中冶有色网 2023-03-19
固体废弃物热解液体萃取脱水方法

本发明涉及一种固体废弃物热解液体萃取脱水方法。热解液体除去固体杂质后,用二氯甲烷、乙酸乙酯和二氯甲烷/乙醇混合液(乙醇占5wt%)作为萃取剂萃取。萃取次数为2~5次,萃取时按萃取剂与热解液体的体积比为0.5~3:1混合;萃取温度在20~35℃范围内,萃取剂和热解液体的混合物搅拌3~30min后转移至分液漏斗中,静置10~60min;分层后,将萃取液分离即得到脱水热解油。该方法在较低温度下进行,萃取后热解液体中的水进入萃余相中,从而与热解油分离,从而达到热解液体脱水的目的。

标签:
固废
北京 - 北京 来源:中冶有色网 2023-03-19
建筑固体废弃物回收再生用拌料装置

本实用新型公开了一种建筑固体废弃物回收再生用拌料装置,包括拌料桶,所述拌料桶的顶部内壁固定有顶板,且拌料桶的底部内壁固定有保护板,所述保护板和顶板的顶部外壁均开有支撑轴安装孔,且支撑轴安装孔的内壁连接有支撑轴,所述支撑轴的一侧外壁底部连接有套筒,且套筒的一侧外壁焊接有夹板,所述套筒的内壁滑动连接有滑竿,且滑竿的一端外壁和套筒的一侧内壁均焊接有连接弹簧,所述滑竿的一端外壁焊接有击打球。本实用新型可以有效破碎结块的固体,有助于加快原料混合效率和提高混合效果,通过多次粉碎,有助于提高原料破碎效果,有助于防止原料飞溅造成原料浪费,也可以阻挡粉尘飞扬,有利于提高对工作环境的保护。

标签:
固废
北京 - 北京 来源:中冶有色网 2023-03-19
有机固体废弃物无害化处理的干馏装置

本实用新型涉及一种有机固体废弃物无害化处理的干馏装置,干馏装置的干燥段包括水平设置的圆筒状的干燥室,干燥室外围是一水平设置干燥室加热仓;干馏段包括水平设置的圆筒状的干馏室,所述干馏室外围是一水平设置干馏室加热仓;干燥室和干馏室内均设有螺旋式物料输送器;干燥室前端连接一进料斗,后端通过一料封段及物料通道管与干馏室的前端连接;干馏室后端通过料封段连接一固体干馏物出口;干馏室上部连接一干馏气出气管,干馏气出气管通往一燃烧室,燃烧室上设有热气输入管通往干馏室加热仓,干馏室加热仓与干燥室加热仓之间通过热气连通管连接;干燥室加热仓上部设有尾气排放管;干燥室上部设有蒸汽排放管。

标签:
固废
北京 - 北京 来源:中冶有色网 2023-03-19
用于固体废弃物处理的柔性破袋装置

本实用新型公开了一种用于固体废弃物处理的柔性破袋装置,包括驱动装置,所述驱动装置上设有传动轴,所述传动轴上装有若干组破袋刀组,位于两端的两个破袋刀组的外侧以及相邻的破袋刀组之间均设有若干个套设在传动轴上的间距调整压块,位于左右两端的间距调整压块的外侧各设有一个压紧锁母,压紧锁母将所有的破袋刀组及间距调整压块压紧在传动轴上。本装置采用回转式柔性破袋技术,在保障切破原料垃圾中的包装袋的同时,对高硬度杂物具有柔性避让功能,保护了刀具的使用寿命,同时保持硬杂质的原状,便于在后续工序分选工段中有效筛分。

标签:
固废
北京 - 北京 来源:中冶有色网 2023-03-19
固体废物的无害化处理成套设备

一种固体废物的无害化处理成套设备包括料仓、干化机、炭化设备、臭气处理系统、冷凝器、换气器、导热油循环装置及碱洗塔;所述料仓与干化机进料口连接;所述干化机的排渣口连通至炭化设备;所述干化机的排气孔连通至臭气处理系统;所述干化机与臭气处理系统之间设置有冷凝器;所述炭化设备与碱洗塔之间设置换热器;所述换热器与导热油循环装置通过管道连接;所述炭化设备的排渣口连通至碳渣收集装置;所述炭化设备的物料排气孔连通至炭化设备的燃烧室。有益效果在于:物料减量效果明显,减量超过90%;经过处置后的物料中无有机物、病原体等,不会引起二次污染;污泥中的热源被回用,实现了污泥的资源化;小分子气体的燃烧,尾气排放更为清洁。

标签:
固废
北京 - 北京 来源:中冶有色网 2023-03-19
快速排除堵塞的固体废物破碎机

本实用新型公开了一种快速排除堵塞的固体废物破碎机,包括喂料斗、进料口、破碎机、闭合装置、第二液压缸、第一转动铰链和第二转动铰链。喂料斗为倒转的四棱台形,喂料斗底部连接进料口,进料口连接破碎机,喂料斗侧壁连接第一转动铰链,第一转动铰链与第二液压缸相连,第一液压缸通过杆连接固定在支架上的第二转动铰链,闭合装置安装在喂料斗外侧边缘,与进料口处在同一平面上。闭合装置包括一块方形平板、第一液压缸和一块多边形平板,用于封闭喂料斗底部。本实用新型结构简单,能快速地停止作业,拆开整个装置将破碎机暴露出来,轻松快捷地移除堵塞残渣,步骤简单,操作快速。

标签:
固废
北京 - 北京 来源:中冶有色网 2023-03-19
固体废弃物富氧发酵集成装置

一种固体废弃物富氧发酵集成装置,包括通长设置于厂房内的发酵槽,所述发酵槽至少为并排两条,每条发酵槽两侧的矮墙顶部铺设有轨道,轨道上架设有翻抛机,所述翻抛机的机架下部连有行走轮,机架上连有与取电机构和传动机构连接的翻抛滚筒,翻抛滚筒上安有翻抛耙和灵活拆卸的翻抛刮板,翻抛刮板的下方、机架的上方连接有横跨发酵槽一侧矮墙的集料输送皮带。本装置集成了布料、翻抛和出料功能,实现了废弃物好氧发酵的自动化操作,有效地减少了工艺设备、发酵车间占地面积和操作维护费用。

标签:
固废
北京 - 北京 来源:中冶有色网 2023-03-19
处理固体废弃物的系统和方法

本发明公开了处理固体废弃物的系统和方法,系统包括预处理单元、干燥单元、热解单元和筛分单元,热解单元包括:内筒体和外筒体,内筒体可旋转设置,内筒体内形成热解空间,内筒体内壁设有螺旋叶片,内筒体的前端设有干燥物料入口,内筒体的后端设有固态物料出口;外筒体套设在内筒体上形成燃烧空间,燃烧空间设有热解油气管路,热解油气管路的一端与热解空间连通,热解油气管路的另一端在燃烧空间内延伸,在靠近热解油气管路的另一端的外筒体上设有一次风入口和二次风入口,二次风入口与热解油气管路的另一端错开布置,在远离热解油气管路的另一端的外筒体上设有换热烟气出口,换热烟气出口和干燥冷风出口与干燥热风入口相连。

标签:
固废
北京 - 北京 来源:中冶有色网 2023-03-19
将固体生物质废料转化为碳氢化合物的方法

本发明提供一种将固体生物质废料转化为碳氢化合物的方法,包括将固体生物质与在约50°C至约200°C温度范围内操作的第一提升管中的催化剂接触,从而产生第一生物质催化剂混合物和包含碳氢化合物的第一产物;从第一生物质催化剂混合物中分离第一产物;将所述第一生物质催化剂混合物装入在约200℃至约400℃范围内操作的第二提升管中,从而产生第二生物质催化剂混合物和包含碳氢化合物的第二产物。

标签:
固废
北京 - 北京 来源:中冶有色网 2023-03-19
燃用固体废弃物的快装流化床焚烧炉

一种燃用固体废弃物的快装流化床焚烧炉,涉及一种以多成分、低热值的固体可燃质为燃料的流化床焚烧炉。其特征是燃烧室具有变截面特征,且燃烧室四壁的水冷壁表面敷设一层耐火耐磨的隔热材料;进料采用一个水平或倾斜的可运动炉排,并设有倾斜布风板和溢流排渣装置。该焚烧炉不仅对燃料的尺寸、粒度无特殊要求,对不同热值、成分、密度的燃料均可稳定燃烧;而且结构简单,便于安装和维护,且抗腐蚀,耐磨损;是一种燃料适应性好、燃烧效率高、且适应环保要求的流化床焚烧炉。

标签:
固废
北京 - 北京 来源:中冶有色网 2023-03-19
废旧纺织品非织物固体异物复合式去除机

一种废旧衣物非织物固体异物复合式去除机,所述的复合式去除机包括一次固体异物去除装置总成、二次固体异物去除装置总成、立式固体异物分离装置总成,其特征在于:所述的立式固体异物分离装置总成包括一个机箱,机箱里面装有一个垂直于机箱的立式的转子,立式转子上面设有若干只叶片,在机箱箱体上设有固定立式转子的轴、轴承和轴承座,所述的立式固体异物去除装置总成的外部还设有固体异物残渣沉淀箱和转子电机。通过增设立式固体异物去除装置总成这道工序,由于立式固体异物去除装置的转子上面设有爪形叶片,布块再次经过爪形叶片的旋转分离工艺过程,将生产出复合标准的纤维束,从而减少了固体异物残渣,稳定了纤维质量。

标签:
固废
北京 - 北京 来源:中冶有色网 2023-03-19
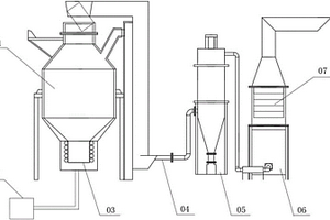
焚烧处理固体废弃物的装置

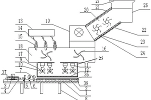
本实用新型公开了一种焚烧处理固体废弃物的装置,涉及环境保护技术领域,所述装置包括:超高温热解气化熔融炉、诱导炉、集尘器;所述超高温热解气化熔融炉炉体顶部设有投入槽,底部设置有用于储存和排出炉渣的诱导炉,所述超高温热解气化熔融炉炉体设有烟气出口并通过烟气管道与所述集尘器连通;其中,所述诱导炉在预定位置上预先设置有用于单独排出液态金属合金炉渣的预留孔位置。本实用新型能有效控制二噁英的生成,飞灰和废气产量较小,运行时空气需要量较少,烟气中含尘量低,产生酸性气体少,无需垃圾预处理过程,省去了预处理厂房及设备,可节约初投资,燃烧生成的全部为液态炉渣,无机非金属炉渣和金属炉渣可分别单独排出。

标签:
固废
北京 - 北京 来源:中冶有色网 2023-03-19
固体废热回收系统
固体废热回收系统 859     
 0

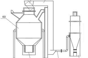
本发明属于热回收技术领域,具体涉及一种固体废热回收系统,包括:料仓、两个旋风除尘器、余热锅炉、布袋式除尘器和循环风机,第一旋风除尘器经第一气力输送管道与所述料仓相连;第二旋风除尘器经第二气力输送管道与所述第一旋风除尘器的固体出口相连;所述余热锅炉分别与所述第一旋风除尘器和第二旋风除尘器相连;所述布袋式除尘器的入口与所述余热锅炉相连,所述布袋式除尘器的出口分别与所述第一气力输送管道和第二气力输送管道相连;本发明所述系统有效回收了高温粉料产物中的显热,节能降耗,并且整个系统循环利用对外界无污染,减少了环境污染,同时解决了高温固体产物输送困难的问题。

标签:
固废
北京 - 北京 来源:中冶有色网 2023-03-19
村镇混合有机固体废弃物好氧堆肥装置

本发明涉及一种村镇混合有机固体废弃物好氧堆肥装置,包括反应仓体,进出料系统,翻堆通风装置,所述翻堆通风装置包括设置于主仓体内部的通风管、电动搅拌桨以及与所述通风管顶端连接的电机,所述电动搅拌桨由通风管和设置于通风管外周的桨叶构成,所述通风管由内层、外层和可拆卸设置于内外层之间的过滤层构成,所述通风管的长度方向设置两排通风口,所述通风口向上和向下交替排布;供热保温系统,主仓体的壳体由内到外依次设置内壁、供热水管、保温层和外壁,所述供热水管环绕于主仓体上;除臭系统,渗滤液处理系统,智能检测系统。本发明的装置,通风均匀,堆肥效率高,自动化体系完善,智能化强,在村镇混合有机废弃物处理方面有重要的意义。

标签:
固废
北京 - 北京 来源:中冶有色网 2023-03-19
用于蓄热式热解炉处理废旧轮胎热解固体产物的出料装置

本实用新型公开了一种用于蓄热式热解炉处理废旧轮胎热解固体产物的出料装置,包括:壳体、用于盛放固体产物的铺料板、链板轮传动组件、驱动器和多个刮料刮板,壳体上设有出料口。铺料板可移动地设在壳体内。链板轮传动组件设在壳体内且位于铺料板的上方。驱动器驱动链板轮传动组件运转。多个刮料刮板分别设在链板轮传动组件的传动链上,传动链带动多个刮料刮板移动,多个刮料刮板将固体产物推送到出料口内。本实用新型的出料装置,解决了传统的卡料、堵塞等问题,实现出料连续的目的,大大降低了因异常维修和检修造成的运行成本,并且有效防止炭黑被磨成粉,避免扬尘引起的安全隐患,同时不破坏固体产物的物理特性。

标签:
固废
北京 - 北京 来源:中冶有色网 2023-03-19
有机固体废弃物生物转化实验模拟装置

本实用新型涉及一种有机固体废弃物生物转化实验模拟装置,包括如下部件:箱体,箱体包括控温箱和仪器收纳室,控制面板,控制面板设置于仪器收纳室上;温度控制系统和通风控制系统,均设置于控制面板上;气体收集系统和尾气处理系统,均设置于仪器收纳室内;气体分析系统和数据采集系统,气体分析系统与气体收集系统相连接,气体分析系统与数据采集系统相连接;若干生物转化模拟反应器,设置于控温箱内。该装置可以根据试验设计调整反应器数量和试验参数,并设有连接气体和温度的监测和分析的控制系统,可实现对不同有机固体废弃物生物转化科研数据的获取。

标签:
固废
北京 - 北京 来源:中冶有色网 2023-03-19
上一页 210 211 212 213 214 ... 226 下一页
共226页    到第

中冶有色为您提供最新的北京有色金属固/危废处置技术理论与应用信息,涵盖发明专利、权利要求、说明书、技术领域、背景技术、实用新型内容及具体实施方式等有色技术内容。打造最具专业性的有色金属技术理论与应用平台!

全国热门有色金属设备推荐
展开更多 +
全国热门有色金属技术推荐
展开更多 +

 

江西省隆恩特环保设备有限公司
宣传

报名参会
更多+

报告下载

有色专家
更多+

江西铜业集团有限公司
党委书记、董事长
重庆理工大学
教授
长沙矿冶院检测技术有限责任公司
总经理
中铝科学技术研究院有限公司
董事长
深圳格林美高新技术股份有限公司
董事长
赤泥综合利用研究报告2025
推广

热门技术
更多+

推荐企业
更多+

福建省金龙稀土股份有限公司
宣传

发布

在线客服

公众号

电话

顶部
咨询电话:
010-88793500-807