青岛垚鑫智能科技有限公司
宣传

位置:北方有色 >

有色技术频道 >

> 废水处理技术

分类:
全部
矿山技术
冶金技术
材料制备及加工技术
环境保护技术
分析检测技术
 
全部
废水处理技术
大气治理技术
固/危废处置技术
土壤修复技术
地区:
全部
北京
天津
上海
重庆
河北
山西
辽宁
吉林
黑龙江
江苏
浙江
安徽
福建
江西
山东
河南
湖北
湖南
广东
海南
四川
贵州
云南
陕西
甘肃
青海
内蒙
广西
西藏
宁夏
新疆
其他
其他
展开
 
全部
南京
无锡
徐州
常州
苏州
南通
连云港
淮安
盐城
扬州
镇江
泰州
宿迁

江苏无锡有色金属废水处理技术理论与应用

免费发布技术信息>>
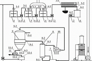
液中焚烧处理含盐废水设备

本发明属于工业三废的无害化、资源化处理技术领域,具体涉及一种液中焚烧处理含盐废水设备。包括炉体,在炉体上端设置辅助燃料进口,在炉体上端一侧设置高压燃烧空气进口,在炉体一侧设置废液进口,在另一侧设置液体雾化器进口,在炉体下端一侧设置脱硝装置,在炉体下端另一侧设置工业水进口,在炉体下端设置冷却罐,在冷却罐上端一侧设置烟气出口,在冷却罐一侧设置液位罐,液位罐连接冷却罐,在炉体上设置主控制面板,在主控制面板上设置主控制器,在废液进口处设置流量感应器,在主控制面板上设置废液流量显示屏,流量感应器连接主控制器,主控制器的控制输出端连接废液流量显示屏;可以通过流量感应器感应到进入炉体内的废液量,通过主控制器在废液流量显示屏上显示出来,以备操作人员了解炉体内废液的量。

标签:
废水处理
江苏 - 无锡 来源:北方有色网 2023-03-19
小型复合式工业污水处理设备

本实用新型公开了一种小型复合式工业污水处理设备,包括本体、第一固定块和支撑架,本体内部的圆周外侧开设有环形槽,本体的轴心处开设有凹槽,凹槽的底部开设有过滤槽,环形槽底部的圆周内侧固定连接有第二固定块,第二固定块的下表面通过扭力弹簧转动连接有翻转板,环形槽的底部开设有流出槽,流出槽的侧端固定连接有出水管,流出槽与凹槽之间通过连通槽连通,通过电机带动搅拌棍转动,对凹槽内部的污水搅拌,会让污水中的泥土集中在凹槽的轴心处,堆积在凹槽的底部,当翻转板打开让凹槽内部的污泥流向过滤槽的内部,经过第二滤网板将泥沙中的水进行过滤,对工业废水进行进一步的过滤,极大的提高排出废水的质量,有利于生态环境的保护。

标签:
废水处理
江苏 - 无锡 来源:北方有色网 2023-03-19
高浓度含氟废水处理工艺药剂复配方法

本发明公开了一种高浓度含氟废水处理工艺药剂复配方法,所述复配药剂由适用于高含氟工业废水氢氧化钙沉淀法处理单元的氢氧化钙与第一高效絮凝剂PAM的第一复配药剂和适用于混凝沉淀法处理单元的硫酸铝与第二高效絮凝剂PAM的第二复配药剂组成。

标签:
废水处理
江苏 - 无锡 来源:北方有色网 2023-03-19
去除催化裂化烟气脱硫废水中SS的耦合分离装置

本发明公开了一种去除催化裂化烟气脱硫废水SS的耦合分离装置,包括槽体、双级反应搅拌混凝器、导流筒、导流反射装置、刮泥机、污泥浓缩斗和集泥回流装置,所述双级反应搅拌混凝器设于槽体外侧,其通过进液管与所述导流筒连通,液、固、药剂通过搅拌混凝与回流颗粒污泥聚凝后进入导流筒,所述导流筒下方设有导流反射装置,导流筒和导流反射装置四周的槽体内区域设为澄清区,澄清区的顶部设有出液管,底部设有锥体状的底板,所述的底板底部中心下端口处设有所述污泥浓缩斗,并且底板的四周上方设有所述刮泥机,同时底板的下方设有所述集泥回流装置。本发明固液分离效率高,SS去除效果好,适用于高浓度微细颗粒含固工业废水处理。

标签:
废水处理
江苏 - 无锡 来源:北方有色网 2023-03-19
新的酒精(含燃料酒精)的工业生产技术

本发明采用在发酵前先分离出原料中的固形物,使酒精发酵过程中的原料、酵母浓度、发酵周期均得到显著改善,提高发酵水平。采用在发酵前“糖化后”过滤技术,降低液化的技术要求,既可用高温蒸煮液化,又可用喷射液化,有利于改造传统酒精工业。采用酒精酵母分离与部分回用技术缩短发酵周期,提高发酵强度;实现酒精酵母的综合利用,提高经济效益。本发明采用先进的废水处理技术,回收废水中的有机酸、低聚糖等。使处理过的废水可部分回用,节约用水、减轻废水处理负担,减少废水总量,处理后可达标排放,提高环保效益和社会效益。

标签:
废水处理
江苏 - 无锡 来源:北方有色网 2023-03-19
用于生物废水的连续灭活处理装置

本发明公布了一种用于生物废水的连续灭活处理装置,包括储液罐、循环泵、加热装置、保温装置、热能回收装置和冷却装置;所述储液罐的第一输出端连接循环泵,第二输出端通过第一调节阀连接到生物废料排放装置;所述循环泵的输出端连接加热装置,所述加热装置的输出端连接保温装置,所述保温装置的输出端连接热能回收装置,所述热能回收装置的输出端连接冷却装置,所述冷却装置的输出端通过第二调节阀连接到所述生物废料排放装置。本发明的生物废水的连续灭活处理装置的安全性和稳定性高;具有能耗低,灭活效果好的优点,可以满足生物制药企业,生物安全实验室的使用需求。

标签:
废水处理
江苏 - 无锡 来源:北方有色网 2023-03-19
一株耐冷卡马西平降解菌及其筛选方法和在含卡马西平废水处理中的应用

一株耐冷的卡马西平降解菌Pseudomonassp.CBZ-4,它涉及药品及个人护理品(PPCPs)这一类污染物中卡马西平药物的微生物降解去除,它解决了城市污水处理厂中传统的污水处理工艺难以有效去除环境中微量污染物,尤其在冬季处理效果差等问题,通过取冬季某城市污水处理厂活性污泥,低温(10oC)富集驯化卡马西平降解菌,倍比稀释、平板划线、分离和纯化卡马西平降解菌群;反复划线筛选,得到纯种耐冷卡马西平降解菌Pseudomonassp.CBZ-4;该菌株在144h内对卡马西平去除率达到46.6%,并对其他芳香族化合物具有一定的降解性能。本发明所提供的菌株应用于低温城市污水生物强化处理或二沉池废水深度处理,以及较难处理的制药废水中,对于实现污水中新兴微量有机污染物高效生物降解去除具有重大意义。?

标签:
废水处理
江苏 - 无锡 来源:北方有色网 2023-03-19
用于生物废水的批次灭活处理装置

本实用新型公布了一种用于生物废水的批次灭活处理装置,包括储液罐、第一灭菌罐、第二灭菌罐、蒸汽装置、冷却装置以及生物废料排放装置;所述储液罐的输出端分别连接第一灭菌罐和第二灭菌罐,所述第一灭菌罐、第二灭菌罐的输出端连接到冷却装置,所述冷却装置的输出端连接到生物废料排放装置;其中,所述第一灭菌罐、第二灭菌罐由所述蒸汽装置提供加压蒸汽。本实用新型的生物废水的批次灭活处理装置的安全性和稳定性高;具有能耗低,灭活效果好的优点,可以满足生物制药企业,生物安全实验室的使用需求。

标签:
废水处理
江苏 - 无锡 来源:北方有色网 2023-03-19
用于处理电镀混合废水的多级电化学系统

本实用新型公开了一种用于处理电镀混合废水的多级电化学系统,所述电化学系统包括若干级串联的反应池,每一级所述反应池内设有电源和若干组电池组,所述电源连接电池组的正负极;所述电池组由若干片极板组成,所述极板之间为并联、串联或串并混联。本实用新型采用电化学催化技术,可以替代传统物化和生化的处理工艺,且具有处理工艺简单,各类复杂工业废水可以混合集中处理,不需要针对不同性质的废水,分质分流,并设计单独的工艺来处理,占地面积小。

标签:
废水处理
江苏 - 无锡 来源:北方有色网 2023-03-19
圆盘式自洁废水热能回收器的换热盘组件

本实用新型涉及一种圆盘式自洁废水热能回收器的换热盘组件,主要用于纺织、印染、造纸等行业生产过程中产生的较高温度的工业废水中热能的回收利用。它包括:换热盘(1)、内套管(2)和管套(3),换热盘(1)有多片,呈空腹结构,多片换热盘(1)轴向套接于内套管(2)中间,内套管(2)两端管内径向设置有阻流隔板(2.1),管壁上布置有若干个进、出水孔(2.2),管外套接有管套(3),该管套(3)外端封闭,内套管(2)两端管壁上进、出水孔(2.)2分别与两管套(3)内腔相连通,两管套(3)内腔分别与换热盘组件(3)中首、尾两个换热盘的腹腔相连通,而换热盘组件(3)的其余各换热盘腹腔相互连通。本实用新型能使废水中的杂物不会粘附于换热元件表面从而达到自洁功能,换热效率高。

标签:
废水处理
江苏 - 无锡 来源:北方有色网 2023-03-19
从高含盐废水中回收氯化钠的方法和系统

本发明涉及一种从高含盐废水中回收氯化钠的系统,具体由净化单元,纳滤单元,减量化单元,蒸发结晶单元组成。高含盐废水经过净化单元去除钙、镁、氧化硅等易结垢物质和COD类有机物,然后进入纳滤单元分离产生一股一价离子清液和另一股浓液,浓液返回至净化单元,一价离子清液进入减量化单元进一步浓缩,产生回收水回用,所得浓缩液进入蒸发结晶单元进行蒸发结晶并分离得到工业氯化钠,冷凝水回用,外排少量母液返回至净化单元。本发明实现了高含盐废水中氯化钠和其他无机盐有效地分离并回收,同时得到的回收水完全满足回用。

标签:
废水处理
江苏 - 无锡 来源:北方有色网 2023-03-19
从高含盐废水中回收氯化钠的系统

本实用新型涉及一种从高含盐废水中回收氯化钠的系统,具体由净化单元,纳滤单元,减量化单元,蒸发结晶单元组成。高含盐废水经过净化单元去除钙、镁、氧化硅等易结垢物质和COD类有机物,然后进入纳滤单元分离产生一股一价离子清液和另一股浓液,浓液返回至净化单元,一价离子清液进入减量化单元进一步浓缩,产生回收水回用,所得浓缩液进入蒸发结晶单元进行蒸发结晶并分离得到工业氯化钠,冷凝水回用,外排少量母液返回至净化单元。本实用新型实现了高含盐废水中氯化钠和其他无机盐有效地分离并回收,同时得到的回收水完全满足回用。

标签:
废水处理
江苏 - 无锡 来源:北方有色网 2023-03-19
一株高效阿特拉津降解菌及其筛选方法以及在农田废水中阿特拉津的生物降解的应用

一株高效阿特拉津降解菌及其筛选方法以及在农田废水中阿特拉津的生物降解的应用,属于环境微生物技术领域,其菌株(Pseudomonas?sp.?ZXY-1)是从吉林化工有限公司农药厂受污染土壤中分离得到,该菌株可以以阿特拉津作为唯一氮源生长,其具有高效降解阿特拉津的能力,10.5小时阿特拉津降解率即可达99%。菌株Pseudomonas?sp.?ZXY-1的最适生长温度为25-35℃,最适生长pH为7.0,最适生长摇床转速为150r/min。该菌种适用于农田废水阿特拉津的生物降解与生物修复。

标签:
废水处理
江苏 - 无锡 来源:北方有色网 2023-03-19
脱硫废水近零排放处理系统及方法

本发明涉及脱硫废水近零排放处理系统及方法,脱硫废水首先经过净化单元,去除钙、镁、氧化硅等易结垢物质和COD等有机物,过滤分离得到盐泥;得到的滤液进入减量化单元,减量化单元采用EDR或DTRO进一步浓缩,得到回收水回用,浓液一部分返回至净化单元,一部分进入脱硝单元;脱硝单元反应产生的沉淀用微滤膜过滤,清液进入蒸发结晶单元,蒸发结晶分离得到工业级氯化钠,冷凝水回用,外排少量结晶母液返回至净化单元和脱硝单元。实现了将脱硫废水中氯化钠和其他无机盐有效地分离并回收,同时得到的回收水完全满足回用要求,回收率高。

标签:
废水处理
江苏 - 无锡 来源:北方有色网 2023-03-19
焦化废水处理方法
焦化废水处理方法 823     
 0

本发明是关于对焦化废水处理方法的改进,其特征在经现有技术处理至 CODcr≤300mg/l、NH3-N≤50mg/l,出水加酸调节pH至1.0-3.5,进入铁床微 电解处理至pH还原为5-6,加入水量20-35mg/l强氧化剂充分氧化处理,至 色度接近或达到透明自来水,加入能与前面加入的酸根离子结合和/或形成易 沉淀体的碱性剂,沉淀或过滤分离。采用上述针对性强的遂级消解处理技术, 可以使得焦化废水处理后出水CODcr降至30-50mg/l,并且基本检测不出氨氮 (NH3-N),pH呈中性,色度达到透明(自来水)效果,达到污水综合排放标准 (GB8978-1996)中一级排放标准或工业回用水标准。且后续处理成本可以控 制在1.75元/吨左右,加上前级处理,综合处理成本可以控制在3.5-4.5元/ 吨左右,实现低成本处理焦化废水。

标签:
废水处理
江苏 - 无锡 来源:北方有色网 2023-03-19
工业锅炉余热回收装置
工业锅炉余热回收装置 1130     
 0

本发明公开了一种工业锅炉余热回收装置,包括余热回收装置本体,所述余热回收装置本体包括过滤水箱、主换热箱和辅换热箱,所述过滤水箱和辅换热箱分别位于主换热箱的两侧,所述过滤水箱远离主换热箱的一侧安装有进水管,所述过滤水箱的内部安装有过滤网,所述过滤水箱靠近主换热箱的一侧安装有出水管,所述主换热箱的顶部开设有热介质出口,所述主换热箱的内部安装有第一废水管,所述主换热箱靠近过滤水箱的一侧面的底部开设有第一通孔,所述主换热箱远离过滤水箱的一侧面的顶部和底部分别开设有第二通孔和第三通孔。该工业锅炉余热回收装置,使热介质经两次更充分的加热,提高了换热效率,降低了废水余温资源的浪费。

标签:
废水处理
江苏 - 无锡 来源:北方有色网 2023-03-19
管式膜工业再生水系统及工艺

本发明公开了一种管式膜工业再生水系统及工艺,旨在提供一种更省空间,更易控制,出水稳定,抗污染性更强的管式膜工业再生水系统,其技术方案要点是,包括研磨废水进口,所述研磨废水进口上连接有预处理单元,所述预处理单元上连接有反渗透单元,所述预处理单元与反渗透单元之间还连接有管式膜单元。

标签:
废水处理
江苏 - 无锡 来源:北方有色网 2023-03-19
高盐腐蚀废液废水液中焚烧装置

本实用新型属于高盐废水处理应用技术领域,具体公开了高盐腐蚀废液废水液中焚烧装置,由底座,及设置在底座上的塔体,及设置在塔体上的清洗液出口、进液管安装套,及设置在底座上且位于塔体内的竖支撑块,及设置在竖支撑块上的圆形定位板,及设置在圆形定位板内的布气管限位通槽,及设置在塔体内的焚烧组件,及设置在塔体上的烟气排放组件组成。本实用新型的有益效果在于:其结构设计合理,相配合使用的底座、塔体、清洗液出口、进液管安装套、竖支撑块、圆形定位板、布气管限位通、焚烧组件和烟气排放组件等结构,能对高浓度含盐工业废水进行高质和高效的焚烧处理,同时便于检修及维护,且整体结构制作成本低,降低企业高盐废水的处理成本,易推广。

标签:
废水处理
江苏 - 无锡 来源:北方有色网 2023-03-19
含铬废水的处理装置及方法

一种含铬废水的处理装置及方法,所述处理装置中,均化槽与还原反应槽连接,还原反应槽与沉铬反应槽连接,沉铬反应槽与压滤机连接,压滤机的排液口与去铬水储槽连接,去铬水储槽依次通过泵和预热器与加热器底部的进料口连接,加热器顶部的出料口与蒸发器中部的进料口连接,蒸发器顶部的蒸汽出口通过压缩机与加热器上部的蒸汽入口连接,蒸发器底部的浓缩液出料口与离心机连接,离心机的排液口与浓液中间槽连接,浓液中间槽与均化槽的进料口连接。本发明还公开了含铬废水的处理方法。本发明装置结构简单,工艺简便、稳定,成本低,能处理高浓度含铬废水,并资源回收铬,实现零排放,适宜于工业化生产。

标签:
废水处理
江苏 - 无锡 来源:北方有色网 2023-03-19
新型含碱含盐废水环保焚烧炉

本实用新型公开了一种新型含碱含盐废水环保焚烧炉,涉及一种工业废水的焚烧处理设备,包括炉体,其特征在于,所述炉体的内腔主要由上下分布的一次焚烧室和二次熔融焚烧室组成;一次焚烧室的顶部设置有雾化喷枪;一次焚烧室和二次熔融焚烧室的侧部均设置有辅助燃烧器;二次熔融焚烧室的下部侧壁上开设有废气出口,底部开设有排渣口;排渣口下方设置有刮板输送机,且排渣口通过锥形的出渣接口连通至刮板输送机的进料口;所述出渣接口和刮板输送机的外围均设有水冷夹套,本实用新型出渣方便,无需人工取渣,温度不高,无需粉碎,利于环保,解决了现有含碱含盐废水焚烧炉出渣存在的问题。

标签:
废水处理
江苏 - 无锡 来源:北方有色网 2023-03-19
从马铃薯淀粉加工废水中回收糖蛋白的方法

一种从马铃薯淀粉加工废水中回收糖蛋白的方法,属于蛋白质提取技术领域。本发明利用复凝聚原理,将带有相反电荷的蛋白质和聚电解质通过静电作用力形成电中性、不溶性的复合物。以马铃薯淀粉加工过程中产生的蛋白质废水为原料,选择天然阳离子多糖壳聚糖配制成溶液,并按一定的比例加入到废水中。沉淀经过复溶,上清经过干燥处理,得到马铃薯糖蛋白产品。本发明选用天然阳离子多糖壳聚糖,选择性的回收了马铃薯糖蛋白,避免了工业上的酸热条件,最大程度保留了糖蛋白的功能性质,有效地减少了污染和提高回收蛋白附加值。此外,壳聚糖在碱性条件下不溶,可以对复合物进行分离,实现壳聚糖的循环利用,具有较大的经济效益。

标签:
废水处理
江苏 - 无锡 来源:北方有色网 2023-03-19
可见光催化剂及其制备和在降解有机废水中的应用

本发明公开了一种可见光催化剂及其制备和在降解有机废水中的应用,属于环境和能源技术领域。本发明通过一锅溶剂热法和高温煅烧活化简便制得ZnFe2O4/ZnIn2S4/g‑C3N4复合光催化剂;一锅法制备,大大提高了复合材料间的作用力和相容性,有效提高了半导体之间的晶格匹配度,促进了光生电子的传输和转移,从而有效抑制了光生电子和空穴的复合,辅之以磁性ZnFe2O4半导体的协同增效,有效提高了对可见光的吸收强度,大大提高了催化剂的可见光催化活性。本发明所得催化剂性质稳定,在可见光的照射下可高效降解多种有机染废水和高浓度抗生素废水,可通过外加磁场方便、低成本地回收循环使用;废水处理工艺简单、成本低廉,具有很好的工业应用前景和市场价值。

标签:
废水处理
江苏 - 无锡 来源:北方有色网 2023-03-19
循环利用含有硫酸钠的废水制备高BET白炭黑的方法

本发明公开了循环利用含有硫酸钠的废水制备高BET白炭黑的方法,包括以下步骤:1)将含有硫酸钠的废水中加入硅石和炭,高温反应,得到硅酸钠和二氧化硫;2)将硅酸钠置于水中溶解,得到硅酸钠溶液;3)将硅酸钠溶液中加入亚硫酸氢钠溶液,反应后得到反应液;4)将反应液的一部分导出,加入硫酸酸化后,得到白炭黑;另一部分加入步骤1)得到的二氧化硫,得到亚硫酸氢钠,继续参与步骤3)的反应。本发明的有益效果为:本发明提供的循环利用含有硫酸钠的废水制备高BET白炭黑的方法,不仅能够生产高BET的白炭黑,而且能够最大限度的利用工业废水中的硫酸钠,且只需在前期加入少量亚硫酸氢钠即可形成有利的反应循环,成本大幅降低。

标签:
废水处理
江苏 - 无锡 来源:北方有色网 2023-03-19
高浓度难降解有机废水处理设备

本发明公开了一种高浓度难降解有机废水处理设备,包括由无油空气压缩机、冷冻式吸附干燥机、工业制氧机、臭氧发生器和电气控制柜构成的强氧化气源体,所述强氧化气源体以及原水池均连接着喷射器,所述喷射器连接着汽水加压混合装置,所述汽水加压混合装置通过进水管道与氧化区相连通,所述氧化区内设置有低速潜水搅拌器。本发明与现有技术相比,设计科学合理,能够大幅提升对于高浓度难降解有机废水的处理效果,保证了废水能够达标排放以及中水回用和深度处理后回用。

标签:
废水处理
江苏 - 无锡 来源:北方有色网 2023-03-19
脱硫废水近零排放处理系统

本实用新型涉及一种脱硫废水近零排放处理系统,该系统包括脱硫废水调节池、初级反应池、脱泥混合池、澄清池、混合结晶混合池、管式超滤膜、超滤水箱,纳滤机构、海水淡化机构、反渗透机构、浓缩结晶机构;纳滤机构的浓水出口对接初级反应池,淡水出口对接海水淡化机构;海水淡化机构的浓水出口对接反渗透机构;反渗透机构的浓水出口对接浓缩结晶机构。混合结晶混合池向脱泥混合池连接回流管,管式超滤膜向混合结晶混合池连接浓水回流管;澄清池向初级反应池连接污泥回流管,另通过污泥管路将剩余污泥送至污泥脱水机构,污泥脱水机构再通过回流管连接脱硫废水调节池,系统产物为工业盐、淡水、污泥固废,实现了脱硫废水近零排放。

标签:
废水处理
江苏 - 无锡 来源:北方有色网 2023-03-19
利用芬顿技术处理印染废水的RO浓水的方法

本发明公开了一种利用芬顿技术处理印染废水的RO浓水的方法,属于环境工程污水高级氧化处理技术领域。第一步,向RO浓水中投加浓硫酸以调节pH;第二步,投加定量七水合硫酸亚铁,曝气搅拌进行溶解,再加入定量浓度为30%过氧化氢,进行一定时间曝气搅拌反应;第三步,反应结束,用氢氧化钠调节pH为7‑7.5,投加定量助凝剂;第四步,废水流进入物化沉淀池,进行沉淀5~10min后,在过滤池进行泥水分离。本方法可以高效降低废水中COD,去除废水色度。具有高效性,稳定性,操作简便,经济性好,去除率高,出水符合《太湖地区城镇污水处理厂及重点工业行业主要水污染物排放限值》(DB32/1072—2018)的要求。

标签:
废水处理
江苏 - 无锡 来源:北方有色网 2023-03-19
化学镀镍废水回收镍的处理装置及工艺

一种化学镀镍废水回收镍的处理装置及工艺,所述处理装置中,预处理槽通过泵与压滤机连接,压滤机与预处理液中间槽连接,预处理液中间槽通过泵与预处理液储槽连接,预处理液储槽通过泵与电积装置连接,电积装置与含镍水循环槽连接,含镍水循环槽分别通过泵与离心机和电积装置连接,离心机与电积后液储槽连接,电积后液储槽通过泵与活性炭纤维吸附装置连接,活性炭纤维吸附装置通过泵与净化水中间槽连接。本发明还公开了一种化学镀镍废水回收镍的处理工艺。本发明装置结构简单,设备投资少,运行成本低。本发明方法操作简单、成本低,流程简短,废水处理后镍含量达标,能充分回收镍,药剂用量少,环境友好,适于工业化生产。

标签:
废水处理
江苏 - 无锡 来源:北方有色网 2023-03-19
污水处理装置及隧道废水处理系统及方法

本发明涉及工业污水处理领域,特别涉及一种污水处理装置及隧道废水处理系统及方法。所述隧道废水处理系统包括调节池、输送装置、混合器、污水处理装置和清水池;所述调节池、所述输送装置、所述混合器、所述污水处理装置和所述清水池通过管道依次连接;所述污水处理装置包括絮凝箱、沉淀箱、过滤箱。本发明的目的在于提供一种污水处理装置及隧道废水处理系统及方法,以解决现有隧道废水处理中处理技术过于简单,其工艺参数设计不合理,排水停留时间短、反应速度慢、出水水质不稳定,无法保证达标排放的问题。

标签:
废水处理
江苏 - 无锡 来源:北方有色网 2023-03-19
从马铃薯淀粉加工废水中高效回收蛋白质和游离氨基酸的方法

一种从马铃薯淀粉加工废水中高效回收蛋白质和游离氨基酸的方法,属于分离纯化技术领域。本发明利用复凝聚和离子交换原理,将带有相反电荷的蛋白质和聚电解质通过静电作用力形成电中性、不溶性的复合物;并用阳离子交换树脂吸附分离游离氨基酸。以所述废水为原料,选择天然阴离子多糖卡拉胶配制成溶液,并按一定比例加入到废水中;沉淀经过复溶、干燥处理得到马铃薯蛋白产品;上清液通过离子交换树脂分离得到高纯度的氨基酸液。本发明用卡拉胶回收了马铃薯蛋白质,避免了工业上的酸热处理,保留了回收蛋白质的功能性质。此外,游离氨基酸的回收率及氨基酸纯度较高,使含氮物质充分回收,具有较大的实用价值。

标签:
废水处理
江苏 - 无锡 来源:北方有色网 2023-03-19
废水回用系统
废水回用系统 1210     
 0

本实用新型属于工业废水回用系统技术领域,涉及一种废水回用系统,包括与车间废水排水口相连接的斜筛过滤箱,所述斜筛过滤箱的出口与废水收集池的进口相连接,所述废水收集池的出口通过管道连接沉淀池的入口,沉淀池的出口连接气浮池的进口,气浮池的侧部设置浮渣槽以承接气浮池内产生的浮渣,气浮池的回用水口连接清水池的进水口,清水池的回用水口连接回用水泵;浮渣槽的出渣口通过浮渣抽吸泵与污泥池的进口相连接。该回用系统既可以有效地节约和利用有限的和宝贵的淡水资源,又可以减少污水或废水的排放量,减轻水环境的污染,还可以缓解城市排水管道的超负荷现象,具有明显的社会效益、环境效益和经济效益。

标签:
废水处理
江苏 - 无锡 来源:北方有色网 2023-03-19
上一页 67 68 69 70 71 ... 80 下一页
共80页    到第

北方有色为您提供最新的江苏无锡有色金属废水处理技术理论与应用信息,涵盖发明专利、权利要求、说明书、技术领域、背景技术、实用新型内容及具体实施方式等有色技术内容。打造最具专业性的有色金属技术理论与应用平台!

全国热门有色金属设备推荐
展开更多 +
全国热门有色金属技术推荐
展开更多 +

 

江西省隆恩特环保设备有限公司
宣传

报名参会
更多+

报告下载

有色专家
更多+

南方科技大学
外籍院士
昆明理工大学
教授
武汉理工大学
外籍院士/教授
赣州江钨钨合金有限公司
副总经理
江西理工大学
副处长/教授
赤泥综合利用研究报告2025
推广

热门技术
更多+

推荐企业
更多+

福建省金龙稀土股份有限公司
宣传

发布

在线客服

公众号

电话

顶部
咨询电话:
010-88793500-807