青岛垚鑫智能科技有限公司
宣传

位置:中冶有色 >

有色技术频道 >

> 固/危废处置技术

分类:
全部
矿山技术
冶金技术
材料制备及加工技术
环境保护技术
分析检测技术
 
全部
废水处理技术
大气治理技术
固/危废处置技术
土壤修复技术
地区:
全部
北京
天津
上海
重庆
河北
山西
辽宁
吉林
黑龙江
江苏
浙江
安徽
福建
江西
山东
河南
湖北
湖南
广东
海南
四川
贵州
云南
陕西
甘肃
青海
内蒙
广西
西藏
宁夏
新疆
其他
其他
展开
 
全部
北京

北京有色金属固/危废处置技术理论与应用

免费发布技术信息>>
多输入多输出的城市固废焚烧过程模型设计方法

针对城市固废焚烧过程中被控对象模型难以建立的问题,本发明设计了一种多输入多输出的城市固废焚烧过程模型设计方法;首先,描述了城市固废焚烧过程的核心工艺流程并分析了模型的影响因素;接着,针对城市固废焚烧过程控制特点设计了被控对象模型的建模策略,该策略由工况识别模块、数据预处理模块、特征约简模块、被控对象模型训练模块与被控对象模型测试模块组成;最后,通过实验表明了城市固废焚烧过程被控对象模型的有效性,为研究城市固废焚烧过程的优化控制算法奠定了基础。

标签:
固废
北京 - 北京 来源:中冶有色网 2023-03-19
综合处理含硫化氢酸性废气与固废杂盐的方法

本发明公开了一种综合处理含硫化氢酸性废气与固废杂盐的方法,属于废物资源回收技术领域,该方法以回收化工酸性废气硫化氢制硫酸,与固废杂盐进行反应,生产盐酸和硫酸氢钠产品。本发明将化工酸性废气硫化氢回收与固废杂盐资源化综合处置,实现了对两种污染物的回收再利用,利用化工企业排出的酸性废气硫化氢回收制取硫酸和蒸发结晶获得的硫酸钠与氯化钠的固废杂盐为原料,生产盐酸和硫酸氢钠产品,既节省了硫酸的购买成本,又解决了固废杂盐的处置问题,实现了真正意义上的零排放,并带来了一定的经济价值,满足可持续发展要求。

标签:
固废
北京 - 北京 来源:中冶有色网 2023-03-19
利用冶金固废材料加工免烧陶粒砂的方法

本发明是一种利用冶金固废材料加工制造免烧陶粒砂的方法,制造步骤:1.将液晶固废材料磨成一定目数的粉;2.将粉用造粒机造粒粉;3.利用冶金固废材料的特性,自身产生凝结的化学反应(也可加入催化剂或粘合剂),免烧达到有一定支撑强度的陶粒砂。在制造陶粒砂颗粒,在冶金固废材料自身凝结反应时加入少量的发泡剂,调节陶粒砂密度。本发明可用于建筑、家具、工艺品等领域,具有良好的支撑强度,环保,无二次污染风险,可减少碳排放。

标签:
固废
北京 - 北京 来源:中冶有色网 2023-03-19
高含固有机固废厌氧反应器

本发明涉及厌氧生物反应器技术领域,尤其是涉及一种高含固有机固废厌氧反应器。该高含固有机固废厌氧反应器包括容器,容器的下部为半圆柱形,容器的上部为长方体形,容器的上部与容器的下部平滑过渡连接;容器的长度方向的两个端面上均设有用于支撑搅拌器的搅拌器安装支座。该高含固有机固废厌氧反应器,通过下半部呈半圆柱柱形、上半部呈长方形的密封体容器容纳有机固废,通过安装基座轴向水平安装搅拌器并进行搅拌,半圆柱形的下部与搅拌器配合,并且搅拌器轴向水平,有利于将有机固废搅拌充分;长方形的上部提供了容纳沼气的空间,进料含固率高、粒径范围广、耐容杂高,解决了所要解决的技术问题。

标签:
固废
北京 - 北京 来源:中冶有色网 2023-03-19
含油固废热处理方法及设备

本发明提供了一种含油固废热处理方法及设备。所述设备包括含油固废预热干燥装置(1)和/或高温油气余热利用装置(3)、以及含油固废处理装置(2)、油气冷凝回收装置(4)和油水分离装置(5)。本发明设计的余热利用步骤,利用高温油气的热量,将水变为清洁蒸汽为含油固废加热,实现了节能降耗。

标签:
固废
北京 - 北京 来源:中冶有色网 2023-03-19
建筑拆除和装修固废垃圾的处理系统

本申请涉及一种建筑拆除和装修固废垃圾的处理系统,其包括用来处理建筑拆除固废垃圾的再利用生产线一、用来处理建筑装修固废垃圾的再利用生产线二以及设于再利用生产线一、再利用生产线二之间的桥接装置,桥接装置包括a、b、c三个工作状态;a:无运动;b:正向输送;c:反向输送。本申请具有固废垃圾供应不平衡时,启动双向平衡桥接装置流程,避免了一条线忙不过来而另一条线闲置的现象,提高了设备利用率;同时,可最大化利用装修固废垃圾混凝土块类物料,生产更多高价值的再生骨料,提高了收益的效果。

标签:
固废
北京 - 北京 来源:中冶有色网 2023-03-19
环保型固废处理用筛分装置

本实用新型公开了一种环保型固废处理用筛分装置,包括筛分筒,所述筛分筒顶部的中心处连通有入料管,所述筛分筒的侧面安装有破碎电机,且破碎电机的输出端固定连接有转轴,所述转轴延伸至筛分筒内并固定安装有辊筒a,且辊筒a的表面安装有破碎齿a,所述筛分筒的内壁设有镶嵌环a。该环保型固废处理用筛分装置,经过破碎后的固废先通过筛分滤网a进行筛分,筛分滤网a对不同大小的固废进行筛选和阻隔,通过筛分滤网a筛选的固废掉落至筛分滤网b上,筛分滤网b进一步对固废进行筛分,使得固废得以多级筛选,配合振动弹簧和复位弹簧的设置,使得筛分滤网a和筛分滤网b在筛分的同时发生震动,以提高筛分的效果。

标签:
固废
北京 - 北京 来源:中冶有色网 2023-03-19
针对大规模有机固废的好氧微生物发酵处理系统

本实用新型公开了一种针对大规模有机固废的好氧微生物发酵处理系统,包括大型发酵堆、通风系统、保温系统、渗出液收集与吸收装置、水切碎预处理装置及针对特大固废堆的预处理发酵系统。本发酵处理系统专为大规模的有机固废好氧微生物发酵而设计,其采用便捷实用的结构首先对大规模的有机固废进行预处理,再堆制大型发酵堆,借助自然的办法使发酵堆的供氧和保温达到平衡,整体处于高温发酵的工作状态,发酵周期短,处理速度快,十分适用于大规模有机固废的微生物处理。

标签:
固废
北京 - 北京 来源:中冶有色网 2023-03-19
添加大宗工业固废制备轻质通用塑料复合材料的方法

一种添加大宗工业固废制备轻质通用塑料复合材料的方法,属于化工材料制备领域。本发明以大宗工业固废和通用塑料为主要原料,通过对大宗工业固废进行表面改性,提高与通用塑料的相容性,利用复合增塑剂改善复合材料的流动性和加工性能,然后在适量发泡剂和助剂共同作用下进行混炼、造粒和成形,制备出添加大宗工业固废的轻质通用塑料复合材料。本发明工艺简便,成本低廉,产品轻质高强,附加值大。本发明制备的复合材料具有工业固废填充量大、密度低、力学性能好、抗冲击能力强等特点,且有优良的缓冲减震、隔音隔热、绝缘、耐腐蚀、耐霉菌等性能。采用该复合材料制备的轻质绿色建材和工程制品可广泛用于建筑、化工、冶金、交通等领域。

标签:
固废
北京 - 北京 来源:中冶有色网 2023-03-19
油污固废无害化处置方法

一种油污固废无害化处置方法,其特征在于,包括预处理单元、干化单元、热解单元、热解气急冷单元、不凝气净化单元、油水处理单元;具体步骤如下:步骤一、对油污固废进行预处理:将油污固废送入预处理单元,用破碎机破碎;将破碎后的油污固废送入滚筒筛中进行筛分,将油污固废中夹杂的粒径大于8‑10mm的无机物筛出,放回破碎机继续破碎;留下小于8‑10mm油污固废,进入下一步,本发明容易操作,设备运行稳定可靠,整个过程热解效果好,降低油气分离成本,提高油气品质,并且在同等处理能力情况下,在实现连续运行的同时,大大降低了设备的占地面积,同时热效率高,经济效益明显。

标签:
固废
北京 - 北京 来源:中冶有色网 2023-03-19
废气净化装置及固废处理器

本实用新型涉及有机固废处理技术领域,尤其是涉及一种废气净化装置及固废处理器。该废气净化装置包括:净化罐、进气管、出气管和喷淋装置;进气管的一端与净化罐连通,另一端用于与固废处理器的发酵装置的出气口连通;出气管的一端与净化罐连通,另一端用于与固废处理器的发酵装置的进气口连通;净化罐上设置有进气口和出水口;喷淋装置用于向净化罐内喷淋水。本实用新型实施例提供的废气净化装置通过净化罐和喷淋装置的配合使用实现气体循环,对废气的热量进行再次利用,减少了能量浪费。

标签:
固废
北京 - 北京 来源:中冶有色网 2023-03-19
固废处理后的压缩装置
固废处理后的压缩装置 1072     
 0

本实用新型公开了一种固废处理后的压缩装置,包括处理箱体和压缩皿,所述处理箱体的内壁固定安装有定位梁,且定位梁上安装有压缩皿,所述处理箱体的后板内壁固定安装有驱动电机,且驱动电机的输出端固定连接有旋盘,所述旋盘上固定安装有定位销,所述处理箱体的后板内壁还固定安装有安装销,且安装销上转动安装有扇形齿轮,所述扇形齿轮远离齿的一侧固定连接有摆板。该固废处理后的压缩装置,对位齿条带动连架顺着导轴滑动,对位齿条向下移动时,其带动压缩头向压缩皿内下压,使得压缩头对压缩皿内的固废进行压缩处理,从而使得压缩头往复移动对固废进行间歇性压缩处理,提高其压缩的效果和质量,自动化程度高,省时省力。

标签:
固废
北京 - 北京 来源:中冶有色网 2023-03-19
基于多尺度颜色矩特征和随机森林的固废焚烧工况识别方法

本发明涉及基于多尺度颜色矩特征和随机森林的固废焚烧工况识别方法。焚烧火焰图像特征的冗余性和复杂性增加了城市固废焚烧(MSWI)燃烧工况识别的难度。固废成分的复杂性和固废焚烧过程固有的非线性、时变性和不确定性等原因造成了焚烧图像特征分布的不稳定。传统基于固定滑动窗口的方法只能提取固定尺寸特征,不能反映全局和局部特征,降低工况识别准确率。首先,对图像进行去雾和去噪预处理。接着,采用基于先验设定尺度的滑动窗口,提取火焰图像不同尺度的颜色矩特征。最后,以分类精度为准则函数,采用基于特征选择的随机森林(RF)算法,实现MSWI焚烧工况的准确识别。实验结果验证了所提方法的有效性。

标签:
固废
北京 - 北京 来源:中冶有色网 2023-03-19
金属固废的处理系统
金属固废的处理系统 1147     
 0

本发明提供一种金属固废的处理系统,包括有臭氧发生单元、曝气单元、搅拌单元和沉淀单元,所述臭氧发生单元经管路与曝气单元相连通,所述曝气单元伸入所述搅拌单元内,所述搅拌单元经管路与沉淀单元相连通。本发明进一步提供一种金属固废的处理系统的使用方法。本发明提供的一种金属固废的处理系统,采用的臭氧发生单元,产生的臭氧浓度高,无污染,电极消耗低,不受环境温度和湿度的影响,维护成本低,并在絮凝剂作用下,将臭氧氧化后的金属固废迅速沉淀分离出来,变废为宝。

标签:
固废
北京 - 北京 来源:中冶有色网 2023-03-19
磺化体系水基钻井固废生物强化处理工艺及绿化种植土

本发明提供了一种磺化体系水基钻井固废生物强化处理工艺及绿化种植土,所述工艺包括步骤:制备高温生物制剂;将高温生物制剂和磺化体系水基钻井固废按0.3~1.0%wt:1混合得到第一混合物;加入占第一混合物5~15%wt的营养剂获得第二混合物;将第二混合物转移至发酵罐处理2~4天,获得第三混合物;制备常温生物制剂并与第三混合物按0.1~0.5%wt:1混合后转移至处理场所,在15~35℃处理55~57天得到种植土;其中,高温生物制剂为嗜热脱氮芽孢杆菌和/或苍白空气芽孢杆菌,常温生物制剂为粪产碱菌酚亚种GFB‑14。本发明具有能够缩短钻井固废处理周期,不使用自然土,固废处理后可作绿化种植土使用等优点。

标签:
固废
北京 - 北京 来源:中冶有色网 2023-03-19
用钻井固废土制备混凝土或混凝土砌块的方法

本发明涉及一种用钻井固废土制备混凝土或混凝土砌块的方法,该方法是用钻井固废土作为主要原料,用砂石作为骨料,再加入胶合材料,其比例为固废土60份、胶合材料30份、沙石10份,混合均匀,制模成型可得到满足强度要求的建筑材料,并通过特定的现场工艺技术完成钻井井场护坡和道路的修建。本发明可实现钻井固废土的现场及时利用和无害化处理,具有较好的经济效益和社会效益。

标签:
固废
北京 - 北京 来源:中冶有色网 2023-03-19
协同处理含汞固废的矿山用胶结充填料及其制备方法

本发明公开了一种协同处理含汞固废的矿山用胶结充填料及其制备方法,属于矿山胶结充填技术领域。具体公开了胶结充填料的原料包括:钢渣、矿渣、石膏、氧化锆、集料、菌剂、含汞固废及减水剂;制备方法为:将含汞固废粉碎后与菌剂混合,得到混合物A;将矿渣、钢渣、减水剂与石膏混合,加入混合物A、氧化锆与集料,得到混合物B,加入水进行混合搅拌,得到矿山用胶结充填料。本发明的矿用胶结充填料力学性能优异,克服了矿渣、钢渣作为胶凝材料力学性能不佳的缺陷,同时还可协同处理含汞固废,实现重金属汞的零渗出,在矿山充填领域及含汞固废处理领域具有重要的应用价值。

标签:
固废
北京 - 北京 来源:中冶有色网 2023-03-19
利用超导磁分离装置同时提取固废中铁硅元素的方法

一种利用超导磁分离装置同时提取固废中铁硅元素的方法,属于资源与环境领域。其特征是:利用固废中不同有价物质的磁性差别,利用超导高梯度磁分离装置,并充分利用磁絮凝强化或弱化作用机制,添加MD-004及PFASSB试剂,并通过参数控制进行各有价物质的分离与回收。本发明主要针对硅铁含量较高的固废运用自主研发超导高梯度磁分离系统,在分离提取氧化铁的同时实现二氧化硅的分离与提取,最大程度地回收利用固废中的有价元素。该技术是在获得经济效益的同时处理与回用废物,无二次污染,环境友好。该技术投资省、占地面积小、操作简便、运行成本低,有广泛应用前景。

标签:
固废
北京 - 北京 来源:中冶有色网 2023-03-19
用于固废原位治理的混合机

本实用新型公开了一种用于固废原位治理的混合机,包括牵引机架、固定支架、传动箱和齿轮传动箱,其特征在于:牵引机架和传动箱与驱动该混合机的动力源相连接,传动箱经传动轴与齿轮传动箱连接并传递动力,齿轮传动箱的输出端连接刀轴,在刀轴上固定多个弯刀,刀轴经轴承与固定支架连接,在固定机架前端固定有犁刀使得犁刀位于弯刀前方,固定支架通过牵引机架与所述动力源相连。该用于固废原位治理的混合机用于固废原位固化/稳定化治理工程实施过程中,固化剂与固废的原位混合,以保证固化/稳定化的效果,同时减少设备的投入及固废的倒运,降低固废的治理成本。

标签:
固废
北京 - 北京 来源:中冶有色网 2023-03-19
钻井固废输送管道增压混合装置

本实用新型提供一种钻井固废输送管道增压混合装置,在增压混合管道的首尾两端通过法兰与固废进出口变径快接相连,在增压混合管道的侧壁上对称开设有喷嘴孔,相对开设的喷嘴孔通过喷嘴管道相连通,在喷嘴管道的末端设置有高压喷嘴,且高压喷嘴伸入增压混合管道内,在喷嘴管道上设置喷嘴调节阀,相邻的喷嘴管道之间通过高压硬管相连通,高压硬管的入口端与高压泵相连。本装置主要增设在钻井固废输送管道的中间或末端位置,利用高压喷嘴在增压混合管道中快速释放,实现对钻井固废的增压作用,降低钻井固废在增压混合管道废输送过程中的堵塞风险,进而提高传输效率。

标签:
固废
北京 - 北京 来源:中冶有色网 2023-03-19
用于固废垃圾处理系统的防尘组件

本实用新型提供了一种用于固废垃圾处理系统的防尘组件,所述防尘组件包括:上料仓门(73),所述上料仓门(73)铰接在固废垃圾处理系统的箱体(71)的侧壁上;液压升降装置(76),所述液压升降装置(76)的一端铰接在固废垃圾处理系统的箱体(71)上,另一端铰接在上料仓门(73)上,使得在液压升降装置(76)的驱动下,所述上料仓门(73)能够使固废垃圾处理系统的进料斗(2)露出或罩住固废垃圾处理系统的进料斗(2);以及活动式防尘罩(74),所述活动式防尘罩(74)直接地或间接地设置在上料仓门(73)上,并且能够随着上料仓门(73)的上升而展开,以及随着上料仓门(73)的下降而折起。本实用新型的防尘组件具有改善的抑尘效果。

标签:
固废
北京 - 北京 来源:中冶有色网 2023-03-19
高强度矿山充填固废互协复合胶凝剂及其制备方法、使用方法

本发明公开了一种高强度矿山充填固废互协复合胶凝剂及其制备方法、使用方法,涉及复合胶凝剂技术领域,其中固废互协复合胶凝剂包括以下重量份数的物质:61~92份冶炼废渣、3~29份脱硫石膏、2~21份促凝剂、0.1~4份调凝剂、0.05~0.2份稳定剂,且按重量份数制成充填浆体,其包括3~20份固废互协复合胶凝剂、45~75份尾砂、22~40份水,本发明以固废互协复合胶凝剂取代普通水泥,和矿山尾砂、水混合形成充填浆体,在井下固化,形成高强度充填体,不但大大降低充填采矿成本,还实现了工业废弃物的资源化利用。

标签:
固废
北京 - 北京 来源:中冶有色网 2023-03-19
转笼式多室有机固废热解反应器及其热解方法

本发明提供了一种转笼式多室有机固废热解反应器及其热解方法,该热解反应器包括依次相连的多级反应室、笼式搅拌器、连接通道、烟道等结构,其中笼式搅拌器由旋转轴、搅拌架、旋转搅拌叶片和固定搅拌叶片组成。有机固废原料按一定进料速率连续送入第一级反应室中,在笼式搅拌器的翻动下均匀受热分解,每级反应室中的热解剩余物不断经由旋转搅拌叶片推动,通过连接通道,自动进入下一级反应室中继续热解,出料量可通过旋转叶片的角度进行调节。热解剩余物在最后一级反应室中完全热解后排出,生成的热解气和残渣可进一步处理和利用。使用上述反应器进行无氧条件下有机固废的连续热解,可有效避免二噁英等有害物质生成,实现有机固废的无害化处理。

标签:
固废
北京 - 北京 来源:中冶有色网 2023-03-19
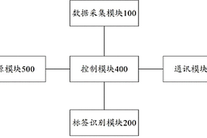
基于物联网的城市固废收运智能监控装置及方法

本发明提出一种基于物联网的城市固废收运智能监控装置及方法。其中,装置包括:数据采集模块,用于采集固废收运车辆和固废的信息;标签识别模块,用于识别固废的标签,其中,标签可以识别不同回收机构回收处理;通讯模块,用于将采集到的信息发送到监控中心或接收监控中心的控制指令;控制模块,用于控制数据采集模块的数据采集;以及电源模块,用于为监控装置提供所需的电源,其中,通过多个回收机构对固废进行包装利用安装有回收监控装置的回收车辆对固废进行运输,运输过程中回收控制装置对车辆和固废进行监控。根据本发明实施例的装置,通过多方位数据进行采集,并与监控中心进行数据交互实现了数据的固废回收的实时监控和管理,提高了效率。

标签:
固废
北京 - 北京 来源:中冶有色网 2023-03-19
一体化智能固废好氧发酵处理系统

本发明公开了一种一体化智能固废好氧发酵处理系统,包括位于同一密闭空间内的送料装置、翻料装置、固废发酵平台及净化装置。翻料装置设置在固废发酵平台的上方;送料装置设置在固废发酵平台的两侧;净化装置设置在固废发酵平台的端部;翻料装置包括行走大车、行走小车、卸料部、翻料部及传料部;行走小车设置在行走大车上;卸料部设置在行走大车上,翻料部环绕行走小车设置,传料部设置在行走小车上,且传料部位于翻料部所环绕的区域内,传料部能够沿行走小车在行走大车上的移动方向传动。本发明的一体化智能固废好氧发酵处理系统,提高了固废发酵处理效率,减少了发酵处理能耗、缩短了发酵处理周期,自动化程度高。

标签:
固废
北京 - 北京 来源:中冶有色网 2023-03-19
矿物和/或固废中二氧化硅的脱除方法

本发明提供了一种矿物和/或固废中二氧化硅的脱除方法,所述方法包括:焙烧含氟添加剂与矿物和/或固废的混合物,含氟添加剂与矿物和/或固废中的二氧化硅反应,得到焙烧产物;其中,所述矿物和/或固废中的二氧化硅是指矿物和/或固废中的晶态二氧化硅和/或非晶态二氧化硅。所述方法工艺简单,适应性强,二氧化硅的去除率高,副产物通过简单的方法即可脱除,焙烧产物经后处理能够使有价元素或矿物富集,极大地促进工业应用。

标签:
固废
北京 - 北京 来源:中冶有色网 2023-03-19
添加煤基固废制备低密度PVC泡沫保温材料的方法

一种添加煤基固废制备低密度PVC泡沫保温材料的方法,属于化工材料制备技术领域。本发明首先对煤基固废进行表面刻蚀增加粗糙度,再接枝氨基硅烷偶联剂,然后与多官能度异氰酸酯进行强化预交联,得到基固废‑异氰酸酯复合中间体;之后将煤基固废‑异氰酸酯复合中间体、复配环氧树脂、PVC、发泡剂、阻燃剂及抑烟剂按比例混合,所得糊料通过高温模压和二次发泡成型,即制得低密度PVC泡沫保温材料。本发明工艺绿色环保、产品附加值高。利用本发明所制备的PVC泡沫保温材料具有煤基固废填充量高、密度小、导热系数低和比压缩强度大等突出特点,且兼具B1级阻燃性能,可作为隔热保温材料,广泛应用于建筑、冷链运输等领域。

标签:
固废
北京 - 北京 来源:中冶有色网 2023-03-19
有机固废受控热解的工艺方法和装置

本发明提供一种有机固废受控热解的工艺方法和装置,属于固废处理领域,采用一种有机固废受控热解的工艺方法,其特征在于,具体包括以下步骤:将固废进行物料预处理;将预处理后的固废送入热解装置进行分温度段控温热解处理;将在热解装置各温度段的保温时间根据被热解材料的不同分别设定;将热解处理过程中产生的热解产物进行分别回收处理。所述S2热裂解的温度段根据输送方式采用所述热解材料固定位置加热,分温度段逐渐加热保温一定时间的方式,根据所述热解材料在相应温度段的所述热解产物的不同性质,采用相应独立的回收方法或几个温度段组合回收方法;克服了现有技术中热解后产物耦合在一起,不能分别别资源化处理的问题。

标签:
固废
北京 - 北京 来源:中冶有色网 2023-03-19
可资源化生物质、生活垃圾、及污泥的固废处理系统

本实用新型涉及专门适用于特殊的固态原材料或特殊形状的固态原材料的分解蒸馏技术领域,公开了一种可资源化生物质、生活垃圾、及污泥的固废处理系统,用于同时处理生物质固废、污泥、以及生活垃圾,包括用于干燥污泥的污泥干化装置,用于干燥生活垃圾的垃圾干化装置,用于热解干化污泥和干化生活垃圾混合物的混合热解炉,以及用于提供燃气的生物质气化炉。本实用新型中,通过将各种有机固废的处理过程深度耦合,使每种有机固废在热解上的劣势均被别的有机固废的优势以及工艺流程所弥补,使每种固废均在适合自身的热解条件下被热解且热解参数稳定,在不需消耗外界燃料的前提下使得处理效果稳定且能够避免二恶英产生。

标签:
固废
北京 - 北京 来源:中冶有色网 2023-03-19
钻井固废处理方法和应用

本发明提供了一种钻井固废的处理方法,属于工业固废处理领域。所述处理方法包括如下步骤:将钻井固废通过导流槽导入到防渗废液收集罐中,按比例加入破胶剂,按照120r/min的搅拌速度搅拌5分钟;之后将搅拌后的含水钻井固废通过螺杆泵泵入到变频离心机中,500r/min离心5分钟,将水相和固相分离;最后,将分离后的固相转入到防渗容器中,按比例加入调节剂,固化剂,促凝增强剂,活性剂,按照100r/min的搅拌速度搅拌20分钟,搅拌均匀后养护3天以上,得到改性路基土。本发明的有益效果在于,本发明使用添加剂实现了钻井废弃泥浆的无害化处理。其次,通过本发明所述方法处理的工业固废可以制备出符合标准的路基土材料,起到了固废资源化利用的作用。

标签:
固废
北京 - 北京 来源:中冶有色网 2023-03-19
上一页 206 207 208 209 210 ... 226 下一页
共226页    到第

中冶有色为您提供最新的北京有色金属固/危废处置技术理论与应用信息,涵盖发明专利、权利要求、说明书、技术领域、背景技术、实用新型内容及具体实施方式等有色技术内容。打造最具专业性的有色金属技术理论与应用平台!

全国热门有色金属设备推荐
展开更多 +
全国热门有色金属技术推荐
展开更多 +

 

江西省隆恩特环保设备有限公司
宣传

报名参会
更多+

报告下载

有色专家
更多+

华东理工大学
主任/教授
有研科技集团有限公司
首席科学家
赣州江钨钨合金有限公司
工程师
江西省科学院应用化学研究所
副主任/副研究员
有研资源环境技术研究院(北京)有限公司
副总经理/教授级高工
赤泥综合利用研究报告2025
推广

热门技术
更多+

推荐企业
更多+

福建省金龙稀土股份有限公司
宣传

发布

在线客服

公众号

电话

顶部
咨询电话:
010-88793500-807