青岛垚鑫智能科技有限公司
宣传

位置:中冶有色 >

有色技术频道 >

> 固/危废处置技术

分类:
全部
矿山技术
冶金技术
材料制备及加工技术
环境保护技术
分析检测技术
 
全部
废水处理技术
大气治理技术
固/危废处置技术
土壤修复技术
地区:
全部
北京
天津
上海
重庆
河北
山西
辽宁
吉林
黑龙江
江苏
浙江
安徽
福建
江西
山东
河南
湖北
湖南
广东
海南
四川
贵州
云南
陕西
甘肃
青海
内蒙
广西
西藏
宁夏
新疆
其他
其他
展开
 
全部
北京

北京北京有色金属固/危废处置技术理论与应用

免费发布技术信息>>
渣浆、固废管道的压力检测装置

一种渣浆、固废管道的压力检测装置,包括第一筒体,该第一筒体上方设有第二筒体;该第一筒体顶部设有第一外沿,该第二筒体中部设有第二外沿;该第二筒体内部设有容置空间,该第二筒体顶部设有通孔;该容置空间内设有活塞杆;该活塞杆包括盘体和杆体,该盘体截面与该容置空间的截面对应,使该盘体能沿着该容置空间的轴线移动;该盘体与该第二筒体之间形成密封腔室,该密封腔室内填充有液体;该第二筒体侧面设有与该密封腔室连通的注液通道,该注液通道外端通过封堵螺母封堵;该杆体穿过该通孔,顶端位于该第二筒体上部;该杆体内部设有液体流道,该液体流道底部与该密封腔室连通,该杆体顶端设有压力传感器,该杆体顶部外周设有限位螺母。

标签:
固废
北京 - 北京 来源:中冶有色网 2023-03-19
卧式混合器及固废处理系统

本发明属于物料处理技术领域,具体涉及一种卧式混合器及固废处理系统,所述卧式混合器包括混合器本体和下料部件;所述混合器本体用于物料混合,且所述混合器本体上设有至少两个下料口,每个所述下料口处均安装有一个所述下料部件;每个所述下料部件均设置闸门和驱动油缸,所述闸门设于所述下料口处;所述驱动油缸的活塞杆与所述闸门连接,适于驱动所述闸门移动以关闭或打开所述下料口以控制所述混合器本体卸料。上述卧式混合器通过设置多个单独布置和控制的下料部件,利用下料部件与卸料口的一一对应设置,使得卧式混合器不仅能够单独排料,还能够同时排料,大大增加了卧式混合器的工作效率和灵活性。

标签:
固废
北京 - 北京 来源:中冶有色网 2023-03-19
用于水泥稳定路面基层材料的煤基固废型抗裂剂

本发明公开了一种用于水泥稳定路面基层材料的煤基固废型抗裂剂,其包括:30~70%的抗裂母料、10~40%的烧制脱硫石膏、0.1~2.0%的调凝剂、2~10%的木质纤维素、0.1~5.0%的活化素、0~30%的PO42.5水泥,以上组分含量总和为100%,以抗裂剂的总质量计。本发明通过抗裂剂与水稳基层材料中水泥的相互作用,补偿水稳基层材料水化过程中产生的收缩,并通过提高水稳基层材料的抗劈裂强度,提高水稳基层的整体抗裂性能,改善水稳基层的长期力学性能和耐久性能,降低路面病害发生几率,进而提升路面整体使用年限。

标签:
固废
北京 - 北京 来源:中冶有色网 2023-03-19
固废危废清洁资源化处置方法

本发明涉及一种固废危废清洁资源化处置方法,该方法包括以下步骤:S1、将废弃物进行预处理,然后与气化剂一并送入高温热反应装置进行高温气化反应,得到高温煤气和熔融的炉渣,其中,所述高温热反应装置内的最高反应温度高于所述废弃物的灰熔点流动温度,且所述高温气化反应在还原性气氛下完成,所述还原性气氛是指反应体系内气体中的氧气摩尔浓度低于0.5%且一氧化碳和氢气的总和在气体中的摩尔浓度高于5%;S2、所述高温煤气经过换热和净化后得到清洁煤气,所述熔融的炉渣经过冷却后回收。

标签:
固废
北京 - 北京 来源:中冶有色网 2023-03-19
利用CO2防垢阻垢的有机固废湿式氧化处理系统及工艺

本申请公开了一种利用CO2防垢阻垢的有机固废湿式氧化处理系统及工艺,包括:原泥储罐、换热反应装置、供氧单元、反应泥压力储罐、机械脱水装置、滤液常压储存箱、滤液泵和带压滤液储罐。机械脱水装置对反应后污泥进行脱水并将滤液储存在滤液常压储存箱中,滤液泵将滤液常压储存箱中的常压滤液增压输送至带压滤液储罐中,同时将反应泥压力储罐中的富含CO2的带压反应气通入带压滤液储罐中的滤液中,带压滤液储罐中的滤液吸收通入的反应气中的CO2,然后将带压滤液储罐中富含CO2的滤液注入原泥中对原泥进行调质,从而可以利用CO2显著增强污泥湿式氧化处理系统的防垢阻垢效果,提高其工艺的稳定性和可靠性,并在一定程度上降低工艺能耗和处理成本。

标签:
固废
北京 - 北京 来源:中冶有色网 2023-03-19
危险固废油泥的处理方法

本发明涉及一种危险固废油泥的处理方法,包括如下步骤:除杂;去除金属和大块杂质。热解:除杂后的油泥进入热解器,在蒸汽的作用下进行热解得到积炭的热解渣与热解油气。分离:热解油气经冷凝分离系统分离,得到热解油和热解气,热解油品回收利用。能量回收:热解气和积炭的热解渣进入余热锅炉燃烧供热,热量用于产生蒸汽供热解过程使用。该方法对油泥进行热解提高了热解过程中油品的收率,降低了热解渣积碳量。油泥热解积炭后的热解渣再焚烧,避免了油泥直接燃烧过程二噁英的产生。工艺过程对热解产生的气体和积碳等进行了合理利用,回收得到了高品质的油品,实现了油泥的资源化利用。

标签:
固废
北京 - 北京 来源:中冶有色网 2023-03-19
移动式油污固废热解炉

一种移动式油污固废热解炉,包括外层密封壳(4)和内层炉膛(1),内层炉膛(1)内设有长方体加热腔(19),其特征在于,在内层炉膛(1内的长方体加热腔(19)上面设有弧形加热腔(18),长方体加热腔(19)上面和弧形加热腔(18)采用焊接方式连接;长方体加热腔一面为进出料口,采用密封扣板(21)进行密封连接;在长方体加热腔的进出料口外相应的是连接在外层密封壳(4上的炉门(5),炉门(5)上镶嵌密封氟橡胶圈(6);本发明使用双层壳体实现炉体的密封,通过上下布置的辐射管进行加热,使得炉体内部温度场合理,物料置于两排辐射管中间,相对静止,不产生二次飞灰,炉膛上方成拱形,便于热解油气导出,不宜结焦。

标签:
固废
北京 - 北京 来源:中冶有色网 2023-03-19
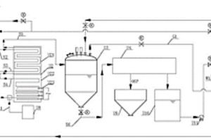
有机固废水热反应处理系统及其处理工艺

本申请公开了一种有机固废水热反应处理系统及其处理工艺,包括原泥储罐单元、换热反应单元、反应泥压力储罐单元、带压机械脱水单元、带压滤液储罐单元和污泥泵;采用反应泥压力储罐单元储存水热反应后污泥,可利用自身压力进行反应泥脱水而无需泵送,同时联合压缩空气单元可快捷建立和调控系统水热反应压力;采用带压机械脱水单元和带压滤液储罐单元的功能联合,可将带压滤液存储在带压滤液储罐中,并利用带压滤液储罐存储的压力能将滤液回注对原泥进行调质和余热回收,在获得显著节能的同时明显提高了系统长期运行稳定可靠性,而且还具有系统紧凑、全自动测控、系统启停简便、现场整洁环保和污泥处理产物处置多样性的特点。

标签:
固废
北京 - 北京 来源:中冶有色网 2023-03-19
高温固废渣块破碎冷却系统

本实用新型提供了一种高温固废渣块破碎冷却系统,包括垃圾焚烧炉、破碎室和收集仓,破碎室底部安装有一立轴,立轴上安装有锤轴,锤轴上设置有锤头,锤头的旋转半径自上而下逐渐减小,最上层锤头为矩形锤头,下层的锤头为直角梯形锤头,各直角梯形锤头的锐角的角度自上而下逐渐减小,破碎室的内壁上安装有反击板;破碎室的下部设有高压冷却风室,高压冷却风室顶部设有光滑伞板,光滑伞板上设有高压冷却风管,光滑伞板下部连接锥型渣粒收集仓。渣块既达到分级破碎的目的,同时快速降低渣块的温度,减少了现有设备因多层锤头线速度高和锤头重而产生的能源消耗;破碎后的渣块直径在5mm‑30mm,杜绝了大块渣块下落砸坏输送设备的问题。

标签:
固废
北京 - 北京 来源:中冶有色网 2023-03-19
用于含汞固废及土壤处理的间接热解吸修复系统

本实用新型提供了一种用于含汞固废及土壤处理的间接热解吸修复系统。系统包括进料单元、热解吸单元、高温除尘单元、尾气处理单元、工艺水处理单元和出料单元;所述热解吸单元分别连接进料单元、高温除尘单元和出料单元,高温除尘单元连接尾气处理单元和出料单元,工艺水处理单元连接尾气处理单元。该系统处理能力大、汞及其化合物去除率高、便于运输和安装,并且此系统可灵活控制含汞物料热解吸温度及停留时间,充分利用系统余热及处理后达标水,高效经济的修复汞污染物料,同时最大限度的回收汞单质,实现废水达标回用、尾气达标排放的目的。

标签:
固废
北京 - 北京 来源:中冶有色网 2023-03-19
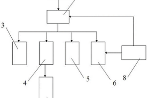
城乡固废无害化处理综合利用系统

本实用新型提供一种城乡固废无害化处理综合利用系统,由称重计量装置、综合分选装置、有机物中温厌氧发酵装置、塑料造粒装置、热解气化装置、建筑垃圾破碎装置、建材制造装置及除尘除臭装置构成。采用“垃圾综合分选、中温厌氧发酵、塑料造粒系统、热解气化系统、建材制造系统”相结合的综合处理方式,使产业园垃圾中的各个组分达到了物尽其用,基本实现“零填埋”,保障垃圾无害化、减量化和资源化的处理,有效减少二次污染,减轻城市因垃圾带来的环境污染。

标签:
固废
北京 - 北京 来源:中冶有色网 2023-03-19
固废基胶凝材料生产系统

本申请公开一种固废基胶凝材料生产系统,包括烘箱、运输机组、破碎机构以及搅拌机构,运输机组包括五个并排设置的运输机构;烘箱沿第一方向延伸,运输机构沿第一方向延伸并被配置为沿第一方向运输物料,以将物料由运输机组的出口运输至出口;运输机组设置于烘箱,烘箱用于热烘经运输机构运输的物料;破碎机构对应于运输机组的出口,用于承接物料并破碎物料;搅拌机构与破碎机构连接,以搅拌由破碎机构破碎后的物料。

标签:
固废
北京 - 北京 来源:中冶有色网 2023-03-19
井场固废资源化利用负压送粉固化撬装设备

本实用新型公开了一种井场固废资源化利用负压送粉固化撬装设备,包括固化撬,所述固化撬的进料端与固液分离撬连通,其出料端与固相制备撬连通;其中,所述固液分离撬包括分离橇体和内置于所述分离橇体中的振动筛和离心机,所述固化撬包括固化橇体和内置于所述固化撬体中的固化单元,所述固相制备撬包括制备橇体和内置于所述制备橇体内的制砌块装置;所述振动筛的进料口通过收集装置的进料口与钻井平台的四级固控系统的一级固控出料口相连通,所述振动筛的固相出料口与所述离心机的固相出料口相连通,所述离心机的固相出口与所述固化单元的进料口相连通,其液相出口与液相储存罐连通,所述固化单元的固相出口与所述制砌块装置的原料进口相连通。该设备可实现负压送粉,且其独立撬装,便于拆卸。

标签:
固废
北京 - 北京 来源:中冶有色网 2023-03-19
有机固废热解系统和热解方法

本发明公开了有机固废热解系统和热解方法。其中热解系统包括干燥装置、热解装置和燃烧装置,干燥装置具有原料入口、干燥产物出口、干燥热风入口和低温热风出口;热解装置包括内筒体和外筒体,内筒体具有半焦出口、热解油气出口和多个沿内筒体长度方向间隔布置的干燥产物入口,干燥产物入口与干燥产物出口相连;外筒体套设在内筒体上且外筒体与内筒体之间形成密封空腔,外筒体具有高温烟气入口和中温烟气出口,中温烟气出口与干燥热风入口相连;燃烧装置具有与热解油气出口相连的热解油气入口和与高温烟气入口相连的高温烟气出口。采用该系统可以简便有效地解决热解装置中颗粒料热解挥发分的释放速率以及燃烧装置内燃烧工况不稳定的问题。

标签:
固废
北京 - 北京 来源:中冶有色网 2023-03-19
危险固废制备微晶玻璃的方法

本发明公开了一种以危险固废(简称危固)为原料制备微晶玻璃的方法,利用危固中的重金属为形核剂,经过配料、熔融、压延、形核、晶化和退火得到微晶玻璃。本发明的优点是将垃圾焚烧灰、不锈钢渣、不锈钢酸洗污泥、电镀污泥、铬渣、铅锌冶炼渣、粉煤灰中的重金属元素稳定固化,避免了污染,同时获得高附加值的微晶玻璃,实现了危固的无害化高值化利用,具有显著的环保和经济效益,市场前景广阔。

标签:
固废
北京 - 北京 来源:中冶有色网 2023-03-19
基于多层特征选择的固废焚烧过程二噁英排放浓度软测量方法

基于多层特征选择的固废焚烧过程二噁英排放浓度软测量方法属于软测量领域。本文提出基于多层特征选择的MSWI过程DXN排放浓度软测量方法。首先,从单特征与DXN相关性视角,结合相关系数和互信息构建综合评价值指标,实现MSWI多个子系统过程变量的第1层特征选择;接着,从多特征冗余性和特征选择鲁棒性视角,多次运行基于GA‑PLS的特征选择算法,实现第2层特征选择;最后,结合上层选择特征的统计频次、模型预测性能及机理知识进行第3层特征选择,构建得到DXN排放浓度软测量模型。结合某焚烧厂的多年DXN检测数据验证了所提方法的有效性。

标签:
固废
北京 - 北京 来源:中冶有色网 2023-03-19
建筑固废混合水泥土筛分输送机

本实用新型公开了建筑固废混合水泥土筛分输送机,涉及筛分输送设备领域。包括机架,在所述机架上倾斜设置有输送机,输送机包括输送带,输送带由输送电机带动转动,在输送带的倾斜高端的下方设有落料导料机构;在输送机的上方倾斜设置有筛分机,筛分机包括滚筒筛,在滚筒筛的内部设有主轴,主轴转动连接筛分电机并带动滚筒筛转动,在滚筒筛的倾斜高端设有入料口,在滚筒筛的倾斜低端设有出料口。本实用新型将筛分机与输送机结合在一起,在筛分物料的同时还能输送物料,相比单独的筛分机或输送机来说占地面积小,工作效率高,并在输送机上增加了落料导料机构,使得输送机的落料位置能够调节,从而更好的适应现场施工环境。

标签:
固废
北京 - 北京 来源:中冶有色网 2023-03-19
城市固废焚烧过程极端异常火焰图像对抗生成方法

城市固废焚烧过程极端异常火焰图像对抗生成方法属于图像控制领域。工作如下:1)首次基于焚烧炉内三维空间的物理位置和成像原理等机理知识对炉膛内的理论燃烧位置进行精准标定,进而获取极端异常燃烧状态下的伪标记样本集;2)首次将循环一致对抗网络引入MSWI过程极端异常火焰样本生成的研究工作中,实现候选缺失样本的生成;3)首次提出一种两级样本评估与选择方法。所提算法能够实现极端异常火焰图像的生成,获取的样本具有较好的主观视觉效果。本方法能够有效解决MSWI过程火焰图像缺失问题,为实现MSWI过程燃烧线量化和基于图像控制提供了有力支撑。

标签:
固废
北京 - 北京 来源:中冶有色网 2023-03-19
建筑固废混合水泥土现场搅拌系统及制备方法

本发明公开了一种建筑固废混合水泥土现场搅拌系统及制备方法,包括输送机和筛分机,筛分机分离后的物料落在输送机的物料输送带上,在输送机的出料端设有落料导料机构,物料输送带上的物料从落料导料机构的出料口落下;落料导料机构的出料口下方设有称重控速输送装置,物料从称重控速输送装置的出料口进入搅拌机,搅拌机包括一卧式搅拌机和一立式搅拌机,卧式搅拌机的出料口与立式搅拌机的进料口联通,卧式搅拌机的入料口与称重控速输送装置的落料口和固化剂搅拌机的出料口联通,搅拌好的物料从立式搅拌机的出料口输出。本发明易拆解、易安装,对施工场地条件要求低,能适应较复杂的地形环境,同时也降低了物料的运输成本。

标签:
固废
北京 - 北京 来源:中冶有色网 2023-03-19
有机固废零添加辅料好氧发酵集成系统

本发明公开了一种有机固废零添加辅料好氧发酵集成系统,全部工艺过程在一座建筑内完成,分为设备间和发酵车间。所述系统包含接料混料装置、布料翻抛装置、发酵槽、曝气装置、出料装置和废气净化装置。所述工艺过程不添加任何辅料;所述发酵车间采用反吊膜结构,所述布料翻抛装置由一台转轮式翻抛机和一台螺旋布料机组合而成;所述发酵槽末端兼做腐熟料料仓,利用槽底往复式出料机出料;所述废气净化塔采用化工标准规整填料或散堆填料,净化塔内储存有较大量的循环液,按需补充营养液,使循环液所含微生物量大,活性高。本发明具有工艺简单,投资和运行成本低,在寒冷地区可正常启动和运行,发酵效果好,自动运行,无人管理,废气净化效果好等优点。

标签:
固废
北京 - 北京 来源:中冶有色网 2023-03-19
垃圾焚烧飞灰全固废固化稳定化材料及其固化方法

本发明提供一种垃圾焚烧飞灰全固废固化稳定化材料及其固化方法,属于工业废弃物资源化及危险废弃物治理环保技术领域。该材料按照质量百分比计包括矿渣15%~40%,钢渣20%~45%,脱硫灰5%~15%,磷酸钙渣15%~40%,原料均来自于工业废渣,脱硫灰和磷酸钙渣属于难处理废渣,综合利用率低。该固化稳定化材料可由胶凝体系的水化产物及磷酸钙渣中磷酸盐来固化稳定化飞灰中重金属,固化体强度高,且重金属毒性溶出远低于国家环保规定排放阈值,达到以废治废,实现了垃圾焚烧飞灰的无害化处理和工业废渣的资源化利用。

标签:
固废
北京 - 北京 来源:中冶有色网 2023-03-19
以塑料垃圾混合固废颗粒制作地砖的生产系统

本实用新型公开了一种以塑料垃圾混合固废颗粒制作地砖的生产系统,包括物料储仓、物料传送带、物料配比装置、预升温配料卧式搅拌罐、升温输送机、高速加温混合机、保温储料罐、称重上料仓、自动填料器、液压机和出砖装置;进料口通过物料传送带传送到物料配比装置,物料配比装置通过第一传送带连接至预升温配料卧式搅拌罐,预升温配料卧式搅拌罐底端出料口连接至升温输送机,升温输送机出口通过输送机连接至高速加温混合机,模具盘上设置有地砖模槽,填料腔室内混合后的物料填满模具盘上的地砖模槽,地砖模槽在模具往复定位装置的带动下进入到液压机。本实用新型是制作地砖的自动化生产线,在解决城市垃圾痼疾的同时,还有很好的产能。

标签:
固废
北京 - 北京 来源:中冶有色网 2023-03-19
钢铁固废中的除尘灰生成冷固球团工艺

本发明公开了一种钢铁固废中的除尘灰生成冷固球团工艺,第一步是先将含铁除尘灰原料收集到原料仓内储存,并在原料仓底部出口设置卸灰阀和螺旋杆,以方便下道工序按重量比配料;第二步是将上述原料用除尘输送器输送到混合机内,同时向混合机内加入原料重量7-10%常温水进行混合;第三步是将混合均匀的混合料送入消化仓内润湿12-24小时;第四步是将消化湿润的混合料输送到混碾机内,并逐渐向混碾机内注入混合料重量5-3%的有机糊状粘结剂,搅拌均匀;第五步是将含有粘结剂并混合均匀的混合料逐个输送到压球机,按大小要求挤压成球状,最后经热风机快速干燥后收装备用。本发明不仅能够减少除尘灰对环境的污染,而且能够优化钢企原料结构,节能降耗。

标签:
固废
北京 - 北京 来源:中冶有色网 2023-03-19
工业固废填埋场雨污分流工程中的排洪系统及其密封方法

本发明公开了一种工业固废填埋场雨污分流工程中的排洪系统及其密封方法。所述排洪系统包括:废渣堆体、排洪竖井、防渗膜、排泄管道和水池。排洪竖井竖立在废渣堆体中,防渗膜铺设在排洪竖井外壁和废渣堆体表面,排洪竖井通过排泄管道与水池连接,排洪竖井的井壁上设置泄水孔。本发明公开的密封方法将排洪竖井自废渣堆体接触面到顶部内壁均采用高密度聚乙烯膜进行密封,不仅解决了积水高度超过密封高度后雨水通过密封缝隙进入堆体造成渗沥液增加的问题,还解决了雨水通过泄水孔与高密度聚乙烯膜缝隙进入堆体造成渗沥液增加的问题。所述密封方法采用柔性材料进行密封,相较于传统密封技术,抵抗不均匀沉降的性能更优异。

标签:
固废
北京 - 北京 来源:中冶有色网 2023-03-19
有机污染土壤或固废序批式热脱附处理的修复装置

本发明公开了一种有机污染土壤或固废序批式热脱附处理的修复装置,包括底座,底座从前到后依次设有加热舱、第一液压油缸、L型臂和第二液压油缸,加热舱前侧与底座铰接,后侧与第一液压油缸驱动连接,内设搅拌装置;第一液压油缸前倾设置在底座上;L型臂的竖直臂铰接在底座上,其竖直臂与底座之间设有第二液压油缸,其水平臂向前延伸至加热舱上方,内设抽提管道,前端下侧设有与加热舱密封配合的密封盖,密封盖内含抽提布气层,抽提布气层将有害气体、粉尘收集并输送到尾气端进行无害化处理;底座上还设有分别与各单元电连接的控制机箱。本发明自动化程度高,采用序批式加热方式,通过对加热温度和时间的优化配置,实现修复效果与经济的双赢。

标签:
固废
北京 - 北京 来源:中冶有色网 2023-03-19
脱硫废水中固废减量化与石膏脱氯联合处理装置

本发明公开了一种脱硫废水中固废减量化与石膏脱氯联合处理装置,包括:第一真空皮带脱水装置、第二真空皮带脱水装置、石膏清洗箱与工艺水进水管,其特征在于:第一真空皮带脱水装置包括有一级真空皮带脱水机、脱硫废水集水罐、脱硫废水输送管与废水收集管,在一级皮带脱水机上安装有第一石膏输送皮带,在一级真空皮带脱水机的上部开设有一级真空皮带脱水机真空槽,在一级真空皮带脱水机的上端设置有石膏浆液进入管,石膏浆液进入管的出口端位于一级真空皮带脱水机真空槽的上方。本发明可将滤除石膏的滤液作为脱硫废水的源水,从而去除水中的悬浮物,减少了环境污染与污泥的处理成本,同时将去除的悬浮物转化为石膏,增加了产出及效益。

标签:
固废
北京 - 北京 来源:中冶有色网 2023-03-19
具有废气净化的畜禽养殖固废处理装置

本实用新型公开了一种具有废气净化的畜禽养殖固废处理装置,包括机体,所述机体内部由上到下均匀的设有若干托盘,所述机体内部底端设有加热丝,所述机体顶端设有顶罩,所述顶罩和机体通过螺栓连接在一起,所述顶罩内部设有过滤箱,所述过滤箱和顶罩插接在一起,所述顶罩顶部安装有风机,本实用新型解决现有的粪便烘干设备都是一些大型的设备,不便于普通小型养殖户使用,且现有的粪便烘干机使用不方便对设备产生的废气进行净化,从而导致废气污染空气的问题,通过对小型烘干设备的结构进行改良和优化,使得小型烘干设备能够适用于对粪便的烘干,且这种烘干设备带有废气净化装置。

标签:
固废
北京 - 北京 来源:中冶有色网 2023-03-19
有机固废超高效资源化装置

本申请公开了有机固废超高效资源化装置,包括放置箱、处理结构和预处理结构,所述放置箱顶端固定有进料口;所述处理结构包括搅拌轴和放置管,所述放置箱内部通过轴承连接有搅拌轴,且搅拌轴上均等固定有搅拌桨叶,所述搅拌桨叶一端与减速机固定。通过搅拌桨叶对破碎的废料进行搅拌,同时进行加热,加快废料发酵速度,再通过排气风机将放置箱内部气体抽出,同时通过第一过滤层、第二过滤层和第三过滤层对废气进行过滤处理,从而使得废料处理更加全面,且避免异味影响人们生活,通过破碎辊对进入放置箱内部的垃圾废料进行破损,避免较大的垃圾在放置箱内部影响搅拌,同时破碎后的垃圾废料在加热时更加均匀,从而进一步加快了发酵速度。

标签:
固废
北京 - 北京 来源:中冶有色网 2023-03-19
用于含汞固废及土壤处理的间接热解吸修复系统及方法

本发明提供了一种用于含汞固废及土壤处理的间接热解吸修复系统及方法。系统包括进料单元、热解吸单元、高温除尘单元、尾气处理单元、工艺水处理单元和出料单元;所述热解吸单元分别连接进料单元、高温除尘单元和出料单元,高温除尘单元连接尾气处理单元和出料单元,工艺水处理单元连接尾气处理单元。该系统处理能力大、汞及其化合物去除率高、便于运输和安装,并且此系统可灵活控制含汞物料热解吸温度及停留时间,充分利用系统余热及处理后达标水,高效经济的修复汞污染物料,同时最大限度的回收汞单质,实现废水达标回用、尾气达标排放的目的。

标签:
固废
北京 - 北京 来源:中冶有色网 2023-03-19
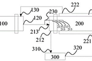
用于含汞固废及土壤处理的间接热解吸尾气处理系统

一种用于含汞固废及土壤处理的间接热解吸尾气处理系统,属于热解吸尾气处理系统技术领域。热解吸设备的热解气出口端与热过滤器的热解气入口端相连通,热过滤器的热解气出口端与急冷洗涤塔的热解气入口端相连通,急冷洗涤塔的气体出口连接文丘里洗涤器进口,文丘里洗涤器的出口连接填料洗涤塔进口,填料洗涤塔及制冷机组与冷凝盘管连接,冷凝盘管末端连接除雾器,除雾器的出口与载硫活性炭吸附罐的入口相连通,载硫活性炭吸附罐的出口与引风机的进风口相连通,引风机的出风口与烟囱相连通,急冷洗涤塔、填料洗涤塔和冷凝盘管的出水口均与工艺水处理单元的进水口相连通,工艺水处理单元的出水口均与急冷洗涤塔和填料洗涤塔内部的喷淋装置相连通。

标签:
固废
北京 - 北京 来源:中冶有色网 2023-03-19
上一页 198 199 200 201 202 ... 226 下一页
共226页    到第

中冶有色为您提供最新的北京北京有色金属固/危废处置技术理论与应用信息,涵盖发明专利、权利要求、说明书、技术领域、背景技术、实用新型内容及具体实施方式等有色技术内容。打造最具专业性的有色金属技术理论与应用平台!

全国热门有色金属设备推荐
展开更多 +
全国热门有色金属技术推荐
展开更多 +

 

江西省隆恩特环保设备有限公司
宣传

报名参会
更多+

报告下载

有色专家
更多+

中国矿业大学(北京)
院长/教授
长沙矿冶研究院
总经理
江西省科学院应用化学研究所
副主任/副研究员
矿冶科技集团
中国工程院院士
北京科技大学
副院长/教授
赤泥综合利用研究报告2025
推广

热门技术
更多+

推荐企业
更多+

福建省金龙稀土股份有限公司
宣传

发布

在线客服

公众号

电话

顶部
咨询电话:
010-88793500-807