青岛垚鑫智能科技有限公司
宣传

位置:中冶有色 >

有色技术频道 >

> 固/危废处置技术

分类:
全部
矿山技术
冶金技术
材料制备及加工技术
环境保护技术
分析检测技术
 
全部
废水处理技术
大气治理技术
固/危废处置技术
土壤修复技术
地区:
全部
北京
天津
上海
重庆
河北
山西
辽宁
吉林
黑龙江
江苏
浙江
安徽
福建
江西
山东
河南
湖北
湖南
广东
海南
四川
贵州
云南
陕西
甘肃
青海
内蒙
广西
西藏
宁夏
新疆
其他
其他
展开
 
全部
广州
韶关
深圳
珠海
汕头
佛山
江门
湛江
茂名
肇庆
惠州
梅州
汕尾
河源
阳江
清远
东莞
中山
潮州
揭阳
云浮

广东深圳有色金属固/危废处置技术理论与应用

免费发布技术信息>>
固废处理用泥石分离机

本申请涉及一种固废处理用泥石分离机,涉及泥石筛分机些领域,其包括两块相对设置的侧档板,两所述侧挡板之间转动连接有多个筛分轴,所述筛分轴的外壁设置有筛分叶片,所述筛分轴通过外部电机驱动转动,还包括滑动连接于侧板上的支撑架,所述支撑架上设置有清洁组件,所述侧挡板上设置有用于驱动支撑架沿靠近或远离筛分轴方向滑动的第一驱动组件。本申请具有快随有效清洁筛分轴表面粘结的泥土的效果。

标签:
固废
广东 - 深圳 来源:中冶有色网 2023-03-19
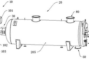
用于处理动物固废的反应釜

本发明公开了一种用于处理动物固废的反应釜,包括旋转搅拌装置和动力传动装置,旋转搅拌装置包括壳体,转动主轴,盘管,设置在转动主轴周壁的搅拌轴;搅拌轴的端部设有搅拌齿,相邻搅拌轴相互错开,盘管缠绕在转动主轴外且连接相邻搅拌轴,转动主轴,盘管和搅拌轴相互连通,转动主轴的一端与动力传动装置固定连接,另一端连接有高温蒸汽进入的转接头。采用本发明的旋转搅拌装置,使得物料的受热面积增大,物料反应时间缩短,提高了物料干化效果好和生产效率;运行时转动主轴与减速机同心,延长转动主轴使用寿命;进气管为间断式吹气或持续吹气,气体可以在非标法兰内部形成气旋,可以防止物料在出料口的堆积,减少了设备检修次数。

标签:
固废
广东 - 深圳 来源:中冶有色网 2023-03-19
含油污泥协同工业固废制备陶粒的方法

本发明公开了一种含油污泥协同工业固废制备陶粒的方法,包括如下步骤:焚烧飞灰水洗脱盐、脱油洗涤液的制备、脱油污泥的制备、混合生料的制备、生料球制备、生料球高温焙烧、生料球降温冷却、得到陶粒产品;本发明技术方案实现含油污泥的无害化及资源化利用。

标签:
固废
广东 - 深圳 来源:中冶有色网 2023-03-19
固废回收利用的自密实混凝土及其制备方法

本发明公开一种固废回收利用的自密实混凝土及其制备方法,属于建筑材料技术领域;其原料包括胶凝材料18‑28wt%、再生粗骨料20‑32wt%、再生细骨料24‑30wt%、钢渣5‑10wt%、改性凹凸棒土6‑12wt%、植物纤维2.5‑5wt%、减水剂1‑1.5wt%;改性凹凸棒土是将凹凸棒土用无机酸液浸泡,然后再用氢氧化钠、硅酸钠溶液,浸泡、负载和吸附,干燥后粉磨制成;再生粗骨料和再生细骨料均由建筑垃圾制备而成。本发明通过对普通凹凸棒土进行了改性处理,进一步激活并调控发再生粗骨料、再生细骨料、钢渣的活性,控制了混凝土早期和中后期的水化反应进程;同时还能与植物纤维等有效控制混凝土浆料的流动性,保证混凝土的良好自密实效果。

标签:
固废
广东 - 深圳 来源:中冶有色网 2023-03-19
系统解决工业固废的集成式碳化裂解装置

本发明涉及机械技术领域,具体为一种系统解决工业固废的集成式碳化裂解装置,包括底板,底板上设有两个相互对称且沿着底板长度方向设置的第一滑槽,底板的一端部上表面还设有加热炉,加热炉的底壁上正对第一滑槽的位置设有第二滑槽,加热炉上还设有隔温门,底板上还设有储料箱,底板上还设有送料装置,送料装置包括设置在底板上的液压缸。本发明便于输送原料以及将碳化裂解完成的材料取出,且操作简单快捷,省时省力,便于推广使用。

标签:
固废
广东 - 深圳 来源:中冶有色网 2023-03-19
固废处理用颚式破碎机

本申请涉及一种固废处理用颚式破碎机,属于破碎设备领域,其包括机体,机体上设置有动鄂板与静颚板,所述机体包括两个竖直且平行的固定板,所述动鄂板与静颚板位于两固定板之间,两所述固定板之间设置有机架;所述静颚板远离动鄂板的一侧垂直设置有导杆,所述导杆贯穿并滑动于所述机架;所述机架上设置有推动件,所述推动件用于驱使静颚板沿导杆移动。通过推动件推动静颚板,静颚板沿导杆的长度方向移动,静颚板靠近或远离动鄂板。本申请具有提高破碎效果的优点。

标签:
固废
广东 - 深圳 来源:中冶有色网 2023-03-19
提升固废六价铬检测回收率的前处理优化方法

本发明涉及一种提升固废六价铬检测回收率的前处理优化方法,属于六价铬检测的技术领域,其包括以下步骤:S1:溶液配制:采集样品,于样品中加入碳酸钠/氢氧化钠混合溶液,加入氯化镁和磷酸氢二钾‑磷酸二氢钾缓冲溶液,得到样品溶液;S2:消解:用氯乙烯膜将样品溶液封口,常温下搅拌5min后,再于90℃‑95℃下消解60min;S3:洗涤:将消解后的样品溶液冷却至室温,再用0.45μm的滤膜抽滤,并用50℃‑80℃的热水分批次,少量多次进行洗涤,收集滤液于烧杯中;S4:浓缩滤液:将滤液在80℃‑95℃下蒸发浓缩至70‑75mL,并将pH值调节至8.8‑9.2左右,用去离子水定容至100mL,摇匀后通过火焰原子吸收分光光度法进行检测。本发明可提高六价铬的回收率。

标签:
固废
广东 - 深圳 来源:中冶有色网 2023-03-19
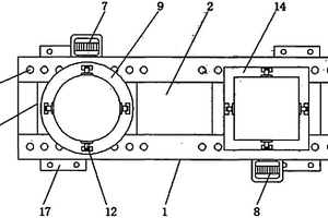
应用于动物固废反应釜的密封装置

本实用新型公开一种应用于动物固废反应釜的密封装置,其包括有:一壳体,所述壳体内形成有一容置腔,且其上间隔安装有多个加强筋;一填料仓,所述填料仓上设有一安装板,所述安装板设有一第一圆孔,其通过加强筋与壳体连接,该安装板及壳体之间形成有一容置空间,且所述安装板上开设有两第二通孔;一压料装置,包括有一压料体及两带外螺纹的紧定杆,所述压料体包括有一顶板及自该顶板中部向下延伸出来的筒体,所述筒体穿过第一圆孔而穿设于填料仓内,顶板位于容置空间内,且其两端分别设有一带内螺纹的第一螺孔,每个所述紧定杆的一端穿过一第一螺孔而穿设于第二通孔内,且紧定杆上的外螺纹与第一螺孔中的内螺纹配合以带动压料体沿轴向运动。

标签:
固废
广东 - 深圳 来源:中冶有色网 2023-03-19
固废热解处理净化装置

本发明公开了一种固废热解处理净化装置,包括支撑平台、筛分箱、操作面板、热解箱,支撑平台为四边矩形结构且顶端中部安装有筛分箱,筛分箱正端面顶部安装有内嵌式操作面板,所述操作面板下方安装有拉伸式回收抽屉,筛分箱右端面顶部开有矩形结构的散热窗口,散热窗口下方安装有输料管,筛分箱顶端中部开有进料口且内侧安装有料斗,筛分箱通过输料管与右端的热解箱连接,热解箱右端面顶部开有进风口且下方安装有进水管,热解箱顶端中部安装有排气管且外侧开有对流窗,热解箱正端面底部开有除灰口且顶部安装有能够水平移动的滤芯。本发明通过合理化的设计有效地提高了筛分以及热分解的一体化且通过多重净化过滤有效地降低热解后废气排放污染物的含量。

标签:
固废
广东 - 深圳 来源:中冶有色网 2023-03-19
利用固废改性钢渣的方法

一种利用固废改性钢渣的方法,旨在克服现有技术中硅酸盐矿物作为改性材料来改性钢渣时,反应所需温度必须在1350℃以上的缺点。该改性方法包括以下步骤:一、将粉煤灰与粉碎后的废玻璃以质量比为(1:1)~(1:2)混匀,得到混合改性剂;二、将混合改性剂与1400℃~1700℃的液态钢渣混合均匀,液态钢渣和混合改性剂的质量比为(7:3)~(9:1),得到钢渣改性剂均混物;三、将钢渣改性剂均混物在1000℃~1200℃下保温反应15‑20分钟,分离出含铁矿物后得到改性钢渣。本发明方法中,粉煤灰用于还原钢渣中的铁,废玻璃用于处理钢渣中的自由氧化钙,且废玻璃在600℃~800℃就能融化,降低了钢渣改性的温度。

标签:
固废
广东 - 深圳 来源:中冶有色网 2023-03-19
工业钢渣固废回收再利用处理系统及处理方法

本发明涉及一种工业钢渣固废回收再利用处理系统及处理方法,该系统包括左右对称设置的匚型底座和设置在方槽上方的粗筛装置,匚型底座的上方设置有细筛装置;本发明设计的翻动板可对待加工钢渣中的木材进行一级筛分,两组翻动板的外端在连接弹簧的弹性力作用下向下转动并逐渐合拢,使得翻动板上方的木材沿着翻动板的侧壁向下滑落至收集槽中进行收集,以此可自动对筛分后的木材进行清理,提高了翻动板表面的整洁度,防止木材体积较大,浪费落料空间,通过筛分板与调节板的滑动配合可针对木材不规则的下落方式进行二级筛分,还可调节筛分孔的孔洞大小,从而对粗细不同的木材进行调节。

标签:
固废
广东 - 深圳 来源:中冶有色网 2023-03-19
工业固废协同处置与资源化利用工业废盐的方法

本发明公开了一种工业固废协同处置与资源化利用工业废盐的方法,包括如下步骤:工业废盐热解预处理、硫酸钠化工艺、硫化钠合成工艺、硫化钠精制,本发明技术方案解决了现有工业废盐资源化产品氯化钠附加值低、产品应用出路、消除因资源化产品氯化钠违法应用于食品行业存在的安全风险等问题。

标签:
固废
广东 - 深圳 来源:中冶有色网 2023-03-19
固废处理用给料筛
固废处理用给料筛 979     
 0

本申请涉及一种固废处理用给料筛,属于振动给料的领域,其包括筛身和料仓,所述筛身上设置有筛板和振动机构,所述筛身上设置用于与料仓的出料口连接的接料座,所述接料座内设置有过料槽,所述接料座靠近料仓一端的端面设置有挡料圈,所述料仓的出料口设置有排料管,所述排料管远离料仓一端的端面上开设有与挡料圈配合的挡料槽,所述挡料圈滑动插接在挡料槽内,所述挡料圈的内壁与排料管之间形成第一间隙,所述挡料圈的外壁与排料管之间形成第二间隙,所述接料座上设置有密封套,所述密封套环绕挡料圈。本申请具有降低工作过程中物料从给料筛与料仓之间的连接处漏出的风险的效果。

标签:
固废
广东 - 深圳 来源:中冶有色网 2023-03-19
道路固废剥离结构
道路固废剥离结构 760     
 0

本实用新型涉及沥青再生的技术领域,公开了道路固废剥离结构,包括粉碎结构以及筛选结构,粉碎结构包括粉碎箱;筛选结构包括筛选箱、抖料结构、加热结构以及冷却结构,抖料结构、加热结构以及冷却结构位于筛选箱中,沥青废料被粉碎后经过抖料结构后,加热结构驱使沥青废料从细碎沙石上脱落,冷却结构冷却掉落的沥青废料,传输进分选结构中;通过设置粉碎结构以及筛选结构,粉碎结构粉碎沥青废料,而后沥青废料从管道送至筛选结构中,而筛选结构包括筛选箱以及抖料结构,其中抖料结构位于筛选箱中,且抖料结构与加热结构连接,这样,加热结构帮助抖料结构将沥青废料和细碎砂石分开,十分方便。

标签:
固废
广东 - 深圳 来源:中冶有色网 2023-03-19
水污染防治用固废干湿分离设备

本实用新型公开了一种水污染防治用固废干湿分离设备,涉及干湿分离技术领域,包括水桶和过滤桶,过滤桶间隙配合放入水桶内,过滤桶的侧壁上成型有多个均匀布置的溢水孔,过滤桶的高度小于水桶的高度,水桶的内侧成型有螺旋布置的导流通道,水桶下端的侧边设置有出水口,导流通道的下端和出水口之间连接有竖向设置的通道,过滤桶下侧的中部固定安装有振动电机;有益效果是:将杂质倒入过滤桶,杂质上的循环水会从过滤桶侧边的溢水孔处溢出,循环水在水桶的内壁落下,循环水进入到导流通道内,再通过出水口流出,振动电机工作时会让杂质在过滤桶内振动,让杂质上的循环水快速流出溢水孔,导流通道的设置给振动电机提供干燥的运行环境。

标签:
固废
广东 - 深圳 来源:中冶有色网 2023-03-19
动物固废用螺旋输送机
动物固废用螺旋输送机 1043     
 0

本实用新型公开了一种动物固废用螺旋输送机,设备内部及上部都设有强磁铁装置,能够有效去除物料中的金属杂质。设备只需定期处理便可有效去除物料中的金属杂质。本实用新型包含输送设备外壳,输送设备外壳内部安装有螺旋轴,螺旋轴上安装螺旋叶片;所述输送设备外壳的一端安装用于驱动螺旋轴转动的驱动电机,输送设备外壳远离驱动电机的一端的顶部开设有进料口,输送设备外壳靠近驱动电机的一端的底部开设有出料口;所述输送设备外壳的顶部且位于出料口和进料口之间的位置至少设置一个快开强磁铁安装口,快开强磁铁安装口上固定安装有快开强磁铁组件;所述螺旋叶片上安装有叶片强磁铁。

标签:
固废
广东 - 深圳 来源:中冶有色网 2023-03-19
环保固废处理系统分离装置

本实用新型公开了固废分离技术领域的一种环保固废处理系统分离装置,包括粉碎机,所述粉碎机的一侧设置有第一传送带、第二传送带与第三传送带,且第二传送带位于第一传送带与第三传送带之间,所述第一传送带的下方设置有第一回收桶,所述第三传送带的下方设置有第二回收桶,所述第三传送带的下端一侧位置设置有送料机构,且送料机构的一侧外表面设置有分离筒,所述分离筒的下端外表面设置有第三回收桶,所述第三回收桶的一侧设置有鼓风机,能够避免颗粒在分离筒的作用下再次扬起,使颗粒具有一定的稳定性,避免粉碎不合格带来的分离不够彻底问题,能够保证分离的工作质量,同时也不会影响分离的效率。

标签:
固废
广东 - 深圳 来源:中冶有色网 2023-03-19
固废高温焚烧炉
固废高温焚烧炉 1171     
 0

本实用新型公开了一种固废高温焚烧炉,其特征在于:包括垃圾粉碎装置、干燥炉主体、第一焚烧炉主体和第二焚烧炉主体,所述干燥炉主体下端与第一焚烧炉主体上端面相连,两者之间相通,所述第一焚烧炉主体右侧面与第二焚烧炉主体左侧面下端相连,两者之间相通,所述干燥炉主体左侧面上端设有一垃圾进口,所述第二焚烧炉主体右侧面中间设有一垃圾出口,该垃圾出口通过密封块密封。本实用新型结构简单,使用方便,经济成本低,适用范围广,能有效的加强焚烧的温度,使其固废物能快速安全的焚烧,大大的增加了焚烧效率。

标签:
固废
广东 - 深圳 来源:中冶有色网 2023-03-19
固废焚烧尾气净化方法

本发明公开了一种固废焚烧尾气净化方法,其包括以下步骤:1)将固废焚烧尾气引入急冷回流塔中,迅速降低焚烧尾气温度;2)急冷后的焚烧尾气进入多效过滤一体化装置,尾气中的酸性物质与脱酸剂酸碱中和反应,尾气中的NOX在催化剂的作用下与脱硝剂反应生成氮气,尾气中的二恶英在催化剂作用下发生分解反应,尾气中的颗粒物被滤芯过滤;3)步骤2)处理后的焚烧尾气进入换热器,降低焚烧尾气的温度;4)从步骤3)换热器流出的焚烧尾气进入过程强化传质设备与碱液发生酸碱中和反应,并向过程强化传质设备中通入氧化剂将NO氧化成高价态的N2O5,再利用碱液进一步吸收;以及5)净化后的焚烧尾气在引风机的作用下经过烟囱排出。

标签:
固废
广东 - 深圳 来源:中冶有色网 2023-03-19
含油固废石墨烯加热膜处理装置

本实用新型公开了一种含油固废石墨烯加热膜处理装置,包括安装架、冷凝器、U形管、固定套、安装块、插板、出气口、进气口、第一连接柱、第二连接柱、第三连接柱、安装孔、圆形孔、螺杆、出液口、承接箱和底板,所述安装架上插接有多个安装块,且所述安装块与冷凝器侧面固定连接,所述冷凝器上插接有插板,且所述插板与安装架一侧通过螺栓固定连接,两个相邻所述冷凝器之间通过U形管连接,且所述U形管上套设有两个固定套,该含油固废石墨烯加热膜处理装置,方便对冷凝器进行拆卸安装,易于对冷凝器进行清洗,保证冷凝器内的清洁,还可以对固定冷凝器的支架进行高度的调节,可以根据不同的场地进行高度的选择。

标签:
固废
广东 - 深圳 来源:中冶有色网 2023-03-19
用于含氟固废物提纯石英的阻溶方法

本申请涉及含氟固废物提纯石英的技术领域,具体公开了一种用于含氟固废物提纯石英的阻溶方法,包括以下处理步骤:将矿物与酸浸出液在温度为10‑90℃进行酸浸出工序,酸浸出时间为10‑80min,矿物与酸浸出液的固液比为1kg:(1‑3)L;酸浸出液由强酸溶液和阻溶剂组成,所述强酸将矿物中含氟物质与含钙物质溶出但不溶出二氧化硅,所述阻溶剂与氟的配位能力大于氟与硅的配位能力。将矿物与酸浸出液在特定条件下反应,以使得含氟物质与含钙物质溶出但不溶出二氧化硅,阻溶剂与氟的配位能力大于氟与硅的配位能力,生成的氢氟酸优先与阻溶剂反应,以打断氢氟酸溶出硅的连续化学反应,起到阻溶的作用。

标签:
固废
广东 - 深圳 来源:中冶有色网 2023-03-19
有机固废垃圾的无害化处理装置

本发明公开了一种有机固废垃圾的无害化处理装置,包括壳体、粉碎装置、脱水装置、压块装置、净化装置、控制装置、电源;壳体包括粉碎腔、脱水腔、挤压腔、净化腔,壳体上端设置有进料斗,壳体底部设置有底座;粉碎装置包括粉碎刀和粉碎电机;脱水装置包括旋转筒和旋转电机;压块装置包括气缸、连接架、挤压板;控制装置包括控制器、处理器、遥控器;控制器与粉碎电机、旋转电机连接,遥控器、处理器与控制器连接;电源装置为粉碎电机、旋转电机提供电源;本发明能够对有机固废垃圾进行无害化处理,不会产生二次污染,适宜大量推广。

标签:
固废
广东 - 深圳 来源:中冶有色网 2023-03-19
应用于固废焚烧处理专用烟气超滤净化的设备

本发明公开了一种应用于固废焚烧处理专用烟气超滤净化的设备,包括设备壳体以及安装在设备壳体顶面的顶盖,壳体一侧安装有把手,在另一侧安装有拆卸板,顶盖的顶面安装有排气管,圆盘盖的顶面中间纵向贯穿连接有密封套管,密封套管密封置于排气管的下部内腔中,柱筒支架上部设有多级过滤网栅组件,其多级过滤网栅组件下方且位于柱筒支架下部设有用于驱动气体与多级过滤网栅组件接触的多组气体螺旋施力叶片轮,在排气管中内设有异味吸附过滤筒。该应用于固废焚烧处理专用烟气超滤净化的设备,不仅可以对气体进行多级过滤净化,同时可以增加气体与多级过滤网栅组件的接触面积,从而提高其净化效率。

标签:
固废
广东 - 深圳 来源:中冶有色网 2023-03-19
固废处理用易拉罐等体积减容压实机

本发明涉及固废处理技术领域,尤其涉及一种固废处理用易拉罐等体积减容压实机,包括有冲压支撑板、导向框架、支板、限位开合组件、顶部压实组件、推动组件等;冲压支撑板上设有导向框架,导向框架顶部设有支板,冲压支撑板上设有限位开合组件,支板上设有推动组件。通过顶部压实组件的导向架、连接活动杆和下压块及其上装置的配合,对易拉罐的顶面进行压实,通过左右侧压实组件的旋转轴、旋转齿轮和驱动齿条及其上装置的配合,对易拉罐的左右两侧压实,通过前后侧压实组件的压实板、第四压缩弹簧和斜槽导向板三者的配合,对易拉罐的前后两侧压实,实现了对易拉罐的六个面进行压实的目的,达到最大限度的对易拉罐压实进行减容的效果。

标签:
固废
广东 - 深圳 来源:中冶有色网 2023-03-19
稀金固废回收设备
稀金固废回收设备 1362     
 0

本申请涉及金属回收技术领域,尤其是一种稀金固废回收设备,其包括机体,机体上设置有热熔组件和收集组件,热熔组件包括熔炉和温控系统,机体包括工作台,熔炉架设于工作台的上表面,温控系统安装于机体上,温控系统用于调节熔炉的作业温度,收集组件位于工作台的下方,收集组件用于回收熔炉产出的金属溶液;本申请能够提供一种用于回收稀金固废的设备。

标签:
固废
广东 - 深圳 来源:中冶有色网 2023-03-19
固废焚烧尾气处理装置固定机构

本实用新型公开了一种固废焚烧尾气处理装置固定机构,包括机架、卡块、第一电机和第二安装座,所述机架的内部安装有第一安装座,所述第一安装座相邻的机架内部安装有第二安装座,所述机架的内部开设有活动槽,所述活动槽的内壁设置有内齿条,所述齿轮的外侧与内齿条相连接,所述第一电机贯穿于活动口与齿轮相连接,所述第一安装座的内部连接有焚烧炉体,所述固定座的内部连接有连接架,所述固定板与焚烧炉体的外侧表面相连接。该固废焚烧尾气处理装置固定机构设置有第一电机和第二电机,通过第一电机和第二电机分别带动与其相连接的齿轮转动,从而带动与齿轮相连接的卡块在活动槽内移动,便于对焚烧炉体进行二次调节,满足生产环境的具体需要。

标签:
固废
广东 - 深圳 来源:中冶有色网 2023-03-19
固废垃圾分选机
固废垃圾分选机 773     
 0

本实用新型公开了一种固废垃圾分选机,包括外壳和转筒,所述外壳上端设有一进料口,所述外壳左侧面上端设有一轻型材料出料口,所述外壳左侧面下端设有一金属材料出料口,所述外壳右侧面上端设有一出气口,所述外壳右侧面下端设有一废弃物出料口,所述外壳内上端固定安装一垃圾粉碎机,所述转筒设置于垃圾粉碎机下端,所述外壳下端面固定安装一电机,该电机的转轴与转筒的下端面固定连接。本实用新型结构简单,使用方便,经济成本低,适用范围广,能快速的分离出固废物中的金属物质、轻型物质、有害物质和废弃物质,大大增加了分类的速度。

标签:
固废
广东 - 深圳 来源:中冶有色网 2023-03-19
有机固废处理用尾气处理装置

本实用新型属于固废处理技术领域,具体涉及一种有机固废处理用尾气处理装置,包括喷淋塔,位于所述喷淋塔中部竖向设置有中空的转轴,所述喷淋塔底部设置有储液箱,所述转轴的底端经第一旋转接头连接在所述储液箱的顶板上,所述储液箱连接有用于供液的导液管,所述导液管的另一端为封闭设置且贯穿喷淋塔的塔壁延伸至转轴中空腔内,所述转轴上沿其径向设置有若干喷淋管,若干所述喷淋管均匀布置在所述转轴的上下端,且所述喷淋管的一端与转轴内部的导液管导通连接,每个所述喷淋管上倾斜设置有多个喷淋头;本实用新型采用上下喷淋管双重喷淋吸附,同时喷淋管可以随转轴同步转动,使水喷淋与尾气充分接触,提高了喷淋吸附效率。

标签:
固废
广东 - 深圳 来源:中冶有色网 2023-03-19
环保型固废料粉碎装置
环保型固废料粉碎装置 1106     
 0

本实用新型公开了固废料粉碎技术领域的一种环保型固废料粉碎装置,包括箱体,箱体的下端外表面固定连接有支脚,箱体的上端设置有电机,电机的下端设置有搅拌杆,搅拌杆的外部固定连接有粉碎扇叶,箱体的内部一侧位置设置有破碎辊,箱体的一侧外表面固定连接有进料管,进料管的上端设置有盖板;盖板的下端一侧位置固定连接有连接轴,连接轴的下端固定连接有第一齿轮,第一齿轮的一侧啮合有第二齿轮,第二齿轮的下端固定连接有连接杆,连接杆的一端固定连接有封闭板,能够避免工作人员放置物料时内部碎渣蹦出对人员造成伤害,具有较好的防护效果,能够方便物料的下料效率,较为实用。

标签:
固废
广东 - 深圳 来源:中冶有色网 2023-03-19
压缩浇筑普通或固废混凝土最佳压力范围确定方法

本发明公开了一种压缩浇筑普通或固废混凝土最佳压力范围确定方法,应用于压缩浇筑装置,操作简单,本发明的最佳压力范围确定方法是通过多次循环压缩浇筑试验,将相邻两次压缩浇筑混凝土的强度和预加压强信息比较,确定最小和最大预加压强范围,使得压缩浇筑混凝土的强度大于设计强度且不造成混凝土软化,该方法适用于任一普通或固废混凝土的压缩浇筑过程优化,在提升混凝土力学性能的同时,达到优化压缩浇筑过程和降低经济成本的效果。

标签:
固废
广东 - 深圳 来源:中冶有色网 2023-03-19
上一页 48 49 50 51 52 ... 59 下一页
共59页    到第

中冶有色为您提供最新的广东深圳有色金属固/危废处置技术理论与应用信息,涵盖发明专利、权利要求、说明书、技术领域、背景技术、实用新型内容及具体实施方式等有色技术内容。打造最具专业性的有色金属技术理论与应用平台!

全国热门有色金属设备推荐
展开更多 +
全国热门有色金属技术推荐
展开更多 +

 

江西省隆恩特环保设备有限公司
宣传

报名参会
更多+

报告下载

有色专家
更多+

中南大学
中国工程院院士
广东省科学院资源利用与稀土开发研究所
教授
武汉科技大学
校学术委员会主任 / 教授
广西大学
处长/教授
武汉理工大学
外籍院士/教授
赤泥综合利用研究报告2025
推广

热门技术
更多+

推荐企业
更多+

福建省金龙稀土股份有限公司
宣传

发布

在线客服

公众号

电话

顶部
咨询电话:
010-88793500-807