青岛垚鑫智能科技有限公司
宣传

位置:中冶有色 >

有色技术频道 >

分类:
全部
矿山技术
冶金技术
材料制备及加工技术
环境保护技术
分析检测技术
 
全部
废水处理技术
大气治理技术
固/危废处置技术
土壤修复技术
地区:
全部
北京
天津
上海
重庆
河北
山西
辽宁
吉林
黑龙江
江苏
浙江
安徽
福建
江西
山东
河南
湖北
湖南
广东
海南
四川
贵州
云南
陕西
甘肃
青海
内蒙
广西
西藏
宁夏
新疆
其他
其他
展开
 
全部
其他

其他有色金属环境保护技术理论与应用

免费发布技术信息>>
来源于生物废水处理过程的微生物的液化方法

本发明所公开的是一种液化微生物的方法,所述的微生物存在于市政或工业废水处理厂所产生的生物淤泥,如废弃的活性淤泥中。该方法的步骤包括让淤泥的泥浆在高压下通过一喷嘴,所述的喷嘴具有受限的过水面积以使微生物从喷嘴喷出时液化。跨越喷嘴的压力降优选超过12000psi。至少部分液化的微生物可以再循环至处理厂,为废水处理过程输送养料。任选地,液化的微生物可以通过厌氧方法转化成甲烷和二氧化碳。最佳的结果是,淤泥在泵吸通过高压喷嘴之前经过pH调节和/或浸软。

标签:
废水处理
其他 - 其他 来源:中冶有色网 2023-03-19
厨房废水及新鲜垃圾的同时处理方法

提供能在对厨房废水进行净化处理及有效地达到新鲜垃圾的减量化的同时对新鲜垃圾和废水中所含有的有机物进行再利用的厨房废水及新鲜垃圾的同时处理方法。通过将厨房里产生的废水及新鲜垃圾混合-贮留-通过厌氧性发酵主要对固型有机物进行分解-液化处理的过程和,在充填着浮游过滤材料的厌氧性处理用浮游过滤层内、在油成分通过粗粒化被浮上分离的同时,固型有机物及溶解性成分得到分解的过程和,在充填着浮游过滤材料的需氧性处理用浮游过滤层内、在溶解性成分得到分解的同时进行脱氮-脱磷的过程,对废水及新鲜垃圾进行连续处理,在新鲜垃圾得到减量化的同时对废水进行净化。

标签:
废水处理
其他 - 其他 来源:中冶有色网 2023-03-19
处理含砷废水的方法
处理含砷废水的方法 762     
 0

本发明提供一种处理含 砷废水的方法,包括,如必要向含砷废 水中加入氧化剂将废水中三价砷氧化 为五价砷;加入钙化合物调整pH值到12或更高;将其分离成固 体和液体(第一次固液分离);培烧所得污泥,同时在固液分离后 向处理后溶液加入铁盐调整pH值到6-9;再将其分离为固体 和液体(第二次固液分离)。根据本发明,有可能从废水中有效地 脱除砷并产生处理后水满足各种环境法规下的各种限制规定, 同时使从废水中分离出的含砷污泥在后续步骤中变成无害 的。

标签:
废水处理
其他 - 其他 来源:中冶有色网 2023-03-19
烟道气脱硫废水的处理方法

一种处理烟道气脱硫废水的方法,包括连续地将 废水的pH值调整到5或更低,使废水与铁相接触,对废水进行 絮凝处理,和通过固液分离从废水中去除生成的矾花,以及任选 地使得到的废水与COD吸附树脂相接触。通过使用简单的废 水处理系统,就能够同时而有效地从烟道气脱硫废水中除去有 毒物质,如:氧化物如过氧硫酸、碘酸,重金属如铜和铅,非金属 如硒化合物和氟化物。由于通过用过氧化物如:过氧硫酸和碘 酸能够防止COD吸附树脂性能恶化,故可通过处理长期得到 水质优异的水。从而,提供了一种容易而有效地处理烟道气脱 硫废水的方法。

标签:
废水处理
其他 - 其他 来源:中冶有色网 2023-03-19
废水处理系统与方法
废水处理系统与方法 1212     
 0

本揭露提供一种废水处理系统与方法。所述废水处理系统包括废水室、正极室、负极室、酸液室、碱液室以及缓冲室。废水室接收含有第一离子的废水。正极室与负极室分别设置于废水室的相对两侧。酸液室设置于废水室与正极室之间。碱液室设置于废水室与负极室之间。缓冲室设置于酸液室与碱液室中的一个与废水室之间,接收含有第一离子的缓冲溶液。废水室与缓冲室之间的界面为第一离子交换膜,酸液室与碱液室中的所述一个与第一缓冲室之间的界面为第二离子交换膜,且第一离子交换膜与第二离子交换膜具有相同的电性。

标签:
废水处理
其他 - 其他 来源:中冶有色网 2023-03-19
废水污泥消毒的方法
废水污泥消毒的方法 937     
 0

本发明涉及一种对生活污水和工业废水进行消毒以用作有机矿物质肥料主要成分的技术。该消毒方法是通过使用贮水槽和快速阀在废水污泥上运用快速脉冲真空作用实施,其中脉冲持续时间不多于1.0秒、在压力不大于20mm汞柱下进行直到达到期望的消毒水平。使用本发明的技术成果是加速消毒过程,简化方法。

标签:
废水处理
其他 - 其他 来源:中冶有色网 2023-03-19
镀铬废水中铬的回收方法

本发明的方法属于工业废水处理技术领域,特别适用于电镀工厂镀铬废水中铬的回收。该方法主要是在镀铬槽内放置塑料网内衬,在废水中加入亚硫酸使六价铬还原成三价铬,然后再加入氨水,与三价铬反应生成含铬沉淀,直到沉淀完全,最后进行分离。分离后的净水封闭循环,重新用于漂洗,而分离后的含铬沉淀用水进行多次清洗,除去铵离子及硫酸根离子,得到铬化合物纯品,再重复用于镀铬工艺。本发明的方法简单可行地解决了镀铬废水处理中铬对环境二次污染的问题,使之能在实际中推广应用。

标签:
废水处理
其他 - 其他 来源:中冶有色网 2023-03-19
用于废水处理工艺控制的系统和方法

一种用于废水处理工艺控制的系统,包括:一组测量构件,被布置成获得数据集,所述数据集包括与所述废水处理工艺的参数相关的多个工艺变量;预测模块,被布置成接收所述数据集并基于软传感器来预测废水处理工艺的所述参数;故障诊断模块,被布置成将所预测的参数与预定的标准进行比较;其中,如果所预测的参数不满足所述预定的标准,则所述故障诊断模块能够操作以从所述多个工艺变量中识别导致所预测的参数不满足所述预定的标准的至少一个工艺变量,并确定从所述多个工艺变量中所识别的至少一个工艺变量是否是能够控制的。还公开了一种用于废水处理系统中的优化模块。

标签:
废水处理
其他 - 其他 来源:中冶有色网 2023-03-19
从废水中同时生物脱除磷和氮的装置和方法

本发明涉及从废水中同时生物脱除磷和氮的装置和方法。其任务是甚至在低温下提高生物磷和氮脱除率。较小的反应体积在短时间要达到高的单位时间和空间物质转化。一个作为漂浮床过滤器构成的水解-和酸化工段(1)带有一个废水入口并分为一个缺氧区(1a)和一个厌氧区(1b),并含有可漂浮的载体材料和一个通空气装置。一个连接在后面的硝化和脱硝工段(2)分为一个通空气的流化床区,一个可选择操作的通空气的流化床/不通空气的漂浮床区和一个不通空气的漂浮床区和含有<80%(体积)的漂浮载体材料。在工段(1)的停留时间>1.5小时,其中每6小时短时间输入空气使载体材料回旋起来。在工段(2)将废水-加菌污泥-混合物在至少一个通空气和一个不通空气区进行处理。经过工段(1)和(2)以及后沉清装置(3)进行循环。生长载体各保留在工段(1)和(2)。本发明尤其可应用于中小型废水处理装置,应用于公共和工业废水,食品及奢侈品生产的废水处理装置。

标签:
废水处理
其他 - 其他 来源:中冶有色网 2023-03-19
DADMAC/乙烯基三烷氧基硅烷共聚物及其在废水处理中的应用

本发明涉及的是一种水溶性表面活性含硅聚电解质聚合物及其作为促凝剂的应用,它可用于纸浆和造纸的木沥青控制;用于净化再用纸造纸工业产生的含油墨废水;用于造纸厂含有色物质废水的脱色;用于净化含混浊成分的废水;用于从食品加工废水中有效去除脂肪、血、组织等其它固体的化学方法;以及用于去除工业含油废水中的废油。这些聚电解质聚合物是由一亲水性或疏水性一定单体构成的含硅共聚物,较好的单体是二烯丙基二甲基卤化铵(以二烯丙基二甲基氯化铵为佳)和乙烯基烷氧基硅烷(以乙烯基三甲氧基硅烷为佳)。

标签:
废水处理
其他 - 其他 来源:中冶有色网 2023-03-19
含有机物与重金属的废水综合性处理方法

本发明提供一种含有机物与重金属的废水综合性处理方法,能同时去除金属表面处理工业废水中的有机物及重金属离子,本发明采用斐顿(Fenton)及铁氧磁体(Ferrite)废水处理技术,先将废水在pH为2~5、温度为20℃~100℃的条件下进行斐顿(Fenton)处理,之后再添加二价铁盐及碱剂,调整其pH值于8~12、温度20℃~100℃的条件并浓集重金属离子,以进行铁氧磁体(Ferrite)处理;藉此综合技术,得以高效去除废水中有机物及重金属离子,同时得到高品质铁氧磁体(Ferrite)产物。

标签:
废水处理
其他 - 其他 来源:中冶有色网 2023-03-19
用于高强度废水脱毒的方法

本发明提供对含有抑制性化合物的高强度废水进行净化的方法,所述方法包括以下步骤:(a)将至少一种高强度废水与至少一种次级污泥混合以形成混合浆料,其总化学需氧量(TCOD)负载值高达4g TCOD/g挥发性悬浮固体/天;和(b)在厌氧条件下将混合浆料加入到脱毒反应器中,所述厌氧条件任选地包含厌氧细菌和兼性厌氧细菌的微生物群以提供经脱毒的流出物。

标签:
废水处理
其他 - 其他 来源:中冶有色网 2023-03-19
深颜色废水的处理
深颜色废水的处理 870     
 0

本发明是一种净化含有有机和致色污染物废水的方法,本三单元方法包括:第一步,好氧或厌氧生物物理处理;第二步,氧化剂处理;第三步,吸附剂接触处理。生物物理处理除去大部分的污染物,氧化剂处理破坏残余的有机和致色污染物。吸附剂接触处理破坏任何在废水中残余的氧化剂和/或吸附任何残余的氧化产物。

标签:
废水处理
其他 - 其他 来源:中冶有色网 2023-03-19
综合多区废水处理系统和方法

本发明提供了一种用于处理废水的多区废水处理系统,所述废水诸如城市废水、工业废水、农业废水、垃圾渗滤液或受污染的地下水。系统包含互连的两个水槽,其具有用于使用悬浮生长的以及固定化的微生物通过生物过程来除去有机化合物和无机营养物的四个区:有氧区、微量需氧区、缺氧区以及厌氧区。第一水槽还具有用于固液分离的净化区。与第一水槽分离的第二水槽用于对在第一水槽的处理操作期间所产生的生物固体进行厌氧消化。该系统可以具有用于供给原废水的多个入口,并且可以使用宴会和饥荒的供给方式。

标签:
废水处理
其他 - 其他 来源:中冶有色网 2023-03-19
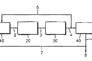
硝化装置及具有该硝化装置的废水处理装置

本发明提供硝化装置及具有其的废水处理装置,其充分活用通过包括固定化载体得到的高硝化处理效率,并极力抑制运行成本和设备投资成本,且容易导入不具有最初沉淀池的已设废水处理厂。该硝化装置(10)利用硝化菌在需氧条件下硝化处理废水中的氨性氮而形成硝酸性氮,其至少具备1系列污泥/载体硝化线路(58),该线路(58)具有:污泥用硝化槽(12),废水流入并利用含硝化菌的活性污泥(18)硝化氨性氮;固液分离槽(14),对通过污泥用硝化槽(12)硝化处理的硝化处理水中的固体成分固液分离而得到上清水;载体用硝化槽(16),上清水流入并利用包括固定有硝化菌的包括固定化载体(30)对上清水中残留的氨性氮进行硝化而得到最终硝化处理水,并设有包括固定化载体(30)的载体分离筛(36)。

标签:
废水处理
其他 - 其他 来源:中冶有色网 2023-03-19
清除有机物和氮的废水处理方法和这种方法所用的载体及其制备方法

一种用于从废水中清除有机物和氮的废水处理方法。在这种废水处理方法中,阻止硝化细菌生长的过量的有机物在前置曝气罐中被清除,并且曝气罐的条件是利用硝化载体得以优化的,大量的硝化细菌附着在该载体上,以致硝化细菌可以在其中大量地繁殖生长。因此,大量的废水可以在短时间内得到处理,并且长期地适应废水中有机物负荷的变化也是可能的。所有,该废水处理装置可以比较小,并且可以期望其性能有所改进。再者,在硝化细菌的活性变低的冬季,废水也能得到稳定地处理,以致按照这项发明的废水处理方法可以被用于大多数废水处理厂,例如污水处理厂、粪便处理厂、饲养业和工业废水处理厂等。

标签:
废水处理
其他 - 其他 来源:中冶有色网 2023-03-19
多段式分级连续微泡分离废水回收设备

本实用新型提供一种多段式分级连续微泡分离废水回收设备,包括一第一废水过滤装置、一第二废水过滤装置和一第三废水过滤装置;其中,该第二废水过滤装置分别与第一废水过滤装置和第三废水过滤装置相连接;该第一废水过滤装置可分离废水的有机物和悬浮固体物,以获得农业用水;该第二废水过滤装置可分离农业用水的有机物和悬浮固体物,以获得工业用水,而该第三废水过滤装置则可分离工业用水的有机物和悬浮固体物,以获得商业用水;藉此,使该废水依照用途的不同而回收,以节省回收的成本。

标签:
废水处理
其他 - 其他 来源:中冶有色网 2023-03-19
用于利用浸入式烟道气入口蒸发水的废水处理系统

本发明公开了用于处理在热电厂、其它工业工厂和/或其它工业来源处产生的废水的方法、系统和/或装置(5)。废水(16)被引导穿过包括直接接触绝热浓缩系统的废水浓缩器(5)。热进料气体流被引导穿过废水浓缩器。废水浓缩器将热进料气体与废水直接混合并且从废水蒸发水蒸气。废水浓缩器从剩余浓缩废水分离(A)水蒸气。内含式空气‑水界面液体蒸发器可以被布置成在由废水浓缩器处理之前对废水进行预处理。

标签:
废水处理
其他 - 其他 来源:中冶有色网 2023-03-19
废水处理设备
废水处理设备 1127     
 0

本发明提供废水处理设备,该废水处理设备使处理槽内的水流稳定、减少曝气空气的供给量并将作为土木结构体的处理槽的强度负担抑制到最小限度。废水处理设备具有处理槽、气体扩散装置和担体分离装置。在处理槽内,使得从流入口流入的废水,与将微生物固定化了的担体接触来进行生物处理。气体扩散装置使处理槽内的废水产生回旋流并供给氧气。担体分离装置具有将线材或杆状物并排而成的滤网,滤网的分离面朝斜下方倾斜地配置在处理槽的流出口的上游部。担体分离装置的滤网构成为使两个滤网的分离面的背面侧相向地配置两个滤网,以形成与流出口相连的共同的排水区域,并且,利用从处理槽的底面立起的支承脚,支承具有滤网的担体分离装置。

标签:
废水处理
其他 - 其他 来源:中冶有色网 2023-03-19
在废水处理生物反应器区室中提供需氧介质的方法及相关系统

本发明涉及用于监测和控制市政和工业废水处理系统中的生物活性的方法和相关系统。尤其是,本发明涉及通过实时监控废水处理系统的一个或多个参数来控制生物反应器型活性污泥废水处理系统中的空气流量。

标签:
废水处理
其他 - 其他 来源:中冶有色网 2023-03-19
用电子束照射处理含有有害物质的废水的方法

本发明公开了一种含有有害物质的废水处理方法。该废水处理方法通过用电子束向废水中照射而去除有害物质。该废水处理方法,根据废水中含有的有害物质种类,向废水中添加各种吸附剂。

标签:
废水处理
其他 - 其他 来源:中冶有色网 2023-03-19
含有氨态氮的废水的电解处理方法及装置

本发明的课题在于提供一种含有氨态氮的废水的电解处理方法及装置,其可防止电流效率的降低,使氨的分解效率提高,对于所有含有氮的废水均可实行安全且有效的处理。本发明的电解处理装置是具备以下部分的含有氨态氮的废水的电解处理装置:含有氨态氮的废水流入的调整槽(11),在具有氯离子的条件下电解处理由该调整槽供给的废水(20)的电解槽(12),及在上述调整槽(11)与上述电解槽(12)内使废水循环的循环泵(13);其中上述电解槽(12)在PH值为5以上且小于8的范围内电解处理上述废水,优选在上述电解槽(12)内配置以金属材料形成的催化剂部件,促进氨态氮的分解反应。

标签:
废水处理
其他 - 其他 来源:中冶有色网 2023-03-19
含氮化合物的反向电渗析和电化学废水处理方法

本发明提供的是一种废水处理方法,所述废水处理方法使用反向电渗析(EDR)-电化学废水处理(EWT)的组合过程,所述方法包括:使用EDR设备将含有氮化合物的流入废水分离成为产物水和浓缩水;和在EWT设备中将所述浓缩水分解成为要从所述废水除去的目标物质。本发明提供的是一种废水处理方法,所述废水处理方法单独使用EWT设备将含有含氮化合物的流入水分解成为要除去的目标物质。根据所述废水处理方法,可以将从EDR设备流出的产物水再用作原水,并且所述方法通过同时处理所述浓缩水中的顽抗的COD和T-N,保证了可靠性和稳定性。所述废水处理方法有效地去除了废水中源自乙醇胺(ETA)的顽抗的COD和T-N,所述废水是在使用ETA作为PH调节剂的发电厂和工业设备中产生的。EDR-EWT过程可以容易地与普通废水处理相组合,并且可以有效和稳定地处理含有顽抗的COD和T-N的废水。因此,所述方法可以有效地满足加强的环境管制标准。

标签:
废水处理
其他 - 其他 来源:中冶有色网 2023-03-19
利用甲醇生产氢气和燃料,生产氢气和燃料的方法及设备

本发明涉及利用来自纸浆工业的生物甲醇生产生物氢。优选的生物甲醇包含经过纯化的由黑液得到的生物甲醇。本发明还涉及由回收自黑液的粗生物甲醇生产生物氢的方法,并且涉及利用这种生物氢作为氢源生产烃生物燃料的方法。本发明还涉及由生物氢和生物烃生产燃料的一种生产生物燃料的装置,并且本发明还涉及这样所制得的生物燃料。本发明使生产一种其原料百分之百出自非化石来源的生物燃料成为可能。

标签:
废水处理
其他 - 其他 来源:中冶有色网 2023-03-19
多段式分级连续微泡分离废水回收设备及其使用方法

本发明提供一种多段式分级连续微泡分离废水回收设备及其使用方法,其使用方法包括提供一废水、分离废水的有机物和悬浮固体物,以获得农业用水、分离农业用水的有机物和悬浮固体物,以获得工业用水和分离工业用水的有机物和悬浮固体物,以获得商业用水;利用上述方法,可将废水依照用途的不同而分别回收成具有不同生化需氧量数值的商业用水、工业用水和农业用水,如此便可因应不同需求来回收该废水,藉此以进一步节省回收废水的成本。

标签:
废水处理
其他 - 其他 来源:中冶有色网 2023-03-19
用于厌氧性废水处理的反应器和方法

用于厌氧性废水处理的反应器(10)被设计为包括中心流动通道(20)的环形柱式反应器。在中心流动通道(20)与反应器壁之间的环形空间(40)中,配置了载体组件(50)以用于固定微生物,在相邻的载体组件(50)之间提供了流动孔道。载体组件之下的反应器(30)的下部被设计为用于在反应器(10)的运转期间接收有微生物漂浮在其中的废水的空间。在操作期间,提供了漂浮的微生物及固定在载体组件上的微生物。待处理的废水在中心向下流动,借助于微生物产生气体所部分产生的流动,该废水再次沿载体组件(40)向上。所述反应器被用于实施进行厌氧性废水处理的方法,该反应器适合于食品加工业、饲料工业以及造纸工业和纺织工业中的废水处理。

标签:
废水处理
其他 - 其他 来源:中冶有色网 2023-03-19
包括合成气生产和整体化工厂设施的生物质液化工艺的废水处理

对来自生物质液化工艺的废水进行处理,所述工艺包括由生物质生产合成气以及通过费-托(Fisher-Tropsch)工艺将所述合成气转化成液体烃。所获得的废水采用与来自其他工业工艺的废水相同的方法纯化,所述其他工业工艺与生物质液化工艺整体化,例如是林业、发电和/或供热、垃圾焚化、或者金属精炼、石化炼油和/或油品精制工业中的工艺。所述生物质液化工艺和其他工业工艺可具有共同的给水工艺单元,共同的冷却水工艺单元,和共同的废水处理单元。废水处理工艺可包括生物纯化工艺,所述费-托(Fischer-Tropsch)工艺可利用钴催化剂。本发明还描述了包括生物质液化设备和其他工业设施的整体化工厂,其中这两种设备都与共同的废水处理设施连接。

标签:
废水处理
其他 - 其他 来源:中冶有色网 2023-03-19
用于飞灰的表面改性的方法及其工业应用

本发明描述了用于飞灰的表面改性的方法及其工业应用,它包括新型表面敏化、新型表面活化和后续的在常规化学镀浴中对原样飞灰粒子的Cu或Ag涂覆。这些新型表面改性方法提供对于常规方法的高效和节省成本的备选方案,该常规方法用较昂贵的Sn-Pd催化剂体系对飞灰粒子的表面进行改性。相对于用较昂贵的Sn-Pd催化剂体系处理的飞灰,用所述新型表面改性方法处理的飞灰还适用于更大量的工业应用。原样飞灰粒子,经由新型表面改性方法处理,发现了工业应用如用于制备用于电子器件的EMI屏蔽的导电聚合物、油漆、粘合剂、密封物和树脂的导电填料,用于汽车工业中使用的铅系复合材料以及作为通过将有机分子的较长链分解成较小的链而净化工业废水的催化剂。

标签:
废水处理
其他 - 其他 来源:中冶有色网 2023-03-19
使用杀生物剂用于处理工业水循环的方法

本发明涉及工业水循环(特别是纸制造中的工业水循环)的处理方法,其中碱金属亚氯酸盐添加至含有卤胺(其作为氧化性杀生物剂或杀生物剂系统)的水循环中。本发明还涉及用于处理工业水循环的试剂,该试剂包含卤胺(产生自例如溴化铵和次氯酸钠)作为氧化性杀生物剂或杀生物剂系统和碱金属亚氯酸盐(如NaClO2);以及涉及碱金属亚氯酸盐作为添加剂处理工业废水体系的用途,该工业废水体系含有卤胺作为氧化性杀生物剂或杀生物剂系统。

标签:
废水处理
其他 - 其他 来源:中冶有色网 2023-03-19
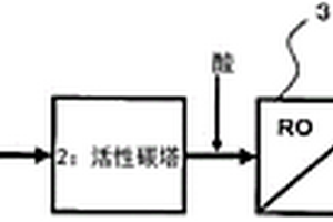
含有阳离子表面活性剂的废水的处理方法及处理装置

在将电子工业工艺废水等含有阳离子表面活性剂的废水实施RO膜分离处理而将水回收时,防止由阳离子表面活性剂所导致的RO膜阻塞,并能长期稳定地获得高水质的处理水。将电子工业工艺废水等含有阳离子表面活性剂的废水的pH值调整成pH3~5后,通过第1个RO膜分离装置(3)实施RO膜分离处理,将第1个RO膜分离装置(3)的透过水的pH值调整成pH6.5~10.5后,通过第2个RO膜分离装置(4)实施RO膜分离处理,并将第2个RO膜分离装置(4)的透过水作为处理水予以回收。

标签:
废水处理
其他 - 其他 来源:中冶有色网 2023-03-19
上一页 110 111 112 113 114 ... 117 下一页
共117页    到第

中冶有色为您提供最新的其他有色金属环境保护技术理论与应用信息,涵盖发明专利、权利要求、说明书、技术领域、背景技术、实用新型内容及具体实施方式等有色技术内容。打造最具专业性的有色金属技术理论与应用平台!

全国热门有色金属设备推荐
展开更多 +
全国热门有色金属技术推荐
展开更多 +

 

江西省隆恩特环保设备有限公司
宣传

报名参会
更多+

报告下载

有色专家
更多+

中南大学
中国工程院院士
长沙矿冶研究院
总经理
江西理工大学
教授
西安建筑科技大学
教授
北京科技大学
副院长/教授
赤泥综合利用研究报告2025
推广

热门技术
更多+

推荐企业
更多+

福建省金龙稀土股份有限公司
宣传

发布

在线客服

公众号

电话

顶部
咨询电话:
010-88793500-807