青岛垚鑫智能科技有限公司
宣传

位置:北方有色 >

有色技术频道 >

> 废水处理技术

分类:
全部
矿山技术
冶金技术
材料制备及加工技术
环境保护技术
分析检测技术
 
全部
废水处理技术
大气治理技术
固/危废处置技术
土壤修复技术
地区:
全部
北京
天津
上海
重庆
河北
山西
辽宁
吉林
黑龙江
江苏
浙江
安徽
福建
江西
山东
河南
湖北
湖南
广东
海南
四川
贵州
云南
陕西
甘肃
青海
内蒙
广西
西藏
宁夏
新疆
其他
其他
展开
 
全部
南京
无锡
徐州
常州
苏州
南通
连云港
淮安
盐城
扬州
镇江
泰州
宿迁

江苏无锡有色金属废水处理技术理论与应用

免费发布技术信息>>
汽车涂装生产线上的废水处理系统

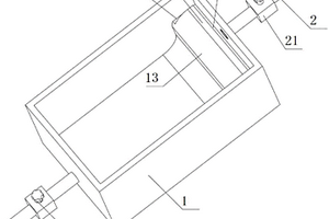
本实用新型涉及废水处理系统技术领域,且公开了一种汽车涂装生产线上的废水处理系统,包括支撑板,所述支撑板顶端内侧设置有机体,且所述机体与所述支撑板可拆卸连接,所述机体右上方设置有进水管,且所述进水管与所述机体固定连接,所述机体左侧固定设置有第一电机,所述第一电机输出轴的另一端设置有第一皮带,且所述第一皮带与所述第一电机转动连接。该一种汽车涂装生产线上的废水处理系统,通过设置转轴和搅拌杆,转轴带有搅拌杆的一端设置在滤网的右侧,在污水进入到机体的内部之后,污水通过滤网的时候转轴带动搅拌杆进行转动,对污水中的污料进行搅拌,避免污料在滤网的表面粘粘,避免滤网被污料堵塞,提高了污水的过滤处理效率。

标签:
废水处理
江苏 - 无锡 来源:北方有色网 2023-03-19
印染废水的微电解预处理工艺及其装置

一种印染废水的微电解预处理装置,包括串联设置的一级折流式微电解池、二级折流式微电解池、中和池、沉淀池,并在一级折流式微电解池、二级折流式微电解池、中和池和沉淀池内部设置的引流通道将进入的废水从反应池的底端进入,通过二级串联设置的折流式微电解池,不仅能够使反应时间延长、反应空间增大,且在水流、曝气的作用下,填料层不会由于重力作用而出现压节板结、沟流现象,且针对高COD、难降解、可生化性差的印染废水,可有效去除色度、提高可生化性,大大提高了微电解反应的处理效果,为后续生化处理提供良好条件。

标签:
废水处理
江苏 - 无锡 来源:北方有色网 2023-03-19
用破乳剂进行碱性含油废水的处理方法

本发明公开了一种用破乳剂进行碱性含油废水的处理方法,采用二次破乳和两级气浮处理工艺,其主要步骤包括,制备破乳剂,将破乳剂加入一次破乳罐中进行一次充分搅拌,通过一次涡凹气浮处理,处理后的水进入二次破乳罐中进行二次破乳,进入气浮池进行二次溶气气浮处理,高效率处理碱性含油废水,采用本发明的处理方法其除油效果可达到95%以上;而且本发明的多功能药剂价格低,市场上很容易得到,易溶于水,投加简单,运行成本低,效果明显较为稳定,易于实际运用。

标签:
废水处理
江苏 - 无锡 来源:北方有色网 2023-03-19
石灰石石膏脱硫废水处理装置

本实用新型公开了一种石灰石石膏脱硫废水处理装置,属于废水处理领域,一种石灰石石膏脱硫废水处理装置,包括机壳,机壳内部开设有装置腔和搅拌腔,装置腔位于搅拌腔的上侧,机壳上端固定连接有电机,其特征是通过电动伸缩杆将橡胶板向右拉动,使得搅拌腔的水可以从圆孔进入实心板与橡胶板之间间隙,橡胶板会在弹簧的拉力作用下回到原位,可以将实心板与橡胶板之间的水从通水孔挤出,水从出水管中排出,而絮状沉淀物就会被筛板拦截,清扫杆会将筛板外堆积的絮状沉淀物向下挤压到出料口处,可以将生成的絮状沉淀物挤压在一起,集中处理,还可以有效的防止絮状沉淀物堵住筛孔,有效保证了工作效率。

标签:
废水处理
江苏 - 无锡 来源:北方有色网 2023-03-19
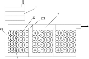
针对印染废水的生物巢处理装置

本实用新型属于污/废水处理技术领域,特别涉及一种针对印染废水的生物巢处理装置,包括生物巢反应器和沉淀池,生物巢反应器与沉淀池通过管道相连;其中,生物巢反应器设置有进水口和出水口,进水口和出水口之间设置有搅拌区和曝气区,搅拌区和曝气区之间由挡板隔开,挡板下端与生物巢反应器底部之间留有缝隙;且搅拌区与进水口相连,曝气区与出水口相连;搅拌区设置有搅拌装置,搅拌装置设置在搅拌区长度方向的中心轴向上。本实用新型提供的针对印染废水的生物巢处理装置,创新性地将基于改性玄武岩纤维的生物巢与OHR曝气器组合,实现生化处理节能降耗、污泥减量、节省占地的目的。

标签:
废水处理
江苏 - 无锡 来源:北方有色网 2023-03-19
处理IDA法双甘膦废水的方法

本发明公开了一种处理IDA法生产双甘膦废水的方法,其步骤为:将双甘膦母液冷凝液用生石灰和液碱将废水调pH至12,通蒸汽加温至50~60℃,碱性缩合后,通入生化配水池,将二次洗水调pH1~3,进行微电解反应,加入双氧水,在表面催化剂存在下发生催化氧化;调pH至7.5~8;将废水泵入生化系统,使用能够耐受1~3%盐分的菌种,采用ABR厌氧Ⅰ/连续好氧Ⅰ/ABRⅡ/连续好氧Ⅱ降解有机污染物同时使有机磷转变为正磷酸盐;沉淀污泥外运处理,上清液通入除磷反应池,加入混凝剂和石灰,充分反应后混合液通入除磷沉淀池,上清液达标排放,污泥外运处理。本发明运行成本低、出水经生化处理后,COD完全达标排放,再经过化学除磷,使总磷达标排放,使污染物降到很低的水平,色度大幅度降低,具有良好的环境效应。

标签:
废水处理
江苏 - 无锡 来源:北方有色网 2023-03-19
钢铁废水处理用反渗透装置

本实用新型公开了一种钢铁废水处理用反渗透装置,涉及钢铁废水处理技术领域,为解决现有钢铁废水处理用反渗透装置预处理效果不全面,从而容易导致后续反渗透效果下降的问题。所述反渗透机构本体的一侧设置有预处理罐,所述预处理罐内部的上方设置有冷却降温层,所述冷却降温层的内部设置有冷凝管,所述冷却降温层一侧的外壁设置有温控器,所述冷却降温层的下方设置有电动下料口,所述电动下料口的下方设置有吸铁石,所述吸铁石的下方设置有杂质滤网,所述反渗透机构本体内部的上方设置有活性炭净化室,所述活性炭净化室下方的两侧均设置有超声波发生器,所述超声波发生器的输出端设置有换能器。

标签:
废水处理
江苏 - 无锡 来源:北方有色网 2023-03-19
酸循环回收的强碱性印染废水处理系统

本实用新型旨在提供一种酸循环回收的强碱性印染废水处理系统,包括依次相连的pH调节池、印染废水厌氧池和生物填料塔,还包括臭气预处理装置,用于强碱性印染废水处理系统和城市生活污水处理系统的H2S的收集和预处理,生物填料塔用于通过生物氧化法对中进行预处理后的H2S进行生物氧化处理,将臭气中的H2S氧化为H2SO4,实现硫酸的回收与循环利用,生物填料塔包括第一排液口和通过第一排液管与排液口相连的积液装置,积液装置上设置有第二排液口,第二排液口通过第二排液管与pH调节池的底部相连。本实用新型的系统能有效地进行酸循环回收利用,将污水处理系统进行的中的硫进行循环回收利用,可以大大减少基建投资,节省资源,环境友好。

标签:
废水处理
江苏 - 无锡 来源:北方有色网 2023-03-19
含氟氨氮废水综合处理装置

本实用新型涉及废水处理技术领域,具体是一种含氟氨氮废水综合处理装置,包括PH调节机构、氟化钙沉淀机构、钙盐沉淀机构、脱氨塔和蒸发机构,所述脱氨塔和蒸发机构之间设有缓冲水池,所述蒸发机构的末端设有与其通过管道连通的离心机,所述PH调节机构包括集水池和搅拌组件,所述搅拌组件安装在集水池内,所述氟化钙沉淀机构包括压滤机和第一澄清池,所述第一澄清池和集水池均通过管道与压滤机连通,所述钙盐沉淀机构包括解析塔和第二澄清池,所述第二澄清池和第一澄清池均通过管道与解析塔连通,所述第二澄清池与脱氨塔通过管道连通。本实用新型的有益效果是整套系统实现废水零排放,相对于原有技术其运行成本低廉。

标签:
废水处理
江苏 - 无锡 来源:北方有色网 2023-03-19
废水零排放系统
废水零排放系统 1209     
 0

本实用新型的目的在于提供一种废水零排放系统,可以循环利用;包括调节池1,超滤模块4,渗透膜模块5,蒸发器6,结晶器7;所述调节池1的第一输出端与所述超滤模块4的第一输入端连接;所述超滤模块4的第一输出端与所述渗透膜模块5的输入端连接;所述超滤模块4的第二输出端与所述蒸发器6的输入端连接;所述超滤模块4的第三输出端与所述结晶器7的输入端连接;本实用新型的有益效果为实现废水近零排放,提高废水的回收利用率。

标签:
废水处理
江苏 - 无锡 来源:北方有色网 2023-03-19
分散染料废水的处理装置

本实用新型实施例的一种分散染料废水的处理装置包括:pH调节池;微电解塔,微电解塔的进水端与pH调节池的出水端相连;前芬顿反应池,前芬顿反应池的进水端与微电解塔的出水端相连;沉淀池,沉淀池的进水端与前芬顿反应池的出水端相连;水解酸化池,水解酸化池的进水端与述沉淀池的上清液出水端相连;接触氧化池,接触氧化池的进水端与水解酸化池的出水端相连;后芬顿反应池,后芬顿反应池的进水端与接触氧化池的出水端相连;浅层气浮池,浅层气浮池的进水端与后芬顿反应池的出水端相连;臭氧池,臭氧池的进水端与浅层气浮池的出水端相连。根据本实用新型的分散染料废水的处理装置,处理效果好。

标签:
废水处理
江苏 - 无锡 来源:北方有色网 2023-03-19
由吐氏酸生产废水提取有效成分制吐氏酸的方法

本发明涉及一种由吐氏酸生产母液废水提取有效成分制吐氏酸的方法,属环保领域废弃污染物资源化技术。解决了原有简单回用反萃液技术存在的杂质积累,影响产品质量的问题。操作时,反萃液经动力在有夹套的釜里冷却到-2℃~20℃,保温3~12小时,滤除芒硝,得到的脱硝液在蒸馏釜中浓缩,排出水蒸气,蒸除水分35%~50%,然后经降温,降温至35℃~50℃时有95%以上的有机物料结晶析出,离心抽滤得羟基吐氏酸钠和少量吐氏酸钠的湿品,该湿品再经溶解和氨配进入氨化釜中氨化,升温至140℃~160℃,保温6~8小时,排氨降温至100℃~110℃,氨化液转移至酸析釜中,在75℃~100℃用盐酸(或稀硫酸)酸析至PH=1~2,过滤洗涤得细颗粒状吐氏酸结晶,离心得吐氏酸湿品,再经干燥得成品,纯度>97.00~99.00%(HPLC测定)。

标签:
废水处理
江苏 - 无锡 来源:北方有色网 2023-03-19
酸性废水中和吹脱实验装置

本实用新型提供了一种酸性废水中和吹脱实验装置,其能使废水顺利快速的从中和柱流入吹脱柱,同时避免吹脱柱中的废水误入供气系统,从而确保实验的顺利进行。其包括台架、进水排水系统、供气系统以及分别安装在所述台架上的中和柱和吹脱柱,所述中和柱内填充有石灰石,所述中和柱的上端与所述吹脱柱的进液口之间通过连接管连通,所述吹脱柱的上端连接有取样管;所述进水排水系统通过进水管为所述中和柱供水,所述中和柱和所述吹脱柱通过所述进水排水系统的排水管排水,所述供气系统通过曝气管为所述吹脱柱供气,其还包括排气管和止回阀,所述排气管竖直设置且其下端与所述连接管连通密封,所述排气管的上端与外界连通;止回阀安装在曝气管上。

标签:
废水处理
江苏 - 无锡 来源:北方有色网 2023-03-19
包装印刷废水处理装置

包装印刷废水处理装置,它包括调节池、混凝反应器、气浮装置、净化水装置、中间水箱、精细过滤装置;调节池的进水口侧设有格栅井,调节池通过提升加压泵连通混凝反应器一,提升加压泵与混凝反应器连接的管道上还设有管道混合器;混凝反应器通过管道连通气浮装置,气浮装置通过混凝反应器二连通净化水装置;净化水装置通过管道连通中间水箱,中间水箱通过中间加压泵连通精细过滤装置。本实用新型使用简单,操作方便,废水处理效果好,废水处理效率高,使用成本低,适用范围广,安装方便,能循环使用水资源,减少水资源浪费,具有安全可靠性的作用。

标签:
废水处理
江苏 - 无锡 来源:北方有色网 2023-03-19
含盐废水的处理方法
含盐废水的处理方法 1021     
 0

本发明公开了一种含盐废水的处理方法,包括将含盐废水通入调节池,调节pH值至7.5~9.5;向水体中加入耐盐复合菌,进行一级厌氧生化反应,破坏废水中有机物的结构,降解部分有机物;将水体继续通入反应池,调节pH至7~9,加入耐盐复合菌,进行好氧反应;将反应后的水体进行MVR机械蒸发后导出反应池回收待用。本发明采用特定工艺顺序顺次降解方法,不仅具有很好的处理效果,而且各单项处理方法简单,操作方便,容易实现,也不会产生额外的危险固废。

标签:
废水处理
江苏 - 无锡 来源:北方有色网 2023-03-19
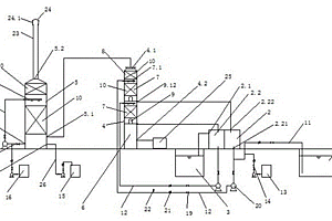
高腐蚀含盐废水的蒸发结晶处理系统

本实用新型涉及一种蒸发处理技术,具体为一种高腐蚀含盐废水的蒸发结晶处理系统,包括采用耐腐蚀材料制成的废水槽、曝气池、MBR曝气反应池,污泥池、清水池、计量泵、电解处理器、预热器、蒸发器和结晶槽,所述废水槽、曝气池、MBR曝气反应池和污泥池依次连通,清水池上方设有取液管,电解处理器连通,电解处理器包括设备本体,所述设备本体内设有腔体三个,两侧腔体中均设有电极板组,中间腔室中设有电极板,所述腔体之间设有离子交换膜,每个腔体的底部均设有进水口,每个腔体的上部均设有出水口,所述取液管通过计量泵与进水口连通,所述出水口与预热器进水口连接,预热器的出水口经管路与蒸发器的进水口连通,蒸发器出料口与结晶槽连通。

标签:
废水处理
江苏 - 无锡 来源:北方有色网 2023-03-19
酸洗钝化废水处理系统

本发明公开了一种酸洗钝化废水处理系统,包括机械中和反应池(1),其特征在于:所述的机械中和反应池(1)将钝化废水处理后送往微涡澄清池(2),微涡澄清池(2)反应澄清后送入生化缺氧池(3),生化缺氧池(3)处理后自流进入溶解氧控制在3.0g/l以上的生物接触氧化池(4),生物接触氧化池(4)处理后送入辐流式二沉池(5)进行固液分离,经二沉池(5)处理后依序送入中间水池(6)、砂过滤器(7)、活性炭过滤器(8)处理后获得清水送往清水池(9)。本发明通过采用机械中和反应池和微涡澄清池相结合能达到同样的氟离子去除效率,免除了石灰乳加药的麻烦,具有实用性强、运行费用低、投资少的特点,适宜推广使用。

标签:
废水处理
江苏 - 无锡 来源:北方有色网 2023-03-19
处理印染废水的微电解填料及工艺

本发明公开一种处理印染废水的微电解填料,微电解填料为基于Fe、C、Al的三元型填料,填料组成为:铁15‑25%、活性炭30‑40%、铝15‑25%、黏土20‑30%、羧甲基纤维素钠0‑10%。本申请基于Fe、C、Al三元型微电解填料在碱性条件下直接对印染废水进行处理,简化了工艺流程,同时减少了酸碱试剂的使用量,有效地节约了成本。

标签:
废水处理
江苏 - 无锡 来源:北方有色网 2023-03-19
多品类洗舱废水处理系统及处理方法

本发明提供了一种多品类洗舱废水处理系统及处理方法,该系统包括分类收集单元、预处理单元、反应处理单元、深度处理单元、后处理单元和污泥处理单元。采用了“调节池+预处理+生物膜+MBR+RO+回用+后处理”的处理工艺,是对每一批次的污水单独按其化学性质进行分类进池,进行相对应的预处理,达到生化标准后统一进行生化,生化结束后再根据污水的不同性质进行后处理,以达到排放标准,能满足各种成分复杂洗舱废水的处理需求,系统处理后的废水水质优于同行业废水排放指标。本系统运行安全可靠、工艺流程经济合理。

标签:
废水处理
江苏 - 无锡 来源:北方有色网 2023-03-19
处理化工废水的氧化剂及其制备方法

本发明提供了一种处理化工废水的氧化剂及其制备方法,组成成分包括二次混合液、过氧化物、水、柠檬酸或柠檬酸水溶性盐;所述二次混合液由一次混合液与酵母裂解酶混合组成,所述过氧化物为过氧化氢和过氧化氢衍生物的混合物;所述一次混合液是由水、六偏磷酸盐、还原型谷胱甘肽及3‑磷酸甘油脱氢酶组成。本发明的氧化剂能持续快速释放多种强氧化性的高浓度氧化自由基,对于成分复杂的化工废水,可以高效降解去除;可以在pH 3~8的范围都能保持高氧化活性,活化剂用量少、处理药剂费用低,处理成本大大减少;能够解决目前化工废水面临的主要问题,以及满足化工废水处理技术趋势及需求。

标签:
废水处理
江苏 - 无锡 来源:北方有色网 2023-03-19
处理甲壳素医药废水的方法

本发明公开了一种处理甲壳素医药废水的方法,将甲壳素废水通入亚铁混凝反应池,使废水中的悬浮物得到大部分的去除,混凝反应后出水通过沉淀池,泥水分离。上清液通入生化系统,生化采用ABR厌氧/一级连续好氧/电催化氧化/BAF好氧降解有机污染物同时对废水总的有机氮进行氨化、硝化、反硝化;沉淀污泥外运处理,上清液达标排放。本发明运行成本低、出水经生化处理后,COD、氨氮、总氮完全达标排放,具有良好的环境效应。

标签:
废水处理
江苏 - 无锡 来源:北方有色网 2023-03-19
白炭黑洗涤废水处理装置

本实用新型公开了一种白炭黑洗涤废水处理装置,包括中空且具有开口的容水器,所述容水器的内部设置有沉淀区与流动区,所述流动区设置有缓冲台,所述缓冲台与所述容水器的侧壁相连接,所述缓冲台与所述容水器连接的侧壁之间设置有流道,所述流道与所述沉淀区连通;所述容水器的流动区的一侧壁设置有进水管,所述容水器的沉淀区的一侧壁设置有出水管,所述进水管高于所述缓冲台设置,且所述进水管的出水口与所述流道对应。该白炭黑洗涤废水处理装置能有效处理白炭黑洗涤废水、并节约水资源,减小环境污染。

标签:
废水处理
江苏 - 无锡 来源:北方有色网 2023-03-19
二氧化硅改性的重金属废水吸附剂及其制备方法

本发明公开了一种二氧化硅改性的重金属废水吸附剂及其制备方法,由以下组分按重量份数配比组成:二氧化硅19~32份、正硅酸四乙酯13~26份、3?氨丙基三乙氧基硅烷13~28份、水杨醛12~25份、二氯甲烷8~17份、无水乙醇8~19份、碳酸氢钠9~17份、硝酸铜7~19份、马来酸酐13~22份、戊二醛12~25份。(1)本发明所述二氧化硅改性的重金属废水吸附剂具有螯合作用的高度有序的介孔二氧化硅,具有大比表面积,孔道结构规整,孔径大且可调,高吸附容量;(2)本发明所述二氧化硅改性的重金属废水吸附剂对重金属离子的吸附具有高度选择性,改善了在低浓度污染时对重金属吸附的有效性。

标签:
废水处理
江苏 - 无锡 来源:北方有色网 2023-03-19
处理含高浓度丙烯腈亚砜废水的高效催化装置

本实用新型公开了一种处理含高浓度丙烯腈亚砜废水的高效催化装置,包括导向卡板、导轨板和催化筒,所述催化筒的内部设有多条催化灯管,且多条催化灯管围绕成圆环结构,所述催化筒的外侧居中处均设有透光罩,所述催化筒的一侧靠上位置处通过连接座设有导向卡板,所述导向卡板的一侧与导轨板连接。该实用新型的催化筒的内部设有六条催化灯管,且在催化筒的顶部一侧设有上液管,在上液管的一端设有接管头,通过其可以将废水送入到催化筒的内腔,使其可以对污水在其内部进行催化处理,此种方式适用于量少的废水的精密处理,催化筒的一侧通过导向卡板安装在导轨板上,且导轨板的中部设有螺杆,在导轨板的一侧设有电机,且电机与螺杆传动。

标签:
废水处理
江苏 - 无锡 来源:北方有色网 2023-03-19
新型印染废水预处理反应器

本实用新型公开了一种新型印染废水预处理反应器,包括:过滤装置,由上至下平行设置有多层筛网,且所述筛网的筛网间隙由上至下逐渐降低;吸附装置,设置在所述过滤装置的底部,所述吸附装置的进口与所述过滤装置底部的出口连通设置,且所述吸附装置内设置有用于吸附的填料。通过过滤装置及吸附装置实现印染废水的物理及化学吸附,以及多层筛网的设置可逐步增加过滤杂质的颗粒粒径,从而达到最优的过滤效果;可拆卸筛网与方形空腔体的配合,可实现筛网的可拆卸,便于清洗或更换筛网,实现废水处理的连续性处理,无需停止机器的运转。

标签:
废水处理
江苏 - 无锡 来源:北方有色网 2023-03-19
低碳氮比废水脱氮处理的高效复合碳源及其制备方法

本发明公开了一种低碳氮比废水脱氮处理的高效复合碳源及其制备方法,属于水处理领域,本发明的药剂由以下重量比组分制成:10‑25%葡萄糖,3‑5%糖蜜,1‑5%柠檬酸钠,10‑20%丙三醇,3‑5%甲酸钠,3‑8%乙酸钠,1‑3%无机磷盐,0.5‑1%微量元素,0.5‑2%生长因子,剩余为水;本发明的复合生物碳源制剂可满足微生物群中处于不同生长阶段的微生物所需营养,实现废水高效脱氮,根据废水水质添加无机磷盐、微量元素和生长因子等,可提高微生物群生长速率和碳源基质利用速率,进一步提高生物脱氮效率。

标签:
废水处理
江苏 - 无锡 来源:北方有色网 2023-03-19
三氯蔗糖废水的处理装置及使用方法

本发明公开了一种三氯蔗糖废水的处理装置,包括集水槽、厌氧反应器、好氧反应器、BAF反应器和深度氧化池,所述集水槽、厌氧反应器、好氧反应器、BAF反应器和深度氧化池依次相连。同时,本发明还公开了上述三氯蔗糖废水的处理装置的使用方法。本发明各反应器在各级分隔的空间中培养与该空间的底物组分和环境因子相适宜的微生物种群,防止各个单独空间中形成的污泥相互混合,不同部分产生的气体单独排放,不与其他部分混合,之间采用动力布水,使得废水在流动过程中与大量的活性生物量发生多次接触,大大提高了反应器的容积利用率,有效降低了出水COD浓度,提高了污水处理效率,固液分离效果好,耐冲击负荷,生物固体截留能力高的特点。

标签:
废水处理
江苏 - 无锡 来源:北方有色网 2023-03-19
氨氮废水多级吹脱系统
氨氮废水多级吹脱系统 1009     
 0

本发明公开了一种氨氮废水多级吹脱系统,包括废水收集池、水箱、排放池、高效吹脱塔、氨气吸收塔,所述高效吹脱塔从下至上设置有进气单元、吹脱单元和除雾单元,高效吹脱塔顶部设有吹脱塔排气口,所述高效吹脱塔上设有总进气口位于进气单元处,所述吹脱单元内从上至下依次设置有一号喷淋装置、填料层和水气分离装置,所述除雾单元内设置有填料层,所述吹脱单元和进气单元通过水气分离装置连通,废水收集池通过一号管道和一号喷淋装置连通,所述出水管和水箱连通,所述吹脱塔排气口和氨气吸收塔进气口连通;水箱出水口和排放池连通。

标签:
废水处理
江苏 - 无锡 来源:北方有色网 2023-03-19
水泥脱硫废水零排系统

本发明公开了一种水泥脱硫废水零排系统,包括调节池、澄清单元、介质过滤单元、超滤单元、纳滤单元和反渗透单元,所述调节池连接澄清单元,所述澄清单元连接介质过滤单元,所述澄清单元包括一级澄清池和二级澄清池,所述一级澄清池包括三联反应箱,所述介质过滤单元包括砂率器,所述砂率器分别连接有中间水池一和中间水池二,所述中间水池一与二级澄清池连接,所述中间水池二连接超滤单元,所述超滤单元包括UF膜组件和UF产水池。该种水泥脱硫废水零排系统,通过采用一级澄清池和二级澄清池,更好的捕捉和去除重金属、去除硬度,能耗低,运行成本低,实现水泥厂的脱硫废水进行深度零排放处理,不仅对泥水进行处理,还同时对污泥进行处理。

标签:
废水处理
江苏 - 无锡 来源:北方有色网 2023-03-19
带有自动加药的废水净化除污装置

本实用新型公开了一种带有自动加药的废水净化除污装置,具体涉及废水处理装置技术领域,包括安装板,所述安装板左端中部固定安装有驱动机构,所述驱动机构左部滑动安装有两个随动机构,所述料箱下端固定安装有下料斗,两个所述随动机构相互靠近的一侧共同固定安装有放料机构,所述驱动机构前部和后部均固定安装有恢复机构。本实用新型所述的一种带有自动加药的废水净化除污装置,将絮凝剂放入料箱内腔,开启外界搅拌装置对水体进行搅拌,然后开启伺服电机,通过传动皮带的传动等机械连接,使两个凹型板下向左移动,进而使滑板向左移动,使絮凝剂在重力的作用下间断或者无间断的进入水中,降低了处理的成本。

标签:
废水处理
江苏 - 无锡 来源:北方有色网 2023-03-19
上一页 59 60 61 62 63 ... 80 下一页
共80页    到第

北方有色为您提供最新的江苏无锡有色金属废水处理技术理论与应用信息,涵盖发明专利、权利要求、说明书、技术领域、背景技术、实用新型内容及具体实施方式等有色技术内容。打造最具专业性的有色金属技术理论与应用平台!

全国热门有色金属设备推荐
展开更多 +
全国热门有色金属技术推荐
展开更多 +

 

江西省隆恩特环保设备有限公司
宣传

报名参会
更多+

报告下载

有色专家
更多+

中南大学
中国工程院院士
昆明理工大学
校长
北京科技大学
副院长/教授
北京航空航天大学、中国工程院
院士
郑州大学
副校长
赤泥综合利用研究报告2025
推广

热门技术
更多+

推荐企业
更多+

福建省金龙稀土股份有限公司
宣传

发布

在线客服

公众号

电话

顶部
咨询电话:
010-88793500-807