青岛垚鑫智能科技有限公司
宣传

位置:中冶有色 >

有色技术频道 >

分类:
全部
矿山技术
冶金技术
材料制备及加工技术
环境保护技术
分析检测技术
 
全部
废水处理技术
大气治理技术
固/危废处置技术
土壤修复技术
地区:
全部
北京
天津
上海
重庆
河北
山西
辽宁
吉林
黑龙江
江苏
浙江
安徽
福建
江西
山东
河南
湖北
湖南
广东
海南
四川
贵州
云南
陕西
甘肃
青海
内蒙
广西
西藏
宁夏
新疆
其他
其他
展开
 
全部

有色金属环境保护技术理论与应用

免费发布技术信息>>
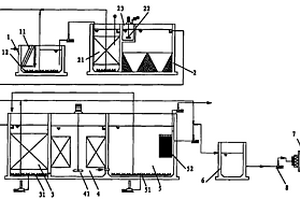
全自动废水处理系统
全自动废水处理系统 1124     
 0

本实用新型涉及废水处理的技术领域,具体为一种全自动废水处理系统,包括废水处理装置和电气控制装置,所述废水处理装置包括废水处理搅拌釜和药液罐,所述废水处理搅拌釜上设有搅拌组件、废水进料管线、药液加料管线和出料管线,所述搅拌组件包括电机、搅拌轴和搅拌桨,所述搅拌轴一端伸出釜盖采用电机驱动,另一端伸入釜体安装搅拌桨,所述废水进料管线、药液加料管线和出料管线上均设有流量泵和自控阀,所述药液加料管线一端接入废水处理搅拌器,另一端接入药液罐并插入药液罐底,所述电气控制装置与电机、废水进料管线、药液加料管线和出料管线上的流量泵和自控阀连接。本实用新型利用电气控制装置控制废水处理装置工作,有效减少了废水处理过程中的人工操作,提高了废水处理的自动化程度,有效降低了废水处理效果和效率对操作人员的依赖,提高了废水处理的效果和效率。

标签:
废水处理
重庆 - 重庆 来源:中冶有色网 2023-03-19
实验室废水综合处理装置

本实用新型涉及一种实验室废水综合处理装置,包括腔内设有微电解槽的混凝池,还包括调节池,所述调节池的出液端连通连接有废水处理反应池,所述废水处理反应池出液端连通连接混凝池,所述混凝池出液端连通连接上方安装有消毒装置的消毒池,所述消毒池的出液端连通连接内腔填有多介质滤料的复合生物处理装置,所述复合生物处理装置的出水端连通设有排水管;所述混凝池内部通过垂直设置的隔板分离成两个内腔,与所述混凝池进液端邻近的一侧所述内腔右上至下分别设有填料菌种架及微电解槽,与所述混凝池出液端邻近的另一侧所述内腔设有斜板沉淀槽。该实验室废水综合处理装置,出水可以达到可达到国家污水综合排放标准。

标签:
废水处理
江苏 - 苏州 来源:中冶有色网 2023-03-19
自动化控制制药废水蒸发设备

本实用新型公开了一种自动化控制制药废水蒸发设备,包括废水进水管、电磁阀a、减速器、电机、集气罩、排气管、设备体、搅拌轴、框式搅拌翅片、电磁阀b、排液管、支撑腿、电磁加热器、进入仓、温度感应传感器、开关组、STC12C5A16S2单片机、电气箱、液位观察管;采用开关组和STC12C5A16S2单片机的智能控制搅拌和加热,可有效地对制药废水进行搅拌浓缩与蒸发,而设备体一侧的液位观察管可方便观察内部的液位状况,具有智能控制效果好的优点,是理想的自动化控制制药废水蒸发设备。

标签:
废水处理
黑龙江 - 佳木斯 来源:中冶有色网 2023-03-19
适用于废水处理的铁炭微电解耦合厌氧反应器

本实用新型公开了一种适用于废水处理的铁炭微电解耦合厌氧反应器,包括设备壳体、电解反应室、曝气总管和高压水管;待处理的废水从进水口处首先进入进水预处理室,通过活性炭吸附包进行初步预处理;通过厌氧菌对废水进行微生物分解,再通过电解反应室通过铁炭进行分解处理;处理后水通过第二厌氧反应室,微孔陶瓷球随水流流动,使得厌氧菌泥团不断与处理水进行接触,同时微孔陶瓷球防止厌氧菌泥团颗粒与处理水混杂;处理后的废水进入沉淀室沉淀后上层水由导流槽进入溢流室从出水孔流出;通过气流和高压水流使得活性炭吸附包和微孔陶瓷球不断随处理水流动,增加接触面积,处理水在厌氧菌基层和填料层内流速加快,增加与厌氧菌基层和填料层接触面积。

标签:
废水处理
重庆 - 重庆 来源:中冶有色网 2023-03-19
适用于平顶房的含清洁剂废水二次利用系统

本实用新型涉及适用于平顶房的含清洁剂废水二次利用系统,它包括:平顶房、下水管、盥洗管、浴室地漏管、洗衣水管、集水池、暂存池、上水管、水泵、放水池以及马桶管;平顶房上的雨水和含清洁剂的废水统一收集在集水池和暂存池内,再通过水泵抽到楼顶的放水池内存储,冲厕时利用放水池与马桶之间的压力差完成冲厕。本实用新型将盥洗水、洗浴水等含清洁剂的废水进行有效回收,再配合平顶房楼顶回收的雨水,为冲厕用水提供了足够的水源,不仅实现了对含清洁剂废水的二次利用,而且也充分利用了天然的雨水资源,从而极大地节省了自来水的用水量。

标签:
废水处理
浙江 - 绍兴 来源:中冶有色网 2023-03-19
脱硫废水的零排放处理系统

本实用新型公开了一种脱硫废水的零排放处理系统,其包括软化预处理单元、膜浓缩单元、产水箱和蒸发结晶单元;软化预处理单元的浓缩槽的上清液出口与膜浓缩单元的管式微滤装置的进水口通过管道连通;膜浓缩单元的高压反渗透装置的产水出口与产水箱的进水口通过管道连通;高压反渗透装置的浓水出口与蒸发结晶单元的结晶进料罐的进水口通过管道连通。本实用新型的优点在于,本实用新型系统连接关系简单,易实现;提高了脱硫废水中水的回收再利用率;实现了废水中氯化钠的回收;本实用新型实现了脱硫废水的零排放和资源化综合利用,满足了现有环保的要求;大大降低了生产或购买新鲜蒸汽的量,运行成本较低;节约了大量水资源及电能。

标签:
废水处理
内蒙 - 鄂尔多斯 来源:中冶有色网 2023-03-19
化工废水臭氧多级处理系统

一种化工废水臭氧多级处理系统,包括进料泵、一级冷凝器、二级冷凝器、废水处理池、臭氧发生器,其特征在于:所述的进料泵出水口与一级冷凝器进水口连接,所述一级冷凝器出水口与二级冷凝器进水口连接,所述二级冷凝器出水口与废水处理池进水口连接;本实用新型采用了对废水降温方法,臭氧在低温水中的寿命大大提高,同时未反应完的臭氧进入到二级和三级处理池中,将臭氧进行综合利用。

标签:
废水处理
湖北 - 仙桃 来源:中冶有色网 2023-03-19
富盐有机废水高效环保处理装置

本实用新型涉及一种富盐有机废水的高效环保处理装置。目的是提供种药剂用量少,无需电子加速器及无需额外耗电、工艺简单、成本低、技术容易掌握、推广方便的富盐有机废水高效环保处理装置。技术方案是:富盐有机废水高效环保处理装置,该装置顺着废水处理流程依次设有带格栅和曝气器的调节池、带有pH调节池和加药斗的沉淀池、带曝气器的一级好氧池、带有pH调节池和加药斗的厌氧池、带曝气器和MBR膜组件的二级好氧池,各相邻池之间有连接水管连通并保持由高到低的高度落差,其中沉淀池、一级好氧池和二级好氧池经通过装有污泥泵的管道与污泥池相连,污泥池也经安装有污泥泵的管道与压滤机相连。曝气器均由风机和风管组合而成。

标签:
废水处理
浙江 - 杭州 来源:中冶有色网 2023-03-19
设有运行调节装置的高低温废水热回收热泵系统

本实用新型涉及一种设有运行调节装置的高低温废水热回收热泵系统。该系统包括热交换器、废水进出管道、净冷热水管道以及由制冷压缩机、蒸发器、冷凝器组成的水源热泵,和由调节阀组、温度传感器组、净热水箱组成的系统运行调节装置。本实用新型系统从根本上解决了当前废热水的热能回收系统不能对高温废水进行热能回收的问题,实现了同一套系统对排放的高、低温废水均可进行有效的热回收,经济效益、环境效益明显;本实用新型在现有的热交换器或热水源热泵组合系统上不需要增加高费用的其它设备投入,所增设的系统运行调节装置成本较低,而且系统工程改造简单;具有结构合理,高效节能,投入产出比高,系统运行费用低等优点。

标签:
废水处理
江苏 - 淮安 来源:中冶有色网 2023-03-19
处理维生素生产废水的方法

本发明公开了一种处理维生素生产废水的方法。该方法,包括如下步骤:(1)将维生素生产废水催化湿式氧化;(2)将维生素生产废水氧化液进行冷冻结晶,固液分离后得十二水磷酸氢二钠;(3)将冷冻结晶后分离的液体进行膜浓缩;(4)对膜浓缩所得到的透过液进行化学除磷;(5)将经所述化学除磷后的透过液进行蒸发除氯化钠盐;(6)将蒸发后的废液进行催化湿式氧化;(7)将废液氧化液的蒸发冷凝液进行生化处理。本发明的方法利用催化湿式氧化技术为主,耦合结晶、膜浓缩等工艺处理此废水,整个工艺做到资源化回收回收废水中盐分,达到零排放的目的。

标签:
废水处理
浙江 - 杭州 来源:中冶有色网 2023-03-19
具有光电催化性能的Ir掺杂钛基二氧化锡电极

本发明公开了一种具有光电催化性能的Ir掺杂钛基二氧化锡电极,其中Ir的掺杂量为5mol%‑25mol%,所述Ir掺杂钛基二氧化锡电极是将氯铱酸和四氯化锡按金属离子摩尔比1:3‑1:19混合、溶解制成涂液,经多次涂覆、固化、热氧化、冷却后再经退火制得。所得Ir改性的钛基二氧化锡电极对有机废水表现出较好的处理效果,可用于处理生物难降解有机废水。

标签:
废水处理
福建 - 福州 来源:中冶有色网 2023-03-19
磁性纳米吸附材料去除废水中阳离子有机染料的方法

本发明涉及一种磁性纳米吸附剂的制备及其去除废水中阳离子有机染料的方法,属于废 水处理技术领域。磁性纳米吸附剂以Fe3O4颗粒为载体,包覆腐殖酸为活性吸附成分,制备 方法为:在碱性腐殖酸溶液中加入氯化铁和硫酸亚铁混合溶液,在无氧、加热和搅拌条件下 反应,并经过磁性分离、洗涤、干燥研磨得到磁性纳米吸附剂。利用磁性纳米吸附剂处理阳 离子有机染料废水,亚甲基薷和中性红的去除率达到95%以上。磁力固液分离后的磁性纳米 吸附剂利用甲醇-乙酸溶液进行再生,脱附溶剂通过蒸馏回收甲醇和乙酸,并循环使用。本发 明的磁性纳米吸附剂具有纳米级尺寸和高活性表面基团,对阳离子染料的吸附去除率极高, 且工艺过程简单、高效、易于控制。

标签:
废水处理
北京 - 北京 来源:中冶有色网 2023-03-19
薄膜太阳能电池生产废水处理系统

本实用新型提供了一种薄膜太阳能电池生产废水处理系统,通过该系统处理薄膜太阳能电池的生产废水能够减少药剂添加量和污泥产生量并且污水处理效果好。其包括汽提精馏塔,所述汽提精馏塔的气相出口顺次连接有冷凝器、氨水储罐,其特征在于:其包括顺次连接的第一调节池、回收除镉反应器、废水收集罐、第一加热装置、所述汽提精馏塔,所述汽提精馏塔的液相出口顺次连接有除硫脲单元、第一pH调节池、混凝池、絮凝池、第二pH调节池、多介质过滤器、活性炭过滤器、保安过滤器、RO膜系统;所述回收除镉反应器包括过滤装置,用于对废水中的硫化镉无机颗粒进行过滤;所述除硫脲单元上设有过氧化氢加药口。

标签:
废水处理
江苏 - 无锡 来源:中冶有色网 2023-03-19
混凝絮体回流的污废水处理系统

本实用新型提供了一种混凝絮体回流的污废水处理系统,包括:混凝池、沉淀池和絮体浓缩池,所述混凝池、所述沉淀池和所述絮体浓缩池三者依次连通,所述絮体浓缩池又连接于所述混凝池,使所述混凝池、所述沉淀池和所述絮体浓缩池三者连接形成一循环,其中,所述混凝池用于污废水与混凝剂的混凝反应,以及所述混凝絮体与所述污废水的吸附反应;所述沉淀池用于所述混凝反应或所述吸附反应产生的沉淀物沉积、并分离出沉淀物,所述沉淀物为所述混凝絮体;所述絮体浓缩池用于浓缩所述混凝絮体。本实用新型的混凝絮体回流的污废水处理方法不仅能够提高混凝剂的使用效率,并且能够降低混凝剂用量及降低生产成本。

标签:
废水处理
广东 - 深圳 来源:中冶有色网 2023-03-19
基于硫协同电子载体进行重金属废水的生物法深度处理技术

一种基于硫协同电子载体进行重金属废水的生物法深度处理技术,它属于重金属废水处理领域。它要解决现有利用微生物处理重金属废水存在重金属离子的去除能力不高的问题。技术:一、向多级厌氧装置中加分子筛和污泥;二、向兼性厌氧装置中加污泥和生物增强剂;三、向好氧装置中加污泥;四、向重金属废水中加碳源和硫协同电子载体;五、进水进入多级厌氧装置、兼性厌氧装置和好氧装置;六、出水进入沉淀池然后排水。本发明中添加硫协同电子载体进行重金属废水的深度生物处理,提高了硫化物的生成速率和生成量,添加生物增强剂提高了微生物的活性及处理能力,提高了重金属的去除能力,并减少了污泥产量。本发明适用于重金属废水的生物法深度处理。

标签:
废水处理
江苏 - 苏州 来源:中冶有色网 2023-03-19
高效印染废水处理剂及其制备方法

本发明公开了一种高效印染废水处理剂,其原料组分包括:明矾10-15份、聚酰胺树脂30-40份、聚丙烯纤维15-20份、六偏磷酸钠18-22份、硅酸钠12-15份和粉煤灰15-20份,所述份数为质量份数。本发明高效印染废水处理剂具有高效的净化能力,可使纺织印染废水的COCcr的去除率高达到90%,对浊度的去除率高达95%,对色度的去除率可达95%。

标签:
废水处理
江苏 - 苏州 来源:中冶有色网 2023-03-19
硝化废水的处理方法
硝化废水的处理方法 937     
 0

本发明属于废水处理领域,尤其涉及一种硝化废水的处理方法。该方法包括以下步骤:将硝化废水与酸混合后送入微反应器的主进料口;然后与通过第一支进料口加入到微反应器内的氧化剂混合,并在加热条件下进行部分氧化反应;随后与通过第二支进料口加入到微反应器内的氧化剂混合,并在加热条件下进行完全氧化反应;接着在微反应器内进行冷却;之后与通过第三支进料口加入到微反应器内的碱混合;最后与碱混合后的废水从出料口排出微反应器。本发明提供的方法通过在微反应器内依次对硝化废水进行调酸、加热氧化、冷却和调碱处理,能够使废水中的有机物含量降低至30ppm以下。该方法具有处理速度快、本质安全、处理效率高和处理效果好等优点。

标签:
废水处理
宁夏 - 石嘴山 来源:中冶有色网 2023-03-19
处理无机硅胶生产废水的工艺方法

本发明涉及化工废水处理技术领域,尤其是涉及一种处理无机硅胶生产废水的工艺方法。所述方法包括以下步骤:1)将预处理后的硅胶生产废水进行电解除硅处理;2)将步骤1)电解除硅后的废水进行超滤处理,得到超滤处理水;3)将步骤2)所提供的超滤处理水进行反渗透处理,得到第一水体和第二水体;4)将步骤3)所提供的第二水体进行蒸发处理,得到无水硫酸钠。本发明可以有效除去硅胶生产废水中的可溶性硅,较好地解决了超滤膜和反渗透膜的结垢堵塞问题,大大延长了膜的使用时间,降低了处理成本,实现了无机硅胶生产废水的零排放。

标签:
废水处理
上海 - 上海 来源:中冶有色网 2023-03-19
畜牧业养殖废水的处理方法及其系统

本发明公开了一种畜牧业养殖废水的处理方法及其系统,属于养殖废水处理领域。一种畜牧业养殖废水的处理方法及其系统,通过对养殖场废水进行固液分离,不仅能够提高后续处理效率高,而且能将分离出的固体物质变废为宝,改善我国农村地区生态环境的同时也实现农业和畜牧业健康的发展。因此,对养殖场废水进行固液分离既具有社会效益又有经济效益,既可以解决粪渣在沼气池的淤积问题,避免残渣堵塞气孔,充分发挥处理工艺的作用;通过固液分离可以很大程度的降低废水中COD,降低厌氧处理的容积负荷,缩小了厌氧处理装置的容积和占地面积。

标签:
废水处理
贵州 - 铜仁 来源:中冶有色网 2023-03-19
用于高硫浓度烟气回收废水的处理系统及其施工工艺

本发明公开了一种用于高硫浓度烟气回收废水的处理系统及其施工工艺,属于环保设施设计制造技术领域。提供一种能显著降低石灰石‑石膏脱硫工艺产生的废水中的COD的用于高硫浓度烟气回收废水的处理系统及其施工工艺。本发明还提供一种采用所述处理系统处理高硫浓度烟气回收废水的施工工艺。所述的处理系统包括COD组成物超标处理装置、重金属超标处理装置、悬浮物凝结处理装置以及沉淀池,所述的高硫浓度烟气回收废水在上述部件中顺序的去除其中的COD组成物、重金属、悬浮物和其它杂质,最后在沉淀池中静置沉淀完成所述高硫浓度烟气回收废水的处理工作。

标签:
废水处理
四川 - 攀枝花 来源:中冶有色网 2023-03-19
用于印刷线路板油墨废水的处理装置

本发明公开了一种用于印刷线路板油墨废水的处理装置,包括三效蒸发器、活性炭过滤器、芬顿反应器和微生物氧化降解池,三效蒸发器输入端通过折型管连接有初沉池,所述三效蒸发器出水端通过连接有抽水泵输出至所述活性炭过滤器上端,所述活性炭过滤器出水端通过另一所述抽水泵连接有废水进口,所述废水进口通向所述芬顿反应器下端中间位置,所述芬顿反应器另一侧上端通过废水出口连接至所述微生物氧化降解池入水端,本发明通过初沉池、三效蒸发器、活性炭过滤器、芬顿反应器和微生物氧化降解池这五个工序组合,能有效去除水中色度等污染物,使废水达到排放要求,不但符合环境友好型的绿色环保理念,且节约水资源,符合目前工厂排放废水要求。

标签:
废水处理
江西 - 上饶 来源:中冶有色网 2023-03-19
丙烯酸酯生产废水的综合处理方法

本发明公开了一种丙烯酸酯生产废水的综合处理方法,包括如下步骤:A、混合丙烯酸酯生产过程中除催化剂水洗废水以外的其它废水,得混合废水;B、将步骤A所得混合废水的pH调节至6‑8后,加入链转移剂,在20‑40℃下搅拌溶解后,再加入引发剂,升温至45‑85℃,保温4‑10小时进行聚合反应;链转移剂为脂肪族硫醇、四氯化碳、甲酸钠、无机磷酸盐、辛醇、异丙醇、丙醇或丁醇中的至少一种;C、将步骤B所得物料冷却至室温,分离提纯,得到聚丙烯酸钠。本发明减少了丙烯酸酯生产废水的排放量;所得聚(甲基)丙烯酸钠水阻垢效果显著提升;成本低;通过链转移剂及分离方法的选择,使得分离出的聚丙烯酸钠质量纯度大于90%,分子量分散度较小可在1.2以下。

标签:
废水处理
江苏 - 常州 来源:中冶有色网 2023-03-19
养猪场废水的处理方法
养猪场废水的处理方法 1038     
 0

本发明提供一种养猪场废水处理方法,目的降低废水中COD、氨氮和重金属浓度,并实现废水中有机物部分转化为电能。该方法具体包括以下步骤:(1)养猪场废水进入固液分离装置进行固液分离;(2)完成固液分离后的废水进入厌氧反应器进行初步厌氧分解和沉淀;(3)厌氧反应器出水进入MFC反应器进行进一步处理;(4)厌氧反应器污泥和MFC反应器污泥进入污泥浓缩池;(5)污泥经浓缩池后进行脱水操作,脱水产生的废水再进入MFC;(6)步骤(1)和(5)产生的粪渣与污泥经发酵制作有机肥。与现有技术相比,MFC水处理技术具有能耗低,操作简单,去除有机物的同时去除重金属等优点,具有良好的应用前景。

标签:
废水处理
上海 - 上海 来源:中冶有色网 2023-03-19
头孢地尼合成工艺中的乙酸乙酯废水的处理方法

本发明提供一种头孢地尼合成工艺中的乙酸乙酯洗涤废水的处理方法,其特征在于,将头孢地尼的缩合步骤用到乙酸乙酯溶剂进行回收处理,对缩合母液进行常压蒸馏,收集80℃的馏分,得到的乙酸乙酯,用水洗涤除去三乙胺等碱性物质,乙酸乙酯与水的比例为1:0.5,保证回收的乙酸乙酯酸溶剂的pH=7~8,使其碱度符合要求;对乙酸乙酯进行三次水洗后形成了大量的废水,经重铬酸钾法检测发现COD值10万以上,严重超标,对废水进行常压蒸馏,收集80℃以下的馏分,其COD值明显下降,经重铬酸钾法检测COD值降至2万以下,将其输送至污水站做进一步处理。将乙酸乙酯废水处理后,既能回收原料乙酸乙酯,节约原料成本,又能降低废水COD值,在污水站废水处理时,节约处理成本。

标签:
废水处理
天津 - 天津 来源:中冶有色网 2023-03-19
超声协同微生物处理废水的装置

本发明提供的一种超声协同微生物处理废水的装置,包括反应器容器,反应器容器内设有隔板,隔板将反应器容器分成第一腔体和第二腔体;第一腔体上端设有废水进水管,废水进水管的管体上设有阀门;第二腔体内设有加热棒及温控传感器,第二腔体的下侧设有废水排水管和蠕动泵进水口,废水排水管内管口套有过滤袋;蠕动泵进水口通过管道依次连接蠕动泵、超声辐射室和出水口,出水口设于第一腔体上端;超声辐射室上方设有智能脉冲控制单元,超声辐射室下方设有若干个阵列排布的超声头,智能脉冲控制单元与超声头连接;反应器容器内底部设有若干曝气管。通过在装置中加入智能脉冲单元,可以智能控制工作时间和频率,循环装置处理废水,缩减了成本。

标签:
废水处理
江苏 - 南京 来源:中冶有色网 2023-03-19
喷漆废水处理工艺
喷漆废水处理工艺 744     
 0

本发明提供了一种喷漆废水处理工艺,将废水pH值调至4以下得到酸化液;对酸化液进行破乳得到破乳液;对破乳液进行生物降解;其中在破乳过程中,向酸化液中加入叔胺阳离子聚醚作为反相破乳剂;废水CODCr小于30000mg/L。采用该方法处理废水后废水的CODCr值从10000~25000mg/L降至小于300mg/L,达到GB8978-1996三级标准,整个工艺过程所需成本仅20~100元/吨废水。

标签:
废水处理
湖南 - 长沙 来源:中冶有色网 2023-03-19
利用氨基保护—改性—释放法制备的多孔壳聚糖凝胶球降解废水中橙黄II的方法

本发明公开了一种利用氨基保护—改性—释放法制备的多孔壳聚糖凝胶球降解废水中橙黄II的方法,所述方法包括以下步骤:取一定量的橙黄II废水并调节pH值为1.0~12.0,将一定量利用氨基保护—改性—释放法制备的多孔壳聚糖凝胶球添加到废水中,每升废水中的添加量以多孔壳聚糖凝胶球湿重计为1g~10g,在转速为100~200转/分钟的恒温振荡器中反应1~48h,并控制反应温度为10℃~50℃,反应完成后将多孔壳聚糖凝胶球从溶液中分离,完成对废水中橙黄II的去除。本发明具有成本低、操作方便、处理效率高,易于分离回收等优点。本发明可应用于皮革厂、纺织厂等废水的处理。

标签:
废水处理
湖南 - 长沙 来源:中冶有色网 2023-03-19
黄金冶炼酸性废水中酸和重金属回收的方法

本发明提供一种黄金冶炼酸性废水中酸和重金属回收的方法,酸性废水首先经过吸酸树脂,吸附废水中的硫酸,再加氧化剂将废水中的二价铁氧化为三价铁离子,再加铁黄晶种升温反应,调pH值至1.5-4.5,将废酸中的铁以铁黄的形式分离出去,再加锌粉置换废水中的铜,析铜后的水再调pH值至6.5-8.0,沉淀出氢氧化锌,除掉锌的废水再经过反渗透膜处理,反渗透的淡水可以回用于生产中,反渗透浓水去高压膜处理,高压膜处理的浓水去蒸发装置蒸发出硫酸钠等盐分,高压膜淡水回反渗透重新处理。吸酸树脂吸酸饱和后用去离子水再生得到15%-20%的硫酸。

标签:
废水处理
山东 - 潍坊 来源:中冶有色网 2023-03-19
高氨氮废水的蒸汽吹脱处理方法

本发明公开了一种高氨氮废水的蒸汽吹脱处理方法,属于废水处理技术领域,本发明的高氨氮废水的蒸汽吹脱处理方法,加热进入吹脱塔前的高氨氮废水温度至接近泡点温度,避免低温高氨氮废水进入吹脱塔后与高温水蒸汽接触后水蒸汽大量发生冷凝而导致增加了吹脱塔底部排出的废水量,可减少直接蒸汽的用量,降低水蒸汽的消耗,脱氨效率高达99%以上。

标签:
废水处理
湖北 - 武汉 来源:中冶有色网 2023-03-19
从高浓度含氟废水中回收氟化氢的方法

本发明属于废水处理技术领域,涉及一种从高浓度含氟废水中回收氟化氢的方法。所述的方法包括如下步骤:(1)将所述的高浓度含氟废水通过阳离子交换树脂,使其中的F‑转化为氟化氢;(2)将步骤(1)的F‑转化后的含氟废水通入富集用吸附树脂,通过洗脱或吹扫所述的富集用吸附树脂得到浓度提高的氟化氢溶液;(3)将浓度提高的氟化氢溶液通入精馏塔,塔底流出物为回收的氟化氢溶液。利用本发明的方法,能够处理更高浓度的含氟废水,处理过程几乎不产生固体废物,方法简便易行成本低,并且能将含氟废水中的F‑转化为高浓度的氟化氢进行回收利用。

标签:
废水处理
北京 - 北京 来源:中冶有色网 2023-03-19
上一页 4943 4944 4945 4946 4947 ... 5000 ... 5981 下一页
共5981页    到第

中冶有色为您提供最新的有色金属环境保护技术理论与应用信息,涵盖发明专利、权利要求、说明书、技术领域、背景技术、实用新型内容及具体实施方式等有色技术内容。打造最具专业性的有色金属技术理论与应用平台!

全国热门有色金属设备推荐
展开更多 +
全国热门有色金属技术推荐
展开更多 +

 

江西省隆恩特环保设备有限公司
宣传

报名参会
更多+

2025年10月15日 ~ 17日
2025年10月17日 ~ 19日
2025年10月31日 ~ 11月02日
2025年11月07日 ~ 09日

报告下载

有色专家
更多+

武汉理工大学
副主任/研究员
北京科技大学
教授
昆明理工大学
教授
长沙矿冶研究院
总经理
矿冶科技集团
副所长/研究员
赤泥综合利用研究报告2025
推广

热门技术
更多+

推荐企业
更多+

福建省金龙稀土股份有限公司
宣传

发布

在线客服

公众号

电话

顶部
咨询电话:
010-88793500-807