青岛垚鑫智能科技有限公司
宣传

位置:中冶有色 >

有色技术频道 >

> 固/危废处置技术

分类:
全部
矿山技术
冶金技术
材料制备及加工技术
环境保护技术
分析检测技术
 
全部
废水处理技术
大气治理技术
固/危废处置技术
土壤修复技术
地区:
全部
北京
天津
上海
重庆
河北
山西
辽宁
吉林
黑龙江
江苏
浙江
安徽
福建
江西
山东
河南
湖北
湖南
广东
海南
四川
贵州
云南
陕西
甘肃
青海
内蒙
广西
西藏
宁夏
新疆
其他
其他
展开
 
全部
北京

北京有色金属固/危废处置技术理论与应用

免费发布技术信息>>
微波高温裂解包含有机物的固体材料的连续操作方法

一种微波高温裂解包含有机物的固体材料的连续操作方法,该方法包括连续进行的以下步骤:将包含有机物的固体材料与液态有机介质混合;将所得混合物输送至微波场;在微波场中,在惰性气氛下或在真空下,将混合物连续地与强吸波材料接触,其中强吸波材料在微波下持续产生高温而使得包含有机物的固体材料与液态有机介质一起连续地裂解,实现了连续操作,过程连续、高效,可工业化,产物组成附加值高。

标签:
固废
北京 - 北京 来源:中冶有色网 2023-03-19
利用钻井固体废弃物制备免烧砖的装置

利用钻井固体废弃物制备免烧砖的装置,应用于石油钻井液固体废弃物制备免烧砖。特征是:在框架的底部固定有基座和底座。在基座上固定有下液压缸,在下液压缸的顶部固定有制砖模具。在制砖模具的上方固定有一个上液压缸。下液压缸与上液压缸在同一中心线上。在所述的底座上固定有三个液压泵和一个油箱。三个液压泵分别连接下液压缸、上液压缸和液压推动器。在框架上固定有卧式搅拌器。在卧式搅拌器出料口的下部有装料箱和推砖箱。装料箱和推砖箱连接液压推动器。效果是:减少设备占用空间,整体框架方便选择合适的作业地,减少制作成本。有效地解决了钻井废弃物带来的环境污染问题。

标签:
固废
北京 - 北京 来源:中冶有色网 2023-03-19
城市固体垃圾就地处理重型废物分离装置

一种城市固体垃圾就地处理重型废物分离装置,包括:垃圾清运车卸货点,水浴槽,方形网格,条形网格,背板,旋转耙子,水位,化验水取样设备,油重力分离器,化学加药点设备,加水器,泵,篮式过滤器,净化后的水支流管道系统,重液重力分离器,固体垃圾水浴刮运机,重型分级升降机,轻型分级升降机等,通过该装置,实现将重型废物分离并推向下一级处理系统,达到将无害化处理后的重型废物从水浴槽分离的目的。

标签:
固废
北京 - 北京 来源:中冶有色网 2023-03-19
农业有机固体废弃物循环利用处理装置和方法

一种农业有机固体废弃物循环利用处理方法,包括以下步骤:1)对不同种类的农业废弃物进行不同方式的物理预处理从而形成预处理过的物料,使不同种类的农业废弃物都易于发酵;2)将所述预处理过的物料送入发酵槽,所述预处理过的物料送入发酵槽的过程中将微生物DM激活剂与所述预处理过的物料进行混合;3)对送入所述发酵槽中的所述预处理过的物料进行翻堆,为微生物的工作和繁殖营造适宜的环境,同时为发酵物供氧,并实现散热功能;4)在所述发酵槽中发酵处理之后的物料进行出料。

标签:
固废
北京 - 北京 来源:中冶有色网 2023-03-19
固体废弃物和碱液循环脱硫脱碳系统

本实用新型公开的一种固体废弃物和碱液循环脱硫脱碳系统,属于沼气除杂提纯技术领域。包括碱性氧化物固体废弃物进料装置、搅拌装置、脱硫脱碳反应器、第一固液分离器、碱液再生反应装置和第二固液分离器。采用碱性氧化物固体废弃物和碱液对沼气进行脱硫脱碳,反应后的碱液能够通过碱液再生反应装置再生后循环重复利用。系统的原料来源广泛、节能环保、效率高;由于反应参数要求不高,对系统中的设备要求低,极大的降低了生产和运行成本,使系统容易构建;过程中产生多种副产物,经济效益好,具有良好的应用前景。

标签:
固废
北京 - 北京 来源:中冶有色网 2023-03-19
粘性固体废弃物处理装置及其处理方法和用途

本发明提供了一种粘性固体废弃物处理装置及其处理方法和用途,所述装置包括密相反应器、给料设备、热载体进料通道、气体出口、固体出口、风室、分布板、一次进气口、二次进气口和排渣管;其中,给料设备设置于密相反应器的中部,热载体进料通道位于密相反应器顶部,气体出口设置于密相反应器的顶部,固体出口设置于密相反应器的中部,风室位于密相反应器底部,分布板位于密相反应器和风室之间连接密相反应器和风室。本发明基于热载体颗粒在湍动过程中热量传递速度快,导热效率高于气体或液体的特点,在导热过程中能够通过颗粒摩擦群之间的碾磨作用快速将固体废弃物磨碎,进而解决了高粘性固体废弃物处理困难的问题。

标签:
固废
北京 - 北京 来源:中冶有色网 2023-03-19
一体化可燃固体废弃物干燥热解釜

本发明公开了一种一体化可燃固体废弃物干燥热解釜,包括釜体,釜体包括:外釜体;内釜体,内釜体的至少一部分设在外釜体内且与外釜体之间限定出夹层,内釜体内具有热解腔室和干燥腔室,内釜体上分别设有连通干燥腔室与外界的进料口和挥发产物出口以及连通热解腔室与外界的出料口,外釜体上分别设有连通夹层与外界的热解气入口、助燃剂入口和烟气出口。根据本发明实施例的一体化可燃固体废弃物干燥热解釜能够降低高含水率可燃固体废弃物的处理能耗,提高热解气的产量和品质,且不需要采用锅炉提供水蒸气作气化剂,结构简单,占地面积小,经济性优越,热源利用率高,可实现处理过程的能量自供给,大大节约了投资和经营费用。

标签:
固废
北京 - 北京 来源:中冶有色网 2023-03-19
模块式固体废弃物催化热解制备高值燃气的设备

本发明公开了一种模块式固体废弃物催化热解制备高值燃气的设备,其结构包括:控制模块、预处理模块、热解模块、二次催化模块、冷凝模块、净化吸收模块、液体收集模块以及气体收集模块。本发明根据处理物料性状及处理要求,启用选用相应模块工作,使用控制模块对系统进行控制,将反应装置温度、气体压力及流速、多级冷却系统温度、吸收液流速及回流比等调整在所需的温度、压力及流速范围内,并使其传热、传质均匀,最后将气体与液体产物存储在相应的存储模块中,实现固体废弃物催化热解制备高值燃气。本设备采用触摸屏操作,动态显示温度、压力、流速、时间等参数,自动、智能化程度高,人机交流简易、方便,可根据原料的性状以及处理程度、产品品质要求对生产过程进行模块化设计与组合,提高固体废弃物处理过程的效率与经济性。

标签:
固废
北京 - 北京 来源:中冶有色网 2023-03-19
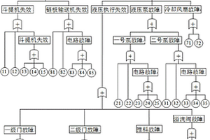
固体危险废弃物处置进料专家库诊断方法

一种固体危险废弃物处置进料专家库诊断方法,属于固体危险废弃物处置技术领域。通过逻辑图和故障树分析,将采集的信号通过定时器、计数器以及逻辑过程比对进行信号处理;在人机界面上进行故障预判和自诊断;对上料系统顺控过程每一个步骤进行精确定位,提出故障处理方案。本发明减少因上料系统出现的问题造成的生产断点,实现系统的自诊断自修复功能,使固体危废处置系统的安全稳定得到进一步的保障,减少因上料系统的问题带来人力和物力上的损失。通过诊断方法的实施,提升自动化控制水平及上料系统的运行能力。同时有效利用资源,逻辑清晰,在保证符合工艺要求的同时,也简化了系统的操作。

标签:
固废
北京 - 北京 来源:中冶有色网 2023-03-19
基于微波等离子体的固体废弃物无害化处理装置

本实用新型提供了一种基于微波等离子体的固体废弃物无害化处理装置,包括:裂解燃烧室和二燃室,所述裂解燃烧室与所述二燃室连通;所述裂解燃烧室和二燃室的室壁设置有等离子体炬;所述二燃室设置有折板,通过所述折板使得所述二燃室形成折线型烟道。本申请提供的基于微波等离子体的固体废弃物无害化处理装置能很好地满足船舶上舱室体积有限、维修困难、对可靠性要求高等要求,并且具有高温高能的特性,可以将废弃物中的有机组分几乎完全分解,将无机、炉渣、重金属等固化在玻璃体中,实现无害化处理。

标签:
固废
北京 - 北京 来源:中冶有色网 2023-03-19
环保新材料固体废物处理用防泄漏运输装置

本实用新型公开了一种环保新材料固体废物处理用防泄漏运输装置,包括底座、万向轮、推动把手、储物箱和支撑台,底座安装于万向轮顶部,推动把手安装于底座顶部一端,底座顶部中间位置安装有倒料机构,支撑台安装于倒料机构顶部,支撑台底部中间位置镂空设有滑道,支撑台顶部安装有减震机构,储物箱安装于减震机构顶部,通过减震机构对储物箱起到减震作用,大大降低了储物箱的颠簸程度,通过储物箱的盖板起到阻挡作用,储物箱内的环保新材料固体废物不容易漏到储物箱外侧,通过倒料机构将储物箱内的环保新材料固体废物倒出,不需要通过人工用手倒出,大大节省了人力。

标签:
固废
北京 - 北京 来源:中冶有色网 2023-03-19
有机固体废物堆肥发酵仓及堆肥反应器

本实用新型公开了一种有机固体废物堆肥发酵仓及堆肥反应器,该发酵仓中设置有用于将物料从该发酵仓的进料端搅动至出料端的搅拌装置(13),其中,该有机固体废物堆肥发酵仓包括从所述进料端向出料端间隔排列的多个隔板,所述多个隔板中包括至少两个下隔板(12)和至少一个上隔板(21),且所述下隔板(12)与所述上隔板(21)交替排列,所述下隔板(12)连接于所述发酵仓的底壁和侧壁并与所述发酵仓的顶壁间隔,所述上隔板(21)连接于所述发酵仓的顶壁和侧壁并与所述发酵仓的底壁间隔,其中所述上隔板(21)的上部形成有多个物料通过孔(211)。该有机固体废物堆肥发酵仓有利于物料发酵且能提高物料流动性。

标签:
固废
北京 - 北京 来源:中冶有色网 2023-03-19
焚烧处理固体废弃物过程中二噁英控制方法

本发明公开了一种焚烧处理固体废弃物过程中二噁英控制方法,涉及环境保护技术领域,包括:点火后超高温热解气化熔融炉炉体内温度在半小时内迅速升至800‑900℃,固体废弃物经过超高温热解气化熔融炉入口处依次启闭的三道活门进入炉体内燃烧,固体废弃物燃烧后炉体排放的飞灰和烟气由炉体后的集尘器收集,然后将所述集尘器收集的飞灰通过风管送至位于超高温热解气化熔融炉炉体底部的诱导炉内循环燃烧,固体废弃物全部燃烧,熄火后炉体内温度在一小时内迅速降温至200℃以下。本发明有效地控制了焚烧处理固体废弃物的过程中二噁英的生成,可达到GB 18485‑2014《生活垃圾焚烧污染控制标准》规定的0.1ng/m3的排放标准。

标签:
固废
北京 - 北京 来源:中冶有色网 2023-03-19
适合大规模城市的多重不确定性固体废物管理优化模型

一种适合大规模城市的多重不确定性固体废物管理优化方法。首先,分析大规模城市固体废物管理系统参数的特点,建立无限混合整数优化模型,解决经济成本参数的区间不确定性及功能不确定性,回答扩容与否问题;然后,将机会约束规划引入模型,以期解决固体废物处理设施的容量存在不确定性,建立多重不确定性固体废物优化模型,将模型分为两个子模型分别求解,再将两组解合并,研究求解方法;最终应用于大规模城市的固体废物管理优化系统当中。

标签:
固废
北京 - 北京 来源:中冶有色网 2023-03-19
基于机械力化学处理全氟和多氟化合物固体废物的方法

本发明公开了属于环境污染废物处理技术领域的一种基于机械力化学处理全氟和多氟化合物固体废物的方法,此方法在常温常压条件下,将全氟或多氟化合物固体废物与脱氟试剂混合后置于行星式高能球磨反应器内,利用机械力化学反应实现全氟和多氟化合物的高效降解和脱氟。本发明降解全氟及多氟化合物固体废物具有以下优点:工艺流程简单、反应条件温和(常温常压下即可)、反应能耗和运行成本相对较低、目标染物彻底分解并脱氟、最终产物完全无机化和无害化、过程中不会产生有害气体或液体。

标签:
固废
北京 - 北京 来源:中冶有色网 2023-03-19
城市固体有机废弃物干式厌氧消化装置

一种城市固体有机废弃物干式厌氧消化装置,其特征在于有一个竖进料仓,竖进料仓的下端连接一个横向混合进料筒,在横向混合进料筒的一个端面的底部,设有一个横向混合进料筒出料管,横向混合进料筒出料管连接一个柱塞泵,柱塞泵的出口连接一个罐体进料管,罐体进料管管上开口,分别连接两根进料管,两根进料管穿过干式厌氧消化罐的底部,干式厌氧消化罐的底部连接有一个倒圆锥体,倒圆锥体下方连接有一个竖向出渣管,竖向出渣管连接一个横向出渣管,横向出渣管连接一个回流仓。本实用新型结构简单,设置了进料混合装置,保证了城市固体有机废弃物的干式厌氧消化效率。该进料装置可广泛应用于城市固体有机废弃物干式厌氧消化领域。

标签:
固废
北京 - 北京 来源:中冶有色网 2023-03-19
有机固体废弃物高效堆肥装置

本实用新型涉及一种有机固体废弃物高效堆肥装置,包括筒仓,所述筒仓上方设有用于向所述筒仓内输送有机固体废弃物的入料装置,所述筒仓下方设有出料装置,还设有连接所述筒仓内部空间的曝气装置和引风装置,所述筒仓内设有支撑组件,所述支撑组件表面设有抗腐蚀涂层,所述支撑组件内部为空心通道并与所述曝气装置的出风口连通,所述支撑组件的表面上设有多个排气孔。所述堆肥装置还设有连接各装置的控制系统。本实用新型针对小规模固体废弃物处理提供一种结构简单、设计合理、运行维护便捷的堆肥装置,采用直立式筒仓的设计合理的利用了空间,智能化控制系统有助于简化操作过程,合理分配资源,使发酵周期显著缩短。

标签:
固废
北京 - 北京 来源:中冶有色网 2023-03-19
固体废弃物处理用焚烧回收装置

本实用新型公开了一种固体废弃物处理用焚烧回收装置,包括水流出口、废弃物隔离网、废弃物进入口和石灰水喷头,所述水流出口上方安装有火力控制器,所述粉碎切割刀上方连接有所述废弃物进入口,所述废弃物进入口下方安装有气体出口,所述气体出口下方安装有气体净化室,所述气体净化室下方连通有石灰水盛放箱,所述石灰水盛放箱上方安装有所述石灰水喷头,所述石灰水喷头下方安装有操作控制箱,所述操作控制箱上方安装有液晶显示屏,所述粉碎切割刀一侧安装有调刀轴。有益效果在于:能够有效对固体废弃物进行焚烧处理,同时能够对焚烧后空气进行净化,焚烧效果好,使用方便。

标签:
固废
北京 - 北京 来源:中冶有色网 2023-03-19
利用水泥窑协同处置固体废物入窑输送装置

本实用新型属于污染处理装置配套技术领域,尤其涉及一种利用水泥窑协同处置固体废物入窑输送装置,所述双螺旋送料设备一端设置固体废物入口,所述双螺旋送料设备另一端输出连接于活塞泵,所述活塞泵输出连接于前体分离器的一端,本实用新型解决了现有技术存在由于固体废物含有的杂质和有毒物质太多,如果不能在入窑前进行处理,容易导致燃烧产生的燃烧气体有害物质较多,从而影响大气排放的质量的问题,具有减少燃烧后的大气污染、生产效率高、入窑前处理、投资小的有益技术效果。

标签:
固废
北京 - 北京 来源:中冶有色网 2023-03-19
石化工业固体废弃物处理装置

本实用新型公开了一种石化工业固体废弃物处理装置,在粉碎轮上开设的横向轮齿易于粉碎轮组间啮合后固体废弃物的碾碎,设置两组的粉碎轮进一步粉碎固体废弃物,防止处理后的废弃物颗粒较大,易于对处理后的废弃物进行下一步转运和处理;在导流槽A和导流槽B内部的导流板可有效防止物料过多时影响粉碎轮的转动;螺旋出料管用于粉碎后的浆料输出;设置的两级粉碎装置可进一步的对固体废弃物进行粉碎;本实用新型具有结构紧凑、使用方便的特点,能够有效减少化工类固体废弃物对环境和人员的危害。

标签:
固废
北京 - 北京 来源:中冶有色网 2023-03-19
固体废料处理设备
固体废料处理设备 769     
 0

本实用新型涉及废料处理领域,公开了一种固体废料处理设备。包括送料装置、破碎装置、混合装置、卸料装置和焚烧装置,所述破碎装置、混合装置和卸料装置顺次连接;所述破碎装置包括顺次连接的进料斗、氮气防爆仓、第一破碎机和第二破碎机;所述氮气防爆仓顶部设有第一液压门,底部设有第二液压门,侧面设有第一管道,所述第一管道与氮气供给装置相连。本实用新型提供的固体废料处理设备通过使用罐车或叉车能够顺利将废料运输到进料斗中。通过两级破碎装置使物料破碎更为完全,方便物料的混合与燃烧。通过多重混合使物料混合更为均匀。

标签:
固废
北京 - 北京 来源:中冶有色网 2023-03-19
基于无人机平台的固体废弃物遥感监测系统

本实用新型涉及一种基于无人机平台的固体废弃物遥感监测系统,包括:无人机、搭载在无人机上的机载设备和地面站,机载设备包括控制器及与控制器连接的5G通信模块、北斗卫星定位模块、多光谱CCD相机和倾斜摄影相机,5G通信模块与地面站进行通信。本实用新型基于灵巧、低成本的无人机平台,一方面利用搭载的倾斜摄影相机对固体废弃物堆场内的环境进行无死角的拍照,所拍摄的影像数据回传给地面站后,可建立堆场的三维模型,便于对各个堆放点的位置、大小和形状进行监测,从而方便对堆放点进行规划管理,另一方面,利用搭载的多光谱CCD相机采集堆场内的各类固体废弃物和水体的不同波段的光谱特征,并生成光谱图像,并发回地面站进行生态环境分析。

标签:
固废
北京 - 北京 来源:中冶有色网 2023-03-19
对固体有机废物料进行微波预处理制备有机复合肥的方法

本发明涉及一种对固体有机废物料进行微波预处理制备有机复合肥的方法,其步骤如下:将固体有机废物料粉碎并筛分成颗粒状;固体有机废物料料为农作物秸秆、畜禽粪便、糖厂废渣或食物垃圾;用酸调节物料PH至酸性;采用微波辐射对固体有机废物料进行预处理;对经微波处理的固体有机废物料料进行自然堆置或微生物菌种接种的腐熟发酵,将腐熟后的有机物与氮、磷和钾肥进行复配,制得有机复合肥料。本发明采用微波对有机物进行预处理,其穿透力强、加热迅速、均匀且可杀菌;可迅速改变有机物大分子结构,使后续堆肥化腐熟时间缩短2~5倍;对环境保护和生态农业发展具重要意义。

标签:
固废
北京 - 北京 来源:中冶有色网 2023-03-19
生活小区固体废弃物回收利用方法

本发明涉及一种生活小区固体废弃物回收利用方法,包括下列步骤:(1)分拣和破碎,将大块的可回收物料和其他物料分拣出来;(2)水选,先分离出浮在水面上的轻物料,分离出沉在水底不被水流带走的重物料,然后再沉淀,沉淀后的物料为中物料;(3)将重物料进行分选,分离出金属物料和非金属物料;(4)将重物料分离出来的金属物料进一步分离,形成细分的金属物料备用;(5)将重物料分离处理的非金属粉碎备用;(6)将轻物料进行分选,分离出纸类、塑料类、木类备用;(7)将中物料进一步粉碎,投入沼气池进行厌氧沼气化处理,生产的沼气存储备用,沼气污泥压成滤饼备用。本方法可以更有效地回收和利用固体废弃物中的物质材料和能量,大幅度减少固体废弃物的最终处理量,减少环境污染。

标签:
固废
北京 - 北京 来源:中冶有色网 2023-03-19
无机固体废弃物用粘结剂和方法

无机固体废弃物用粘结剂和方法,所述无机固体废弃物用粘结剂具有良好的通用性,能够提高无机固体废弃物的资源化效率,其特征在于,包括以下四组物料,第一组物料包括金属氧化物和/或氢氧化物,第二组物料包括含磷化合物和/或含硫化合物,第三组物料包括三乙醇胺、木质素磺酸钙、木质素磺酸钠、硼酸和/或草酸,第四组物料包括粉煤灰、水泥、水泥熟料和/或矿粉。

标签:
固废
北京 - 北京 来源:中冶有色网 2023-03-19
可燃固体废弃物、生物质和煤高温共气化方法及装置

本发明公开了一种可燃固体废弃物、生物质和煤高温共气化方法及装置,该方法包括:对可燃固体废弃物和生物质依次进行分选、粉碎和干燥,然后与煤混合在一起,从而得到混合后物料;对混合后物料进行气化和燃烧,气化过程没有完全反应的混合后物料送入燃烧过程进行燃烧,燃烧过程产生的带有高温灰的烟气进行气固分离,分离出的高温灰送入气化过程为气化反应供热,从而使气化过程与燃烧过程耦合在一起。本发明不仅提高了煤气化后的煤气热值和能源利用率,节约了煤气化生产成本,而且环境友好,解决了可燃固体废弃物和生物质的综合处理利用问题,实现了能源的最大化利用。

标签:
固废
北京 - 北京 来源:中冶有色网 2023-03-19
多功能固体废物处理装置及其方法

本发明公开一种多功能固体废物处理装置及其方法,其包括壳体,壳体内设置有加热室,加热室的上部与炭化反应釜相连接,下部与缺氧反应仓相连接,前部与气体催化反应釜相连接;炭化反应釜的前端与气体催化反应釜的上部相连通,气体催化反应釜的下部与缺氧反应仓的前端相连接,气体催化反应釜上端设置有燃气出口,缺氧反应仓的后端与炭渣焚烧室相连通,炭化反应釜的后端设置有用于导入固体废物的密封式上料机构。具有适应性强,无害化处理彻底的特点;可处理生活垃圾、农业废弃物、医疗废弃物、动物尸体、家禽尸体等,处理废物是在无氧和缺氧条件下进行热分解,没有二恶英产生条件,不会对环境造成二次污染。

标签:
固废
北京 - 北京 来源:中冶有色网 2023-03-19
污水中固体废弃物的多级分离装置的工作方法

本发明涉及污水处理领域,具体是一种污水中固体废弃物的多级分离装置的工作方法,包括污水池、过滤机构、排废机构、悬浮物清理机构、沉淀剂抛洒机构和固体分离机构,所述污水池的一侧设有呈倾斜设置的进水板,进水板的两端均设有挡板,过滤机构固定安装在两个挡板的上端,排废机构位于过滤结构的旁侧,污水池内设有隔板,隔板将污水池分隔呈第一处理池和第二处理池,隔板上设有进水孔,所述悬浮物清理机构固定安装在第一处理池的上端,所述沉淀剂抛洒机构固定安装在第二处理池的上端,所述固体分离机构位于第二处理池的旁侧。本发明的有益效果是能够有效的避免过滤网堵塞的情况发生,且能够通过分级处理将污水中的固体废弃物充分分离出来。

标签:
固废
北京 - 北京 来源:中冶有色网 2023-03-19
有机固体废物并联序批式干式厌氧消化处理的工艺方法

本发明公开了属于环保技术领域的有机固体废物并联序批式干式厌氧消化处理的工艺方法。它设有四个序批式干式厌氧消化反应罐并联,每个反应罐对应有一个沼液收集池,即四个反应罐A、B、C、D分别对应a、b、c、d四个沼液收集池,每个沼液收集池均连接有液下泵和阀门。沼液经过液下泵进入沼液回喷总管,并根据据物料的消化进程,开启对应的阀门,进入相应的沼液回喷支管,通过喷淋装置将沼液均匀的喷洒到物料上。本工艺利用了产酸菌和产甲烷菌的最佳生长环境的差异,通过沼液的回灌,形成不同的工艺条件,以最大程度的激活两类厌氧硝化菌的活性,以加速有机固体废物的降解,提高产气速率。

标签:
固废
北京 - 北京 来源:中冶有色网 2023-03-19
微生物固体废物处理系统

本发明属于固体废物处理技术领域,尤其涉及一种微生物固体废物处理系统,包括罐体及与罐体连接的搅拌装置、空气装置、压力控制装置、温度控制装置、湿度控制和补水装置、测控装置;罐体罐盖设有接种口、进料口、取样口及液体进出口,罐体内设有PH电极;搅拌装置由电机、搅拌轴及搅拌桨组成;空气装置包括进气管和出气管;压力控制系统用于自动在线检测及控制所述罐体的压力;温度控制装置由模糊PID智能控制器、电加热及温度电极组成;湿度控制和补水装置包括二级过滤器及补水管路;测控装置与所述搅拌装置、空气装置、压力控制装置、温度控制装置、湿度控制和补水装置、PH电极连接。本发明适用于受控生态生保系统中微生物固体废物处理实验。

标签:
固废
北京 - 北京 来源:中冶有色网 2023-03-19
上一页 215 216 217 218 219 ... 226 下一页
共226页    到第

中冶有色为您提供最新的北京有色金属固/危废处置技术理论与应用信息,涵盖发明专利、权利要求、说明书、技术领域、背景技术、实用新型内容及具体实施方式等有色技术内容。打造最具专业性的有色金属技术理论与应用平台!

全国热门有色金属设备推荐
展开更多 +
全国热门有色金属技术推荐
展开更多 +

 

江西省隆恩特环保设备有限公司
宣传

报名参会
更多+

报告下载

有色专家
更多+

矿冶科技集团
副所长/研究员
中南大学、中国工程院
院士
中国有色金属工业协会
教授级高级工程师
中国工程院 / 中南大学
中国工程院 院士
东华理工大学
院长
赤泥综合利用研究报告2025
推广

热门技术
更多+

推荐企业
更多+

福建省金龙稀土股份有限公司
宣传

发布

在线客服

公众号

电话

顶部
咨询电话:
010-88793500-807