青岛垚鑫智能科技有限公司
宣传

位置:北方有色 >

有色技术频道 >

> 固/危废处置技术

分类:
全部
矿山技术
冶金技术
材料制备及加工技术
环境保护技术
分析检测技术
 
全部
废水处理技术
大气治理技术
固/危废处置技术
土壤修复技术
地区:
全部
北京
天津
上海
重庆
河北
山西
辽宁
吉林
黑龙江
江苏
浙江
安徽
福建
江西
山东
河南
湖北
湖南
广东
海南
四川
贵州
云南
陕西
甘肃
青海
内蒙
广西
西藏
宁夏
新疆
其他
其他
展开
 
全部
济南
青岛
淄博
枣庄
东营
烟台
潍坊
济宁
泰安
威海
日照
滨州
德州
聊城
临沂
菏泽

山东淄博有色金属固/危废处置技术理论与应用

免费发布技术信息>>
火电厂废水排流过滤装置

本实用新型提供了一种火电厂废水排流过滤装置,属于废水处理技术领域,包括基槽,基槽内部嵌入设置有过滤板,基槽顶部固定连接有盖板,基槽内部焊接设置有基座,基槽左侧从下至上依次嵌入设置有排水口和进水口,过滤板上方固定连接有斜板。该种火电厂废水排流过滤装置设置过滤板和搅动辊,通过水流压力的挤压和推送,将废水中的液体挤压穿过过滤板向下分离,使得固体杂质停留在过滤板中,达到便利固液分离的目的,同时利用搅动辊转动带动其上方的叶片摆动,进而使得废水中的杂质被搅动,在离心力作用下甩动至斜板,提高废水的固液分离效率。

标签:
固废
山东 - 淄博 来源:北方有色网 2023-03-19
丙烯腈电解生产己二腈废电解液处理循环利用装置

本实用新型公开了一种丙烯腈电解生产己二腈废电解液处理循环利用装置,涉及己二腈产品技术领域,包括废电解液预处理装置、金属离子捕集处理装置和处理后电解液过滤纯化装置,废电解液预处理装置、金属离子捕集处理装置和处理后电解液过滤纯化装置通过管路依次连通。本实用新型采用化学反应处理和物理分离相结合的方法,将丙烯腈电解产生的废电解液中的金属离子去除,周期短,处理环节少,采用自行合成的苄基乙二胺类捕集剂和二硫代氨基甲酸盐类金属离子捕集剂对废电解液金属离子进行处理,反应后的金属离子形成固体沉淀,不残留在处理后的电解液中,处理后的电解液可以得到有效的循环再利用,降低原材料的消耗,节约生产成本。

标签:
固废
山东 - 淄博 来源:北方有色网 2023-03-19
六氟化硫生产过程中废料回收再利用的方法

本发明涉及废料回收再利用技术领域,具体涉及一种六氟化硫生产过程中废料回收再利用的方法。所述的六氟化硫生产过程中废料回收再利用的方法,包括以下步骤:将电解槽中取出的废料加水溶解;向废料中加入过氧化氢溶液,反应后得到废料溶液;配置氢氧化钾溶液;将氢氧化钾溶液加入到废料溶液,加热溶解;溶解完成后,将上层清液泵入结晶釜,通入冷媒,降温结晶;将结晶后的混合溶液投入离心机,至离心完全;将离心后溶液回入母液罐再利用,将离心后的固体物质进行干燥,得到无杂质的氟化氢钾产品。本发明提供一种六氟化硫生产过程中废料回收再利用的方法,实现了氟化氢钾的回收和循环利用,降低了生产成本,避免了对环境造成危害。

标签:
固废
山东 - 淄博 来源:北方有色网 2023-03-19
氯碱废水正渗透处理系统及处理工艺

本发明公开了一种氯碱废水正渗透处理系统,包括正渗透处理单元,其中:所述正渗透处理单元包括正渗透膜组件,所述正渗透膜组件的浓缩废水出口依次连接有蒸发结晶单元和离心脱水单元,所述正渗透膜组件的汲取液入口连接有一次盐水储罐,所述一次盐水储罐中具有提供给所述正渗透组件的汲取液。本发明还公开了氯碱废水的处理工艺,其处理步骤包括:a、以氯化钠溶液作为汲取液对废水进行正渗透处理;b、对正渗透处理产生的浓缩废水进行蒸发结晶处理;c、对蒸发结晶处理产生的固相进行脱水处理,处理产生的液相返回至步骤b中进行处理,产生的固体盐回收或外排。本发明的处理系统及工艺,工艺简单、运行成本低,并可实现氯碱废水的再生及零排放。

标签:
固废
山东 - 淄博 来源:北方有色网 2023-03-19
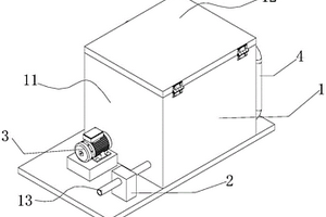
生活废水回收利用装置

本发明公开了一种生活废水回收利用装置,包括加工箱,所述加工箱左上端设有加料管和位于加料管上端的加料斗,加工箱内部设有矩形状的安装框,安装框左右两侧边框中间位置架设有安装板,本发明结构简单、合理,便于搬运,高度可调,在驱动电机的带动下过滤传输带会逆时针转动,废水从加料斗进入加工箱后会落在过滤传输带上,这样就会将废水中的固体杂质除去,并且固体杂质会随着过滤网运动,然后被集杂机构收集,在进行过滤的时候偏振机构会使得过滤传输带上下颤动,从而提高了过滤效果,有助于使得水快速脱离过滤网,而且这种左高右低的设置方式也避免水从沿着过滤网流入集杂机构,从而消除了现有装置存在的弊端,实用性强。

标签:
固废
山东 - 淄博 来源:北方有色网 2023-03-19
化工废料处理装置及化工生产系统

本发明公开了一种化工废料处理装置及化工生产系统,其巧妙性通过将絮凝池、沉淀池、调节池、兼氧池、好氧池、微藻处理池和中转池进行依序相连,絮凝池、沉淀池和调节池之间分别通过第一引流组件和第二引流组件进行被动式虹吸引流,进一步配合第三水泵和第四水泵,使得絮凝池与沉淀池之间、沉淀池和调节池之间既可主动进行废水传输,也可以实现虹吸式被动传输,另外,絮凝池、污泥池、调节池下部的沉淀物被输送至污泥池,再由污泥脱水机进行固液分离,经分离的废水被回输至沉淀池,实现了造纸废水的充分净化处理,而分离出的固体物质可以作为肥料进行资源化利用,造纸废水经兼氧、厌氧和藻类净化处理后再外排,使得排出的水对环境友好、无污染。

标签:
固废
山东 - 淄博 来源:北方有色网 2023-03-19
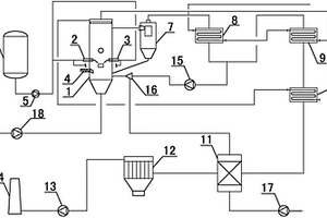
针对钢丝表面处理产生废液的环保处理工艺及设备

一种针对钢丝表面处理产生废液的环保处理工艺及设备,本发明属于金属表面处理领域。其特征在于包括中和池、蒸发器、一级过滤罐、二级过滤罐、废液收集箱和膜处理器;在中和池的下部设置除渣分离过滤设备;所述除渣分离过滤设备能够将沉淀池内的液体和固体残渣分离;经过除渣分离过滤设备分离的清液能够通过清液泵注入蒸发器,所述蒸发器能够将注入的液体通过蒸发分离出固体颗粒盐和蒸发液,所述蒸发液经过一级过滤罐和二级过滤罐后,进入膜处理器的原水入口,经过膜处理器分离出的清液直接排放或收集起来再利用;经过膜处理器分离出的浓水进入废液收集箱。本发明能够科学有效的处理旧工作液,令其物尽其用的同时,实现低成本环保排放。

标签:
固废
山东 - 淄博 来源:北方有色网 2023-03-19
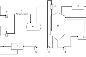
生产氧化铝产生的碳酸钠高盐浓废水资源化装置

本实用新型涉及一种生产氧化铝产生的碳酸钠高盐浓废水资源化装置,涉及高盐废水处理技术领域,用于对碳酸钠高盐浓废水进行资源化处理,从而达到回收氢氧化钠碱溶液的目的,本实用新型的生产氧化铝产生的碳酸钠高盐浓废水资源化装置,包括废水箱、苛化装置和回收箱,含有碳酸钠的高盐浓废水在反应器中与氧化钙进行反应,生成的碳酸钙等固体沉淀以滤渣的形式进行排放,生成的氢氧化钠碱液即可进行回收利用,整个处理过程不仅可以达到零污染零排放而且为后续的收集和二次利用提供了便利的条件。

标签:
固废
山东 - 淄博 来源:北方有色网 2023-03-19
含高浓度余氯碱性废水除磷及余氯的方法

本发明属于化工废水处理领域,具体涉及一种含高浓度余氯碱性废水除磷及余氯的方法。采用含高浓度余氯的碱性废水、亚铁盐类及钙盐的酸性废水,充分利用碱性废水中的高浓度次氯将亚铁盐氧化成三价铁盐,控制出水pH值,三价铁离子及钙与污水中的溶解性的磷酸盐结合形成非溶解性盐沉淀,在此过程中三价铁同步水解产生氢氧化物,而氢氧化物会形成大块的絮凝物凝聚在一起,并且吸附固体悬浮物中所含的磷成份,进而降低废水中总磷含量。本发明采用亚铁盐代替传统除磷工艺所用聚铁,利用碱性废水中的高浓度次氯,不仅能除磷,还能解决碱性废水处理后因余氯高无法返回车间综合利用或直接排放的难题。本方法可操控性好、成本低廉,社会、环境保护效益好。

标签:
固废
山东 - 淄博 来源:北方有色网 2023-03-19
化工废料处理装置及处理工艺

本发明属于化工废料处理技术领域,具体涉及一种化工废料处理装置及处理工艺。化工废料处理装置包括反应器,反应器的侧部设置有第一料枪、第二料枪和固料输送机,反应器、旋风分离器、前换热器、后换热器、节能换热器、空气预热器、除尘器、排风机与烟囱依次相连,高温风机分别与前换热器、后换热器相连,高温风机、烟气混合器与反应器依次相连,烟气混合器与空气预热器相连,节能换热器与反应器相连,二次风机与空气预热器相连,一次风机与反应器相连。本发明采用废油、废气、固体化工废弃物同时进入反应器进行处理。废气可以作为预热能源,而无需再采用重油、天然气作为预热能源,成本较低。

标签:
固废
山东 - 淄博 来源:北方有色网 2023-03-19
油罐清洗废气处理工艺

本发明涉及一种油罐清洗废气处理工艺,属于废气处理技术领域。所述的处理工艺是将油罐清洗废气在引风机的作用下由收集管道进入碱洗涤塔,将油罐清洗废气中的水溶性组分经碱液洗涤后去除,同时对废气中的油滴进行破乳,然后送入三相多介质催化氧化塔,在载有催化剂的固体填料表面及孔隙内与类芬顿试剂进行氧化反应,最后在活性炭吸附塔内进行深度净化后排放至大气。本发明解决了常规油罐清洗废气处理工艺中存在的净化效率低、适用范围有限、净化成本高、产生二次污染等问题,对油罐清洗废气中的污染成分均具有较高的去除率,采用预处理、核心处理和深度净化的组合,具有工艺布局合理、净化效率高、操作简单的特点。

标签:
固废
山东 - 淄博 来源:北方有色网 2023-03-19
从含氟废水中回收氟化铝的方法

本发明属于氟化铝回收技术领域,具体的涉及一种从含氟废水中回收氟化铝的方法。将氢氧化铝经气流粉碎装置粉碎后,在流化床反应器内与氟化氢气体直接作用制备干法氟化铝;从流化床反应器上部出来的尾气经三级旋风收尘器固气分离,所得气体经大气冷凝水喷淋形成含氟废水,含氟废水进入卧式离心机进行固液分离,所得固体经烘干、精分和筛选后得到氟化铝。本发明所述的从含氟废水中回收氟化铝的方法,通过设置气流粉碎装置和旋风收尘器使得原料利用效率大大提高,产出比稳定可靠,且不会造成HF气体的浪费,有助于提升产量。

标签:
固废
山东 - 淄博 来源:北方有色网 2023-03-19
电镀废水零排放处理工艺及其装置

本发明涉及工业废水处理领域,具体是一种电镀废水零排放处理工艺及其装置,处理工艺包括以下步骤:1)电镀废水首先进入微电解系统,进行铁碳微电解处理;2)经过上一步处理后,进行除重金属处理;3)经过上一步处理后,进入生化系统,进行微生物分解处理;4)经过上一步处理后,进入平板陶瓷膜池进行过滤;5)经过上一步过滤后,进入反渗透系统进行过滤;6)经过上一步过滤后,淡水回用于生产,浓水加碱软化后进入管式陶瓷膜过滤;7)经过上一步过滤后的产水进入二次膜浓缩设备进一步浓缩,淡水回用,浓水进入蒸发设备蒸发,最后结晶成固体盐。本发明实现了电镀废水的零排放。

标签:
固废
山东 - 淄博 来源:北方有色网 2023-03-19
利用极细颗粒钼尾矿和废石的高强混凝土及其制备方法

本发明公开了一种利用极细颗粒钼尾矿和废石的高强混凝土,包括以下质量份的原材料:废石粗骨料41~48份;钼尾矿砂细骨料22~34份;复合胶凝材料掺合料27~31份;高效减水剂0.1~0.2份;水5~12份;所述复合胶凝材料掺合料包括以下质量份的原材料:磨细钼尾矿10~15份;磨细水泥熟料4.5~9.5份;磨细铜尾渣8.5~10份;磨细脱硫石膏2~3份。本发明同时还公开了该混凝土的制备方法。经实验,最终高强混凝土28d龄期抗压强度高达70MPa,固体废弃物的利用率达到90%以上,实现了资源的循环利用,具有较高的经济和社会效益。

标签:
固废
山东 - 淄博 来源:北方有色网 2023-03-19
活性炭催化木塑复合材料废弃物热解制备芳烃的方法

本发明属于生物质能及固体废弃物资源化利用领域,具体涉及一种活性炭催化木塑复合材料废弃物热解制备芳烃的方法。本发明是以木塑复合材料废弃物为原料,活性炭为催化剂,所述活性炭由生物质通过磷酸活化法制备获得;将二者分别放入固定床反应器中在惰性气体氛围下进行催化热解,对热解气进行冷凝后即可得到富含芳香烃的液体产物;本发明为木塑复合材料废弃物的资源化利用提供了一条新途径,同时以廉价易得的生物质活性炭为催化剂,能产生良好的环境效益和经济效益。

标签:
固废
山东 - 淄博 来源:北方有色网 2023-03-19
酸碱中和法处理乙烯裂解所产生废碱的系统

本实用新型涉及废碱液处理技术领域,具体是一种酸碱中和法处理乙烯裂解所产生废碱的系统,包括废碱罐及硫酸罐,废碱罐及硫酸罐分别通过输送装置连接混合器,混合器通过管道连接盐水缓冲罐,盐水缓冲罐的下部输出端通过输送泵连接三效蒸发结晶装置,三效蒸发结晶装置的输出端分别连接水回用系统及固体硫酸钠收集系统,盐水缓冲罐的顶部输出端连接硫磺装置。本实用新型可将酸碱中和法处理乙烯产生的废碱液产生的污染降到最小,实现环境友好型生产。

标签:
固废
山东 - 淄博 来源:北方有色网 2023-03-19
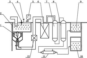
热处理设备的废气处理系统

本实用新型公开了一种热处理设备的废气处理系统,包括用于与热处理设备的炉顶排气口连接、以将废气导出的集气管,集气管的出气口的气体通道依次设有用于去除废气中固体废物的过滤除尘设备、用于去除废气中酸性物质的喷淋塔、用于去除废气中挥发性有机物的挥发性有机物处理设备以及用于将废气排出的排出设备,还包括用于驱动废气流动的气体驱动设备。本申请提供的热处理设备的废气处理系统对废气中的粉尘、酸气、焦油、挥发性有机物等大气污染物进行多级处理,保证氧化铝纤维生产的过程中产生的废气达标排放,减小环境污染。

标签:
固废
山东 - 淄博 来源:北方有色网 2023-03-19
针对钢丝表面处理产生废液的环保处理设备

一种针对钢丝表面处理产生废液的环保处理设备,本实用新型属于金属表面处理领域。其特征在于包括中和池、蒸发器、一级过滤罐、二级过滤罐、废液收集箱和膜处理器;在中和池的下部设置除渣分离过滤设备;所述除渣分离过滤设备能够将沉淀池内的液体和固体残渣分离;经过除渣分离过滤设备分离的清液能够通过清液泵注入蒸发器,所述蒸发器能够将注入的液体通过蒸发分离出固体颗粒盐和蒸发液,所述蒸发液经过一级过滤罐和二级过滤罐后,进入膜处理器的原水入口,经过膜处理器分离出的清液直接排放或收集起来再利用;经过膜处理器分离出的浓水进入废液收集箱。本实用新型能够科学有效的处理旧工作液,令其物尽其用的同时,实现低成本环保排放。

标签:
固废
山东 - 淄博 来源:北方有色网 2023-03-19
含氯盐有机废水的处理方法

本发明属于有机废水处理技术领域,具体涉及一种含氯盐有机废水的处理方法。预先在氧化反应器中加入无机熔盐水合物,然后升温,向氧化反应器中加入氧化剂和预热后的含氯盐有机废水进行第一次氧化反应,得到小分子有机物和固体氯盐,小分子有机物随着气体进入装填有固体催化剂的二次氧化装置进行第二次氧化反应,得到水和二氧化碳;无机熔盐水合物的制备方法是将无机盐溶于水中制得;固体催化剂为Ce/SBA‑15、Cu/SBA‑15或Ce‑Cu/SBA‑15中的一种。本发明巧妙的利用了同离子效应,将氯盐进行分离;无机熔盐水合物具有一定的温升效应,可以实现常压下有机物的快速氧化转化为小分子有机物。

标签:
固废
山东 - 淄博 来源:北方有色网 2023-03-19
甘氨酸生产废水中硫酸钠的回收利用工艺

本发明属于甘氨酸生产废水处理回收技术领域,具体涉及一种甘氨酸生产废水中硫酸钠的回收利用工艺。所述甘氨酸生产废水中硫酸钠的回收利用工艺:将甘氨酸生产废水经过滤,除去废水中的固体杂质和悬浮杂物,得到除杂后的废水;在除杂后的废水中加入无水乙醇进行混合,然后静置分层,将上层水相和下层有机相分离,得到水相以及有机相;将水相进行精馏,蒸出乙醇,得到含硫酸钠的塔釜液,进行蒸发浓缩,洗涤、干燥,得到最终产品硫酸钠。本发明将甘氨酸生产废水中的硫酸钠进行高效回收,整个回收处理工艺绿色环保,提高了产物甘氨酸的产率,同时硫酸钠的回收率高、纯度高,增加了生产效益。

标签:
固废
山东 - 淄博 来源:北方有色网 2023-03-19
处理纯化骨胶原蛋白的阴阳离子交换树脂再生废液的设备

本实用新型涉及一种处理纯化骨胶原蛋白的阴阳离子交换树脂再生废液的设备,包括依次设置、相邻连接的第一、二再生池、混合釜、第一、二反应池、过滤设备、第三、四反应池,第一反应池上设置有碳酸钠投料口,第二反应池上设置有碳酸氢铵投料口,过滤设备的固体排出口与第三反应池相连接,第三反应池上设置有烧碱溶液注入口,第四反应池上设置有氢氧化钙溶液注入口,第四反应池的出液口与烧碱储液槽相连接。上述技术方案中,可有效对酸浸槽中的废渣液进行处理,且处理后的产物为盐水、氯化铵、烧碱;烧碱和盐水可以用于鹿骨胶原蛋白提取的其他工序,氯化铵可以作为养鹿牧草的肥料进行施肥,实现变废为宝,废物利用。

标签:
固废
山东 - 淄博 来源:北方有色网 2023-03-19
医学护理用的废弃物回收装置

本实用新型公开了一种医学护理用的废弃物回收装置,包括第一壳体和第二壳体,所述第一壳体固定连接在第二壳体的上端,且第一壳体与第二壳体连通设置,所述第一壳体的上端固定连接有与其连通的筒管,所述第一壳体内固定连接有水平的支撑板,所述支撑板的上端开设有条形槽,所述条形槽内壁上转动连接有螺纹杆,且螺纹杆远离条形槽的一端延伸至第一壳体的外侧并固定连接有第一旋钮,所述螺纹杆的外侧螺纹连接有移动块,所述移动块的上端固定连接有竖板,所述竖板与支撑板之间设置有导料机构。本实用新型能够对固体废弃物和液体废弃物进行分类回收,并且相对的增加了固体废弃物收集的空间,提高回收装置的适用性,便于医护人员的使用。

标签:
固废
山东 - 淄博 来源:北方有色网 2023-03-19
综合利用碳纤维增强复合材料和赤泥废弃物的方法

本发明涉及碳纤维增强复合材料废弃物回收利用领域,具体方法是常温常压下将其浸泡在渗透降解剂中,使树脂基体溶胀降解,分离再生碳纤维或其填料,同时将渗透废液加入到赤泥和黏土中制备建筑保温材料。本发明的目的是要解决碳纤维增强复合材料中高价值碳纤维的再生和赤泥固体废弃物的综合利用问题,该方法的优点是在常温常压下处理碳纤维增强复合材料废弃物,工艺流程简单,不需要进行预加工,可以直接处理大尺寸碳纤维增强复合材料,节省了破碎和粉碎的费用,不需要进行加热,降低了能耗,再生碳纤维或填料不受腐蚀,纤维损伤小,表面处理干净完全,渗透分离废液可以作为建筑保温材料的粘接剂和造孔剂,完全实现以废治废,变废为宝的循环经济。

标签:
固废
山东 - 淄博 来源:北方有色网 2023-03-19
有机氟化物生产中废液的处理方法

本发明涉及一种有机氟化物生产废液的处理方法,包括步骤为:将废液通入盛有碱液的反应釜中,废液的量为碱液质量的0.1%~2.5%,反应时间为1~60min;反应完后静置沉淀,分出上层液体;下层物料沉淀在釜的下部;重复以上操作直至沉积的物料高度接近或达到溢流口时停止;通入蒸汽加热反应釜内的物料分离出沉淀中的有机组分,温度70~150℃,馏出的有机物经冷凝收集后处理;釜底的固体物料放出后烘干得到纯度较高的锑酸钠成品。本发明的方法操作简单,处理所用碱液可使用工业生产废碱,成本低,处理过程中产生的废水经处理即可达到排放标准,无废渣产生,易于实现工业化,制得成品中锑酸钠的含量高。

标签:
固废
山东 - 淄博 来源:北方有色网 2023-03-19
利用废棉绒制备的木质素纤维及其制备方法

本发明公开了一种利用废棉绒制备的木质素纤维,包括以下重量份的组分:短棉绒纤维50‑90份、蒙脱石粉10‑30份、分散性乳胶粉10‑32份、有机硅防水粉6‑26份、矾土粉4‑25份、表面活性剂0.6‑1份以及耐候剂0.3‑0.7份。本发明的有益效果为:本发明中制备木质素纤维的主要原料为废棉绒,解决了固体废棉绒的污染问题,使固体废棉绒得以循环再利用;由于原料经过加工后具有高分散性、高吸油率、活性大等优点,降低了生产成本;短棉绒纤维、蒙脱石粉、分散性乳胶粉、有机硅防水粉、矾土粉使得木质素纤维的吸附性和耐候性较强,在混合沥青后,提高了沥青公路的强度和耐热性,防止沥青公路开裂、增加抗压力和活性附着力。

标签:
固废
山东 - 淄博 来源:北方有色网 2023-03-19
从废铬系催化剂回收铬的方法

本发明涉及一种从废铬系催化剂回收铬的方法,步骤如下:将废弃铬系催化剂进行富氧煅烧,有机物物料得到分解,碳得到去除,将煅烧产物冷却后研磨至粉状100目以上,再将粉状废催化剂溶于高浓度碱液进行搅拌,粉状废催化剂与碱液的重量比为1 : 5‑10,生成水合氧化铬固体,进一步进行酸洗、水洗提纯得到水合氧化铬。本发明得到成品高纯水合氧化铬,变废为宝,产品能够直接销售,全程有害物质得到控制,回收所得水合氧化铬纯度较高,具有较高的环境及经济价值,此外其操作简单、设备投资少,是较优的废铬基氟化催化剂再利用方法。

标签:
固废
山东 - 淄博 来源:北方有色网 2023-03-19
利用工业废液生产甲酸钙的方法

本发明属于化工环保技术领域,具体涉及一种利用工业废液生产甲酸钙的方法。本发明步骤如下:将含甲酸20-30%、盐酸6-10%的废液和碳酸钙加入到反应釜中反应,反应后降温,固液分离,固体经干燥脱水得到甲酸钙产品;母液和碳酸钙加入到浓缩罐中,调整母液的PH值,加热浓缩至母液比重为1.20-1.25时,降温放料固液分离,固体经干燥脱水得到甲酸钙产品;母液加入到浓缩罐中,加入氢氧化钙调整PH值,加热浓缩至母液比重为1.37-1.40时,降温放料固液分离,固体经干燥脱水得到甲酸钙产品,液体为氯化钙产品。本发明充分利用工业废液生产合格的甲酸钙等产品,不仅减少了工业废液的排放,减轻了环境污染,而且增加了经济效益,工艺简单,减少了生产成本。

标签:
固废
山东 - 淄博 来源:北方有色网 2023-03-19
处理FCC废催化剂生产硫酸铝的方法

本发明涉及石油化工废弃物的回收利用技术领域,具有公开了一种处理FCC废催化剂、同时生产硫酸铝的方法。该方法包括步骤:向反应釜中加水、FCC废催化剂、硫酸溶液,之后搅拌反应,得到反应混合液,所述反应混合液中含有硫酸铝和硫酸镍;之后向所述反应混合液中加入铁粉,搅拌反应,之后固液分离,得到含硫酸铝的溶液和含镍固体。采用本发明的方法,可以用FCC废催化剂来代替硫酸铝的生产原料铝矾土,具有原料便宜易得的优点,并且处理利用了有害废弃物FCC废催化剂,避免了环境污染,变废为宝。

标签:
固废
山东 - 淄博 来源:北方有色网 2023-03-19
从废弃脱硝催化剂中回收钛、钒、钨的方法

本发明涉及催化剂回收技术领域,具体涉及一种从废弃脱硝催化剂中回收钛、钒、钨的方法。本发明是将废弃脱硝催化剂研磨,加入强碱进行熔盐反应,冷却到室温后加入去离子水将含钛的固体和含钨、钒的溶液分离,含钨、钒的溶液经煮沸将含钒的固体和含钨的溶液分离。本发明采用闭路循环方式,没有三废排放,具有良好的经济效益和社会效益。操作方便,工艺简单,能够将废弃脱硝催化剂中的有价值元素钛、钨、钒回收再利用。

标签:
固废
山东 - 淄博 来源:北方有色网 2023-03-19
吸收液循环利用的环保废气处理装置

本实用新型公开了一种吸收液循环利用的环保废气处理装置,涉及废气处理技术领域。本实用新型主要包括承载机构、过滤机构、搅拌机构和循环喷淋机构,承载机构包括一水平设置的且内部盛装有吸收液的装置箱,装置箱的顶部铰接有一箱盖,装置箱的一侧设置有一用于进气的进气管,装置箱一侧的顶部设置有一出气管,过滤机构设置在进气管上,其用于过滤环保废气中的固体颗粒,搅拌机构用于搅拌装置箱内部的吸收液,循环喷淋机构设置在装置箱的内部。本实用新型在使用时,先通过过滤机构将废气过滤一遍,接着通过循环喷淋机构循环不断的对装置箱内部的废气进行净化,同时搅拌机构的增加,能够增加吸收液吸收废气中有害物质的速率。

标签:
固废
山东 - 淄博 来源:北方有色网 2023-03-19
上一页 15 16 17 18 19 ... 21 下一页
共21页    到第

北方有色为您提供最新的山东淄博有色金属固/危废处置技术理论与应用信息,涵盖发明专利、权利要求、说明书、技术领域、背景技术、实用新型内容及具体实施方式等有色技术内容。打造最具专业性的有色金属技术理论与应用平台!

全国热门有色金属设备推荐
展开更多 +
全国热门有色金属技术推荐
展开更多 +

 

江西省隆恩特环保设备有限公司
宣传

报名参会
更多+

报告下载

有色专家
更多+

长春黄金研究院有限公司
总经理
矿冶科技集团有限公司
中国工程院院士
长沙矿冶研究院有限责任公司
中国工程院院士
中国矿业大学(北京)
院长/教授
赣州有色冶金研究所有限公司
副主任/高级工程师
赤泥综合利用研究报告2025
推广

热门技术
更多+

推荐企业
更多+

福建省金龙稀土股份有限公司
宣传

发布

在线客服

公众号

电话

顶部
咨询电话:
010-88793500-807