青岛垚鑫智能科技有限公司
宣传

位置:中冶有色 >

有色技术频道 >

> 固/危废处置技术

分类:
全部
矿山技术
冶金技术
材料制备及加工技术
环境保护技术
分析检测技术
 
全部
废水处理技术
大气治理技术
固/危废处置技术
土壤修复技术
地区:
全部
北京
天津
上海
重庆
河北
山西
辽宁
吉林
黑龙江
江苏
浙江
安徽
福建
江西
山东
河南
湖北
湖南
广东
海南
四川
贵州
云南
陕西
甘肃
青海
内蒙
广西
西藏
宁夏
新疆
其他
其他
展开
 
全部
济南
青岛
淄博
枣庄
东营
烟台
潍坊
济宁
泰安
威海
日照
滨州
德州
聊城
临沂
菏泽

山东烟台有色金属固/危废处置技术理论与应用

免费发布技术信息>>
造纸固体废弃物处理方法

本发明涉及造纸废渣处理技术领域,具体涉及一种造纸固体废弃物处理方法,包括下述步骤:步骤A:将废渣收集,并输送至第一破碎装置中;步骤B:对废渣进行破碎;步骤C:疏解机中,废渣中的纤维、塑料和重渣相互分离;步骤D:将纤维随白水抽送至浆池中;步骤E:将塑料输送到第一漂洗分离机中,进一步的分离塑料中的重渣,以及塑料中的纤维;步骤F:将塑料送入到挤干机中挤干,然后再送入到造粒系统中,得到塑料颗粒。在本申请的上述方案中,使得造纸废渣中的塑料和纤维得到分选利用,首先是提高了利用率,同时也降低了排放废渣中塑料和纤维的含量,降低了对环境的污染。

标签:
固废
山东 - 烟台 来源:中冶有色网 2023-03-19
固体废弃物完全利用方法

本发明公开了一种将固体废弃物(放射性不超标)完全利用的方法,其特征在于根据所处置的固体废弃物的理化特点,通过针对性的破碎方式和粉体技术使之全部转化成可供建筑、化工、冶金、燃煤锅炉烟气脱硫等必需的粗骨料、细骨料和细粉,达到对固体废弃物大量消耗、低成本处置和高价值利用之目的。

标签:
固废
山东 - 烟台 来源:中冶有色网 2023-03-19
造纸固体废弃物处理生产线

一种造纸固体废弃物处理生产线,包括第一输送装置;入口与第一输送装置相连的第一破碎装置、第二输送装置,第二输送装置与第一破碎装置的出口相连;疏解机,疏解机的入口与第二输送装置相连,疏解机内设置有疏解机转子;浆池,浆池与疏解机的液体出口连通;第三输送装置,第三输送装置与疏解机的固体出口连通;第一漂洗分离机,第一漂洗分离机的入口与第三输送装置连接;挤干机,挤干机的入口与第一漂洗分离机连接;造粒系统,造粒系统通过风送系统与挤干机连通。该生产线能够对造纸废渣中的各种物质进行分别筛选回收利用,降低造纸废渣污染。

标签:
固废
山东 - 烟台 来源:中冶有色网 2023-03-19
建筑固体废弃物再生骨料为集料的高隔热性能墙板

本发明公开了一种建筑固体废弃物再生骨料为集料的高隔热性能墙板,包括板端、板面、板边、接缝槽、内置缓冲管、缓冲网、岩棉层、钢板层和防火层,所述板端的上端设有榫头,下端设有榫槽,所述接缝槽的顶端与榫头相连接,侧面与板边固定连接,所述内置缓冲管镶嵌于板端中,且位于榫头和榫槽之间,所述防火层位于板面的内部两侧,所述钢板层设置在防火层的内侧,所述岩棉层设置在钢板层的内侧。该墙板通过建筑固体废弃物再生骨料、煤渣、粉煤灰等工业废渣为主要原料,节能利废和净化环境,通过设有防火层和钢板层,使结构更加的稳定,同时岩棉层可以增加墙体的隔音效果,内置缓冲管和管内的缓冲网可以增加墙体的抗震力和隔热能力。

标签:
固废
山东 - 烟台 来源:中冶有色网 2023-03-19
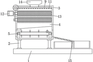
半固体危险废物处置装置

本实用新型涉及危险废物处置技术领域,具体为一种半固体危险废物处置装置,包括主体和加料装置,主体的表面固定连接有进料口,进料口的纵截面呈矩形框形,加料装置设置在主体的表面上,加料装置包括滑道,滑道与主体的表面固定连接,滑道的横截面呈长条形,滑道的内表面滑动连接有滑块,滑块的横截面呈矩形,滑块的表面固定连接有加料框,加料框的纵截面呈矩形框形,加料框与进料口的表面滑动连接。本实用新型,通过设置加料装置,有效地将废物处置装置进行加料,提高了废物处置装置的实用性,便于设备的正常使用,降低使用者的工作负担,提高设备的易用性。

标签:
固废
山东 - 烟台 来源:中冶有色网 2023-03-19
可分离的固体废物处理设备

本发明公开了一种可分离的固体废物处理设备,包括底板,底板的上端设置有支撑腿,支撑腿的上端设置有处理箱,处理箱的内部设置有粉碎腔,粉碎腔的下端设置有输送结构,输送结构的外表壁设置有隔板,隔板的一端设置有安装块,安装块的外部且位于输送结构的内部开设有安装槽,粉碎腔的内部设置有清洗管,清洗管的一端设置有进水口,且清洗管的外表壁设置有喷水口;该一种可分离的固体废物处理设备通过设置隔板、安装块和安装槽,可以达到对粉碎处理后的废物分批输送至下料斜板处,避免了过多的粉碎废物堆积在一起致使下料至收集框内而导致分离质量差的问题,进而减少了对粉碎废物进行二次分离的工序。

标签:
固废
山东 - 烟台 来源:中冶有色网 2023-03-19
环保型工业固体废物焚烧装置

本实用新型公开了一种环保型工业固体废物焚烧装置,包括底板,所述底板的上方设有焚烧箱,所述焚烧箱的内下表面设有加热器,所述焚烧箱的外左侧面上方连接有进气管的一端,所述进气管的另一连接有鼓风机,所述焚烧箱的外右侧面上方连接有废气管的一端,所述废气管的另一端连接有废气净化机构,所述焚烧箱的上方设置有粉碎箱,所述粉碎箱上安装有固体粉碎机构,所述焚烧箱的外左侧面下方设有排渣口,所述粉碎箱的外上表面设有加料口,所述焚烧箱和粉碎箱之间设有出料口。本实用新型能够粉碎大颗粒的固体废物,提高颗粒度,便于充分燃烧,能够均匀喷洒清水浇淋在废气上,从而完成对废气内飞灰等污染物的净化,减少污染。

标签:
固废
山东 - 烟台 来源:中冶有色网 2023-03-19
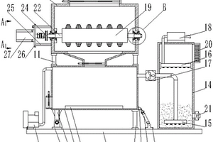
无氧碳化危险固体废物处置装置

一种无氧碳化固体危险废物处置装置,无氧热解区有一个耐火保温壳体,其下部是加热炉、中部是可燃气体燃烧室,上部是炉膛火道,炉膛火道的内部悬置热解罐,热解罐的顶部的密封开启加料口与上方加料器对应,热解罐的顶侧与可燃气体排出管连通,可燃气体排出管的下端与可燃气体燃烧室连通,热解罐下底部连接出碴器,耐火保温壳体的顶侧开有与风动急冷区连通烟气出口,风动急冷区外壳上部开有高温烟气入口,下部开有低温烟气出口,内部置有冷风管束和烟气导向板,风动急冷区外壳的底部置有风机,顶部有排气口。可将有机化合物转化为无害可燃气体和固体碳化废物。适用于各种工业固体废物、医疗废物的处置,达到无害化,减量化,保护环境。

标签:
固废
山东 - 烟台 来源:中冶有色网 2023-03-19
用于处理黄金生产污水及固体危废的曝气反应装置

本实用新型公开了一种用于处理黄金生产污水及固体危废的曝气反应装置,包括搅拌电机、网状固废放置槽、反应池,所述反应池上部固定安装有槽盖,所述槽盖上部固定安装所述搅拌电机,所述搅拌电机下部固定安装有搅拌棒,所述搅拌棒通过孔径与所述槽盖嵌套安装,所述搅拌棒底部固定安装有搅拌叶片,所述反应池内侧上部还设置所述网状固废放置槽,所述网状固废放置槽与所述反应池内壁通过安装块固定。本实用新型为废水处理和固体矿石处理两用型,通入水作为介质,加药破氰、去重金属,同时伴有搅拌,使药液混合均匀,加速反应,底部装有曝气组件,提供溶解氧,保证尾矿无害化处理完全。

标签:
固废
山东 - 烟台 来源:中冶有色网 2023-03-19
石材加工固体废弃物废渣的综合利用方法

本发明公开了一种石材加工固体废弃物废渣的综合利用方法,石材加工过程中,锯片、切削、磨片过程均有废料产生,其中尤以微细粉末对环境产生严重的污染,经常发生局部的“沙尘暴”和水源污染,给该地区人们的生活和生产带来严重影响。本发明首先对石材加工废料进行分选和粗加工,制出普通建筑和筑路用的石子和砂子;粉末状物质则用风力空压机带动的气流磨破碎并分级至直径小于74μm和直径小于50μm的微细粉,直径小于50μm的粉末物质,经过表面改性,制成优质的涂料、橡胶、塑料、造纸工业使用的填料,是一项减少石材加工企业固体废弃物--废渣污染、变废为宝的好方法。

标签:
固废
山东 - 烟台 来源:中冶有色网 2023-03-19
固废分选设备
固废分选设备 909     
 0

本实用新型涉及固体物料分离技术领域,特别涉及一种固废分选设备,包括抛丸灰磁选机,该抛丸灰磁选机包括支架、进料斗、出料斗、排料斗、电机驱动的链传动和若干个磁辊,其中,抛丸灰磁选机还包括工业吸尘器和设置在支架上方的风箱,风箱从上往下依次设置有密封的出风腔和吸风腔,吸风腔罩住若干个磁辊;出风腔顶部设置有进风口;出风腔底部设置有若干个出风口,出风口与磁辊轴线方向相对应;吸风腔的侧壁上设置有吸风口;工业吸尘器的吸入口与吸风口相通,工业吸尘器的出风管与进风口相通。以此降低了粉尘污染,提高了抛丸灰的处理质量。

标签:
固废
山东 - 烟台 来源:中冶有色网 2023-03-19
农村生活垃圾固废预处理装置

本实用新型涉及垃圾处理技术领域,特别涉及一种农村生活垃圾固废预处理装置,其包括带有若干个车轮的箱体,箱体内设置有横向输送机,横向输送机的左侧设置有进料口,横向输送机的右侧设置有出料口,横向输送机的上方设置有若干个用于分拣垃圾的机械手,横向输送机的下方从左往右依次被分隔为处理室A、处理室B和处理室C;处理室A用于破碎固体塑料垃圾;处理室B用于破碎餐厨垃圾;处理室C用于破碎玻璃垃圾;若干个机械手用于将各自分拣的垃圾分别投进相对应的处理室A、处理室B和处理室C,以此提高了垃圾处理效率以及分类后的利用效率;同时,能够实现生活垃圾明确分类。

标签:
固废
山东 - 烟台 来源:中冶有色网 2023-03-19
污泥干化系统
污泥干化系统 1527     
 0

生活废水和工艺废水处理后的污泥需要妥善处理,当前所选用的处理方法均需要对污泥进行脱水,以实现其后端的无害化、减量化和资源利用处理。污泥中的水主要由游离水、吸附水、毛细水和结合水组成,经过浓缩、自然风干、机械脱水等方法对污泥进行脱水,其内含水率仍然较高,故需要对污泥进行干化处理。

标签:
污泥干化系统 污泥固废处理技术 固体废弃物 固废处置技术
山东 - 烟台 来源:杰瑞环保科技有限公司 2022-07-05
用于金属矿山尾矿的高效环保处理设备

本实用新型的目的在于提供一种用于金属矿山尾矿的高效环保处理设备,以解决上述背景技术中提出现有的一种尾矿处理设备在使用过程中,由于现有技术中,尾矿处理通常是先将废水和废矿集中输送至尾矿池,然后通过抽泥泵将废矿浆输送至压滤机进行压滤,无法实现对尾矿中资源的综合处理和充分利用,从而造成资源浪费和环境污染的问题。

标签:
金属矿山 尾矿 环保处理设备
山东 - 烟台 来源:烟台市瑞凯环保材料有限公司 2021-12-08
上一页 15 16 17 下一页
共17页    到第

中冶有色为您提供最新的山东烟台有色金属固/危废处置技术理论与应用信息,涵盖发明专利、权利要求、说明书、技术领域、背景技术、实用新型内容及具体实施方式等有色技术内容。打造最具专业性的有色金属技术理论与应用平台!

全国热门有色金属设备推荐
展开更多 +
全国热门有色金属技术推荐
展开更多 +

 

江西省隆恩特环保设备有限公司
宣传

报名参会
更多+

报告下载

有色专家
更多+

中南大学
常务副校长
湖南科技大学
所长/教授
中冶沈勘秦皇岛工程技术有限公司
原矿山院院长/教授级高工
中国铝业集团有限公司
中国铝业股份有限公司党委书记
中国有色金属工业协会
教授级高级工程师
赤泥综合利用研究报告2025
推广

热门技术
更多+

推荐企业
更多+

福建省金龙稀土股份有限公司
宣传

发布

在线客服

公众号

电话

顶部
咨询电话:
010-88793500-807