青岛垚鑫智能科技有限公司
宣传

位置:中冶有色 >

有色技术频道 >

分类:
全部
矿山技术
冶金技术
材料制备及加工技术
环境保护技术
分析检测技术
 
全部
功能材料技术
复合材料技术
新能源材料技术
合金材料技术
加工技术
地区:
全部
北京
天津
上海
重庆
河北
山西
辽宁
吉林
黑龙江
江苏
浙江
安徽
福建
江西
山东
河南
湖北
湖南
广东
海南
四川
贵州
云南
陕西
甘肃
青海
内蒙
广西
西藏
宁夏
新疆
其他
其他
展开
 
全部
广州
韶关
深圳
珠海
汕头
佛山
江门
湛江
茂名
肇庆
惠州
梅州
汕尾
河源
阳江
清远
东莞
中山
潮州
揭阳
云浮

广东深圳有色金属材料制备及加工技术理论与应用

免费发布技术信息>>
高使用效率的多串锂电池保护板

本实用新型公开了高使用效率的多串锂电池保护板,包括电单车、设置在电单车上充电孔和设置在电单车上的固定槽,所述固定槽内部设置有可对锂电池进行放置、对锂电池进行保护的放置壳,且支撑槽内部设置有可控制支撑槽开合的开合装置,此高使用效率的多串锂电池保护板,通过设置的开合装置在充电的时候可以使放置壳内部的锂电池组与散热孔连通,从而可以加快锂电池组在充电时候的散热,避免在充电的时候锂电池组发热导致危险,同时避免影响锂电池组的充电效率,通过设置的清洁装置在充电之前可以对散热孔进行清洁,避免散热孔内部因为骑行粘附异物不利于锂电池组散热。

标签:
加工技术
广东 - 深圳 来源:中冶有色网 2023-03-18
圆柱状锂电池
圆柱状锂电池 886     
 0

一种圆柱状锂电池,涉及圆柱状锂电池,特别涉及18650型锂电池。该电池,包括圆柱状的18650锂电池,所述锂电池(1)的底端设置正极接触片(2)和绝缘环片(3),锂电池的另一端依次设置一绝缘片(4)、绝缘环(5)、设有保护电路的保护板(6)和负极接触片(7);设置一正极连接片(8),正极连接片的一端与正极接触片电连接,另一端与保护电路正极输出端连接;设置一负极连接片(9),负极连接片的一端与保护电路的负极连接,另一端与锂电池的负极连接;设有绝缘保护层(10),该保护层包裹上述部件为一整体,保护层两端设有开口,正极接触片(2)和负极接触片(7)设置在开口处。本实用新型对18650型锂电池的外封装结构进行改进,改进的结构简单,使18650型锂电池可像普通碱性干电池一样在数码电子设备上使用。

标签:
加工技术
广东 - 深圳 来源:中冶有色网 2023-03-18
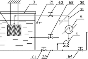
废锂负极片的回收系统

本实用新型涉及一种废锂负极片回收系统,包括洗锂槽(1)、洗锂罐(9)、循环泵(4)和加热器(5);洗锂罐(9)为闭合式多孔金属容器;洗锂槽(1)的竖壁上方开有溢流口(7);循环泵(4)借助管道与加热器(5)连通,加热器(5)经第一路进液管道(30)与洗锂槽(1)连通,加热器(5)经第二路进液管道(31)连通至洗锂罐(9),洗锂槽(1)借助出液管道(32)与循环泵(4)连通;出液管道(32)上设有第一阀门(61),第一路进液管道(30)上设有第二阀门(62),第二路进液管道(31)设有第三阀门(63)。采用该系统在回收废锂过程中,安全可靠、绿色环保,资源回收价值高。

标签:
加工技术
广东 - 深圳 来源:中冶有色网 2023-03-18
多孔锂镧锆氧固体电解质片及其制备方法和应用

本发明涉及一种多孔锂镧锆氧固体电解质片及其制备方法和应用,由以下步骤组成:将锂镧锆氧固体电解质粉体与溶剂、分散剂混合后进行球磨,得到第一球磨浆料;将第一球磨浆料与塑化剂、粘结剂混合后进行第二次球磨,得到第二球磨浆料;利用第二球磨浆料流延成膜,干燥后得到多孔锂镧锆氧前驱体,最后经过热处理得到厚度为微米级的多孔锂镧锆氧固体电解质片;锂镧锆氧固体电解质粉体、溶剂、分散剂、塑化剂和粘结剂的质量比为100:(100~150):(5.5~10):(7.5~12):(7.5~10)。本发明固体电解质片内部具有均匀、连续且贯通的孔隙结构,有利于制备三维结构有机/无机复合固体电解质时聚合物电解质的完全填充。

标签:
加工技术
广东 - 深圳 来源:中冶有色网 2023-03-18
锂离子电池回收方法
锂离子电池回收方法 804     
 0

本申请提供一种锂离子电池回收方法,包括:将充电后的锂离子电池在惰性气体环境中除去铝塑膜外壳,分离出正极材料、负极材料、隔膜;将负极材料与水反应,获得氢氧化锂溶液,并分离出石墨及铜箔集流体;将正极材料与碱溶液反应,过滤得到氢氧化铁沉淀;以及将磷酸盐滤液与所述氢氧化锂溶液混合反应,生成磷酸锂沉淀和碱。本申请可以有效回收Li、Fe等有价值的元素,并控制P等环境有害元素。

标签:
加工技术
广东 - 深圳 来源:中冶有色网 2023-03-18
带温控功能的锂电池
带温控功能的锂电池 696     
 0

本发明公开一种带温控功能的锂电池,包括电池壳体,电池壳体的内部为中空结构,电池壳体的表面设置有切断电路工作的急停按钮,电池壳体的内部设置有锂电池控制模块,锂电池控制模块的包含有A/D转换电路,串口通讯电路,锂电池控制模块的控制通过微处理器,微处理器连接检测电池温控的温度感应器,温度感应器的表面设置有电力载波调制调解器,电力载波调制调解器的内部设置有调节预设温度的调控器,温度感应器的一端设置有报警扬声器,温度感应器的另一端设置有闪烁预警灯,能够实时的检测锂电池的温度,在温度过高的状态下能进行预警,提升使用的安全性能。

标签:
加工技术
广东 - 深圳 来源:中冶有色网 2023-03-18
废旧三元锂离子电池正负极混合材料回收方法

本发明提供了一种废旧三元锂离子电池正负极混合材料回收方法,包括步骤:将废旧锂离子电池放电拆解后得到镍钴锰酸锂正极和硅碳负极混合粉料、电池外壳、铜箔、铝箔和隔膜;将混合粉料与碳酸盐混合球磨后焙烧,回收反应过程中生成的CO2;将焙烧后的混合料放入稀碱溶液中过滤后通入CO2,使滤液中的硅、铝分离,滤渣置于酸中溶解,浸取滤渣中Li+、Ni2+、Co2+、Mn2+和Cu2+,过滤除去石墨后通过固相法回收负极材料碳;将硫化物加入到浸出液中,调节pH值去除杂质铜,再通过共沉淀法制备镍钴锰氢氧化物三元前驱体;将CO2通入滤液中,升温浓缩结晶制备碳酸锂。本发明工艺简单,可实现镍钴锰酸锂正极和硅碳负极混合材料全组分回收,成本低,回收率高,资源可循环利用。

标签:
加工技术
广东 - 深圳 来源:中冶有色网 2023-03-18
锂离子电池正极浆料的制备方法

本发明提供一种锂离子电池正极浆料的制备方法,有效地改善了碳纳米管及石墨烯的分散性,使碳纳米管及石墨烯在正极活性物质表面形成良好的导电网络,提高锂离子电池的导电性能,改善了锂离子电池的循环性能;碳纳米管及石墨烯共同作为导电剂,降低了导电剂添加,提高锂离子电池的导电性能,提高正极活性物质的含量,提高了锂离子电池的容量和能量密度。

标签:
加工技术
广东 - 深圳 来源:中冶有色网 2023-03-18
锂电池工作温度管理控制系统

本发明涉及锂电池技术领域,提供一种锂电池工作温度管理控制系统,包括温湿度采样模块、中央处理模块、显示模块、温湿度处理模块、模数转化器和声光报警模块,所述温湿度采样模块的信号输出端连接在模数转化器的输入端,所述模数转化器的信号输出端连接在中央处理模块的信号输入端,所述中央处理模块的信号输出端连接有相互独立的显示模块、温湿度处理模块和声光报警模块,本发明使得锂电池的工作温度一直处于适宜的范围,提高了锂电池的工作效率和增加了锂电池使用寿命。

标签:
加工技术
广东 - 深圳 来源:中冶有色网 2023-03-18
防水锂离子电池以及其制备方法

本发明涉及锂电池领域,公开了一种防水锂离子电池以及其制备方法。电池包括:锂离子电池本体,位于所述电子本体的头部的极耳连接有外接导线,电子胶层,密封包裹在所述锂离子电池本体的头部外周,所述极耳以及所述外接导线的头部埋在所述电子胶层内,所述外接导线的尾部从所述电子胶层中伸出在外。应用该技术方案有利于提高锂离子电池的防潮性能,有利于提高电池的使用寿命。

标签:
加工技术
广东 - 深圳 来源:中冶有色网 2023-03-18
碳氮掺杂钛酸锂电极材料、制备方法及应用

本发明公开了一种碳氮掺杂钛酸锂电极材料、制备方法及应用,属于锂电池材料制备技术领域。该电极材料的制备过程为:先将表面活性剂、催化剂、含氮化合物和二氧化钛溶于聚甲基丙烯酸甲酯中,干燥后通过化学气相沉积法制备碳纳米管和氮掺杂的二氧化钛材料,再将其与锂源、氟化钠一同溶于聚乙烯吡咯烷酮溶剂中,通过静电纺丝技术和高温烧结法制备出纤维状的钛酸锂复合材料,并进一步改性得到电极材料。该材料具有导电率高、与电解液相容性好等特点,能显著提高钛酸锂电池的循环性能及倍率性能。

标签:
加工技术
广东 - 深圳 来源:中冶有色网 2023-03-18
锂离子电池正负极的复合导电浆料及其制备方法

本发明适用于锂离子电池技术领域,提供了一种锂离子电池正负极的复合导电浆料及其制备方法。所述锂离子电池正负极的复合导电浆料,包括如下重量份数的下列配方组分:碳纳米管5.0‑7.5份;分散剂0.3‑0.6份;N‑甲基吡咯烷酮90‑95份;所述碳纳米管由大管径碳纳米管和小管径碳纳米管组成,其中,所述大管径碳纳米管的管径为30‑150nm,所述小管径碳纳米管的管径为1‑30nm,且所述大管径碳纳米管和所述小管径碳纳米管的管径差≥15nm;所述大管径碳纳米管和小管径碳纳米管的重量比为(3‑7):(7‑3)。本发明提供的锂离子电池正负极的复合导电浆料,与活性物质能形成良好的导电网络,由此得到的锂离子电池内阻降低,具有优良的循环寿命、能量密度等电化学性能。

标签:
加工技术
广东 - 深圳 来源:中冶有色网 2023-03-18
锂电池卷绕层边界检测方法

本发明公布了锂电池卷绕层边界的检测方法,包括:用照明光、第一单色光和第二单色光照射锂电池卷绕层,摄像装置拍摄出显示有锂电池卷绕层的同侧边界的第二图像;将第二图像和由摄像装置拍摄到的卷绕层在初始位置时未发生位置偏移时得到的第一图像对比,判断出卷绕层相对其自身在初始位置时的位移偏移量;以及根据第二图像判断出所述第一隔膜层和第二隔膜层的同侧边界的相对位移。本发明利用摄像装置的高分辨率特点并结合光学检测方法,解决了在目视条件下无法观察到的锂电池卷绕层的同侧边界在卷绕过程中相对其初始位置发生的细微的位移变化以及第一隔膜层和第二隔膜层之间的细微的相对位移变化,判断出锂电池的卷绕层卷绕效果的好坏。

标签:
加工技术
广东 - 深圳 来源:中冶有色网 2023-03-18
废旧锂离子电池回收方法

本发明适用于锂离子电池领域,提供了一种废旧锂离子电池回收方法,包括以下步骤:将废旧锂离子电池放电完全后,置于保护气体中取出电芯;将所得电芯置于DMC中浸泡,清洗;取出电芯中的正、负极片,将正极片置于NMP中浸泡、超声处理,获得正极集流体和正极粉料溶液;负极片置于蒸馏水中浸泡、超声处理,获得负极集流体和负极粉料溶液;分别离心正、负极粉料溶液,收集正、负极粉料,干燥后回收利用。本发明提供的回收方法,时效短、操作性强、处理难度低,不仅可以解决锂离子电池碳负极的处置问题,而且实现了锂电池的正负极的全面回收,对环境保护有着积极意义。

标签:
加工技术
广东 - 深圳 来源:中冶有色网 2023-03-18
锂离子电池作为储能器件的应急照明电源装置

锂离子电池作为储能器件的应急照明电源装置发明用于各种工业和民用建筑领域中的应急照明。锂离子电池作为储能器件的应急照明电源装置,储能蓄电池选用锂离子电池替代镉镍蓄电池或铅酸蓄电池,同时配套锂离子电池管理系统,其他技术方式,包括电气接线形式、开关组合及参数等,沿用既有应急照明电源装置的方案。锂离子电池作为储能器件的应急照明电源装置具有重量轻、体积小、寿命长、充放电效率高和无污染等优点,能够提高建筑物内人员的安全性,并降低运行费用。

标签:
加工技术
广东 - 深圳 来源:中冶有色网 2023-03-18
补锂添加剂及其粒径控制方法和应用

本申请公开了一种补锂添加剂及其粒径控制方法和应用。本申请补锂添加剂的粒径分布变异系数CV值为0.5以下。本申请补锂添加剂的粒径控制方法包括的步骤有:将制备的补锂添加剂进行筛分处理;对经筛分处理后的补锂添加剂的粒径分布变异系数CV值进行测定或计算,收集变异系数CV值<0.5的补锂添加剂。本申请补锂添加剂粒径均匀,一方面其在首圈充电过程中锂离子脱出的速率差小,能够实现高效且稳定的补锂效果;另一方面其用于制备的电极片表面质量高,而且能够在电极片活性层中均匀分散,提高了电极片的质量和电化学性能。其粒径控制方法能够保证获得的补锂添加剂粒径均匀,而且效率高,节约控制成本。

标签:
加工技术
广东 - 深圳 来源:中冶有色网 2023-03-18
聚合物锂离子电池及其制造方法

本发明公开了一种聚合物锂离子电池的制备方法,包括:(1)将丙烯酸锂与丙烯腈共聚物的水分散液加入去离子水中;(2)将电池的正负极浸入所述去离子水中,使得所述丙烯酸锂与丙烯腈共聚物附着于电池的正负极上;(3)电池成型后,经过1-2次温度在50℃--85℃,时间在30-240分钟的凝胶化过程,在电池的正负极分别上形成一层凝胶电解质涂层。该方法采用的丙烯酸锂与丙烯腈共聚物的合成工艺要比于偏氟乙烯和六氟丙烯共聚物合简单很多,同时成本也低很多,有利于本技术的大量使用。此外,还公开了一种聚合物锂离子电池。

标签:
加工技术
广东 - 深圳 来源:中冶有色网 2023-03-18
具有核壳结构的锂离子电池用复合正极材料及其制备方法

一种具有核壳结构的锂离子电池用复合正极材料,该复合正极材料具有核壳结构,该核壳结构由核层活性材料与壳层活性材料组成,所述核层活性材料为磷酸铁锂、锰酸锂中的一种,所述壳层活性材料为复合有碳的磷酸铁锂,所述磷酸铁锂为具有Li1-XMXFePO4或LiFe1-yMyPO4结构的磷酸铁锂,所述锰酸锂为具有LiMnO2或LiMn2O4结构的磷酸铁锂,所述碳为碳纳米管、超细导电炭黑以及非晶态碳材料中的一种或多种,该复合正极材料的质量百分比含量为:核层活性材料65%~99%,壳层活性材料1%~35%。本发明的复合正极材料性能稳定,具有优异的电化学性能,由该材料制作的锂离子电池具有较高充放电容量,优异的循环性能,可快速充电及大倍率放电,可适应超低温工作环境,安全稳定。

标签:
加工技术
广东 - 深圳 来源:中冶有色网 2023-03-18
具有防护功能的锂离子充电电池

本实用新型属于锂离子电池技术领域,公开了一种具有防护功能的锂离子充电电池,包括锂电池本体,所述锂电池本体包括锂电池外壳和两个极片,所述锂电池外壳的两侧均固定罩设有防护内框,且防护内框同时与锂电池外壳的连续三个侧壁以及远离极片的一端面接触,本实用新型通过在锂电池外壳的两侧外壁上均固定防护内框,防护内框同时与锂电池外壳的三个相连的侧壁及一端面接触,并在防护内框的外侧罩设防护外框,内框与外框通过第一弹簧连接,外壳带有极片的一端安装有罩体,对锂电池本体进行多方位防护,锂电池摔落时,罩体能保护极片不受损伤,第一弹簧能缓冲防护内框与锂电池本体所受冲击力,防止其变形导致电解液漏出。

标签:
加工技术
广东 - 深圳 来源:中冶有色网 2023-03-18
带充电高压保护装置的电动平衡车锂电池

本实用新型涉及锂电池技术领域,特别是涉及一种带充电高压保护装置的电动平衡车锂电池,包括防护箱和箱盖,防护箱内部中端安装有锂电池,锂电池上端左侧相接有与锂电池电性连接的真空断电器,防护箱内部底端固定连接有若干根下弹簧缓冲杆,若干根下弹簧缓冲杆上端之间固定连接有用于支撑锂电池的支板,防护箱内部且位于锂电池的四周均安装有用于夹紧锂电池的夹板;通过将锂电池放入到防护箱内进行保护,以免外物直接与锂电池产生碰撞而损坏的情况发生,而通过真空断路器对锂电池进行防护,当锂电池充电产生高压时,真空断路器利于及时切断电源,防止继续产生高压而发生爆炸的情况,降低安全隐患。

标签:
加工技术
广东 - 深圳 来源:中冶有色网 2023-03-18
纳米动力锂电池壳
纳米动力锂电池壳 970     
 0

本实用新型公开的属于锂电池技术领域,具体为一种纳米动力锂电池壳,包括包括锂电池壳、纳米散热涂层和弹簧,所述锂电池壳前后两侧壁的中间均设置有矩形孔,两个所述矩形孔上均设置有防尘网,所述锂电池壳的内腔左右两侧均设置所述弹簧板,两个所述弹簧板的相视一侧均设置有固定夹,所述锂电池壳的内腔设置所述锂电池,本装置通过设置有锂电池壳、弹簧板和固定夹,能够起到良好的缓震作用,有效防止锂电池因碰撞等情况导致内部的液体流出,通过设置有纳米散热涂层,大大提高锂电池的散热能力,通过设置有防尘网,能够防止灰尘等其他杂质沾染在锂电池上造成锂电池外壳被侵蚀的情况出现,提高实用性。

标签:
加工技术
广东 - 深圳 来源:中冶有色网 2023-03-18
带有多功能保护的锂电池

本实用新型公开了一种带有多功能保护的锂电池,包括锂电池和微型超薄散热风扇,所述锂电池的正反端上均焊接固定安装一铜柱,锂电池中间设有一通孔,通孔内部热熔固定安装一固定环,微型超薄散热风扇通过胶水固定于固定环内部,微型超薄散热风扇的输入均焊接固定安装一正一反的铜片,铜片一端均延伸至铜柱处并均焊接固定安装一铜环,铜环均套设与铜柱上,铜环上均设有三个圆孔,圆孔中均设有一铜杆。本实用新型结构简单,使用方便,锂电池和微型超薄散热风扇为一体结构,不影响锂电池的体积,不会影响锂电池的安装,且会在锂电池的温度上升后自行的启动,在锂电池冷却时关闭,避免了造成电源浪费。

标签:
加工技术
广东 - 深圳 来源:中冶有色网 2023-03-18
安全锂电池
安全锂电池 782     
 0

本实用新型公开了一种安全锂电池,包括电池盒和锂电池组;所述锂电池组外侧套置有环氧板套,所述锂电池组和环氧板套置于电池盒内,所述环氧板套外侧安装有三角抗压块;所述电池盒内壁开设有三角槽,所述三角槽内壁安装有隔震垫。本实用新型通过三角抗压块的三角形可具备较高的强度,从而起到抗压效果,使得锂电池组在受到挤压时能够有效的起到防护效果,避免锂电池组因受到挤压形变出现短路存在安全隐患,大大提高锂电池组的安全性,且三角抗压块的外端卡入与三角槽内,能够确保稳定性,避免锂电池组出现位置偏移,通过隔震垫可起到减震效果,能够有效的在受到磕碰时进行缓冲,起到保护效果,该锂电池组其使用安全性和可靠性大大提高。

标签:
加工技术
广东 - 深圳 来源:中冶有色网 2023-03-18
具有自动保护功能的软包装型锂电池装置

本实用新型涉及锂电池防护技术领域,具体涉及一种具有自动保护功能的软包装型锂电池装置,具有自动保护功能的软包装型锂电池装置包括防护外壳、引导端、自动感应件和封闭端,引导端包括对接头、锁紧扣、安全阀和泄压管,改进锂电池装置的结构,增设安全阀以配合自动感应件,当感应到锂电池出现膨胀时,即启动安全阀,不仅利用安全阀引导锂电池爆炸时产生的气体的运动方向,还用以合理降低锂电池装置的内部压力,避免锂电池装置在遇到大容量锂电池爆炸时,自身因压力而出现爆炸的情况。

标签:
加工技术
广东 - 深圳 来源:中冶有色网 2023-03-18
新型抗冲击锂电池
新型抗冲击锂电池 847     
 0

本实用新型公开了一种新型抗冲击锂电池,包括锂电池本体,所述锂电池本体的上表面设置有正极,且锂电池本体的上表面靠近正极的前方位置处固定连接有弹簧,所述锂电池本体的上表面靠近弹簧的前方位置处设置有负极,且锂电池本体的一侧设置有注射器。通过第二侧板,拉管,垫圈,注射器,端口和气囊的结合使用,能够使气囊内充有气体,保护锂电池本体,使锂电池本体具有抗冲击性,通过设置弹簧,能够减小锂电池本体的上下震动,防止锂电池本体的内部发生损坏,使锂电池本体具有一定的缓冲能力,通过设置风扇,能够中和锂电池本体所产生的热量,防止锂电池本体产生的热量聚集在某一部位,难以散发出去,缩短锂电池本体的寿命。

标签:
加工技术
广东 - 深圳 来源:中冶有色网 2023-03-18
锂电池生产用校准装置

本实用新型公开了一种锂电池生产用校准装置,包括设置在工作台上的支撑架,所述支撑架底部且位于工作台上设有导向支撑机构,所述支撑架上设有两个皮带,两个所述皮带之间且位于支撑架两端设有同步驱动件,两个所述皮带之间且位于支撑架上设有对校准导入件,当将保护膜套设在锂电池上后,锂电池通过校准导入件导入至两个皮带上,两个皮带在同步驱动件的驱动下进行传动,且传动的同时,锂电池边角膜校准件将锂电池两端的膜贴合压入至锂电池的两端,此锂电池生产用校准装置,不仅能够将锂电池进行稳定传送,同时能够将锂电池两端的保护膜稳定贴合压入至锂电池的两端,进一步的便于锂电池下一道工序的加工。

标签:
加工技术
广东 - 深圳 来源:中冶有色网 2023-03-18
锂离子电池复合隔膜及其制备方法与应用

本发明公开了一种基于锂离子电池复合隔膜及其制备方法与应用,其中,制备方法步骤包括:对具有磺酸基团的UiO‑66‑S颗粒进行质子化处理,然后在室温下添加一水合氢氧化锂水溶液进行锂化处理,得到锂离子修饰的UiO‑66‑S‑Li纳米颗粒;将溶解在N‑甲基吡咯烷酮中的聚芳醚苯并咪唑溶液与分散在N‑甲基吡咯烷酮的UiO‑66‑S‑Li悬浊液混合,得到混合溶液;将混合溶液经相转化法制备成多孔膜,得到所述复合隔膜。本发明采用耐高温的聚芳醚苯并咪唑材料作为隔膜基质材料,可以大大提高锂离子电池在高温条件下的热稳定性。此外,通过在聚芳醚苯并咪唑基质里引入锂离子修饰的UiO‑66‑S‑Li,不仅有助于改善电解质/隔膜系统,抑制锂枝晶的生长,还有助于提高锂离子传导,从而整体提高锂离子电池的速率性能和使用寿命。

标签:
加工技术
广东 - 深圳 来源:中冶有色网 2023-03-18
锂离子电池内部温度测试方法

本发明涉及电池性能测试技术领域,提供一种锂离子电池内部温度测试方法,包括:制作被测锂离子电池,被测锂离子电池内卷芯的极耳处连接一第一测温线的一端,第一测温线的另一端伸出被测锂离子电池外;将制作完成的被测锂离子电池静置预设时间;将一第二测温线的一端连接于被测锂离子电池的外部;将第一测温线伸出的另一端及第二测温线的另一端分别与测试仪器连接;对被测锂离子电池进行充放电,并通过测试仪器记录在充放电过程中第一测温线与第二测温线的温度变化情况,比对第一测温线与第二测温线的温度差异,获得被测锂离子内部温度变化情况。相对现有技术来说,具有测温精准的优点,从而有利于对锂离子电池的安全设计取得重大突破。

标签:
加工技术
广东 - 深圳 来源:中冶有色网 2023-03-18
磷酸铁锂材料的处理液及其处理方法

本发明提供了一种磷酸铁锂材料的处理液及其处理方法,所述处理方法采用含锂盐的有机溶液对磷酸铁锂材料进行浸泡,去除磷酸铁锂材料中的铁杂质;其中,所述含锂盐的有机溶液含有锂盐和有机溶剂,并且在所述锂盐的有机溶液中,HF的浓度为50~1000ppm。本发明提供的磷酸铁锂材料的处理方法采用本发明的处理液,能够在不破坏磷酸铁锂材料的结构的情况下,有效去除在制备磷酸铁锂材料过程中产生的铁杂质,提高磷酸铁锂材料的电化学性能。

标签:
加工技术
广东 - 深圳 来源:中冶有色网 2023-03-18
新型大容量固态锂离子电池的制作方法

本发明公开了一种新型大容量固态锂离子电池的制作方法,其特征在于,先在极片表面涂覆涂层;将涂覆有涂层的极片装入电池外壳内后,进行电池活化和烘烤工序,让涂层中的固态电解质高价态阳离子与位于电池外壳内电解液中含有腈基的引发剂进行络合反应,形成多聚锂合物,从而在极片表面形成固态界面;最后对电池进行抽真空密封工序。本发明提供的新型大容量固态锂离子电池的制作方法,制作的锂离子电池没有游离的电解液,界面稳定,有效避免了常规锂离子电池的漏液、爆炸等风险。

标签:
加工技术
广东 - 深圳 来源:中冶有色网 2023-03-18
上一页 486 487 488 489 490 ... 500 ... 771 下一页
共771页    到第

中冶有色为您提供最新的广东深圳有色金属材料制备及加工技术理论与应用信息,涵盖发明专利、权利要求、说明书、技术领域、背景技术、实用新型内容及具体实施方式等有色技术内容。打造最具专业性的有色金属技术理论与应用平台!

全国热门有色金属设备推荐
展开更多 +
全国热门有色金属技术推荐
展开更多 +

 

江西省隆恩特环保设备有限公司
宣传

报名参会
更多+

报告下载

有色专家
更多+

中南大学
常务副校长
有研科技集团有限公司
首席科学家
中南大学
中国工程院院士
郑州大学
校长/党委书记
江西理工大学
副处长/教授
赤泥综合利用研究报告2025
推广

热门技术
更多+

推荐企业
更多+

福建省金龙稀土股份有限公司
宣传

发布

在线客服

公众号

电话

顶部
咨询电话:
010-88793500-807