青岛垚鑫智能科技有限公司
宣传

位置:北方有色 >

有色技术频道 >

> 固/危废处置技术

分类:
全部
矿山技术
冶金技术
材料制备及加工技术
环境保护技术
分析检测技术
 
全部
废水处理技术
大气治理技术
固/危废处置技术
土壤修复技术
地区:
全部
北京
天津
上海
重庆
河北
山西
辽宁
吉林
黑龙江
江苏
浙江
安徽
福建
江西
山东
河南
湖北
湖南
广东
海南
四川
贵州
云南
陕西
甘肃
青海
内蒙
广西
西藏
宁夏
新疆
其他
其他
展开
 
全部
上海

上海上海有色金属固/危废处置技术理论与应用

免费发布技术信息>>
促进城镇有机固废中氨基酸转化为挥发性脂肪酸的方法

本发明公开了一种促进城镇有机固废中氨基酸转化为挥发性脂肪酸的方法,使用阴离子表面活性剂,来促进微生物降解氨基酸并生成挥发性脂肪酸,所述阴离子表面活性剂使所述微生物的表面疏水性和细胞渗透性发生变化。本发明不仅实现了氨基酸的厌氧降解效率,也同时提高了氨基酸转化为挥发性脂肪酸的选择性,实现资源再利用。

标签:
固废
上海 - 上海 来源:北方有色网 2023-03-19
固废破筛设备
固废破筛设备 833     
 0

本实用新型提供了一种固废破筛设备,包括:底架(1)、传动胶轮(4)、筒体(5)以及减速机(6);所述传动胶轮(4)、筒体(5)以及减速机(6)安装在底架(1)上;所述减速机(6)能够驱动传动胶轮(4)转动;所述传动胶轮(4)能够通过摩擦带动筒体(5)旋转;还包括:前支腿(10)、中间支腿(11)以及后支腿(12);所述前支腿(10)、中间支腿(11)以及后支腿(12)分别安装在底架(1)的前端、中间以及后端。本实用新型结构合理,操作方便;采用摩擦传动方式,摩擦传动方式在工艺加工、实用性、安装等方面相比传统的传动方法能够提升使用性能、节约成本,减少安装时间。

标签:
固废
上海 - 上海 来源:北方有色网 2023-03-19
固废自动收集装置
固废自动收集装置 788     
 0

本实用新型涉及一种固废自动收集装置,包括箱体,箱体下端面四角均设有支腿,箱体内部开设有下料槽,下料槽向前延伸贯穿箱体,箱体后端面开设有通槽,下料槽和通槽贯穿设置,通槽内设有收集箱,下料槽内部转动设有粉碎辊,粉碎辊设置有两个,箱体前端面顶部设有固定罩,下料槽内对称设有电动推杆,两个电动推杆前端连接设有清理板,箱体前端面滑动设有收集板,固定罩上端面左右两侧均转动设有螺纹杆,两个螺纹杆分别和收集板螺纹连接,两个螺纹杆顶部均设有传动轮,两个传动轮外端套接设有皮带,左端螺纹杆顶端设有第一电机;清理板的设计,方便推送;收集板的设计,方便倾倒;粉碎辊的设计,方便更换。

标签:
固废
上海 - 上海 来源:北方有色网 2023-03-19
可循环利用固废的成套环保设备

本实用新型涉及一种工艺处理简单、无二次污染、能有效回收利用热能的低成本固废处理环保设备,包括焚烧炉、二次燃烧室、热交换器、旋风除尘器、极冷塔、吸收塔、布袋除尘器、碱液洗涤装置、加药箱和烟囱,焚烧炉与二次燃烧室通过管道连接,焚烧炉与热交换器通过管道连接,二次燃烧室与热交换器通过管道连接,热交换器与旋风除尘器通过管道连接,旋风除尘器与极冷塔通过管道连接,极冷塔与吸收塔通过管道连接,吸收塔与布袋除尘器通过管道连接,布袋除尘器与碱液洗涤装置通过管道连接,碱液洗涤装置与加药箱通过管道连接。

标签:
固废
上海 - 上海 来源:北方有色网 2023-03-19
用于废轮胎废塑料类固废液氮深冷制粉的冷能交换塔

本实用新型提供了一种用于废轮胎废塑料类固废液氮深冷制粉的冷能交换塔,包括:塔体,塔体内设置有两个将塔体分隔成第一、第二以及第三腔室的隔层,塔体的底端上形成物料出口、顶端形成进气口,物料出口上设置有卸料机和送料管路;隔层上设置有连通孔并且包括固定端以及从固定端延伸到连通孔的延伸部;与第一腔室以及送料管路连通的第一管路,其上设置有第一风机;与第二腔室连通的第二和第三管路,第二管路上设置有第二风机;第一管路与送料管路连通,第二和第三管路均与粉罐连通,第一风机用于将第一管路中的气体抽送到第一腔室中,第二风机用于将第二腔室中的气体抽送到第二管路中。本实用新型的目的在于至少回收再利用生产的胶粉中以及对物料进行降温处理后的一部分氮气中的冷能。

标签:
固废
上海 - 上海 来源:北方有色网 2023-03-19
斯特林固废分布式能源站

本实用新型公开了一种斯特林固废分布式能源站,包括箱体和电控盒,所述电控盒安装在箱体的侧面,所述箱体的顶端开设有进料口,所述箱体的内部上方设置为焚烧仓,所述箱体的内部下方设置为残渣仓,所述焚烧仓的顶端设置有热收集管,所述热收集管连接有斯特林发电动力结构,所述箱体的顶端安装有余热收集仓,把连接从进料口的内部加入,通过电热管工作由此对垃圾进行点燃,热量使得热收集管内部的空气膨胀,由此使得活塞一向外运动,由于安装轴上的结构设置,使得在活塞一向外运动时,活塞二向内运动,由此带动输出轮进行转动,然后把输出轮与外界的发电机进行连接,从而进行发电,由此实现了热量的利用,避免了资源的浪费。

标签:
固废
上海 - 上海 来源:北方有色网 2023-03-19
固废物料的毒性扩散浸出分析装置

一种固废物料的毒性扩散浸出的分析装置,包括浸出容器、龙头、盖子和支架,所述浸出容器的顶部敞口设有盖子,所述浸出容器的上部设进水口,所述浸出容器的下部设有龙头;所述支架包括塑料环Ⅰ、塑料环Ⅱ、带螺纹支柱、螺帽和土工布筛网,所述支架安装在浸出容器内部中央,由塑料环Ⅰ、塑料环Ⅱ环形搭配,推进式密封固定铺设在两塑料环间的土工布筛网,用螺帽固定并调节土工布筛网的位置。本实用新型适合研究整体材料与颗粒材料中的扩散浸出影响;设备开发很简单,试验相对容易实施;不同样品实验操作方便,换土工布筛网即可减小样品的交叉污染。

标签:
固废
上海 - 上海 来源:北方有色网 2023-03-19
高效率人工分拣固废垃圾设备

本实用新型提供了一种高效率人工分拣固废垃圾设备,包括电机震动给料机、分拣皮带机和料斗,所述电机震动给料机安装于所述分拣皮带机一端,所述电机震动给料机用于将物料均匀分布到所述分拣皮带机上,多个所述料斗安装在所述分拣皮带机两侧,所述料斗用于放入工人分拣出的杂质。本实用新型结构简单合理,成本低,降低了人工的劳动强度,提高了人工分拣的效率。

标签:
固废
上海 - 上海 来源:北方有色网 2023-03-19
有机固废生物发酵气体除臭装置

本实用新型公开了一种有机固废生物发酵气体除臭装置,涉及气体除臭技术领域。本实用新型包括过滤箱体,过滤箱体的内部固定有分隔板,分隔板将过滤箱体的内部分割成第一过滤仓和第二过滤仓,分隔板的下端固定有连接通管,连接通管用于将第一过滤仓和第二过滤仓连通;过滤箱体的外侧还分别设置有进气口和排水口,进气口与第一过滤仓相连,排水口与第二过滤仓相连。本实用新型通过第一过滤仓内的吸附箱和第二过滤仓内的喷淋管的配合设计,使得装置能够对厨余垃圾处理机发酵时产生的气体进行多次过滤除臭效果,减少厨余垃圾处理机造成的空气污染。

标签:
固废
上海 - 上海 来源:北方有色网 2023-03-19
自动固废转运站机构
自动固废转运站机构 743     
 0

本发明公开了一种自动固废转运站机构,涉及到转运站工艺的技术领域,包括:自动背放桶设备、自动翻转机构、容器、泊位、容器背放压缩车间、压实组件、起重机及垃圾容器转运车,自动背放桶设备上设有自动翻转机构,转运站内设有容器背放压缩车间,自动背放桶设备能够在容器背放压缩车间内移动,用于搬运容器,容器背放压缩车间内设有泊位,泊位用于摆放容器,泊位的上侧设有压实组件,起重机用于将容器运输至垃圾容器转运车上。实现站内转运车间自动搬运,从而实现了转运车间的无人化和自动化;转运车在转运车间外部,不参与站内搬运和背放桶动作;大大减少了转运车的工作内容,提高了转运车的转运效率。

标签:
固废
上海 - 上海 来源:北方有色网 2023-03-19
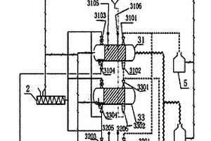
有机固废热解系统及方法

本发明公开了一种有机固废热解系统及方法。该系统包括依次连接的进料子系统、热解子系统连接和热解气净化子系统;进料子系统包括进料管;热解子系统包括间壁回转窑、窑内燃烧器和不凝气焚烧炉;间壁回转窑包括进料口、热解气出口、夹套烟气进口和夹套烟气出口;热解气出口与热解气净化子系统的入口连接,用于将热解气净化得到不凝气;热解气净化子系统通过第一不凝气输送管路与窑内燃烧器连接,为窑内燃烧器的燃烧提供不凝气;热解气净化子系统通过第二不凝气输送管路与不凝气焚烧炉的入口连接,用于产生烟气;不凝气焚烧炉的第一出口与夹套烟气进口连接。本发明系统换热效率高,且运行安全稳定。

标签:
固废
上海 - 上海 来源:北方有色网 2023-03-19
用于废轮胎废塑料类固废液氮深冷制粉的冷能回收系统

本实用新型提供了一种用于废轮胎废塑料类固废液氮深冷制粉的冷能回收系统,包括:料罐,料罐内设置有自下而上依次布置的第一腔室、第二腔室以及第三腔室,其中,第三腔室上设置有进料口,第一腔室和第二腔室连通,并且第二腔室和第三腔室连通;与料罐的第一腔室连接的卸料器;液氮工作室,液氮工作室与卸料器通过送料管路连接,送料管路通过第一管路与第一腔室连通;与液氮工作室连接的粉罐,粉罐通过第二管路和第三管路与第二腔室连通;其中第一管路上设置有用于将送料管路中的氮气抽送到第一腔室的第一风机,第二管路上设置有用于将第二管路中的气体抽送到粉罐的第二风机。本实用新型的目的在于至少回收再利用生成的胶粉中以及对物料进行降温处理后的一部分氮气中的冷能。

标签:
固废
上海 - 上海 来源:北方有色网 2023-03-19
用于废轮胎废塑料类固废液氮深冷制粉的地下装置

本实用新型提供了一种用于废轮胎废塑料类固废液氮深冷制粉的地下装置,包括:设置在地表上的顶板;设置在地下的容纳空间,容纳空间由底板以及从底板延伸到顶板的多个墙体形成;布置在容纳空间中的保护箱体和液氮冷能球磨机,保护箱体套设在液氮冷能球磨机上,保护箱体和液氮冷能球磨机通过至少一个支架固定在底板上;与液氮冷能球磨机通过出料管路连通的出料口;其中顶板上设置有进料口,进料口通过进料管路与液氮冷能球磨机连通;保护箱体上设置有用于进料管路和出料管路通过的开口;其中,保护箱体、液氮冷能球磨机、进料管路、出料管路以及顶板均包括消音绝热层。本实用新型的目的在于至少减小装置在工作期间对周围环境的噪声影响。

标签:
固废
上海 - 上海 来源:北方有色网 2023-03-19
固废焚烧烟气的处理装置

本实用新型公开了一种固废焚烧烟气的处理装置,包括依次连接的余热回收装置、低温等离子体反应装置、半干法脱酸装置、布袋除尘器、风机和烟囱,在锅炉的出气口连接余热回收装置,余热回收装置包括并排连接的一级省煤器和二级省煤器,能直接对锅炉内排出的烟气进行降温,回收烟气中的预热,同时避免后端布袋除尘器超温进行,同时,本实用新型中的低温等离子体反应装置可以实现二噁英、汞、NOx污染物一体化深度治理,有效消除污染物对环境的危害。

标签:
固废
上海 - 上海 来源:北方有色网 2023-03-19
安全简洁高效环保的焦油提纯及其固废处理系统

本发明涉及焦化生产技术领域,提供了一种安全简洁高效环保的焦油提纯及其固废处理系统;焦炉炉组的出气口与焦炉集气管喷洒连接,焦炉集气管喷洒的出口与气液分离器连接,气液分离器的混凝液出口与预分离器连接,预分离器的焦油渣出口与焦油压榨泵连接,焦油压榨泵的出料口与预分离器连接,同时预分离器的出液口与焦油氨水分离槽连接,焦油氨水分离槽的出油口与焦油储罐连接;焦油渣输送泵的出料口与焦炉炉组连接;所述的焦油氨水分离槽的出水口与焦炉集气管喷洒连接。解决了传统的焦油罐底人工清渣的难题,以及传统的焦油渣输送方式过程中会造成地面的油渣渗漏污染问题以及减少这个流程中的人工、车辆的损耗等问题。

标签:
固废
上海 - 上海 来源:北方有色网 2023-03-19
适用于低中放固废桶的超分辨率三维图像快速反演方法及系统

本发明提供了一种适用于低中放固废桶的超分辨率三维图像快速反演方法及系统,包括:步骤S1:模拟生成密度分布不均匀的废物桶;步骤S2:对每个废物桶进行γ扫描获得计数率,并结合迭代算法获得废物桶的三维密度图像;步骤S3:利用废物桶的三维密度图像训练预设卷积神经网络CNN,得到训练后的预设卷积神经网络CNN;步骤S4:利用训练后的预设卷积神经网络CNN得到超分辨率图像。本发明的目的就是利用CNN对迭代图像特征提取并识别,实现提高测量精度;利用更少的测量次数达到更高的图像分辨率,实现减少测量时间,从而实现TGS技术的实际应用。

标签:
固废
上海 - 上海 来源:北方有色网 2023-03-19
有机固废生化处理机
有机固废生化处理机 1068     
 0

本申请公开一种有机固废生化处理机,涉及微生物培养技术领域,包括有机体,机体上设置有搅拌槽,机体上还设置有搅拌装置和检测装置,搅拌装置包括有转动设置于搅拌槽中的搅拌轴,检测装置包括有设置于搅拌槽内的传感器;且搅拌槽处设置有温度调节装置和湿度调节装置。使用者将培养基、菌种等物料投入至搅拌槽中,搅拌装置搅拌、混合物料,并通过温度调节装置和湿度调节装置调节控制培养温度和培养湿度,以培养获得相应的微生物菌种、生物制品等。搅拌装置、检测装置、温度调节装置以及湿度调节装置集成于机体内,在满足搅拌、检测以及温、湿度调节的基础上,提高了各组成部件安装的紧凑性,降低了对实验室空间的占用。

标签:
固废
上海 - 上海 来源:北方有色网 2023-03-19
固废资源化生产除尘净化装置

本实用新型公开了一种固废资源化生产除尘净化装置,属于净化装置技术领域。包括除尘净化装置主体和位于除尘净化装置主体下方的出料口和收集槽,所述出料口的侧壁设置有安装座,所述安装座的两侧皆设置有插杆,所述插杆远离安装座的一端设置有滑套,所述插杆插设在滑套的内部,所述滑套的内部设置有压力弹簧,所述出料口与安装座之间滑动连接。本实用新型通过安装座、插杆和滑套的配合使用,可以使安装座、插杆和滑套在出料口的内壁进行移动,使安装座和滑套对出料口的内壁进行清理,从而使出料口内壁堆积的灰尘进行清扫,同时使内部的清理更加方便,避免灰尘堆积影响出料的情况。

标签:
固废
上海 - 上海 来源:北方有色网 2023-03-19
市政环保固废处理装置
市政环保固废处理装置 1036     
 0

本实用新型公开了一种市政环保固废处理装置,主要包括外框、传送带、出料筒、气泵、下轴、挡框、上轴和传动箱,所述外框左侧上部开设有进料口,所述传送带右端位于进料口处,所述外框内侧上部转动安装有上轴,上轴外侧固定安装有挡框,本实用新型在结构上设计合理,本装置对落叶进行彻底打碎,打碎后可以做菜园的覆盖物,碎叶会慢慢降解成肥料,起到改良土壤的作用,利用率高,避免污染环境;在粉碎中,上料的单次进料数量可控,粉碎彻底且避免损坏装置部件,且采用一个电机进行上料和打碎驱动,降低设备成本,出料流畅,使用方便。

标签:
固废
上海 - 上海 来源:北方有色网 2023-03-19
建筑装修固废用轻物料除杂装置

本实用新型属于废料加工技术领域,尤其为一种建筑装修固废用轻物料除杂装置,包括主体组件,所述主体组件包括撕碎机,所述撕碎机的上端设置有进料斗,所述进料斗的外表面设置有下料组件,所述下料组件包括防护板,所述防护板设置有两个。在向撕碎机内添加建筑垃圾一定时间后,会有部分垃圾存留在第二连接板的表面,电动伸缩杆的上端将第二连接板的一端顶起,第二连接板通过转动轴在进料斗内转动,第一连接板随之向上移动,将第二连接板上的垃圾重新倒入进料斗内,使下料组件保持干净的状态,增加了将垃圾倒入进料斗的空间,避免垃圾散落至机器设备上,从而保证机器设备的正常运行提高工作效率。

标签:
固废
上海 - 上海 来源:北方有色网 2023-03-19
环保型固废处理装置用焚烧装置

本实用新型公开了一种环保型固废处理装置用焚烧装置,主要包括外框、密封盖、外壳、引流管、电机和焚烧框,所述外框前侧中部转动安装有密封盖,所述外框底端中部设置有排料口,所述外框底端位于排料口处插接安装有插板,所述外框后侧中部嵌设安装有电机,电机的电机轴固定安装有插杆,插杆外侧后部固定安装有齿圈,所述插杆前侧套设安装有焚烧框,所述密封盖后侧转动安装有与焚烧框配合的转板。本实用新型在结构上设计合理,本焚烧装置废气处理完善,废气脱硫处理彻底,保证排气质量;设备在燃烧中,垃圾翻动焚烧,焚烧彻底,使用后清洁方便,方便使用。

标签:
固废
上海 - 上海 来源:北方有色网 2023-03-19
低温磁化固废处理炉的加料废气回流处理装置

本实用新型公开了一种低温磁化固废处理炉的加料废气回流处理装置,包括炉体,炉体包括中转仓和炉膛,中转仓设置在炉膛的上方,中转仓与炉膛之间设置有内门,内门将中转仓和炉膛隔开,中转仓顶端设置有炉盖,中转仓的一侧侧壁通过第一进气管和第二进气管与风机连接,第一进气管与第二进气管之间设置有进气阀,所述风机上设置有进气口,中转仓的另一侧侧壁通过第一回流管和第二回流管与炉膛顶部连接,第一回流管与第二回流管之间设置有回流阀,炉膛顶部设置有排气管;通过中转仓为废气回流提供气密空间,为湿料提供预热烘干场所,主动进气系统和废气回流系统使废气可以循环到炉膛内再次反应,达到防止炉内废气外泄、保护作业人员安全及环境的目的。

标签:
固废
上海 - 上海 来源:北方有色网 2023-03-19
便于清洗的固废分拣装置

本实用新型涉及一种便于清洗的固废分拣装置,包括筛箱,所述筛箱下端面四角均设有支腿,所述筛箱后端设有振动电机,所述筛箱内部设有筛网,所述筛箱前端面对应所述筛网开设有粗料口,所述筛箱前端面底部开设有通槽,所述筛箱内部底端设有倾斜块,所述筛箱上方贯穿设有进料漏斗,所述进料漏斗内部转动设有粉碎辊,所述粉碎辊设置有多个,多个所述粉碎辊均向后延伸贯穿所述进料漏斗,多个所述粉碎辊外端面后侧均设有齿轮,多个所述齿轮啮合设置,右端所述粉碎辊后端连接设有旋转电机;进料漏斗的设计,提高装置整体实用性;进水管和出水管的设计,方便清洗;挡板的设计,保证密封。

标签:
固废
上海 - 上海 来源:北方有色网 2023-03-19
智能型亚临界水技术有机固废处理设备

本实用新型公开了一种智能型亚临界水技术有机固废处理设备,包括智能控制平台、螺旋输送机、主反应釜、缓冲釜、蒸汽发生器、热媒体发生器、除臭装置、除尘装置,螺旋输送机分别并联连接两个主反应釜和一个缓冲釜的进料阀,所述缓冲釜的排料阀分别连接两个主反应釜的进料阀,所述两个主反应釜的排气阀分别连接缓冲釜的进气阀,蒸汽发生装置分别并联连接两个主反应釜的进气阀,热媒体发生装置分别并联连接两个主反应釜的釜体外设置的加热套,所述缓冲釜的排气阀依次连接除臭装置和除尘装置,智能控制平台分别连接所述螺旋输送机、两个主反应釜、缓冲釜、蒸汽发生装置和热媒体发生装置。本实用新型节能高效、布局紧凑、环保安全。

标签:
固废
上海 - 上海 来源:北方有色网 2023-03-19
固废预分拣箱
固废预分拣箱 865     
 0

本实用新型公开了一种固废预分拣箱,其包括开口箱体、斜向挡板,所述斜向挡板以呈一定倾斜角度设置在开口箱体的上方且与开口箱体的一端连接。本实用新型提供的方案能够有效提高分拣、周转及倾倒效率。

标签:
固废
上海 - 上海 来源:北方有色网 2023-03-19
环保安全的固废输送装置

本实用新型提供一种环保安全的固废输送装置,包括螺旋上料机,所述螺旋上料机倾斜设置,所述螺旋上料机下方设有的进料口,所述螺旋上料机下方的进料口处设有进料闸门,所述螺旋上料机的上方设有封堵结构,所述进料闸门和封堵结构与螺旋上料机的输送通道构成密封通道。本实用新型在进料口和出料口均设有密封结构,避免在上料的过程中大量新鲜空气进入炉内,导致炉内达到爆炸极限,损坏设备及系统;同时阻止炉内的高温尾气反灌。

标签:
固废
上海 - 上海 来源:北方有色网 2023-03-19
大宗固废资源化处理用风选设备

本实用新型公开了一种大宗固废资源化处理用风选设备,包括风选破碎设备主体,所述风选破碎设备主体的顶端安装有入料口,且入料口的内壁铰接有导流板,所述导流板远离风选破碎设备主体的一端表面铰接有带动杆,且带动杆的内部插设有引导块,所述引导块远离带动杆的一端固定连接有固定框,所述风选破碎设备主体的外侧安装有带动电机,且带动电机的输出端连接有固定转轴,所述固定转轴的表面套接定量辊。本实用新型通过导流板可以将入料口内部的物料进行引导,并通过定量辊内部的凹槽可以将物料进行收集,从而可以在定量辊转动时,使入料口内部的物料进行定量下落的作用,有效的提高了物料风选破碎的效果。

标签:
固废
上海 - 上海 来源:北方有色网 2023-03-19
固废边料切碎输送风机

本实用新型提供一种固废边料切碎输送风机,输送管线与不同生产线和废料集中区连接,以将生产线产生的废弃边料抽吸至同一废料集中区收集回收。其中,所述风机通过将其叶轮设置于输送管路中,并于叶轮上设置刃状叶片,从而在风机运动产生负压后将废弃边料吸入风机内实现抽吸集中废弃边料的作用,同时使废弃边料在经过所述刃状叶片时被切碎成预设的尺寸后被输送至废料集中区,本实用新型风机解决了现有皮带输送和人工输送存在的成本高、占地大、高维修量、效率低、产能低等弊病,能够通过风机内部叶轮的旋转,在切碎废弃边料的同时进行传输,达到提到耗能低、高效实用等有益技术效果。

标签:
固废
上海 - 上海 来源:北方有色网 2023-03-19
用于建筑装修固废用降尘装置

本实用新型属于降尘装置技术领域,尤其为一种用于建筑装修固废用降尘装置,包括主体组件和转动组件,所述主体组件包括箱体,所述箱体的底部设置有支撑轮,所述支撑架的顶部设置有雾炮主体,所述箱体的内部开设有容纳槽,所述容纳槽的内部设置有转动组件,所述转动组件包括电机,所述电机的输出轴与第一齿轮的一侧面固定连接,所述第一齿轮外部的齿块只有四分之一,所述第一齿轮的外部设置有框架,所述框架内壁的前后两侧设置有第一齿板,所述框架的一侧面固定连接有第二齿板,电机转动第一齿轮,第一齿轮和两个第一齿板之间啮合转动,使框架带动第二齿板传动第二齿轮,达到转动转盘和支撑架的效果,使雾炮在一定范围内转动。

标签:
固废
上海 - 上海 来源:北方有色网 2023-03-19
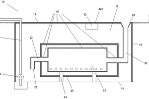
危固废处理用具备余热回收功能的焚化炉

本实用新型公开了一种危固废处理用具备余热回收功能的焚化炉,包括焚化炉本体和处理箱,所述处理箱外表面顶部的右端固定安装有鼓风机,所述鼓风机的输入端与焚化炉本体的顶部之间通过管道固定安装有导气箱,所述鼓风机的输出端通过管道与处理箱内腔的底部之间固定安装有导气管。本实用新型通过鼓风机、焚化炉本体、导气箱、导气管、处理箱、隔板、分流孔、无纺布袋、活性炭颗粒、排气口、活性炭过滤网、水泵、水箱与换热管以及导热翅片之间相互配合的作用下,实现了本焚化炉具备余热回收功能与烟气处理净化功能,有效的避免了高温烟气中的热量造成浪费,同时降低了烟气对外界环境所造成的污染。

标签:
固废
上海 - 上海 来源:北方有色网 2023-03-19
上一页 121 122 123 124 125 ... 136 下一页
共136页    到第

北方有色为您提供最新的上海上海有色金属固/危废处置技术理论与应用信息,涵盖发明专利、权利要求、说明书、技术领域、背景技术、实用新型内容及具体实施方式等有色技术内容。打造最具专业性的有色金属技术理论与应用平台!

全国热门有色金属设备推荐
展开更多 +
全国热门有色金属技术推荐
展开更多 +

 

江西省隆恩特环保设备有限公司
宣传

报名参会
更多+

报告下载

有色专家
更多+

长春黄金研究院有限公司
总经理
洛阳有色矿业集团有限公司
生产技术部经理
辽宁忠旺集团
教授级高工
矿冶科技集团
中国工程院院士
长沙矿冶院检测技术有限责任公司
总经理
赤泥综合利用研究报告2025
推广

热门技术
更多+

推荐企业
更多+

福建省金龙稀土股份有限公司
宣传

发布

在线客服

公众号

电话

顶部
咨询电话:
010-88793500-807