青岛垚鑫智能科技有限公司
宣传

位置:中冶有色 >

有色技术频道 >

> 废水处理技术

分类:
全部
矿山技术
冶金技术
材料制备及加工技术
环境保护技术
分析检测技术
 
全部
废水处理技术
大气治理技术
固/危废处置技术
土壤修复技术
地区:
全部
北京
天津
上海
重庆
河北
山西
辽宁
吉林
黑龙江
江苏
浙江
安徽
福建
江西
山东
河南
湖北
湖南
广东
海南
四川
贵州
云南
陕西
甘肃
青海
内蒙
广西
西藏
宁夏
新疆
其他
其他
展开
 
全部
合肥
芜湖
蚌埠
淮南
马鞍山
淮北
铜陵
安庆
黄山
阜阳
宿州
滁州
六安
宣城
池州
亳州

安徽滁州有色金属废水处理技术理论与应用

免费发布技术信息>>
环保工程咨询用风险评估系统

本发明公开的属于环保工程技术领域,具体为一种环保工程咨询用风险评估系统,包括:数据采集端,所述数据采集端包括废气排放量采集端、废水排放量采集端、工程单日处理量采集端、排放是否标准采集端和计算模块;动态跟踪采集端,所述动态跟踪采集端用于采集工业企业周围空气质量和水质量;数据过滤端,所述数据采集端、动态跟踪采集端的输出端与数据过滤端建立连接;数据传输模块,所述数据过滤端的输出端与数据传输模块建立连接;数据分析端,所述数据传输模块的输出端与数据分析端建立连接;数据库,所述数据库与数据分析端建立连接;输出显示端,所述输出显示端的输入端与数据分析端的输出端连接。

标签:
废水处理
安徽 - 滁州 来源:中冶有色网 2023-03-19
超强隔音加气砖
超强隔音加气砖 1191     
 0

本发明公开了一种超强隔音加气砖,由以下重量份计的下述组分组成:稻草灰55份、水泥25份、黏土5份、高炉矿渣6份、石灰石4份、铝粉0.8份、发泡剂2.5份、干燥剂1.5份、碳酸氢钠1.5份、硬脂酸钙3份、氯化石蜡0.6份、纤维素醚3份、聚丙烯纤维0.6份、聚硫胶3份、工业废水55份。本发明的目的是提供一种超强隔音加气砖,解决现有空心砖由水泥及粘土制成消耗资源大,同时具有隔声作用,绿色环保,制作成本低,效果好。

标签:
废水处理
安徽 - 滁州 来源:中冶有色网 2023-03-19
处理含重金属离子混合废酸中有用成分的方法

本发明涉及环境污染治理领域,具体是一种处理含重金属离子混合废酸中有用成分的方法,将含重金属离子混合废酸过滤去除颗粒杂质,同时将氯化钙、氢氧化钠和氧化钙固体分别在水中溶解配成溶液,并过滤去除其溶液中的固体杂质,分别制备氯化钙、氢氧化钠和氧化钙溶液。取一定量的氯化钙、氢氧化钠和氧化钙溶液加入到含重金属离子混合废酸中,分别控制化钙、氢氧化钠和氧化钙溶液的投加量,混合溶液经分步搅拌反应、沉淀、过滤后得到氟化钙、氢氧化铜、硫酸钙固体,且使含重金属离子的混合废酸得到净化,最终的滤液进入废水处理系统,实现达标排放;本发明可实现重金属离子混合废酸的中有用组分高效回收利用,成本较低。

标签:
废水处理
安徽 - 滁州 来源:中冶有色网 2023-03-19
防水抗压型压缩板
防水抗压型压缩板 779     
 0

本发明公开了一种防水抗压型压缩板,由以下重量份计的下述组分组成:废板材50‑52份、废纸箱20‑25份、废砖块5‑10份、白云石粉3‑5份、可再分散乳胶粉4‑6份、椰子纤维3‑5份、石蜡1.5‑2.5份、邻苯二甲酸二丁1‑2份、防水剂10‑15份、固化剂3‑5份、20‑25%硝酸8‑10份、10‑14%NaOH溶液15‑17份、工业废水40‑50份。本发明制备方法简单、易于工业化、成本低廉、防水、抗压性能好。

标签:
废水处理
安徽 - 滁州 来源:中冶有色网 2023-03-19
天然环保压缩板
天然环保压缩板 1140     
 0

本发明公开了一种天然环保压缩板,由以下重量份计的下述组分组成:绿化植物废弃物55‑65份、柳树皮20‑30份、芦苇秸秆10‑12份、水泥2‑4份、聚乙烯胶粉4‑6份、天竹纤维3‑5份、排烟脱硫石膏10‑15份、矿渣棉5‑7份、减水剂2‑3份、快干剂3‑5份、十二烷基苯磺酸钠2‑4份、三聚磷酸钠0.5‑1份、工业废水50‑70份。本发明制备方法简单、易于工业化、成本低廉、绿色环保。

标签:
废水处理
安徽 - 滁州 来源:中冶有色网 2023-03-19
污水脱氮处理的反应器
污水脱氮处理的反应器 1206     
 0

本发明属于工业污水处理技术领域,具体的说是一种污水脱氮处理的反应器,包括塔体;塔体内部固定安装有均匀分布的塔盘,塔盘用于塔体内部的气液传质,达到分离液体混合物或气体混合物组份的目的;塔盘的上表面开设有均匀分布的筛孔;塔盘的边缘固定安装有降液板;降液板的高度高于塔盘的上表面;工业废水通过降液板流到另一块塔盘上;塔盘的上表面固定安装有罩子,罩子位于筛孔的上方;罩子的上方安装有阀片,阀片的外表面开设有均匀分布的气孔;罩子的内部活动安装有转动件,转动件与阀片相连接,转动件带动阀片旋转提高传质效率;本发明结构简单解决了塔盘在进行传质的过程中,塔盘上的阀片易与塔盘粘结,发生阀片脱落或卡死等现象的问题。

标签:
废水处理
安徽 - 滁州 来源:中冶有色网 2023-03-19
矿业低成本反应型水处理装置及其处理方法

本发明涉及矿业技术领域,具体是一种矿业低成本反应型水处理装置及其处理方法,包括装置箱体,所述装置箱体内部依次设置有沉砂室、混合室、调节室和消毒室,且沉砂室、混合室和消毒室的内部均设置有输送机构,所述装置箱体的内侧底部设置有殴排放通道,且排放通道与沉砂室、混合室、调节室和消毒室内部连通,所述装置箱体的两端设置有进水口和排水口;本发明通过对矿业和矿冶废水进行沉淀处理,并把上清液溢流进入调节池进行调节处理,实现低成本矿业和矿冶废水处理;在对重金属离子和放射性核素也具有较高的沉淀处理效果,可广泛用于矿业、矿冶、化工、电镀、机械、核工业及环境保护和修复等所产生的重金属离子和放射性核素废水处理。

标签:
废水处理
安徽 - 滁州 来源:中冶有色网 2023-03-19
聚氯乙烯聚合母液回用工艺

本发明涉及一种聚氯乙烯聚合母液回用工艺,它包括步骤如下:S100,将聚氯乙烯离心母液废水进行二次过滤,将颗粒物和废水分离,并收集过滤后的清液和聚氯乙烯颗粒;其中一级过滤滤除粒径大于0.5μm的杂质,二级过滤滤除粒径大于0.2μm的杂质;在进行二级过滤前将聚氯乙烯离心母液废水送入HBF一级生物反应槽中,分解聚氯乙烯离心母液废水的COD;S200,将步骤S100中收集到的过滤后的清液经过回收水板式换热器换热后加酸调节用于次氯酸钠的制备用水。本发明聚氯乙烯聚合母液回用一方面节约大量的工业水,另一方面大大降低废水的外排,同时该工艺装置投资少,经过改造后的聚合母液可全部回用,避免了乙炔清静系统性的结垢节约大量维修费用。

标签:
废水处理
安徽 - 滁州 来源:中冶有色网 2023-03-19
二氯喹啉酸中间体的制备方法

本发明涉及农药中间体合成技术领域,具体为一种二氯喹啉酸中间体的制备方法,该中间体为7‑氯‑8‑喹啉羧酸,其反应方程式为:包括以下步骤:(1)在溶剂中,在反应温度为0~300℃、压力0~4.0Mpa下,将式I所示化合物在催化剂存在下与氧气进行氧化反应,生成式II所示结构化合物;(2)在反应温度为‑20~200℃下,将步骤(1)中合成的式II所示化合物和丙烯醛在有机溶剂和盐酸或硫酸中以铁粉为催化剂,还原并环合同步进行一锅法合成二氯喹啉酸中间体。本发明方法的反应体系简单,反应速度快,所得产品含量高,解决了现有所报道工艺中产品含量低,大大降低了废水量,适于工业化生产。

标签:
废水处理
安徽 - 滁州 来源:中冶有色网 2023-03-19
石墨烯改性凹凸棒土吸附剂及制备方法

本发明公开了一种石墨烯改性凹凸棒土吸附剂及制备方法,属于吸附剂技术领域。所述吸附剂包括如下组分:改性凹凸棒石粘土、石墨烯及适量溶剂。制备方法包括:先将凹凸棒石粘土的预处理除去泥浆和杂质,然后在经过盐酸改性,最后将酸改性后的凹凸棒石粘土和石墨烯加入到锥形瓶中,加水,搅拌均匀,然后超声30~50min,真空抽滤,然后置于真空干燥箱中干燥,研磨至粒径为100~200目,即得所述石墨烯改性凹凸棒石吸附剂。本发明所述吸附剂具有较好的吸附沉降效能,能够有效去除废水中的重金属离子及染料色素,为废水的安全排放提供了保障,具有较好的应用价值。此外,所述制备方法简单、条件温和、耗时短,适合工业生产。

标签:
废水处理
安徽 - 滁州 来源:中冶有色网 2023-03-19
四甲基乙二胺的制备方法

本发明公开了一种四甲基乙二胺的制备方法,包括以下步骤:高压釜中加入吡咯烷酮系列溶剂和复合催化剂TZOH,盖上釜盖,氮气置换后,先通入乙炔,温度平稳后,再通入二甲胺,反应釜升温至70~120℃,保温3~8小时;保温结束后,冷却,余压卸至吡咯烷酮系列溶剂中,套用到下批,釜内物料经过滤,回收催化剂;精馏母液,即为产物四甲基乙二胺;能够实现制得四甲基乙二胺,基本没有废水废渣产生,过量的原料、溶剂及催化剂可以回收套用,元素利用率高,较现有技术中产生大量含甲醛废水或工业废盐,环保优势明显。

标签:
废水处理
安徽 - 滁州 来源:中冶有色网 2023-03-19
改性凹凸棒土吸附剂及制备方法

本发明公开了一种改性凹凸棒土吸附剂及制备方法,属于吸附剂技术领域。所述吸附剂包括如下组分:改性凹凸棒石粘土、聚丙烯酰胺改性石墨烯及适量溶剂。制备方法包括:先将凹凸棒石粘土预处理除去泥浆和杂质,然后在经过盐酸改性,最后将酸改性后的凹凸棒石粘土和聚丙烯酰胺改性石墨烯加入到锥形瓶中,加水,搅拌均匀,然后超声30~50min,真空抽滤,然后置于真空干燥箱中干燥,研磨至粒径为100~200目,即得所述改性凹凸棒石吸附剂。所述吸附剂具有较好的吸附沉降效能,能够有效去除废水中的重金属离子及染料色素,为废水的安全排放提供了保障,具有较好的应用价值。且制备方法简单、条件温和、耗时短,适合工业生产。

标签:
废水处理
安徽 - 滁州 来源:中冶有色网 2023-03-19
用于呋喃酮生产的反应装置

本实用新型公开了一种用于呋喃酮生产的反应装置,它包括:一环化反应釜、一静置分层罐、一第一浓缩器、一第二浓缩器和一废水存储池,环化反应后得到的物质进入到静置分层罐中进行静置分层,静置分层后得到油相物质和水相物质,水相物质通过第二浓缩器浓缩后得到可回收物质和废水,可回收物质被输送至环化反应釜内进行回收利用;而油相物质通过第一浓缩器浓缩后得到呋喃酮半成品、可回收物质和废水,可回收物质被输送至环化反应釜内回收利用。本实用新型可以对油相物质和水相物质中的有用物质进行回收利用。

标签:
废水处理
安徽 - 滁州 来源:中冶有色网 2023-03-19
改性凹凸棒土吸附剂及其生产工艺

本发明公开了一种改性凹凸棒土吸附剂的生产工艺,取精制凹凸棒土放置于焙烧炉内,再温度为350‑450℃的条件下进行焙烧,且焙烧时间不少于1h;焙烧后的精制凹凸棒土加入甲苯中,再采用超声分散,得到混合溶液;然后在真空环境中,将精制凹凸棒土和甲苯混合溶液加热,加热至120‑140℃,然后再加入氨丙基三甲氧基硅烷,继续搅拌器搅拌均匀,去除溶液中液体,真空干燥,干燥后粉碎,制得复合纳米材料,将制得复合纳米材料完全浸泡在浓度为3%‑5%的硫酸溶液中,使用烘干箱烘干,即得改性凹凸棒土吸附剂;具有极好吸附性能,生产方便,可作为工业废水处理剂,能够捕获水体中的多种金属离子,处理方法简单,且不增加设备及工艺,极大地降低处理工业废水的成本。

标签:
废水处理
安徽 - 滁州 来源:中冶有色网 2023-03-19
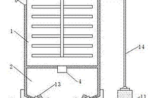
智能废水处理系统
智能废水处理系统 713     
 0

本实用新型公开了一种智能废水处理系统,包括依序设置的调节池、絮凝池、过滤装置、油水分离装置和油相检测装置,絮凝池的入水口处设置有PH检测装置,调节池通过第一料液输送装置与碱液储存池相连接,絮凝池通过第二料液输送装置与絮凝剂储存池相连接,油相检测装置和PH检测装置将检测的信号输送至控制装置,控制装置对输入的信号进行分析处理并调控第一、二料液输送装置的运行状态。上述技术方案中,通过油相检测装置和PH检测装置进行在线监测,这样污水组分的变化能够被迅速感知,通过控制装置进行相应的调控,保证污水处理的可靠性。

标签:
废水处理
安徽 - 滁州 来源:中冶有色网 2023-03-19
新型高盐废水浓缩分离器

本实用新型公开了一种新型高盐废水浓缩分离器,包括上锥体以及被塔板分隔而成的上筒体、下筒体,所述上锥体的顶部设有二次蒸汽出口,所述上锥体的内部从上到下依次设有上冲洗管、下冲洗管,所述上冲洗管与所述下冲洗管之间通过支板固定设有除沫器,所述上锥体的底部固定连接上筒体,所述上筒体的内通过支架固定设有筒体冲洗管,所述下筒体的一侧设有二次蒸汽进口,所述下筒体的另一侧设有人孔,所述下筒体的底部两侧均固定连接支耳,所述下筒体的底部通过焊接的连接方式安装有封头,本实用新型结构简单,实用方便,通过设置除沫器,防止损失二次蒸汽里有用的产品或污染冷凝液体,使用效果好,有利于提高生产效率。

标签:
废水处理
安徽 - 滁州 来源:中冶有色网 2023-03-19
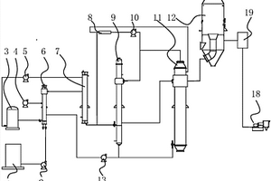
用于智能废水处理系统的油水分离装置

本实用新型公开了一种用于智能废水处理系统的油水分离装置,包括第一、二罐体,第一、二罐体内分别设置有疏水亲油过滤网膜、亲水疏油过滤网膜和油相回收管,罐体内腔被分隔成上、下依次布置的第一、二、三区域,第一、二污水注入管的出口分别延伸至第一罐体内的第二区域,第三区域的底部设置排水管,排水管出口处设置油相检测装置,油相回收管的入口延伸至第一区域内。上述技术方案提供的油水分离装置,其可对油水进行可靠分离,且可用于实现酸性含铅油污水的智能调控处理。

标签:
废水处理
安徽 - 滁州 来源:中冶有色网 2023-03-19
COD废水催化氧化处理方法及装置

本发明公开了一种COD废水催化氧化处理方法及装置,包括罐体,所述罐体上设置有进水口以及排水口,所述罐体内设置有COD过滤机构,所述罐体内还设置有:排污口,其位于所述排水口的上方;过滤网带,其通过两个滚轮滚动设置在罐体内,且阻拦在排水口的排水路径上,用于带动污泥脱离水面并送往排污口;刮板,其设置于排污口上,用于刮掉过滤网带表面携带的污泥。本发明通过设置过滤网带,可将污泥阻拦并与其发生附着,然后通过滚轮的驱动,带动污泥先离开水面,然后再在排污口内,经刮板的刮刷作用,使其上附着的污泥被刮掉并进入排污口内以向外排出,减少污泥在罐体内的堆积,避免后期费力的污泥打捞工作。

标签:
废水处理
安徽 - 滁州 来源:中冶有色网 2023-03-19
用于生活废水处理回用系统的反冲洗装置

本发明公开了用于生活废水处理回用系统的反冲洗装置,其结构包括污水进水口、反冲洗结构、出水管、液压阀、处理箱、底座、管道、转换筒、抽吸泵、阀门,底座上垂直安装有处理箱,处理箱顶端面嵌有污水进水口,处理箱的一侧安装有出水管,出水管装配有液压阀,出水管远离处理箱那端安装有反冲洗结构,与液压阀相对的处理箱另一侧通过两根管道与转换筒连通,转换筒顶端安装有抽吸泵,管道上安装有阀门,本发明具有反冲洗结构,具备有冲洗作用,在未冲洗时,弹片阻流结构、分流结构能够洗到分流过滤的作用,而利用水流反冲洗的原理与,弹片阻流结构相配合,多次冲刷本装置结构以及管道即出水管等,清洗更干净。

标签:
废水处理
安徽 - 滁州 来源:中冶有色网 2023-03-19
含盐废水结晶分离器
含盐废水结晶分离器 1050     
 0

本实用新型公开了一种含盐废水结晶分离器,包括上锥体、下锥体以及设置在上锥体与下锥体之间的筒体,所述上锥体的顶端嵌入式设有除沫筒,所述除沫筒的顶端焊接有封头,所述除沫筒的一侧设有人孔,所述除沫筒的另一侧设有二次蒸汽出口,所述除沫筒的底部设置有除沫装置,所述筒体的底部侧边嵌入式设置有循环液进口,所述筒体的内部中间位置设置有溢流槽,所述筒体的一侧对应溢流槽的位置连通有清液出料口,所述下锥体的侧壁设有循环液出口,所述循环液出口连通导向管,所述导向管的末端设有扩散锥,本实用新型结构简单,实用方便,解决了现有的结晶分离装置易堵塞,无法除沫的问题,通过设置除沫装置。

标签:
废水处理
安徽 - 滁州 来源:中冶有色网 2023-03-19
无废水环保反渗透高低压净水控制系统

本发明公开了一种无废水环保反渗透高低压净水控制系统,包括PP滤芯、循环水箱、离子交换树脂滤芯、自吸增压泵、超滤膜滤芯、反渗透膜滤芯、活性炭滤芯、压力水桶,在PP滤芯与循环水箱的管路上设有常闭电磁阀,第一低压开关串联在供电电路上,第二低压开关并联在供电电路上,第一低压开关和第二低压开关都为常开式开关,第一低压开关的起跳压力小于第二低压开关的起跳压力;第一高压开关并联在供电电路上,第二高压开关串联在第二低压开关上,第一高压开关与第二高压开关并联接入常闭电磁阀,第一高压开关和第二高压开关都为常闭式开关,第一高压开关的起跳压力小于第二高压开关的起跳压力。本发明在不同水压条件下可以有效可靠地保护净水系统。

标签:
废水处理
安徽 - 滁州 来源:中冶有色网 2023-03-19
多层过滤废水预处理设备

本实用新型公开了一种多层过滤废水预处理设备,包括顶部设置有开口的水槽,水槽一侧内侧壁沿竖直方向等距设置有倾斜设置的固定框架,固定框架的底部内圈固定套接有顶部设有开口的过滤袋,固定框架较低的一端顶部固定连接有与水槽内侧壁固定连接的U型结构的引导槽,引导槽远离固定框架的一端安装有与水槽固定连接的排放管,引导槽靠近固定框架的一侧下方安装有与水槽活动套接的拨动机构,拨动机构包括与水槽活动套接的转轴。本实用新型结构简单操作方便快捷,能够对污水进行多层过滤预处理,将污水中的异物逐次清除,同时将过滤袋中的异物进行清除,避免过滤袋堵塞,方便将过滤的异物进行收集。

标签:
废水处理
安徽 - 滁州 来源:中冶有色网 2023-03-19
含铁屑的废水的循环利用机组

本实用新型公开了一种含铁屑的废水的循环利用机组,包括:水槽、进水管、出水口、磁性滚轴、电动机、塑料滚轴、铁块、倾斜铁片,水槽的右侧面上焊接一个进水管,水槽底面打通一个出水口,磁性滚轴两端的铁轴穿过水槽前面与后面的圆孔,且出水口在磁性滚轴的右侧,磁性滚轴的一端通过齿轮与电动机连接,磁性滚轴的右上方放置一个塑料滚轴,塑料滚轴的铁轴两端穿过铁块左端的圆孔,铁块的右端焊接在水槽的前面与后面,且磁性滚轴与塑料滚轴接触,倾斜铁片与水槽的底面、前面和后面焊接,且倾斜铁片紧贴磁性滚轴的左下面,本实用新型具有提高生产效率、降低成本等优点。

标签:
废水处理
安徽 - 滁州 来源:中冶有色网 2023-03-19
反渗透无废水环保净水系统

本发明公开了一种反渗透无废水环保净水系统,包括PP滤芯、循环水箱、离子交换树脂滤芯、自吸增压泵、超滤膜滤芯、反渗透膜滤芯、活性炭滤芯、压力水桶,在PP滤芯与循环水箱的管路上设有常闭电磁阀,第一低压开关串联在供电电路上,第二低压开关并联在供电电路上,第一低压开关和第二低压开关都为常开式开关,第一低压开关的起跳压力小于第二低压开关的起跳压力;第一高压开关并联在供电电路上,第二高压开关串联在第二低压开关上,第一高压开关与第二高压开关并联接入常闭电磁阀,第一高压开关和第二高压开关都为常闭式开关,第一高压开关的起跳压力小于第二高压开关的起跳压力。本发明在不同水压条件下可以有效可靠地保护净水系统。

标签:
废水处理
安徽 - 滁州 来源:中冶有色网 2023-03-19
含盐废水蒸发结晶装置

本发明公开了一种含盐废水蒸发结晶装置,包括进料装置、蒸发装置、浓缩装置,分离装置,所述进料装置包括进料罐以及与所述进料罐管连接的进料泵,所述进料泵的出口端与冷凝器管连接,所述蒸发装置包括与所述冷凝器管连接的预热器,所述预热器的底端与预浓缩加热器管连接,所述浓缩装置包括与所述预浓缩加热器管连接的浓缩结晶加热器,所述浓缩结晶加热器与结晶浓缩分离器管连接,所述分离装置包括与所述结晶浓缩分离器管连接的晶浆罐,所述晶浆罐的底端与离心机管连接,本发明结构简单,安全可靠,通过冷凝器、预浓缩加热器、浓缩结晶加热器、结晶浓缩分离器的配合连接,解决了现有的含盐处理装置结晶量少,耗能大的问题。

标签:
废水处理
安徽 - 滁州 来源:中冶有色网 2023-03-19
三氯蔗糖-6-乙酯废水处理方法

本发明涉及一种三氯蔗糖‑6‑乙酯废水处理方法,包括以下步骤:a.将母液洗涤后的洗涤水打入萃杂釜,加入乙酸乙酯进行萃取除杂,得萃杂水相和除杂酯相,将除杂酯相返回至单效浓缩工段使用;b.将萃杂水相中加入粗品酯重结母液,混合后分离得到的水相返回至中和浓干液工段使用,分离得到的萃糖后酯相,继续进行单效浓缩、压滤,压滤后得三氯蔗糖‑6‑乙酯二次粗品和二次粗品母液,三氯蔗糖‑6‑乙酯二次粗品返回至粗品酯重结工段使用,二次粗品母液返回至母液浓干工段继续使用。本发明优点在于:尽可能的除去杂质可提高产品得率,三氯蔗糖‑6‑乙酯含量达到99%以上,使三氯蔗糖产品质量大幅提升,洗涤水可循环套用减少排污量。

标签:
废水处理
安徽 - 滁州 来源:中冶有色网 2023-03-19
无废水环保净水系统
无废水环保净水系统 1164     
 0

本发明公开了一种无废水环保净水系统,在净水滤芯与循环水箱的管路上设有常闭电磁阀,在进水接口与净水滤芯的管路上连接第一低压开关和第二低压开关,在循环水箱的进出管路上连接第一高压开关和第二高压开关,第一低压开关串联在供电电路上,第二低压开关并联在供电电路上,第一低压开关和第二低压开关都为常开式开关,第一低压开关的起跳压力小于第二低压开关的起跳压力;第一高压开关并联在供电电路上,第二高压开关串联在第二低压开关上,第一高压开关与第二高压开关并联接入常闭电磁阀,第一高压开关和第二高压开关都为常闭式开关,第一高压开关的起跳压力小于第二高压开关的起跳压力。本发明在不同水压条件下可以有效可靠地保护净水系统。

标签:
废水处理
安徽 - 滁州 来源:中冶有色网 2023-03-19
金属加工用废水处理设备

本实用新型公开了一种金属加工用废水处理设备,包括机体,所述机体的一侧表面设置有站立平台,且站立平台的底部表面分布有平台凹槽,所述站立平台的底部固定有支撑钢条,且支撑钢条的两端设置有一体式的矩形固定块,而支撑钢条顶端的矩形固定块处于平台凹槽的内部,所述机体的一侧表面分布有半封闭滑槽;本实用新型在使用时当需要对机体进行运输搬运时,可将整个扶梯从机体表面拆卸掉,从而大幅度减少了运输时所占用的空间,使得运输成本降低,且由于扶梯整体为可拆卸式,就不存在运输途中因碰撞导致扶梯与机体之间的焊接点断裂问题,且由于扶梯的零部件在拆卸和安装时较为便捷,当扶梯内部某个护栏或零件损坏时,也可以进行单独的更换。

标签:
废水处理
安徽 - 滁州 来源:中冶有色网 2023-03-19
磁性凹凸棒土废水处理的装置

本实用新型公开了一种磁性凹凸棒土废水处理的装置,包括搅拌室、氧化室和臭氧发生器,所述搅拌室位于氧化室的顶部,所述氧化室的底部设有支腿,所述搅拌室和氧化室之间通过中间管连接,所述电机的输出端通过联轴器连接有贯穿搅拌室的转杆,所述转杆上均匀的连接有搅拌桨,所述臭氧发生器安装在氧化室的一侧,所述臭氧发生器的输出端连接有第一管道,所述第一管道的一端伸入到氧化室内部,且端部连接有曝气头,所述搅拌室一侧的顶部连接有第二管道,所述第二管道的端部连接到臭氧发生器的进气口。使搅拌桨加速水流运转,从而达到快速脱色的效果,将含有臭氧的废气回收再利用,达到节约臭氧的效果,满足环保需求。

标签:
废水处理
安徽 - 滁州 来源:中冶有色网 2023-03-19
无废水环保水压适应型净水控制系统

本发明公开了一种无废水环保水压适应型净水控制系统,在净水滤芯与循环水箱的管路上设有常闭电磁阀,在进水接口与净水滤芯的管路上连接第一低压开关和第二低压开关,在循环水箱的进出管路上连接第一高压开关和第二高压开关,第一低压开关串联在供电电路上,第二低压开关并联在供电电路上,第一低压开关的起跳压力小于第二低压开关的起跳压力;第一高压开关并联在供电电路上,第二高压开关串联在第二低压开关上,第一高压开关与第二高压开关并联接入常闭电磁阀,第一高压开关的起跳压力小于第二高压开关的起跳压力。本发明在不同水压条件下可以有效可靠地保护净水系统。

标签:
废水处理
安徽 - 滁州 来源:中冶有色网 2023-03-19
上一页 4 5 6 7 8 ... 11 下一页
共11页    到第

中冶有色为您提供最新的安徽滁州有色金属废水处理技术理论与应用信息,涵盖发明专利、权利要求、说明书、技术领域、背景技术、实用新型内容及具体实施方式等有色技术内容。打造最具专业性的有色金属技术理论与应用平台!

全国热门有色金属设备推荐
展开更多 +
全国热门有色金属技术推荐
展开更多 +

 

江西省隆恩特环保设备有限公司
宣传

报名参会
更多+

报告下载

有色专家
更多+

矿冶科技集团有限公司
所长/研究员级高工
赣州江钨钨合金有限公司
副总经理
云南锡业集团(控股)有限责任公司
副总经理
北京工业大学、中国工程院
中国工程院 院士
长沙有色冶金设计研究院有限公司
正高级工程师/中国铝业首席工程师/全国有色金属行业设计大师/国家注册采矿工程师
赤泥综合利用研究报告2025
推广

热门技术
更多+

推荐企业
更多+

福建省金龙稀土股份有限公司
宣传

发布

在线客服

公众号

电话

顶部
咨询电话:
010-88793500-807