青岛垚鑫智能科技有限公司
宣传

位置:北方有色 >

有色技术频道 >

分类:
全部
矿山技术
冶金技术
材料制备及加工技术
环境保护技术
分析检测技术
 
全部
废水处理技术
大气治理技术
固/危废处置技术
土壤修复技术
地区:
全部
北京
天津
上海
重庆
河北
山西
辽宁
吉林
黑龙江
江苏
浙江
安徽
福建
江西
山东
河南
湖北
湖南
广东
海南
四川
贵州
云南
陕西
甘肃
青海
内蒙
广西
西藏
宁夏
新疆
其他
其他
展开
 
全部
南京
无锡
徐州
常州
苏州
南通
连云港
淮安
盐城
扬州
镇江
泰州
宿迁

江苏扬州有色金属环境保护技术理论与应用

免费发布技术信息>>
焦化废水提取苯并芘工艺及其装置

本发明涉及一种焦化废水提取苯并芘工艺及其装置。焦化废水提取苯并芘工艺包括以下步骤:混凝、溶气、气浮和过滤。焦化废水提取苯并芘装置包括混凝剂贮槽、混凝剂药液槽、溶液泵、压缩空气机、溶气罐、气浮池、炭吸附过滤罐、排渣罐和出水中间池,其中溶气罐、气浮池、炭吸附过滤罐、出水中间池依次连通,气浮池与排渣罐连通,排渣罐中设有油泥渣干燥装置,本发明解决了目前采用单一方法处理和清除废水中的苯并芘及多环芳烃的效果并不理想,可方便、快捷和智能的对气浮池水面的界面处的油泥渣进行很好的收集工作,并进行油泥的离心和干燥装置,使得处理后的产出物能够有效的利用。

标签:
废水处理
江苏 - 扬州 来源:北方有色网 2023-03-19
脱硫废水资源化利用的方法

本发明涉及一种脱硫废水资源化利用的方法。本发明将脱硫废水中的盐分转化为氯化钠盐,同时得到含有有机物的淡盐水。淡盐水经去除有机物杂质后,浓缩用于配置电解盐水;膜分离后的淡水可作为工艺水回用。本发明的优点是脱硫废水作为资源被应用,在废水得到处理的同时,得到碱、氯化铁和水三种产品,具有非常好的经济效益、环境效益和社会效益。该法推广应用可以彻底解决脱硫废水生产工艺自身的废水污染瓶颈问题。

标签:
废水处理
江苏 - 扬州 来源:北方有色网 2023-03-19
高浓度有机废水处理系统

本发明提供一种高浓度有机废水处理系统,包括顺次设置的初沉池、厌氧池、释磷池、曝气生物过滤池、二沉池、混凝池。物化法和生化法相结合的对有机废水进行有效处理,处理后的废水包括COD、BOD、SS、氨氮、总磷、pH等在内的指标均符合国家三级排放标准(GB8978‑2002)环保排放。有机物去除率高,系统运行稳定、节能。排放的废水指标为:生化需氧量(BOD)≤60mg/L;化学需氧量(COD)≤55mg/L,去除率在95%以上;氨氮(以N计)≤23mg/L;总磷(以P计)≤8mg/L;悬浮物(SS)≤38mg/L;pH为6.5~7.5。

标签:
废水处理
江苏 - 扬州 来源:北方有色网 2023-03-19
用于苯酚废水处理的三效蒸发器

本实用新型属于三效蒸发器技术领域,尤其为一种用于苯酚废水处理的三效蒸发器,包括第一加热室,所述第一加热室的一侧安装有一效蒸发室,所述一效蒸发室的另一侧安装有第二加热室,所述第二加热室远离所述一效蒸发室的一侧安装有二效蒸发室;使第一加热室和第二加热室内部的冷凝水经出水管流入到分接管底部的总接管,通过水泵把总接管内部的冷凝水流入到辅助加热套处,当废水流入到第三加热室时,通过辅助加热套传导的热量对第三加热室内部的废水进行加热,接通真空泵的电源,在连接管的配合下使真空罩内部为真空状态,这样可以减小热量散失,通过滤网可以对冷凝水内部的杂质进行过滤,避免杂质流入到总接管的内部。

标签:
废水处理
江苏 - 扬州 来源:北方有色网 2023-03-19
高浓度废水处理系统
高浓度废水处理系统 889     
 0

本发明提供一种高浓度废水处理系统,包括顺次设置的一级催化氧化池、水解酸化池、二级催化氧化池、生物氧化池、沉淀池、三级催化氧化池;本发明的高浓度废水处理系统,对污染物浓度高、色度大、毒性强,不仅含有大量有机污染物,还含有氨氮、磷和各类重金属污染物的组分复杂高浓度有机废水,采用多级催化氧化工艺流,并结合传统生化法工艺,多管齐下,为难处理废水找到有效可行的解决方案。再通过优化工艺流程,达到减少污泥产出量、降低运行成本的目的。

标签:
废水处理
江苏 - 扬州 来源:北方有色网 2023-03-19
脱硫脱硝废水处理装置
脱硫脱硝废水处理装置 1052     
 0

本实用新型涉及一种脱硫脱硝废水处理装置。所述的废水处理装置包括废水调节罐、三联箱、机械澄清罐、氧化罐、机械过滤器、化学加药子系统和污泥处理子系统,含硫废水进入废水调节罐内调节水质,所述的废水调节罐与三联箱连接,所述的三联箱为依次连接的中和箱、沉淀箱、絮凝箱,所述的三联箱连通至机械澄清罐,所述的机械澄清罐连通至氧化罐,所述的氧化罐连通至机械过滤器。本实用新型结构简单、废水处理效率高、工艺流程短、运行稳定、自动化程度高、泥水分离、过滤效果好。

标签:
废水处理
江苏 - 扬州 来源:北方有色网 2023-03-19
电镀废水净化处理设备

本实用新型公开了一种电镀废水净化处理设备,包括废水收集池、搅拌曝气池、反渗透设备、蒸发结晶设备和液体分流器,所述废水收集池、搅拌曝气池、反渗透设备通过输送管道相互连接,输送管道上设置有水泵;所述搅拌曝气池中设置有气管,气管的出气口设置搅拌曝气池底部,且搅拌曝气池中加有添加剂;所述搅拌曝气池与反渗透设备的进液端相互连接,反渗透设备的净水出水口与液体分流器连接,废水出水口与蒸发结晶设备连接;所述液体分流器设置有两个出水口,其中一个与废水收集池的加水口连接;本实用新型通过对废水过滤、加入添加剂、搅拌曝气,之后再通过反渗透设备污水蒸发结晶净化,从而对废水进行处理净化。

标签:
废水处理
江苏 - 扬州 来源:北方有色网 2023-03-19
环氧树脂生产中废水的处理方法

本发明提供了一种环氧树脂生产中废水的处理方法。该处理方法包括以下步骤:步骤S1,将环氧树脂生产中废水通过第一RO膜浓缩,得到第一浓水和第一淡水;步骤S2,将第一浓水经MVR蒸发处理,得到浓缩液和蒸发液;步骤S3,将第一淡水和氧化剂通入反应器中,进行AOP氧化处理,得到氧化水;步骤S4,氧化水经过第二RO膜,得到出水浓水和出水淡水。本申请将膜浓缩与MVR蒸发技术联合使用,能够实现环氧树脂生产中废水中有效成分的回收,同时避免多次蒸发提浓导致的能耗高的问题;另一方面,将膜浓缩处理得到的水,通过联合AOP氧化技术,使出水清洁,有利于实现水的循环利用和零排放。

标签:
废水处理
江苏 - 扬州 来源:北方有色网 2023-03-19
利用纳米管-纳米银-聚氯化铝复合材料处理难降解有机废水的设备

本发明公开了一种纳米管-纳米银-聚氯化铝复合材料。还公开了该复合材料的制备方法。还提供了该复合材料在难降解有机废水处理中的应用。还提供了一种利用纳米管-纳米银-聚氯化铝复合材料处理难降解有机废水处理设备。该复合材料磁分离特性好,对有机污染物去除效果好,其制备方法简单,制备过程易控,制备的纳米管-纳米银-聚氯化铝复合材料质量稳定。该处理难降解有机废水的设备结构简单,使用方便,出水效率高,质量好。

标签:
废水处理
江苏 - 扬州 来源:北方有色网 2023-03-19
铝箔生产废水回收利用装置

本发明公开了一种铝箔生产废水回收利用装置,包括壳体、进水口、第一连接法兰、集水箱、提升泵、反应池、电机、搅拌棒、导流板、吸风扇、隔板、干燥孔、废气出口、反应剂箱、电磁阀、蓄水箱、过滤网、活性炭吸附层、纤维超滤膜层、出水口以及第二连接法兰。本发明铝箔生产废水回收利用装置能有效地实现水的循环利用,节约生产成本;在水的过滤中,隔板能有效地阻止废气携带具有污染性的水珠流出,使生产废气能够达标排放,提高生产效益;反应池能后除去废水中阴阳离子杂质,解决了杂质对铝箔质量影响的问题,提高废水利用率;过滤网有效地过滤废水中的有机物和细微杂质等污染物,使得废水能够达到生产所需纯水标准,节约水资源。

标签:
废水处理
江苏 - 扬州 来源:北方有色网 2023-03-19
羽绒废水快速处理净化装置

本发明涉及羽绒加工生产领域的一种羽绒废水快速处理净化装置,包括废水处理装置本体,该废水处理装置本体包括总支架,支架与地面之间配合设置有缓冲连接结构,废水处理装置本体包括一级处理主塔和二级处理副塔,一级处理主塔和二级处理副塔通过抽吸管道进行连接,一级处理主塔和二级处理副塔的旁边分别配合设置有钢架结构,钢架结构上配合设置有检修爬梯,一级处理主塔和二级处理副塔的顶部和底部分别设置有进口和出口;一级处理主塔和二级处理副塔的旁边还设置有缓冲收集机构;该发明结构简单,使用可靠,在实际的生产过程中能够快速有效的对污水进行多层次过滤,同时还能够进行快速消毒,提高污水处理的效率,降低维护的成本。

标签:
废水处理
江苏 - 扬州 来源:北方有色网 2023-03-19
纺织品染色废水处理剂及其制备方法

本发明公开了一种纺织品染色废水处理剂及其制备方法,染色废水处理机包括如下质量份数的物质:甲壳素2‑8份、15‑25份淀粉、交联剂0.5‑1份、尿素2‑5份、氢氧化钠1‑2份。本发明中的染色废水处理剂以甲壳素和淀粉为主要原料,使用之后可以在自然环境下完全降解,不会对环境造成严重破坏,环境友好;本发明中的废水处理剂利用物质自身的吸附能力进行吸附,受外部环境条件限制小,适用范围广。

标签:
废水处理
江苏 - 扬州 来源:北方有色网 2023-03-19
制药废水处理成套设备
制药废水处理成套设备 1182     
 0

本实用新型涉及一种制药废水处理成套设备,包括通过管道依次连接的集水池、隔油装置、吹脱反应装置、一级调节池、一级中和池、二级中和池、二级调节池、一级电氧化催化装置、二级电氧化催化装置、絮凝沉淀池、水解酸化反应器、厌氧反应器、超声波膜生物发生器和沉淀池,所述吹脱反应装置还连接有降膜吸收装置。与现有技术相比,本实用新型的制药废水处理成套设备能够有效回收甲醛和乙醇等易挥发物质,使废水中难降解的大分子有机物分解为小分子有机物,并且进一步降解为无毒无害的物质,同时提高了B/C值,利于生化处理,并显著地降低了废水的氨氮浓度和COD值。

标签:
废水处理
江苏 - 扬州 来源:北方有色网 2023-03-19
阀门铸造废水碱处理工艺

本发明涉及阀门铸造技术领域,尤其涉及一种阀门铸造废水碱处理工艺,包括以下步骤:步骤一:将阀门铸造废水经过格栅过滤之后,泵入至调节池内并调节其pH至7.5~8.5,PH调节后,进行一级电Fenton微电解催化反应处理;步骤二:将经上一级处理后的阀门铸造废水流到中和曝气池,在曝气池内用压缩空气进行搅拌,并将废水中的Fe2+转化为Fe3+;步骤三:将经上一级处理后的阀门铸造废水经400~500目滤网过滤。本发明通过对阀门铸造废水微电解催化反应处理,对阀门铸造废水中的杂物起到一个聚集与沉淀作用,并且同时也将废水中的大的、难以分解的有机分子去除,通过对阀门铸造废水进行沉淀处理时,使得杂质的去除更为彻底,使获得的水体更为洁净。

标签:
废水处理
江苏 - 扬州 来源:北方有色网 2023-03-19
用于畜禽粪污的废水处理装置

本实用新型公开了一种用于畜禽粪污的废水处理装置,包括箱体,所述箱体的顶部左侧设置有固定架,所述固定架内设置有絮凝池,且固定架的顶部安装有顶架,所述絮凝池内设置有搅拌杆,所述顶架的顶部设置有输出端与搅拌杆顶端相固定连接的电机,所述固定架的顶部设置有与絮凝池相连通的进液管,所述顶架上设置有储存罐,所述絮凝池内设置有输送泵,所述输送泵上连接有连通管,所述箱体的顶部右侧设置有固液分离器,所述连通管与固液分离器进水位置相连通,所述箱体内右侧位置设置有过滤腔。本实用新型中,整个结构能够有效实现深层次的畜禽粪污废水处理工作,有效提升了废水处理效率,节约能源,减少废水对环境的污染。

标签:
废水处理
江苏 - 扬州 来源:北方有色网 2023-03-19
旅居车用生活废水循环利用装置

本实用新型公开了旅居车用生活废水循环利用装置,涉及旅居车技术领域。该旅居车用生活废水循环利用装置,包括旅居车本体,所述旅居车本体的左侧开设有废水处理腔室,废水处理腔室的内部转动连接有挡板,废水处理腔室的内壁固定连接有过滤箱与净化箱,过滤箱的外表面开设有与过滤箱内部连通的安装槽。该旅居车用生活废水循环利用装置,通过电机带动转动轴与清扫杆进行转动,同时由于清扫杆与转动轴形成T字形,使清扫杆可以以转动轴为圆心进行转动,并通过毛刷对过滤网的顶部进行清扫,在一定程度上减少废水中的杂质堆积在过滤网顶部的一个地方,使过滤网的网孔出现堵塞,并使废水过滤速度受到影响,造成设备出现故障的情况。

标签:
废水处理
江苏 - 扬州 来源:北方有色网 2023-03-19
嗜温嗜碱微生物菌群及染料废水的降解方法

本发明公开了一种嗜温嗜碱微生物菌群及染料废水的降解方法,降解方法包括以下步骤:①嗜温嗜碱微生物菌群的筛选和驯化;②嗜温嗜碱微生物菌群的活化得到菌悬液;③染料废水的降解;吸取步骤②的菌悬液,加入到装有无机盐培养基和染料废水的三角瓶中,在恒温45℃~55℃、静置避光培养至废水脱色。本发明筛选和驯化得到的微生物菌群耐高温和高pH环境,在高温和高碱环境下对偶氮染料的降解效果好。采用本发明的微生物菌群降解染料废水,无需预处理如降温、人工调节pH至中性左右,对高温高碱染料废水的处理成本低。

标签:
废水处理
江苏 - 扬州 来源:北方有色网 2023-03-19
高浓度氨氮废水处理工艺及氨回收系统

本发明提供了一种高浓度氨氮废水处理工艺,步骤如下:将高浓度氨氮废水通入调节池进行水质水量均匀调整;按照每吨水投入3~5kg第一混合物的比例,向废水中投加第一混合物和阳离子聚丙烯酰胺,调节pH值至10.5~12;将处理后的水泵入脱氮装置中,投加第二混合物,每吨水投加8~15g;向水中投加氢氧化钠水溶液,使pH值维持在10.5以上,并保持水温为45~55℃,反应2~4小时;排放处理后的废水,并回收氨气。本发明的高浓度氨氮废水处理工艺及氨回收系统能够加速氨氮废水中的有机胺或铵盐快速转化为游离氨,对废水中的氨氮有极高的氨氮去除效果,显著提高脱氮效率,除氨效果稳定、操作简单。

标签:
废水处理
江苏 - 扬州 来源:北方有色网 2023-03-19
高浓度高色度高盐度难降解有机废水的分离浓缩设备及操作方法

一种高浓度高色度高盐度难降解有机废水的分离浓缩设备及操作方法。涉及一种污水处理装备领域,尤其涉及一种高浓度高色度高盐度难降解有机废水的分离浓缩设备及操作方法。提供了一种将高浓度高色度高盐度的有机废水中的大分子的有机物和小分子的无机盐分离浓缩成有机物浓缩液、无机盐浓缩液和清水三部分,实现高浓度高色度高盐度的有机废水的资源化、减量化低成本处理的一种高浓度高色度高盐度难降解有机废水的分离浓缩设备及操作方法。包括有机物分离浓缩池、第一控制系统、无机盐分离浓缩池、第二控制系统、清水池、第三控制系统、有机物浓缩液储罐和无机盐浓缩液储罐;所述管体三竖向固定设置在所述清水池内。本发明处理效果好成本低。

标签:
废水处理
江苏 - 扬州 来源:北方有色网 2023-03-19
应用酚水气化回用技术实现生物质燃气生产无废水排放的工艺方法

本发明提供了一种应用酚水回用技术实现生物质燃气生产无废水排放的工艺方法,其特征在于,被生物质燃气加热至60~65℃的酚水在高速离心机的离心飞溅这种机械方式和被生物质燃气加热至80~90℃的热空气的夹带作用下,全部进入气化炉内参入反应,将原本对环境有害、治理难度大的酚水转化为有价值的燃气,这不仅提高了生物质燃气的热值和气化炉的气化效率,而且大大降低了企业治理酚水的成本。这种工艺方法简单合理、处理成本低、节能环保,克服了传统工艺需人力清除高沸点酚类物质的缺点,真正实现了酚水零排放,不会产生酚水污染及二次污染问题。利用该工艺方法治理含酚废水,是余热回收、废水循环利用与含酚污水治理的有机结合,有效实现了燃气站的节能与减排。

标签:
废水处理
江苏 - 扬州 来源:北方有色网 2023-03-19
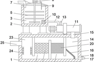
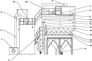
新型废水过滤器
新型废水过滤器 887     
 0

本实用新型涉及污水处理技术领域,具体为一种新型废水过滤器,包括废水过滤器本体,废水过滤器本体包括壳体及壳体上方可打开的盖体,壳体的上侧位置设置有进水口,壳体的下侧位置设置有出水口,进水口、出水口分别与对应的管路连接并配合设置有阀门,所述盖体与壳体之间设有压紧机构,壳体内部装有可拆卸式筛筒组件,可拆卸式筛筒组件与壳体内部设置有内部密封装置,可拆卸式筛筒组件与盖体之间设置有顶部密封装置,本实用新型通过设置废水杂质分离处理机构,实现对废水的初步过滤,能够提高废水过滤的工作效率,改善废水的过滤效果,使清理更加简洁方便,避免造成环境污染。

标签:
废水处理
江苏 - 扬州 来源:北方有色网 2023-03-19
微通道协同氯水及电子束深度处理有机废水的方法

本发明提出了一种微通道协同氯水及电子束深度处理有机废水的方法,其特征在于,包括如下步骤:S1、向微通道反应器内通入氯水以及有机废水获取中间液;S2、以电子束辐照射间液,向出水中加入絮凝剂沉淀;S3、过滤S2中所得混合液并加入还原剂,经RO膜得中水COD<50ppm,SS<10mg/L;于S1中氯水与有机废水的质量比为1‑30:100。本发明由于微通道反应器的协同作用,增大了有效氯、游离氯与废水中有机物的接触几率,强化了传热传质,提升了反应效率和氧化效率;利用电子束辐照技术替代氧化剂,既实现了废水处理的高效、自动化,又实现了废水处理的安全环保,清洁化,经处理后其废水中COD<50ppm,SS<20mg/L,外观无色透明,可作为中水回收,实现水的循环利用。

标签:
废水处理
江苏 - 扬州 来源:北方有色网 2023-03-19
含氰废水处理方法及一体化破氰反应罐

本发明公开了一种含氰废水处理方法及一体化破氰反应罐,将含氰废水引入一体化破氰反应罐中;调节系统向pH调节仓中加入碱液调节含氰废水pH至10‑11.5;含氰废水流入一级破氰仓后,反应系统向一级破氰仓加入氧化剂和破氰助剂进行反应,反应结束后由回料管回流进入pH调节仓;调节系统向pH调节仓中加入硫酸调节含氰废水pH至7.0‑8.5;含氰废水流入二级破氰仓后,反应系统向二级破氰仓通入氯气进行反应。含氰废水流入反应罐后,通过打开控制系统和反应系统分别完成pH调节和一级及二级破氰,最终加入氧化剂通入氯气将含氰废水转化成无毒的二氧化碳及氮气,装置整体有反应罐中的调节模块和反应模块智能完成,无需进行人工操作,为破氰作业提高安全系数。

标签:
废水处理
江苏 - 扬州 来源:北方有色网 2023-03-19
高浓度高色度高盐度难降解有机废水的分离浓缩设备

高浓度高色度高盐度难降解有机废水的分离浓缩设备。涉及一种污水处理装备领域,尤其涉及高浓度高色度高盐度难降解有机废水的分离浓缩设备。提供了一种将高浓度高色度高盐度的有机废水中的大分子的有机物和小分子的无机盐分离浓缩成有机物浓缩液、无机盐浓缩液和清水三部分,实现高浓度高色度高盐度的有机废水的资源化、减量化低成本处理的高浓度高色度高盐度难降解有机废水的分离浓缩设备。包括有机物分离浓缩池、第一控制系统、无机盐分离浓缩池、第二控制系统、清水池、第三控制系统、有机物浓缩液储罐和无机盐浓缩液储罐;所述管体三竖向固定设置在所述清水池内。本实用新型处理效果好成本低。

标签:
废水处理
江苏 - 扬州 来源:北方有色网 2023-03-19
一体化皮革废水处理设备

本实用新型适用于废水处理技术领域,提供了一种一体化皮革废水处理设备,其包括外管,所述外管的内部固定连接有内管,内管的内壁上滑动连接有水管,所述内管的顶端固定连接有滤斗,滤斗上固定连接有第一滤网,所述内管上固定连接有两个第二滤网,水管上开设有两个第一通孔,两个第一通孔和两个第二滤网相配合,所述水管的底部固定连接有水缸,水缸的内壁上连接有絮凝机构,本实用新型通过内管和外管对制革废水进行第一阶段的处理,再通过水缸内的絮凝机构进行第二阶段的处理,最终排出的废水基本不含有杂质,只是酸碱度还需要处理,最后加入酸性处理剂使废水的酸碱度接近中性即可。

标签:
废水处理
江苏 - 扬州 来源:北方有色网 2023-03-19
废水处理设备及其工作方法

本发明公开了一种废水处理设备及其工作方法,包括与钻机外排水相连的水窝箱,水窝箱通过提升泵连接有混凝装置;所述混凝装置上设置有混凝搅拌机构,用于将药剂和原水充分混合并形成密实的微絮凝体;混凝装置通过连接管连通有涡流沉淀装置,涡流沉淀装置将混凝装置中产生的微絮凝体进行泥水分离,清水从微涡流沉淀装置清水口排出回用,产生的沉泥由排泥口定期排放;本发明通过依次对钻机废水进行收集,添加药剂进行混凝处理,对处理后的混合液进行沉淀过滤实现对废水进行净化处理,并将净化后的清水回收利用,有效实现对废水的利用率,同时废水净化效率和效果均较高。

标签:
废水处理
江苏 - 扬州 来源:北方有色网 2023-03-19
石油化工废水处理成套设备

石油化工废水处理成套设备。属于废水处理领域,具体涉及一种石油化工废水处理成套设备。提供一种结构合理,能够对石油化工废水进行有效的预处理,使废水脱色、有机物减少、氨氮浓度降低、易于生物降解的石油化工废水处理成套设备。所述电极催化装置的池体上设有进水管口和出水管口,所述池体内设有正电极、负电极和催化填料区,所述池体内还设有相互交替穿插设置的隔板,所述隔板的一端与所述池体的侧壁相连,从而将所述池体内部隔成若干互通的隔间,所述池体底部设置有曝气管二。本实用新型能够帮助有效去除废水中的大分子有机物,同时有效去除废水中的氨氮,并回收氨,预处理效率高,能耗低,有利于下一步的生物降解。

标签:
废水处理
江苏 - 扬州 来源:北方有色网 2023-03-19
树脂生产用废水处理装置

本实用新型公开了一种树脂生产用废水处理装置,包括废水处理装置本体和密封盖,所述废水处理装置本体的一侧转动连接有密封盖,且废水处理装置本体的侧壁贯通连接有出水口,所述废水处理装置本体的内侧壁开设有滑槽,且废水处理装置本体的底端固定连接有支撑脚,所述废水处理装置本体的内壁底端嵌入设置有进气管,所述进气管的上端贯通连接有曝气管,所述密封盖的上端贯通连接有进水口,所述滑槽的内壁滑动连接有滑块,所述滑块的侧壁固定连接有第二过滤网,所述第二过滤网的中心位置处转动连接有支撑柱。本实用新型中通过使用者转动密封盖,然后将第一过滤网从废水处理装置的提出,使滑块在滑槽内向上移动,从而方便使用者对过滤网进行清洗。

标签:
废水处理
江苏 - 扬州 来源:北方有色网 2023-03-19
前处理废水处理系统
前处理废水处理系统 1196     
 0

前处理废水处理系统。涉及废水处理领域,尤其涉及涂装前处理废水处理系统。提供了一种处理效果好,提高排放可靠性的前处理废水处理系统。包括依次连通设置的电泳废水池、预处理槽、综合废水池、混凝反应槽、斜管沉淀池、生化处理设备、MBR池、清水池和过滤器,所述综合废水池用于收集脱脂和皮膜废水,所述混凝反应槽内用于加入混凝剂PAC,所述斜管沉淀池连通污泥浓缩池,所述污泥浓缩池连接污泥脱水机;所述生化处理设备包括依次设置的水解酸化池和接触氧化池;所述过滤器用于对清水池内的排水进行过滤。本实用新型节约投资成本、降低操作强度。

标签:
废水处理
江苏 - 扬州 来源:北方有色网 2023-03-19
煤化工废水处理成套设备

煤化工废水处理成套设备。涉及废水处理领域。高效、节能、处理效果好。包括预处理单元、生化处理单元和深度处理单元,所述预处理单元、生化处理单元和深度处理单元依次连接,本实用新型使预处理后的废水所含有的有害物质显著减少,在第一次生化反应之前进行电催化氧化反应,去除了部分COD,大大增强了废水的可生化性,有利于接下来的生化处理,并且通过结合活性污泥法和载体流动床生物膜法的优点,进行两次的复合生化处理,使有机物降解效率显著地提高。本实用新型的煤化工废水处理成套设备设计合理,处理效率更高,节省更多的能源消耗,能够更有效地去除煤化工废水中的大量毒性的有机物,降低氨氮浓度,降低COD值,处理效果好。

标签:
废水处理
江苏 - 扬州 来源:北方有色网 2023-03-19
上一页 33 34 35 36 37 ... 40 下一页
共40页    到第

北方有色为您提供最新的江苏扬州有色金属环境保护技术理论与应用信息,涵盖发明专利、权利要求、说明书、技术领域、背景技术、实用新型内容及具体实施方式等有色技术内容。打造最具专业性的有色金属技术理论与应用平台!

全国热门有色金属设备推荐
展开更多 +
全国热门有色金属技术推荐
展开更多 +

 

江西省隆恩特环保设备有限公司
宣传

报名参会
更多+

报告下载

有色专家
更多+

昆明理工大学
教授
洛阳有色矿业集团有限公司
生产技术部经理
有研资源环境技术研究院(北京)有限公司
副总经理/教授级高工
中铝检测科技(郑州)有限公司/国家轻金属质量检验检测中心
正高级工程师
中南大学
教授
赤泥综合利用研究报告2025
推广

热门技术
更多+

推荐企业
更多+

福建省金龙稀土股份有限公司
宣传

发布

在线客服

公众号

电话

顶部
咨询电话:
010-88793500-807