青岛垚鑫智能科技有限公司
宣传

位置:中冶有色 >

有色技术频道 >

> 通用技术

分类:
全部
矿山技术
冶金技术
材料制备及加工技术
环境保护技术
分析检测技术
 
全部
探矿技术
采矿技术
选矿技术
通用技术
地区:
全部
北京
天津
上海
重庆
河北
山西
辽宁
吉林
黑龙江
江苏
浙江
安徽
福建
江西
山东
河南
湖北
湖南
广东
海南
四川
贵州
云南
陕西
甘肃
青海
内蒙
广西
西藏
宁夏
新疆
其他
其他
展开
 
全部
成都
自贡
攀枝花
泸州
德阳
绵阳
广元
遂宁
内江
乐山
南充
眉山
宜宾
广安
达州
雅安
巴中
资阳
阿坝藏族羌族自治州
甘孜藏族自治州
凉山彝族自治州

四川成都有色金属通用技术理论与应用

免费发布技术信息>>
组合式高温烧结矿固固换热余热回收装置及方法

本发明公开了一种组合式高温烧结矿固固换热余热回收装置及方法,其整体包括锅炉,锅炉内分隔有至少两个固固换热仓室,且不同仓室的容积以及换热通道的换热空间不同;筛分板,对即将进入锅炉内的物料根据筛分标准进行筛分,筛分出不同批粒的物料,并根据对应标准将筛分出的各批粒物料一一对应的送入各仓室内;分料斗,分料斗位于筛分板与锅炉之间,对筛分后的物料进行分料,再送至对应的仓室内进行换热。该发明设计系统结构简单,无需对物料进行破碎即可一并入炉;且整体运行稳定可靠,物料各自分仓流动,互不干扰;其换热高效,每个粒径的物料都能有对应的换热方式,在流速和物料方面都能进行良好匹配,从而增加锅炉对物料热量的充分回收。

标签:
通用技术
四川 - 成都 来源:中冶有色网 2023-03-16
铷矿石中主次成分的X射线荧光光谱分析方法

本发明公开了一种铷矿石中主次成分的X射线荧光光谱分析方法,具体流程如下:筛选含铷岩矿及土壤、水系沉积物的标准物质设计标准曲线,选择混合熔剂熔融制备标准样品,确定仪器分析条件、校正基体及谱线重叠效应,建立标准曲线,以定值样品验证方法准确度及重现性,测定铷矿石中硅、铝、钙、铁、钠、钾、钛、铷;本发明选择熔融制样作为铷矿石X射线荧光光谱分析前处理手段,相比粉末压片可消除粒度效应及一定程度上的基体效应,使用X射线荧光光谱分析铷矿石主次成分较之传统化学、仪器分析方法省时省力;本发明具有检出限低、线性范围宽、分析速度快等优点,单个矿石样品平均处理时间不超过20?min。

标签:
通用技术
四川 - 成都 来源:中冶有色网 2023-03-16
防治干热河谷矿山排土场水土流失的植被配置方法

本发明公开了一种防治干热河谷矿山排土场水土流失的植被配置方法,包括:将排土场进行表土剥离;在排土场的平台修建截水沟、排水沟和集水池;筛选出适合生长于干热河谷矿山排土场的植被种类,包括灌木、草本和藤本植物;并进行针对性的种植;在矿山排土场植被种植之后,对排土场用铁丝网或围栏等进行围封,防止牲畜对于坡面的破坏。本发明以水土保持学和恢复生态学原理为依据,针对干热河谷矿山排土场恶劣的生境和不同坡位具有不同的土壤侵蚀强度和水分条件,进行植被物种的合理搭配,从而为尽快恢复采矿区域内的植被提供一条可靠的技术路径。且具有可操作性强,综合效益高的特点。

标签:
通用技术
四川 - 成都 来源:中冶有色网 2023-03-16
基于图像特征分解的高空间分辨率遥感图像找矿方法

本发明公开了基于图像特征分解的高空间分辨率遥感图像找矿方法,包括以下步骤:采集数据、数据筛选、构建时空数据集、构建三维GIS时空信息模型、提取要素、确定交集异常区、确定勘查靶区的具体位置和上传云端;本发明通过遥感技术采集影像及数据,采集后的影像数据先通过数据筛选取出冗余,使图像信息更清楚有效,然后通过影像和时空数据的融合构件时空数据集,该时空数据集完整全面,方便分析,且通过建模的手段构建三维GIS时空信息模型,使矿区地物更加清楚明了,并配合时空坐标的输入,为接下来的定位提供便利,同时,确定勘查靶区后确定其具体时空坐标,并应用到实际中,从而得到勘查靶区的具体位置,定位更加精确。

标签:
通用技术
四川 - 成都 来源:中冶有色网 2023-03-16
具有矿磁化功能的非亲水性滤膜制水机

一种具有矿磁化功能的非亲水性滤膜制水机,包括多功能复合滤胆过滤装置,还具有矿磁化及非亲水性滤膜过滤装置:该密闭容器中设置有一环形隔板,环形隔板的中心孔上固定有一由滤芯壳和多滤层组成的过滤部件,滤芯壳的弧形顶部上遍布开有进水孔,滤芯壳的底部开有渗水孔,滤芯壳中自下而上设置有非亲水性滤膜过滤层、KDF55滤料过滤层、远红外矿化球滤层、麦饭石矿化层、粒状磁铁磁化层、阳离子交换树脂过滤袋,该密闭容器的顶部设置有进水口,环形筛板下方的容器右侧面上开有出水口;所述多功能复合滤胆过滤装置的出水口与矿磁化及非亲水性滤膜过滤装置的进水口连通;它经济实用,过滤及矿磁化效果好,能为农村家庭提供合格健康的饮用水。

标签:
通用技术
四川 - 成都 来源:中冶有色网 2023-03-16
便于更换滤芯及滤料的磁矿化净水器

一种便于更换滤芯及滤料的磁矿化净水器,包括多功能复合滤料过滤层,还具有精密活性炭高级滤芯过滤装置:其容器筒体右侧面上部设置有填料进口和进料漏斗,筒体右侧面下部设置有填料出口,容器中设置有一环形筛板,筛板表面自上而下设置有多功能复合滤料过滤层、粒状磁铁磁化层、麦饭石矿化层、KDF55过滤层,容器的底部设置有阀座,阀座中心设置有精密活性炭高级滤芯,精密活性炭高级滤芯的下端设置有螺栓,圆形孔上设置有螺母,阀座上设置有螺母、螺栓、第一硅胶密封圈、第二硅胶密封圈,容器顶部的左侧设置有进水口、阀座右侧开有出水口;所述过滤装置的出水口与纯水罐装置的进水口连通;它经济实用,能为乡镇庭院组合式家庭及农村地质灾区提供合格健康的饮用水。

标签:
通用技术
四川 - 成都 来源:中冶有色网 2023-03-16
硫铁矿烧渣中的可用物质提取工艺

本发明公开了一种硫铁矿烧渣中的可用物质提取工艺,其特征在于,包括以下步骤S1:对硫铁矿烧渣进行预处理,得到目数≤和>100目的硫铁矿烧渣粉末;步骤S2:将得到的目数≤100目的硫铁矿烧渣粉末进行水力分离,得到上层烧渣浆A和下层固体B,其中,上层烧渣浆A为硅化物和铝化物富集层,下层固体B为铁富集层等步骤。本发明通过对硫铁矿烧渣进行破碎、球磨、筛分后的硫铁矿烧渣粉末的水力分离和浮选以及磁选后,得到铁精矿产品,并采用硝酸溶液提取烧渣浆固A‑1和尾渣B1中剩余的硫和铁,得到氢氧化铁产品和硫酸钠产品,可实现对硫铁矿烧渣中的铁和硫进行有效的提取和利用。

标签:
通用技术
四川 - 成都 来源:中冶有色网 2023-03-16
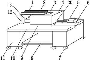
矿热炉进料装置
矿热炉进料装置 749     
 0

本实用新型公开了一种矿热炉进料装置,包括炉体、传送带、分筛板、堆料板和推料装置,传送带倾斜设置于炉体的一侧,分筛板的一端与传送带的顶部末端相接且分筛板与地面平行,分筛板的下方设置有堆料板,堆料板的一侧端部与炉体的进料口连通,堆料板的另一侧用于将堆料板上的物料推入至炉体的进料口的推料装置。本实用新型通过传送带能够将位于低处的原料运输至位于高处的炉体的进料口内,通过设置分筛板和堆料板能够将原料中的大颗粒原料和小颗粒原料分离。

标签:
通用技术
四川 - 成都 来源:中冶有色网 2023-03-16
选矿机导流板
选矿机导流板 1164     
 0

本实用新型涉及选矿机设备,具体为一种选矿机导流板。所需解决的技术问题在于解决脉动水流到达筛板时水流速度、方向不一致的问题,以增强分选效果、降低产品损失。选矿机导流板,由空气室隔板(4)和隔板(7)、一级导流板(9)、二级导流板(10)、主导流板(3)组成,空气室隔板(4)和隔板(7)两端与机体壁(1)连接,空气室隔板(4)下面开放,空气入口(5)、进水口(8)设置在空气室隔板(4)和隔板(7)两端与机体壁(1)所形成的空气室(6)内,一级导流板(9)设置在空气室(6)下面,二级导流板(10)设置在一级导流板(9)与空气室隔板(4)所形成的出口侧面,主导流板(3)上端与筛板(2)接触或不接触,一块以上的主导流板(3)之间有间隔。

标签:
通用技术
四川 - 成都 来源:中冶有色网 2023-03-16
碲铋矿提取碲的方法
碲铋矿提取碲的方法 1216     
 0

本发明公开了一种碲铋矿提取碲的方法,将碲铋原矿球磨粒度到90%以上过200目筛网;将上述碲铋矿粉放入烘箱中120度下脱水2小时;将干燥后的碲铋矿粉在温度500~600℃空气气氛下的管式炉中进行焙烧,焙烧时间6~8h;焙烧出二氧化硫、二氧化碲混合气体进入保温的旋风分离器中分离混合气体中夹带固体粉尘,随后将混合气体输送到冷凝器中冷却,二氧化碲气体在冷凝器中冷凝管外壁冷凝形成固体,二氧化硫被冷凝管末端氢氧化钠溶液吸收。与现有技术相比,本发明以碲铋矿为原料焙烧收集二氧化碲,工艺路线相对简单,设备费用低,为下游提取高纯碲提供良好条件。碲铋矿原矿中碲品位3~4%。具有推广应用的价值。

标签:
通用技术
四川 - 成都 来源:中冶有色网 2023-03-16
矿物脱色剂及其制备方法

本发明公开了一种矿物脱色剂及其制备方法,其中,所述矿物脱色剂为铝硅酸盐;制备矿物脱色剂的方法包括:S1.将矿产品粉碎为180‑200目的矿粉,按照固液比为1:7‑13的比例将矿粉加入水中,并以100‑140转/分钟的速度搅拌0.5‑1.5小时得到矿粉溶液;S2.向矿粉溶液中加入分散剂并搅拌,分散剂和矿粉溶液的质量比为1‑5:10000;S3.筛选出精选矿粉;S4.按照固液比为1:2‑5的比例将精选矿粉加入浓度为0.8‑4摩尔/升的酸液中,在60~90°C的条件下进行活化处理1‑8小时,得到活化物;S5.将活化物用清水洗涤至pH值为3‑5;S6.在90‑110°C温度下烘干洗涤后的活化物得到矿物脱色剂。本发明中的矿物脱色剂与现有的脱色剂相比成本更低,在达到同样脱色效果时性价比更高。

标签:
通用技术
四川 - 成都 来源:中冶有色网 2023-03-16
矿渣微粉生产研磨装置
矿渣微粉生产研磨装置 1106     
 0

本实用新型提供矿渣微粉生产研磨装置,涉及矿渣微粉技术领域,包括壳体,所述壳体的内部一侧固定安装有U型块,所述U型块内部通过连接短杆转动连接有T型块,所述T型块远离U型块的一侧固定安装有矩形槽块,所述壳体的内壁另一侧固定安装有连接板,所述连接板的顶部固定安装有第一弹簧。本实用新型通过在伺服电机、连接杆、齿轮、U型块和T型块的配合下,可以带动矩形槽块进行间接转动,在T型杆、第一弹簧和矩形槽块的配合下,通过缓冲振动可以使得矩形槽块内部的矿渣给筛选下来,结构简单,使用效果好,有效快速地将矿渣内部混有的异物进行筛选下来,保证后期用研磨好的矿渣微粉时,使用效果不会降低。

标签:
通用技术
四川 - 成都 来源:中冶有色网 2023-03-16
矿热炉加料装置
矿热炉加料装置 756     
 0

本实用新型涉及矿热炉设备技术领域,公开了一种矿热炉加料装置,包括设置于支撑框架上的送料装置,所述送料装置包括外壳和内壳,所述内壳两侧分别通过水平导向杆通过导向杆外壳活动连接,在所述外壳和内壳之间的水平导向杆上套设有弹簧;所述内壳的顶部设置有齿条,所述齿条上啮合有不完全齿轮,所述不完全齿轮由设置于外壁上的电机驱动;所述内壳内设置有上层漏板和下层筛板,上层漏板的两端设置有固定杆,所述固定杆活动贯穿内壳侧壁、且端部固定于外壳内壁上,在上层漏板上方设置有与内壳固定连接的碾磨辊,所述下层筛板与内壳固定连接。本实用新型能够将物料研磨,且能筛分物料,实现物料的匀速下料。

标签:
通用技术
四川 - 成都 来源:中冶有色网 2023-03-16
砂石、矿山破碎生产线

本实用新型涉及砂石、矿山破碎设备设计制造领域,具体的说是一种砂石、矿山破碎生产线,包括振动式喂料机,颚式破碎机,圆锥破碎机,第一振动筛,高压辊磨机,立轴式冲击破碎机和第二振动筛,所述振动式喂料机、颚式破碎机、圆锥破碎机和第一振动筛通过前进输送带相连,所述第一振动筛与圆锥破碎机之间还设置有第一返回输送带,所述第一振动筛与所述高压辊磨机支架之间分别设置有前进输送带和第二返回输送带,所述第一振动筛通过前进输送带与立轴式冲击破碎机相连,所述立轴式冲击破碎机通过前进输送带与第二振动筛相连。本实用新型能适用于软质、硬质石料制砂生产,成品料粒型好,生产线磨损小、可靠性高,使用维护成本低,经济性佳。

标签:
通用技术
四川 - 成都 来源:中冶有色网 2023-03-16
以天然软锰矿为载体的臭氧分解催化剂及其制备方法

本发明涉及一种臭氧分解催化剂及其制备方法,所述催化剂来源为天然软锰矿。制备步骤为:先将天然软锰矿用小型破碎机破碎后用筛网筛分,得到40‑80目大小的催化剂颗粒,用于臭氧分解催化和作为催化活性物质的载体;采用等体积浸渍法将Fe(NO3)3和Cu(NO3)2以不同掺杂量负载于软锰矿催化剂颗粒上并置于马弗炉中进行焙烧,自然冷却后即得相应催化剂。将催化剂用于催化分解臭氧,在臭氧浓度为40ppm,催化反应6h,其臭氧分解率可高达91.3%。本发明催化剂原料来源广泛,催化剂制作过程简单,催化效率高,且催化剂有较高的稳定性,具有广阔的市场前景。

标签:
通用技术
四川 - 成都 来源:中冶有色网 2023-03-16
矿山用均匀碎石装置
矿山用均匀碎石装置 1163     
 0

本实用新型公开了一种矿山用均匀碎石装置,属于矿石加工设备技术领域,包括底座,底座底部四个拐角处均固定连接有万向轮,破碎机构,破碎机构包括破碎箱,破碎箱固定连接在底座顶部,破碎箱两侧内表壁之间转动连接有连接杆,连接杆外表面固定套设有破碎辊,以及输送机构,输送机构设置于破碎箱上,底座底部的万向轮可以带动底座以及顶部的破碎机构和输送机构移动,从而方便碎石装置的使用,通过破碎箱内部的连接杆转动,带动破碎辊进行转动,从而对破碎箱内部的矿石进行破碎,由于破碎筛呈半圆形包围破碎辊,因此通过连接板之间的破碎筛可以对进入的矿石进行均匀破碎,提升碎石装置的使用便捷性,通过输送机构进一步提升矿石进入均匀性。

标签:
通用技术
四川 - 成都 来源:中冶有色网 2023-03-16
低品位氧化铜矿生产硫酸铜的方法

一种低品位氧化铜矿生产硫酸铜的方法,主流程包括硫酸浸取矿粉、料液热澄清、过滤、除铁并蒸发、结晶、过滤,辅助流程是将<20°B′e的料液通过置换、过料筛、磁选、酸洗得到Cu并氧化而制成硫酸铜。本方法的特点是热澄清时加入石灰浆调pH值;将加热的料液中通入0.2~0.4MPa的空气除铁并实现强制蒸发;在浸取时选取了合理的工艺参数。使用本方法,可用含Cu量5~8%的矿生产出纯度在98%以上的硫酸铜,且生产周期缩短、成本降低。

标签:
通用技术
四川 - 成都 来源:中冶有色网 2023-03-16
有色金属矿粉磨浮选的方法

本发明公开了一种有色金属矿粉磨浮选的方法,属于矿石粉磨浮选方法领域,依次包括以下步骤:原矿石经粗碎至200~350mm,经过筛分,筛上产品经中碎后,与筛下产品-30mm~-60mm给入高压辊磨机,并通过风力分级,使产品细度控制在-0.074mm占50~90%,粗粒级产品返回高压辊磨机形成闭路,细粒级产品进行浮选,最终得到精矿和尾矿。本发明是一种新型的有色矿石无水干式粉磨-湿式浮选的工艺,解决了现有有色金属矿选矿工艺的不足,以及在干旱缺水地区的应用限制。

标签:
通用技术
四川 - 成都 来源:中冶有色网 2023-03-16
利用矿化垃圾强化植物修复石油污染土壤的方法

本发明属于土壤修复领域,尤其涉及一种利用矿化垃圾强化植物修复石油污染土壤的方法。本发明提供的方法包括以下步骤:a)、矿化垃圾筛分后与石油污染土壤混合,得到混合土壤;所述筛分的筛网孔径为10~20mm;所述矿化垃圾的填埋龄为5~15年;b)、将植物种植到所述混合土壤中,混合土壤中的石油烃降解,得到修复后土壤。本发明通过向石油污染土壤中添加特定粒径和填埋龄的矿化垃圾,能够显著促进土壤微生物和土壤植物的生长,从而提高土壤中石油烃的降解效果和降解速率;而且向石油污染土壤中加入矿化垃圾,可以稀释土壤中石油烃的浓度,降低石油污染物对土壤微生物和植物的抑制作用,扩大植物修复的应用范围。

标签:
通用技术
四川 - 成都 来源:中冶有色网 2023-03-16
用于破碎铁尾矿的装置

本实用新型公开了一种用于破碎铁尾矿的装置,包括壳体,在壳体上方开有进料口,在壳体下方设有出料口,在壳体内设有破碎装置和反击装置;在进料口下方设有进料筛板,进料筛板用于将从进料口进入的铁尾矿分成两部分;破碎装置位于进料筛板下方,破碎装置包括破碎腔和旋转破碎装置,旋转破碎装置位于破碎腔下方;破碎腔包括左右对称设置的第一破碎腔和第二破碎腔,旋转破碎装置包括左右对称设置的第一旋转装置和第二旋转装置;反击装置包括反击架。铁尾矿经破碎装置二次破碎后,又被抛向反击装置再次破碎,使得铁尾矿得到充分破碎,破碎效率高,该装置自动化程度高,减少了人力物力的浪费,可以降低破碎铁尾矿的成本。

标签:
通用技术
四川 - 成都 来源:中冶有色网 2023-03-16
酸性矿井涌水处理方法及其系统

本发明公开了一种酸性矿井涌水处理方法及其系统,本发明结合酸性矿井废水的形成机理和污染特点,是通过增加溶解氧,将二价铁离子转化为三价铁离子,通过自然沉淀,来降低污染物的浓度,采用将酸性矿井涌水截留汇集至设置有曝气管道的进水渠道,增加溶解氧的含量,曝气池进行二次曝气;并利用人工表流湿地区的水生植物吸附、分解、转化水中的污染物,进一步增加水中溶解氧的含量;酸性矿井涌水通过滤水筛网后筛分为细流自由下落,加速后分断为水滴状,可以快速充分与空气接触并充分融入氧气,再通过多级跌水坎进行自然跌水曝气,酸性矿井涌水中的二价铁离子转化为三价铁离子絮凝沉淀,絮凝沉淀便于进行分离处理,从而有效大幅度降低污染物浓度。

标签:
通用技术
四川 - 成都 来源:中冶有色网 2023-03-16
利用矿山固体废弃物生产再生砂石骨料的工艺

本发明公开了一种利用矿山固体废弃物生产再生砂石骨料的工艺,涉及矿山开采技术领域,该利用矿山固体废弃物生产再生砂石骨料的工艺采用一种矿山固体废弃物生产再生砂石骨料装置配合完成,该矿山固体废弃物生产再生砂石骨料装置包括机架,以及安装于机架上的菱形钢丝网,所述机架的顶端前后两侧对称安装有若干个链轮,所述机架每一侧的若干个链轮上安装有链条传动。本发明通过将矿山固体废弃物投入在菱形钢丝网上,通过菱形钢丝网对矿山固体废弃物输送的过程中并进行初次筛选,通过将菱形网丝网的网孔大小设置为砂石骨料制作的碎块直径,经筛选后的矿山固定废弃物可直接用于制作砂石骨料。

标签:
通用技术
四川 - 成都 来源:中冶有色网 2023-03-16
酸性矿井涌水处理系统

本实用新型涉及了一种酸性矿井涌水处理系统,本实用新型结合酸性矿井废水的形成机理和污染特点,是通过增加溶解氧,将二价铁离子转化为三价铁离子,通过自然沉淀,来降低污染物的浓度,采用将酸性矿井涌水截留汇集至设置有曝气管道的进水渠道,增加溶解氧的含量,曝气池进行二次曝气;并利用人工表流湿地区的水生植物吸附、分解、转化水中的污染物,进一步增加水中溶解氧的含量;酸性矿井涌水通过滤水筛网后筛分为细流自由下落,加速后分断为水滴状,可以快速充分与空气接触并充分融入氧气,再通过多级跌水坎进行自然跌水曝气,酸性矿井涌水中的二价铁离子转化为三价铁离子絮凝沉淀,絮凝沉淀便于进行分离处理,从而有效大幅度降低污染物浓度。

标签:
通用技术
四川 - 成都 来源:中冶有色网 2023-03-16
海底矿粒的原位分级装置及方法

本发明公开了一种海底矿粒的原位分级装置,它包括:底座、弹簧、外壳、一级筛筒、二级筛筒、三级筛筒、振动电机、水流入口、矿粒入口、矿粒出口、废料出口、接料箱;还公开了一种海底矿粒的原位分级方法,包括:在海底固态矿物储藏区域,用机械的形式采掘固态矿藏;采掘出的固态矿粒与海底泥砂的混合物输入至原位分级装置中;所述固态矿粒在所述分级装置的振动和水泵输入高速海水冲击的协同作用下,实现洗矿、碎矿和分级;收集分级后的各粒级矿粒,通过分级矿粒提升装置提升至海面上进一步细加工;所述原位分级装置处理后的废料泥砂回填至海底。本发明实现了海底矿粒的绿色分级,可节约能耗、避免海洋污染。

标签:
通用技术
四川 - 成都 来源:中冶有色网 2023-03-16
采矿废水处理用一体机

本发明提供一种采矿废水处理用一体机,涉及废水处理技术领域。本发明包括脱水筛主体、旋流器主体,上述脱水筛主体包括储水箱、脱水筛网板,上述储水箱的出水口上连接有回流泵,上述回流泵远离上述储水箱的一端与上述旋流器主体的进料口连通,上述旋流器主体的物料出口连接有配料箱,上述配料箱的下侧设有配料出口,上述配料出口位于上述脱水筛网板的上方,上述配料出口上设有调节机构,上述调节机构用于控制上述配料出口的出料流量。本发明解决了现有采矿废水处理用一体机,旋流器内排出的细物料不能均匀与脱水筛上大物料均匀混合的问题。

标签:
通用技术
四川 - 成都 来源:中冶有色网 2023-03-16
矿山施工用碎石处理装置

本实用新型公开了一种矿山施工用碎石处理装置,包括底座,所述底座的上端外表面固定安装有支撑臂,所述支撑臂的另一端设置有双辊破碎机,所述双辊破碎机的下端外表面设置有用于提高碎石筛分便捷性的震动筛装置,所述震动筛装置包括筛斗和伸缩弹簧,所述筛斗的上端内表面中部开设有进料口,所述筛斗的上端外表面设置有波纹软管,所述筛斗的一侧外表面中部开设有大体积碎石出料口和小体积碎石出料口。本实用新型所述的一种矿山施工用碎石处理装置通过设置有振动筛装置,实现大小体积不同矿石的分离,实现了碎石处理过程中的石料快速筛选的目的,使得后续收集的碎石料颗粒更精细,筛选效果更好,保证了整个矿山碎石处理的工作流畅性。

标签:
通用技术
四川 - 成都 来源:中冶有色网 2023-03-16
可快速卸料的矿车
可快速卸料的矿车 1179     
 0

本实用新型提供了一种可快速卸料的矿车,本实用新型涉及矿车技术领域,可快速卸料的矿车包括:推车,推车左面下侧开有与其内部相通的通口,通口内嵌入有隔板,隔板上表面开有至少五个均匀排布的筛孔,每个筛孔内均贴合有筛网,且隔板左面垂直焊接有立板,立板左面中心通过电弧焊接有把手;推车内侧底部左右两侧分别通过铰链铰接有左底板和右底板,且右底板和左底板相接面均焊接有支块,右底板中的支块位于左底板中的支块下方,且两个支块相接面均通过粘结剂粘接有相互吸引的磁片;本实用新型的有益效果在于:方便使用者从底部直接将物料卸出,实现快速卸料。

标签:
通用技术
四川 - 成都 来源:中冶有色网 2023-03-16
磁铁矿干磨干选方法和装置

本发明公开了一种磁铁矿干磨干选方法和装置,属于铁矿选矿磨矿技术领域,本发明将中碎后<80mm的矿石与粗粒返回料混合,经过高压辊挤压后,送至机械筛分,筛分粒径为3mm,筛上物作为所述粗粒返回料返回高压辊继续挤压,筛下物进入干式磁选机分选,干式磁选机分选的粗精矿送至风力选粉机分级,风力选粉机分级后的粗粉也作为所述粗粒返回料返回高压辊继续挤压,风力选粉机分级后达到铁精粉细度要求的细粉收集后,送至干式磁选机分选,干式磁选机分选后达到铁精粉细度要求的细磁矿最后进行湿式磁选。本发明将矿石的破碎粉磨和磁选合理搭配,降低了系统能耗,钢耗,水耗,减轻了对环境的污染。

标签:
通用技术
四川 - 成都 来源:中冶有色网 2023-03-16
矿粉加工用检测用取样装置

本实用新型公开了一种矿粉加工用检测用取样装置,包括防护箱体、设置在所述防护箱体内腔的振动电机、与所述振动电机的输出轴相连接的转动轴、与所述转动轴相连接的连接盘、与所述连接盘相连接的支撑框、与所述支撑框相连接的收集框、设置在所述收集框上端的筛框以及设置在所述筛框上端的盖板,所述支撑框和收集框之间设置为可拆卸结构,且支撑框和收集框之间设置有限位组件,本实用新型一种矿粉加工用检测用取样装置通过限位组件有效的保证了支撑框和收集框之间相连接的稳定性,从而便于通过筛框对矿粉进行过滤,从而便于对矿粉进行过滤。

标签:
通用技术
四川 - 成都 来源:中冶有色网 2023-03-16
矿石粉分选设备
矿石粉分选设备 1177     
 0

本实用新型公开了一种矿石粉分选设备,该设备包括外箱体,外箱体具有进料口;外箱体内部分为粗颗粒选出腔、中颗粒选出腔和细粉颗粒选出腔;并通过第一分选筛网和第二分选筛网间隔;第一分选筛网的过滤孔径大于第二分选筛网的过滤孔径;外箱体外部设置高压风机,高压风机的出风口接通粗颗粒选出腔,由左至右向外箱体内吹风;粗颗粒选出腔、中颗粒选出腔和细粉颗粒选出腔的下部分别形成粗颗粒选出口、中颗粒选出口和细粉颗粒选出口。本实用新型改进后不仅适用于矿石破碎后的分选,而且也能适合研磨后的分选。

标签:
通用技术
四川 - 成都 来源:中冶有色网 2023-03-16
上一页 29 30 31 32 33 ... 34 下一页
共34页    到第

中冶有色为您提供最新的四川成都有色金属通用技术理论与应用信息,涵盖发明专利、权利要求、说明书、技术领域、背景技术、实用新型内容及具体实施方式等有色技术内容。打造最具专业性的有色金属技术理论与应用平台!

全国热门有色金属设备推荐
展开更多 +
全国热门有色金属技术推荐
展开更多 +

 

江西省隆恩特环保设备有限公司
宣传

报名参会
更多+

报告下载

有色专家
更多+

武汉工程大学
教授
长沙矿冶研究院
总经理
江西铜业集团有限公司
党委书记、董事长
中国矿业大学(北京)
教授
中国矿业大学
副院长/教授
赤泥综合利用研究报告2025
推广

热门技术
更多+

推荐企业
更多+

福建省金龙稀土股份有限公司
宣传

发布

在线客服

公众号

电话

顶部
咨询电话:
010-88793500-807