青岛垚鑫智能科技有限公司
宣传

位置:中冶有色 >

有色技术频道 >

> 探矿技术

分类:
全部
矿山技术
冶金技术
材料制备及加工技术
环境保护技术
分析检测技术
 
全部
探矿技术
采矿技术
选矿技术
通用技术
地区:
全部
北京
天津
上海
重庆
河北
山西
辽宁
吉林
黑龙江
江苏
浙江
安徽
福建
江西
山东
河南
湖北
湖南
广东
海南
四川
贵州
云南
陕西
甘肃
青海
内蒙
广西
西藏
宁夏
新疆
其他
其他
展开
 
全部
武汉
黄石
十堰
宜昌
襄阳
鄂州
荆门
孝感
荆州
黄冈
咸宁
随州
恩施土家族苗族自治州
仙桃
潜江
天门

湖北武汉有色金属探矿技术理论与应用

免费发布技术信息>>
裂缝三维状态变化监测方法及监测系统

本发明提供了一种裂缝三维状态变化监测方法,包括以下步骤:1、利用裂缝一侧的激光测距仪对另一侧的三角反光架的三个顶点分别进行测量,测得三角反光架的三个顶点到激光测距仪探头中心的距离、竖直角和水平角;2、重复步骤1,得到不同时期测量的数据;3、根据不同时期测量的数据计算三角反光架的三个顶点的位置变化,得到裂缝的空间坐标变化。本发明同时提供了裂缝三维状态变化监测系统,包括激光测距仪和三角反光架,激光测距仪和三角反光架通过监测墩固定于地面,三角反光架的三个顶点设有一个全反射棱镜。本发明结构简单、高精度、方便易用、可靠性好,适合滑坡或其他地质灾害致裂裂缝三维立体监测。

标签:
探矿技术
湖北 - 武汉 来源:中冶有色网 2023-03-05
基于流场表征的湖盆地貌定量预测方法

本发明公开了一种基于流场表征的湖盆地貌定量预测方法。它包括确定主要控砂地质因素:根据研究区构造特征,运用地层埋藏史,对盆地进行恢复;在盆地恢复的基础上,建立盆地沉积砂体体系动力学模拟系统,分析物源、水动力条件参数和构造特征参数对砂体分布演化的影响;按照颗粒搬运方式的不同,将沉积物分为粘性泥沙、非粘性泥沙,得到沉积组分的模拟表征;沉积组分的模拟表征,在分析沉积物的沉积、剥蚀、路过不留三种沉积条件的判断,计算沉积物的沉积量;实现对沉积盆地的定量表征;在模拟的基础上,将沉积物的厚度叠加到底型上,最后投影到水平面上,从而实现湖盆地貌的定量预测。具有能对不同的沉积环境进行模拟分析、成本低的优点。

标签:
探矿技术
湖北 - 武汉 来源:中冶有色网 2023-03-05
以砂岩为主的混凝土骨料质量评价方法

本发明公开了一种以砂岩为主的混凝土骨料质量评价方法,包括以下步骤:1)在人工骨料普查‑详查地质勘察基础上,根据地层柱状实测资料与钻孔揭露特征,计算砂岩及无用夹层含量:2)根据步骤1)中结果及剥离层厚度、地层相对完整、开采条件相对较优,从而确定质量分区;3)根据现场划分的分区,对有用区中骨料开展常规试验、碱活性分析、混凝土性能试验;4)在上述工作的基础上,通过评价料场材料层质量、储量,确定骨料场是否满足工程设计要求。本发明方法可以在短时间内确定质量、储量均完全满足工程设计要求的人工骨料场料源,为后期工程建设节约工期,创造了较高的工程和经济效益,避免了在工程建设中骨料量少或质量不合格而停窝工。

标签:
探矿技术
湖北 - 武汉 来源:中冶有色网 2023-03-05
适用于横波速度结构测定的微动布设装置及方法

本发明涉及地球物理检测技术领域,提供一种适用于横波速度结构测定的微动布设装置及适用于横波速度结构测定的方法。本发明提供的适用于横波速度结构测定的微动布设装置,包括:多个检波器,多个检波器沿探测面等间距线性排布;全站仪,全站仪用于测量首个检波器和末个检波器的位置坐标;数据终端,数据终端与每个检波器通讯连接;其中,检波器的数量大于20个。本发明提供的适用于横波速度结构测定的微动布设装置,通过将多个检波器呈线性排布,降低了数据采集的难度;提高了数据采集的效率。同时,可根据不同的噪声水平、地质条件选取不同的检波器采集数据进行组合,探测不同深度的目的层,解决了微动常规布设方式不能适应现场条件变化的问题。

标签:
探矿技术
湖北 - 武汉 来源:中冶有色网 2023-03-05
基于光纤传感监测技术的公路边坡沉降监测装置

本发明提供了一种基于光纤传感监测技术的公路边坡沉降监测装置,属于地质监测技术领域,它解决了边坡沉降无法有效快速监测,进行大数据处理建模等问题。包括若干监测基站、无线信号发射塔、基准站和GPS卫星以及与监测基站电性连接的两个监测底座,监测基站和基准站分别与无线信号发射塔以及GPS卫星通过无线通讯连接,监测底座内部设有限位机构,监测底座上设有调节机构和排出机构,监测底座内部放置有若干监测球,伸缩框架内部放置有若干光纤传感器;还包括与无线信号发射塔通过无线通讯连接的防火墙、数据处理中心和监控中心。本发明可有效实时监测边坡的土方量、坡度和等高线的变化,可快速评估灾害程度,得到边坡沉降模型,形成大数据。

标签:
探矿技术
湖北 - 武汉 来源:中冶有色网 2023-03-05
基于北斗三号短报文的应急数据传输方法

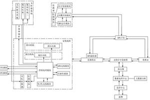
本发明公开了一种基于北斗三号短报文的应急数据传输方法,所述方法包括以下步骤:S01、多个采集节点对基准站和采集节点的北斗观测数据进行高精度静态解算得到基线结果或坐标值,并通过第一无线通信模块将数据发送给中继节点;S02、中继节点把数据转发给下一个中继节或网关节点;S03、网关节点将接收到的数据,并转换为北斗短报文的通信格式,再通过短报文将数据发送给北斗三号卫星;S04、北斗三号卫星将短报文传输给远程后台。本以解决现有技术在无公网的环境下,难以对地质灾害实现实时监测和低成本监控的问题。

标签:
探矿技术
湖北 - 武汉 来源:中冶有色网 2023-03-05
具备千米以上超前预报功能的TBM机头

本发明提供一种具备千米以上超前预报功能的TBM机头,包括盾体,所述盾体前端设有刀盘,内部设有主驱动机构和水平钻机,后端设有液压油缸,所述主驱动机构连接所述刀盘,用于驱动所述刀盘转动,所述液压油缸用于驱动所述盾体前进,所述水平钻机包括导轨、夹持器、动力头、液压马达和钻杆,所述夹持器固定于所述导轨的前端,所述动力头可滑动设置于所述导轨上,所述液压马达连接所述动力头,所述钻杆后端连接所述动力头,中部端贯穿所述刀盘,前端延伸至所述刀盘前方超过一千米并连接钻头,所述夹持器夹住所述钻杆的中部。本发明的有益效果:实现TBM掘进施工与超前地质预报同时进行,极大提高了隧道施工的综合效率。

标签:
探矿技术
湖北 - 武汉 来源:中冶有色网 2023-03-05
地下隧道的组合式水泵房及其施工方法

本发明涉及隧道土建设计技术领域,提供地下隧道的组合式水泵房及其施工方法,地下隧道的组合式水泵房包括隧道本体、用于蓄水的水泵房下部预制沉井和用于放置抽水设备的水泵房上部现浇本体,水泵房上部现浇本体和隧道本体并排布置,设置于隧道本体下端的出水口与设置于水泵房上部现浇本体上的进水孔连通,以使隧道本体内的水进入水泵房上部现浇本体内部;水泵房下部预制沉井位于水泵房上部现浇本体的正下方,水泵房下部预制沉井与水泵房上部现浇本体连通。地下隧道的组合式水泵房能解决富水砂层地质坑中坑的基坑支护困难问题,在不增加基坑支护桩的桩长、桩径及配筋的情况下,把水泵房下部预制沉井作为组合泵房的蓄水池,安全可靠。

标签:
探矿技术
湖北 - 武汉 来源:中冶有色网 2023-03-05
可加围压并约束试样转动的加载机构

本发明公开了一种可加围压并约束试样转动的加载机构,将加载压头设置在限位筒中;加载压头为包括加载压头侧壁和加载压头顶部;在加载压头顶部的上方设置轴向加载装置;加载压头侧壁内部设置有外套筒、上部垫块和岩土试样;加载压头侧壁上还设置有多个加载压头穿孔;每个加载压头穿孔的直径为1~2cm;所有加载压头穿孔的总面积占上部垫块接触区域以外的加载压头侧壁面积的50%~60%。该装置能够提供在保证围压和轴向荷载的情况下,同时还限制岩土试样沿指定方向运动;使得岩土试样中间部分产生滑动,从而整体模拟得到地质体剪切错动时的位移模式。

标签:
探矿技术
湖北 - 武汉 来源:中冶有色网 2023-03-05
适用于潟湖相岛礁环境下的组合基础结构及其施工方法

本发明公开了适用于潟湖相岛礁环境下的组合基础结构及其施工方法,涉及岩土工程设计与岛礁开发领域,适用于珊瑚潟湖地质条件。包括高压旋喷稳定桩、预制沉箱、侧限约束高压旋喷桩、预制钻孔沉管桩、预制承台;预制沉箱位于高压旋喷稳定桩之上,侧限约束高压旋喷桩帷幕结构之内,通过预制钻孔沉管桩将其与预制承台刚接成整体,协同承载。本发明不仅能克服珊瑚潟湖地基结构性强、承载力弱、变形大等不利工程特性,还充分发挥其各层岩土体的承载能力,具有刚度大、承载力高以及施工快、好、省等特点,具有适应孤岛海域施工的优势,具有广阔的应用前景,让在珊瑚潟湖地基上修筑机场等高架式造陆工程成为可能。

标签:
探矿技术
湖北 - 武汉 来源:中冶有色网 2023-03-05
利用钢—混凝土连接井在水下干燥环境中进行管道连接的工法

一种利用钢—混凝土连接井在水下干燥环境中进行管道连接的工法,包括如下步骤:S1、制作长方体双层钢板井筒,同时在连接井的设计位置,水下开挖放置长方体双层钢板井筒的基坑;S2、将制作的长方体双层钢板井筒浮运至设计连接井的基坑处下沉,就位;S3、将连接井基坑内长方体双层钢板井筒的外侧回填至沉管设计底标高;S4、将预留的竖槽在水下进行切割并取出,进行沉管沉放,再将竖槽放置于长方体双层钢板井筒内原位;S5、抽干连接井内的水,再进行沉管连接、压管及回填。其优点是:利用本方法解决了水面以下管道无法在干燥环境中进行连接的问题,减少水下沉管连接占用水面积大、时间长,且周边环境、地质等影响而造成支护难度大、止水效果差的难题。

标签:
探矿技术
湖北 - 武汉 来源:中冶有色网 2023-03-05
用于海油业务应用建设和业务处理的数据交互系统

本发明公开了一种用于海油业务应用建设和业务处理的数据交互系统,涉及一种石油业务系统,业务中台解决系统建设过程中技术复用及技术统一问题和解决整个石油勘探开发业务系统运行时的协同与一体化问题,所以本申请包括技术框架,所述技术框架构由业务组件中心建成,包括技术组件集成,所述技术组件集成包括数据采集技术、报告成果生成技术、Echarts各类勘探开发曲线生成技术、地质图生成技术、通用文本生成(即八股文)技术、H5自定义专业图生成技术以及信息共享推送可视化配置技术,所以业务中台不仅能够为海油的业务应用建设提供基本的技术组件和工具,且能够为勘探开发信息化建设过程中业务处理能力的积累沉淀、充分复用提供模式和平台。

标签:
探矿技术
湖北 - 武汉 来源:中冶有色网 2023-03-05
低水化热绿色自流平混凝土的制备方法

本发明公开了一种低水化热绿色自流平混凝土的制备方法,该低水化热绿色自流平混凝土是以矿渣为主要原料经过电石渣和湿磨废玻璃浆料混合的复合碱性激发剂激发形成,具体用矿渣、电石渣,和废玻璃进行破碎研磨,将物料混合后,掺入减水剂、消泡剂、抗裂剂、粗骨料和细骨料,进行搅拌制得地质聚合物固液混合浆料混凝土,本发明可用于大体积混凝土浇筑,降低了水化热避免了高水化热带来的体积膨胀破坏,实现了多项工业废弃物高效充分的回收利用,利用自流平的特性解决了砂浆空鼓问题,简化了施工流程的同时保持了较高的强度。

标签:
探矿技术
湖北 - 武汉 来源:中冶有色网 2023-03-05
利用反向自平衡法测试岩溶桩基承载力的模型试验装置及其制备方法

本发明公开了一种利用反向自平衡法测试岩溶桩基承载力的模型试验装置及其制备方法,试验装置包括岩溶地质模型、模型桩和反向自平衡装置,模型桩包括上段桩和下段桩;所述反向自平衡装置包括桩顶端板、桩身千斤顶、桩顶千斤顶、锚索和位移测量装置,桩身千斤顶设于上段桩和下段桩之间,桩顶千斤顶设于上段桩顶部和桩顶端板之间,锚索一端锚固在桩顶端板上,另一端从上段桩内穿过后锚固在下段桩内,位移测量装置有两个,分别用于测量上段桩和下段桩的竖向位移。本发明通过溶洞芯模创造溶洞位置,浇注同时安装反向自平衡装置,浇注完后,利用溶剂溶剂溶洞芯模,完成模型试验装置的制备。本发明结构简单,可模拟在各种类型溶洞,测量桩基承载力。

标签:
探矿技术
湖北 - 武汉 来源:中冶有色网 2023-03-05
标准贯入及动力触探试验的测试方法和测试装置

本申请涉及工程地质勘察领域,公开了一种标准贯入及动力触探试验的测试方法和测试装置,测试方法包括:以预设频率在设定时间内获取每一次锤击的多个位移值;基于多个位移值,确定每一次锤击对应的贯入深度;累计所有的锤击次数得到累积击数,累计所有的贯入深度得到累积贯入深度;基于累积贯入深度和累积击数,确定试验击数。本申请提供的标准贯入及动力触探试验的测试方法和测试装置,能够提高标准贯入及动力触探试验参数的精确性和标准贯入及动力触探试验结果可靠性。

标签:
探矿技术
湖北 - 武汉 来源:中冶有色网 2023-03-05
野外实测剖面实时绘制方法及系统

本发明涉及地矿勘查领域,提供一种野外实测剖面实时绘制方法及系统,包括:S1:通过路线管理模块获取野外观察路线和剖面测绘路线,通过地理位置服务模块获取地理位置数据;S2:通过分析所述野外观察路线的观察点获得观察点数据;S3:通过分析所述剖面测绘路线获取剖面数据;S4:通过所述观察点数据、所述剖面数据和所述地理位置数据绘制地层剖面图,通过所述可视化模块显示所述地层剖面图。本发明实现了野外地质数据记录的电子化,提高了野外测绘的工作效率;通过实时绘制的实测剖面的核对,降低了野外工作中出现测量误差的几率,提高了野外测绘数据以及绘制地层剖面图的准确性与完整性。

标签:
探矿技术
湖北 - 武汉 来源:中冶有色网 2023-03-05
基于钻柱振动信号的粘滑和跳钻异常工况识别方法

本发明提供了一种基于钻柱振动信号的粘滑和跳钻异常工况识别方法,用于识别粘滑和跳钻这两种异常钻具工况。通过分析钻柱振动三维加速度信号正常钻进与发生粘滑、跳钻时信号变化特征,利用经验模态分解得到本征模态函数IMF分量。然后,选取IMF分量及其阈值,将高于阈值的IMF分量系数采用软阈值函数进行处理重构得到去噪信号。对去噪信号进行IMF能量熵与边际谱能量计算,得到用于表征正常钻进、粘滑和跳钻的时频域特征。最后基于已提取的时频域特征,利用支持向量机对这三种工况进行识别。本发明减少钻进成本,提高粘滑、跳钻工况的识别速度和精度,为地质勘探钻进过程安全性监测与工况识别打下了良好的基础。

标签:
探矿技术
湖北 - 武汉 来源:中冶有色网 2023-03-05
钻孔平台钢管桩插打方法以及导向架组件

本发明涉及一种钻孔平台钢管桩插打方法以及导向架组件。所述钻孔平台钢管桩插打方法包括:将导向架组件的第一焊接部位焊接至设置有套管组件的待安装钢管桩的套管组件上;将导向架组件的第二焊接部位焊接至已经安装好的第一钢管桩上;将待安装钢管桩插入所述套管组件,并进行插打安装;待所述待安装钢管桩插打安装完成后,破开套管组件与所述导向架组件的第一焊接部位的焊接,并将导向架组件焊接至插打安装后的待安装钢管桩上。本发明的钻孔平台钢管桩插打方法与现有技术相比,对于无覆盖层、地质坚硬的海床,处理效率高,且结构简单,经济适用,操作方便。

标签:
探矿技术
湖北 - 武汉 来源:中冶有色网 2023-03-05
封存二氧化碳并协同处置放射性废料的方法

本发明属于碳捕获与封存技术领域,具体涉及一种封存二氧化碳并协同处置放射性废料的方法。所述方法包括:将废弃混凝土和活性废渣置于密闭反应釜,加入助磨剂和水,研磨后静置;在密闭反应釜中加入放射性废料和废弃纤维,搅拌条件下,以恒定速率向其中通入CO2气体,得到浆料;将所得浆料由输送管线或车船运输至适当地点后,注入特定地质条件及特定深度的地层中水化硬化。本发明所述方法可实现CO2的永久固化,并且固化CO2的同时使固化体结构更致密,有利于减少放射性废物的迁移,有助于提高放射性废物的密封和滞留,具有风险小、成本低等优点。

标签:
探矿技术
湖北 - 武汉 来源:中冶有色网 2023-03-05
含约束SVM异常化学单元素分类方法

本发明提供了含约束SVM异常化学单元素分类方法,所述方法包括步骤:对待分类范围内的采样数据进行预处理得到训练数据集;对训练数据集加入约束条件得到含约束条件的训练数据集;对含约束条件的训练数据集进行归一化处理,归一化后的含约束条件的训练数据集用于训练SVM分类器;获取SVM分类器的最优核函数得到SVM最优分类器;使用SVM最优分类器对训练数据集进行线性分类;使用线性分类后的结果生成完整的地球化学单元素异常图。本发明有效的圈定出满足地质条件约束的地球化学单元素异常,有效解决了单元素异常的分布和走向问题。

标签:
探矿技术
湖北 - 武汉 来源:中冶有色网 2023-03-05
串珠状岩溶对桩基受力变形影响的分析方法

本发明公开了一种串珠状岩溶对桩基受力变形影响的分析方法,步骤是A、选取有限元数值仿真软件;B、根据现场地质调研,建立轴对称二维几何模型;C、网格划分,选取本构模型,设定边界条件和材料参数;D、在桩基与地层间增设接触单元;E、杀死桩基材料单元,模拟地层在重力作用下的应力状态和沉降变形;F、激活桩基材料单元,模拟桩基施工;G、施加桩基顶部荷载,模拟外荷载作用;H、将溶洞内充填物弹性模量进行折减,模拟溶洞内松软填充物在扰动后二次固结沉降过程;I、通过后处理程序,获得地层与桩基的应力变形结果。方法易行,操作简便,计算高效,满足了岩溶地区桩基设计与施工,对于岩溶地区建筑物桩基的设计与施工具有重要意义。

标签:
探矿技术
湖北 - 武汉 来源:中冶有色网 2023-03-05
有压返浆加固覆盖型岩溶路堤的注浆方法

本发明公开了一种有压返浆加固覆盖型岩溶路堤的注浆方法,包括以下工艺步骤:通过工程物探确定岩溶区域范围、深度及岩溶形态;根据所确定的岩溶区域范围、深度及岩溶形态来确定先导孔布置范围、间距和深度;对每个所述先导孔按勘察标准实施成孔工艺,在先导孔实施过程中采集地层的岩芯形态数据;根据采集的岩芯形态数据所确定的岩溶区域范围、深度及岩溶形态来确定注浆方案。本发明针对既有铁路线路基位于覆盖型岩溶发育地段提供一种有压返浆加固覆盖型岩溶路堤的注浆工艺方法,用以解决岩溶溶蚀引发路基不均匀沉降、失稳、塌陷等地质灾害问题,为既有铁路线的正常运营提供安全的环境。

标签:
探矿技术
湖北 - 武汉 来源:中冶有色网 2023-03-05
基于分形发生器的随机型沼泽地花纹图案生成方法

本发明提供了一种基于分形发生器的随机型沼泽地花纹图案生成方法,利用分形发生器得到起始位置坐标和线段长度确定的横线段,2条以上横线段组成纵向的横线段带状图案,绘制2组以上的纵向的横线段带状图案,从而形成沼泽地花纹图案;其中,所述的分型发生器采用迭代函数系统随机迭代算法。本发明提供的这种随机型沼泽地面状花纹符号生成方法利用了分形理论和随机迭代函数,并结合了随机型地图符号的特点,具有很好的灵活性和可控性,可以自动生成高质量的地理和地质类随机型沼泽地面状符号,并应用于数字地图的填充。

标签:
探矿技术
湖北 - 武汉 来源:中冶有色网 2023-03-05
基于自适应深度Q网络的地理空间预测方法及系统

本发明提供一种基于自适应深度Q网络的地理空间预测方法及系统,包括对原始的数据集进行预处理,所述数据集包括地理空间数据和相应经纬度、海拔数据;计算变异函数离散点,搭建智能体训练环境,在深度Q网络模型结构基础上设置非线性修正单元,形成自适应深度Q网络并初始化;使用自适应深度Q网络对各变异函数模型参数进行学习和估计;计算变异函数离散点和模型的残差平方和,使用残差平方和最大的变异函数模型;将对应最优参数带入到克里金方程得到最终地理空间预测值。本发明实现在提高估计变异函数参数的准确性的同时降低整个插值过程的时间成本,可以更加快速且准确地对插值点进行相关属性的预测,对地质统计学和环境工程具有一定实用价值。

标签:
探矿技术
湖北 - 武汉 来源:中冶有色网 2023-03-05
电镀金刚石钻头保径方法

一种电镀金刚石钻头保径方法,其特征是在钻头 钢体唇面弧形凸块内、外侧钻孔,预嵌金刚石聚晶,然 后入槽电镀胎体及金刚石层,利用金刚石聚晶的耐磨 性比金刚石镀层的耐磨性好的特点,达到保径的目 的。本方法适用于加工地质钻探部门使用的绳索取 芯钻头和双管钻头的平底型、高低锯齿型、凹凸型、台 阶型以及底喷型等不同规格的电镀金刚石保径钻头, 可以使钻头使用寿命提高50—100%。

标签:
探矿技术
湖北 - 武汉 来源:中冶有色网 2023-03-05
饮用水净化装置
饮用水净化装置 1016     
 0

本发明是一种随身可携带的轻便饮用水净化装 置,它由三个净化部件和一个动力泵组成,经过该净 化水装置处理后的江、河、湖泊、水库、地下井水等天 然水可达到国家规定的生活饮用水卫生标准。特别 适用于野外作业的人员,如部队,边防哨所,地质勘 探,石油钻井及农村居民等,以保障广大野外作业人 员的身体健康。

标签:
探矿技术
湖北 - 武汉 来源:中冶有色网 2023-03-05
固体膨胀材料膨胀压力的测试方法及测试装置

本发明提供了一种固体膨胀材料膨胀压力的测试方法及测试装置。本发明是采用液压方法进行固体膨胀材料膨胀压力的测试。测量结果直观、准确,测试装置简单、易用,为固体膨胀材料膨胀压力的测试提供了一种新方法。本发明广泛应用于静态破碎剂的研究,以及由膨润土等膨胀引起的地质灾害和环境问题研究等方面;还可用于固体膨胀材料的膨胀压力测试、膨胀机理研究、膨胀条件模拟试验、膨胀控制研究等方面;对进行高压条件下某些化学反应的研究和热力学数据测定提供了条件。

标签:
探矿技术
湖北 - 武汉 来源:中冶有色网 2023-03-05
基于群表示理论的知识图谱嵌入的方法

本发明涉及知识图谱领域,具体涉及一种基于群表示理论的知识图谱嵌入模型的方法。本发明提出了在群表示空间下的嵌入模型,能有效解决当前许多模型对某些关系模式无法表示的问题,如可逆关系模式、对称和反对称关系模式、组合模式等;对负采样方法提出了改进方案,在自对抗负采样的方法的基础上,对可能产生的负样本的范围做了处理,尽可能地避免产生假负样本和提高负样本地质量。

标签:
探矿技术
湖北 - 武汉 来源:中冶有色网 2023-03-05
透地透水遇险报警系统

本发明公开了一种透地透水遇险报警系统,其特征在于,包括发射终端和接收终端,发射终端位于水下或地下,发射终端包括警报信息输入模块和发送模块,发射终端设置于大容量FPGA芯片上,用于发送求救信号;发送模块包括发射机,发射机发送长波电磁波到达地面;接收终端设置于地面,接收终端包括地面接收机和监控室计算机,其中监控室计算机用于接收并显示由地面接收机接收并处理得到的救援信息。本发明采用长波信号,其能深入地层、穿透海水,且具有传播稳定、损耗较小的特点。因此,长波通信十分适合水下或地下通信,并且具有良好的应用拓展性,在将来可以应用于水下通信、地下通信、远洋通信以及地质勘探等领域。

标签:
探矿技术
湖北 - 武汉 来源:中冶有色网 2023-03-05
裘布依潜水井流的模拟装置及其模拟方法

本发明公开了一种裘布依潜水井流的模拟装置,包括渗流槽、模拟河槽、供水装置和测压装置,所述渗流槽为扇形结构。本发明还提供一种裘布依潜水井流的模拟方法,包括以下步骤:在扇形渗流槽中装好均匀砂;打开潜水泵和供水阀门,采取反复饱水的方式排除渗流槽和测压装置内存在的空气;关闭潜水泵和供水阀门,通过测压管板读取各测压计观测孔的测压水头值。本发明的模拟装置成本低,直观效果好,方便掌握裘布依型潜水井流的运动过程和利用水位资料求取水文地质参数。

标签:
探矿技术
湖北 - 武汉 来源:中冶有色网 2023-03-05
上一页 14 15 16 17 18 ... 63 下一页
共63页    到第

中冶有色为您提供最新的湖北武汉有色金属探矿技术理论与应用信息,涵盖发明专利、权利要求、说明书、技术领域、背景技术、实用新型内容及具体实施方式等有色技术内容。打造最具专业性的有色金属技术理论与应用平台!

全国热门有色金属设备推荐
展开更多 +
全国热门有色金属技术推荐
展开更多 +

 

江西省隆恩特环保设备有限公司
宣传

报名参会
更多+

报告下载

有色专家
更多+

江西理工大学
副校长/教授
昆明理工大学
校长
江西理工大学
教授
西安建筑科技大学
教授
北京工业大学、中国工程院
中国工程院 院士
赤泥综合利用研究报告2025
推广

热门技术
更多+

推荐企业
更多+

福建省金龙稀土股份有限公司
宣传

发布

在线客服

公众号

电话

顶部
咨询电话:
010-88793500-807